PORTAFOLIO
EMMANUEL VARGAS / ARQUITECTO 2024


![]()



Portafolio / Arquitecto Emmanuel Vargas

AÑO: 2024
TIPO: Proyecto de Tesis
ROL: Diseño y Visualización
EQUIPO: Emmanuel Vargas
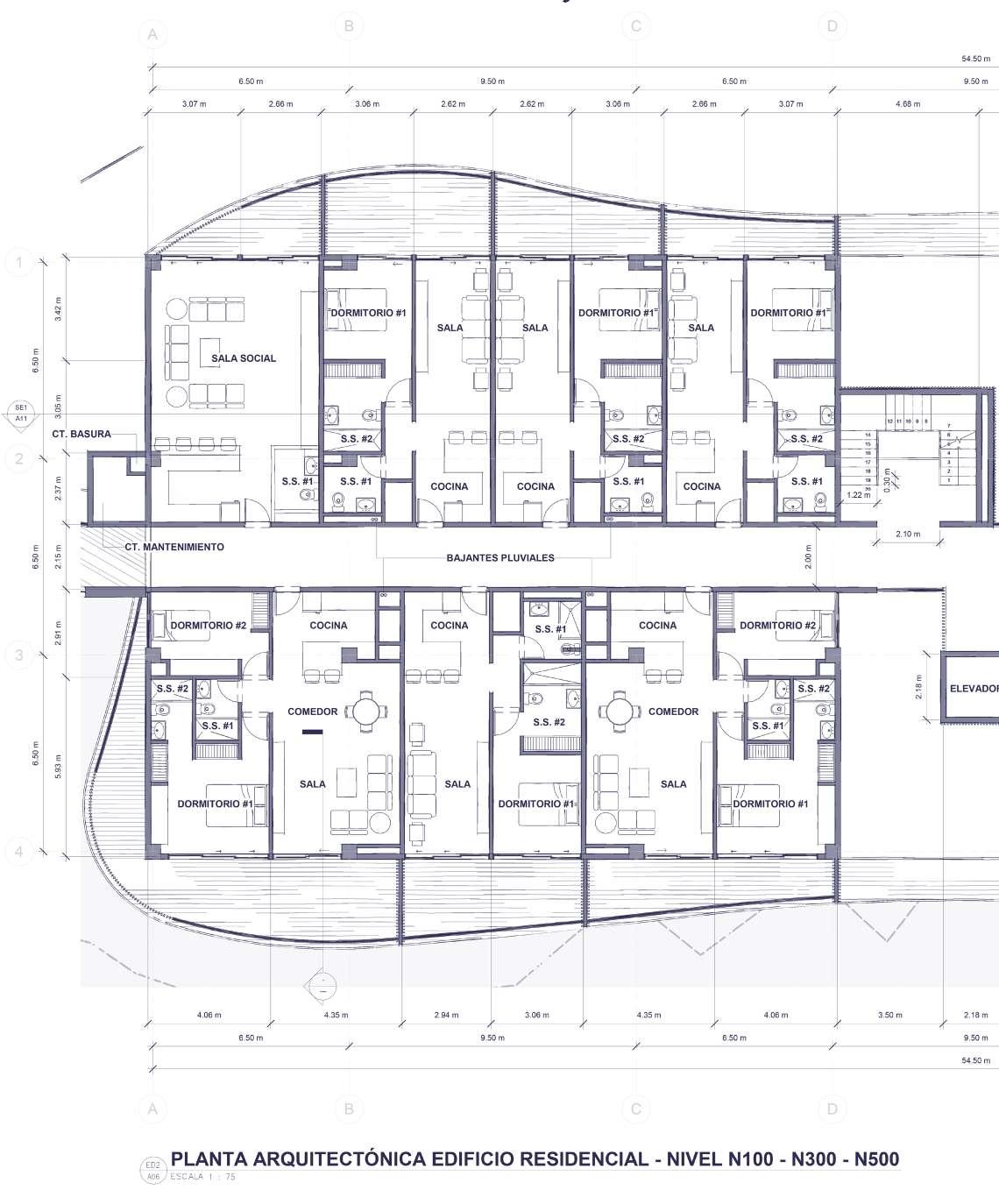
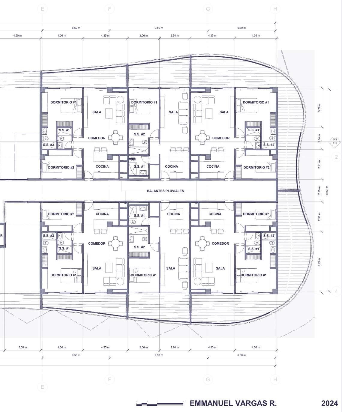
El proyecto está enfocado en desarrollo de un edificio vertical para uso residencial en el cual los usuarios además de vivir obtenga una mejora en su salud mental, específicamente en la ansiedad y los altos niveles de estrés. Todo esto mediante estímulos indirectos ubicados a lo largo de proyecto como los colores, texturas, alturas, naturaleza, entre otros.
Ubicado en la zona de Curridabat busca el alcance a un gran número de personas residentes del área metropolitana donde los altos niveles de densidad dificultad obtener un espacio donde de vivir y que esté relativamente cerca de espacio labora.



Portafolio / Arquitecto Emmanuel Vargas
Diseñar, en el 2024, una propuesta residencial vertical que busque la mejora de la salud mental de las personas con estrés y ansiedad producidos por la jornada laboral mediante una relación indirecta de la edificación con el usuario al utilizar estímulos indirectos.







En un mundo donde los niveles de ansiedad y estrés aumentan cada año, el entorno en el que se vive juega un papel crucial en la salud mental.
Este proyecto residencial nace de la necesidad de crear espacios que, de manera sutil e indirecta, apoyen el bienestar emocional de sus habitantes.
El diseño busca integrar elementos que favorecen la tranquilidad y el equilibrio, transformando la residencia en un refugio que contribuye al alivio del estrés cotidiano y al fomento de una vida más saludable y serena.




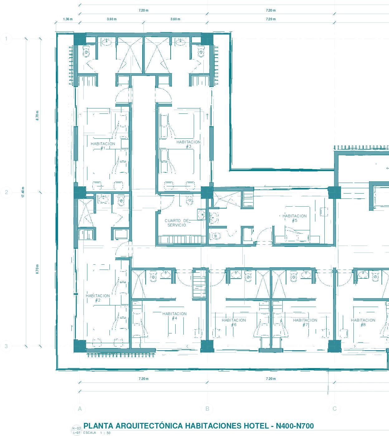
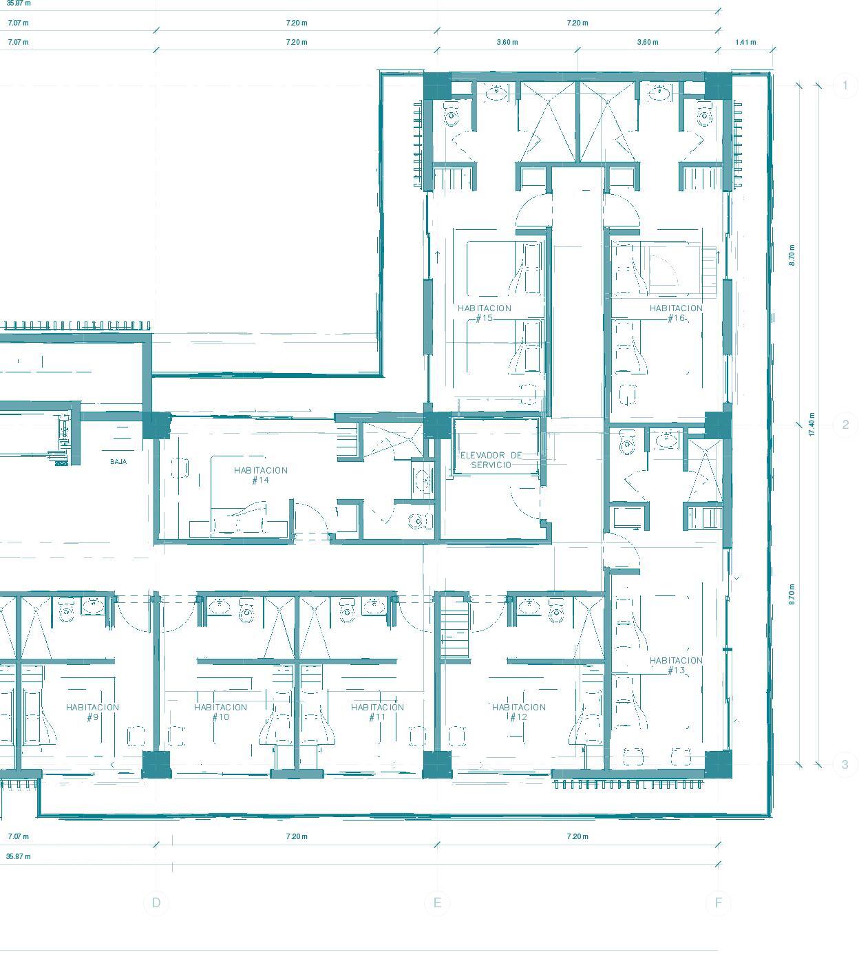
Este proyecto tiene como objetivo honrar el legado de Walter Ferguson en Cahuita mediante un museo que celebre su historia y música, preservando su influencia como máximo exponente del calipso en Costa Rica.
Además, busca dinamizar el turismo en la región, creando un nuevo atractivo cultural en Cahuita, que actualmente carece de puntos de interés turístico y comercial significativos, más allá del Parque Nacional y sus playas.
AÑO: 2024
TIPO: Proyecto de Bienal
ROL: Diseño y Visualización de Exteriores
EQUIPO: Emmanuel Vargas
Adriana Víquez
Henry Quiros
Joselyne Gonzalez









Portafolio / Arquitecto Emmanuel Vargas

Entre sus características se encuentran salas de exhibición, aulas para talleres y clases de música, un estudio de grabación, un área para eventos, un anfiteatro, residencias para artistas visitantes, estacionamiento, y una extensa zona de comidas pensada para el disfrute de turistas tanto nacionales como internacionales.
El complejo busca ser un punto de encuentro cultural en Cahuita, ofreciendo una experiencia integral que combina educación, entretenimiento y gastronomía, todo en un entorno que refleja la riqueza de la cultura afrocaribeña.



Portafolio / Arquitecto Emmanuel Vargas
AÑO: 2023
TIPO: Proyecto INTERNACIONAL
ROL: Diseño Urbano y Paisajismo
EQUIPO: Emmanuel Vargas Joselyne Gonzalez
Este proyecto se enfoca en la intervención de un edificio en Quito, Ecuador, designado por la autoridad local. A partir del análisis urbano, se identificaron áreas con deficiencias en el entorno del edificio de oficinas Corporativo 194.
La propuesta contempla mejorar la calle de acceso y crear un espacio de transición entre las oficinas y las residencias vecinas, convirtiéndolo en un parque que favorezca la integración urbana y la calidad del entorno con la naturaleza.









La ciudad de Quito, Ecuador, enfrenta un rápido crecimiento urbano que carece de una planificación adecuada, lo que ha derivado en problemas significativos como la congestión vial y la escasa movilidad peatonal.
Además, la proliferación de estructuras de obra gris ha invadido la ciudad, limitando considerablemente los espacios verdes y áreas de esparcimiento. En respuesta a estos desafíos, se propone una intervención urbana que aborde estas carencias, ofreciendo soluciones para mejorar la calidad del entorno y la experiencia de sus habitantes.



Portafolio / Arquitecto Emmanuel Vargas

AÑO: 2023
TIPO: Proyecto INTERNACIONAL
ROL: Diseño Urbano y Arquitectónico
EQUIPO: Emmanuel Vargas
Joselyne Gonzalez
El proyecto consiste en realizar una edificación en la ciudad de Quito que potencie el entorno socioeconómico de la zona. Ante esta necesidad, se concluye que la edificación más adecuada sea una plaza multiuso que albergue un hotel ejecutivo, una zona de comercio, una zona de gastronomía y bebidas y muchas espacios de parqueos.
En temas de diseño se enfoca en romper con el esquema constructivo de la ciudad de quito donde predomina figuras muy rígidas como rectángulos y cuadrados, por lo que se utiliza triángulos como concepto principal.




PROYECTO 004 / NUNA PLAZA

Se diseña una plaza urbana que rompe con el esquema de diseño de la ciudad de Quito, donde sus figuras triangulares destacan dentro del perfil urbano y lo convierten en un proyecto innovador para la ciudad.
Además, el desarrollo de las actividades socioeconómicas del proyecto impulsan la economía de la zona en especial a todas las empresas que rodean la ubicación del proyecto.





