Portfolio_CristianSIERRA

Page 1


CRISTIAN DAVID SIERRA GOMEZ
PORTFOLIO

1. Profil professionnel

2. Franklin Azzi Architecture

3. Hamonic + Masson & Associés

3.1 Concours ZAC RIVE GAUCHE LOT D, Thionville

3.2 Consours St Denis, Ilot time, ile de france

3.3 Concours Siége Angevin et Aiguillon, Rennes

3.4 Métamorphose, Angers

3.5 Mellona, Zac Arsenal, Dijon

3.6 Les jardins de Stélhélin, Caudéran, Bordeaux

4.Taller

4.1 Bâtiment d´ingénierie p.u.j (Colombie)

4.2 Projet urbain ministériel (Colombie)

5. Atelier des arches

5.1 Concour 52 logements sociaux à Trappes

6. PFE France M2

6.1 centre Culturelle “ El Prado”

Je me considère comme une personne créative, ouverte et réceptive. Je suis responsable dans mes travaux, volontaire dans les travaux en équipe, appliqué à obtenir des résultats de qualité.

Je pense que l´architecture est la base de la vie et de l´évolution des sociétés. Elle représente l´art de vivre, de s´exprimer et de créer.

En tant qu´architecte, nous avons le devoir de construire des habitats de façon responsable et toujours en gardant à l´esprit que notre intervention dans la société est l´une des plus importantes pour forger les personnes et les cultures qui croient au progrès et à la stabilité de l´humanité.

En France j'ai eu l'oportunité de travailler pedant presque 3 ans chez Hamonic + masson & Associés, en passant par de concours, PRO/DCE, dossier marché, et 1 an en mission de chantier ( visas et realisation des prototypes). Pendant mes études de master à Paris j’ai eu l’opportunité de travailler dans deux agences parisiennes : dans la première pendant 4 mois et dans la deuxième pendant 3 mois. J’ai donc été plus proche de la réalité architecturale en France, avec la réalisation de deux concours et différents projets de logements et de bureaux.

En Colombie, durant mes cinq années d’étude ou pendant mes 7 mois de stage ou encore durant les 11 mois passés en tant qu’architecte dessinateur, j'ai pu acquérir de nouvelles méthodes pour travailler en équipe avec des personnes du monde entier. Etant Colombien, je parle couramment Espagnol mais aussi Français et possède de bonnes bases en Anglais.

PROFIL

PROJET CONDORCET

Paris, France

Projet mixte, logement/tertiaire/ERP dans le 9ème arrondissement, incluant la conservation et la réhabilitation du patrimoine ainsi que la construction neuve en phase APD.

Un total de 26000 m2

• Développement et conception architecturale.

( plans coupes, élévations et détails)

• Réalisation du model 3D et des images explicative

• Suivi du projet et participation aux Workshop de travail hebdomadaire avec le BET

Le projet se compose de sept bâtiments, chacun nécessitant différents niveaux d'intervention, allant de la réhabilitation du patrimoine à la construction neuve.

L'objectif du projet urbain est de connecter la ville à l'ensemble des éléments architecturaux du projet en créant des passages et des rues intérieures qui seront ouvertes au public. L'idée principale est de redynamiser le quartier en intégrant le concept de "rez-de-ville".

L'architecture du projet combine une mise en valeur forte du patrimoine avec la rénovation et la réhabilitation des façades et des espaces intérieurs existants des bâtiments A, C, E, F et G.

Le bâtiment D subit les transformations les plus significatives, avec la conservation et la rénovation de sa façade nord, ainsi que la création d'une nouvelle structure en bois. Cette dernière comprend des façades en béton de chanvre et des murs-rideaux en bois.

Coupe Longitudinale
Hall
Coupe synthèse Bureaux Bat C
Coupe synthèse Bureaux Bat D
Hall d'accès Batiment C

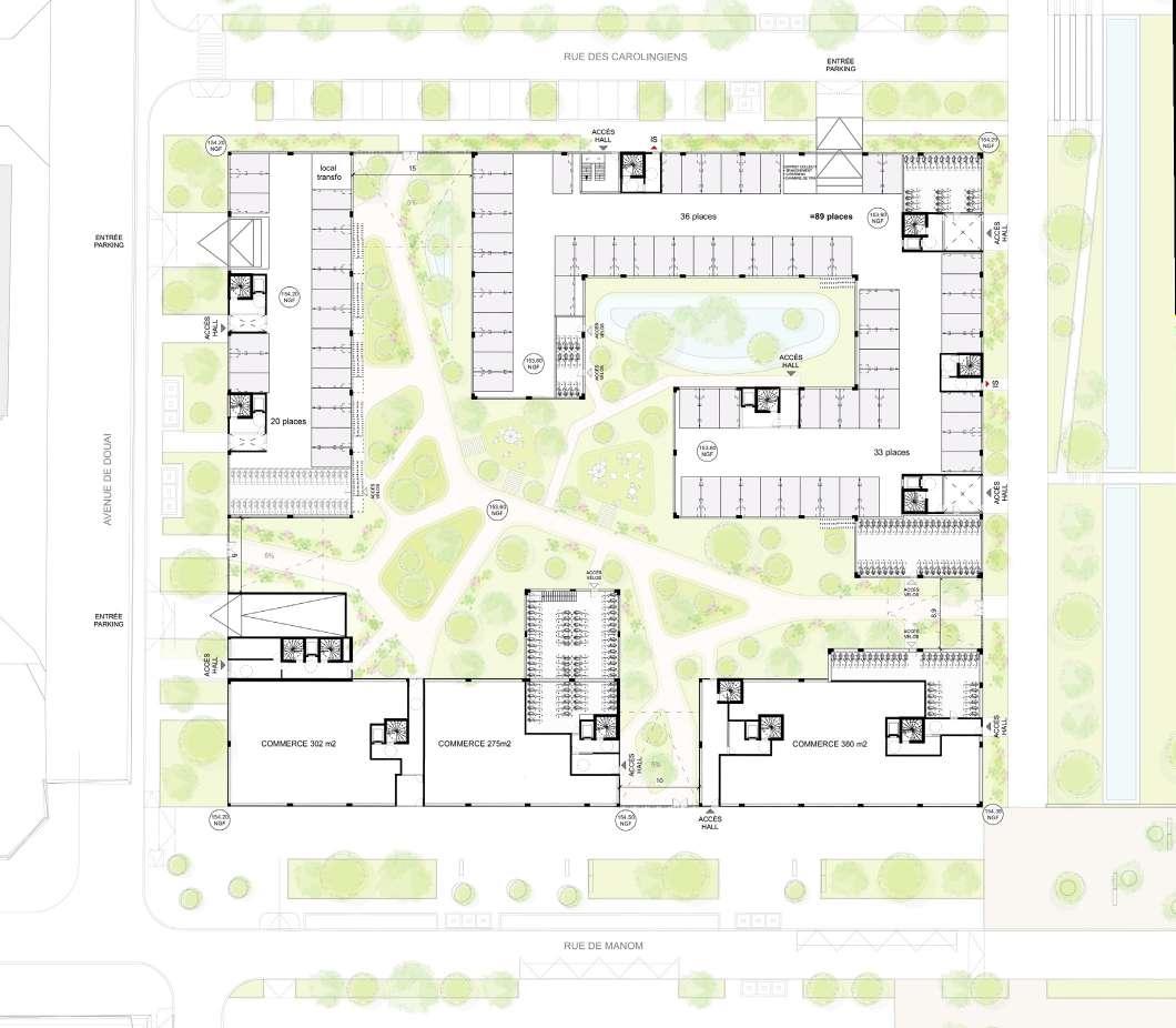
10 bâtiments, 200 logements dont 45 sociaux.

(Logement collectifs, intermédiares et logements sociaux).

957 m2 de commerces.

267 places de Parking et 345 places de vélos.

Un total de 9375 m2

• Développement et conception architecturale.

• Suivi du projet et tenue des échanges avec MOA et BET

• Participation aux Workshop de travail hebdomadaire.

CONCOURS ZAC RIVE GAUCHE LOT D

Thionville, France

Axonométrie

Le projet de l'lot D prend place sur un site privilégié de par sa position stratégique à l'échelle de la ville de Thionville et aussi du territoire.

Pour repondre au besoin de la ville, nous cherchons à tirer le meilleur parti du contexte, de la parecelle et du plan d'aménagment en créant un maximun de porosité entre la rue, le coeur d'ilot et le parc.

le paysage s'infiltre de toute part. les stationnements semi-enterrés à rez de jardin permettent d'avoir des logements surélevés plongeants sur la nature et proposant depuis la rue, en plus des percées visuelles, une relation directe entre le coeur d'ilot et le parc.

le rapport à la nature se porsuit à tous les étages du projet par le biais de terrases, balcons, solarium sur les toitures développant de réels univers plantés sur la totalité du projet. Véritable laboratoire d'une architecture de biodiversité en milieu urbain.

Plan de RDC

Typologie T2 avec balcon filant

Typologie T4 Traversante

Typologie T3 d'angle

Typologie T3 simple avec accès terrasse sur le toit

CONCOURS ILOT TIME

St Denis , France

2 bâtiments, R+14 et R+9, 107 logements

680 m2 de commerces.

820 m2 centre medico social.

62 places de Parking et 163 places de vélos.

Un total de 7000 m2

• Participation à la phase concours.

• Élaboration de Plans et détails. Phase Concours

Axonométrie

L'ilot Time est un bâtiment structurant du quartier , situeé à l'angle de la palce populaire, il occupe un emplacement stratégique, véritable polarité entre tous les éléments bâtis et plantés autour du site.

les RDC et 1ers étages sont volontairement identifiés dans leur matérialité (facade mur rideau - alternance de panneau pleins et de menuiseries) pour acompagner cette lecture d'ouverture sur l'espace public et accompagner le volumen du piéton baigné de lumière naturelle.

lieu de la transparence, de la profondeur, de perspectives riches et diverses, ce << volume du piéton >> enrichit la ville en offrant un caractère dynamique et vivant sur l'ensemble du périmètre de notre projet.

finalement, nous proposons des espaces de vie qualitatif, des tarrases collectives et plantées, offrant à tous les habitants un lieu de rencontre et d'echange dans un cadre apaisé, en rentrant de l'agitation urbaine.

Coupe longitudinale
Typologie T4 traversante
Typologie duplex T5
Façade est
Typologie T2
Typologie T3 angle
Façade sud

CONCOURS SIÉGE

ANGEVIN ET AIGUILLON

Rennes, France

2 bâtiments.

Plot nord, bureau + 33 Logement accession 5000 m2 R+8, Plot sud 34 Logement sociaux 2000 m2 111 places de Parking, R+7

Un total de 7000 m2

• Participation à la phase concours.

• Élaboration des Plans et détails : Phase Concours

le site profite d'une situation privilegiée : d'un accès direct au métro triangle, d'une parc en réseau qui relie les deux parcelles , et de l'avenue des Pays-Bas très végétalisée et reliant le site aà la rocade de Rennes.

les bâtiments viennet dynamiser la skyline en apportant de la diversité dans un quartier très homogène . les bâtiments sont redécoupés d'étages en étages afin de créer un jeu de gradins et de retraits favorisant les espaces extérieurs, l'ensoleillement et les vues.

les toirures tres diverses offrent un panel d'esapces extérieurs végétalisés afin de faire fondre les bâtiments dans le contexte environant et dans la canopée.

Axonométrie logement accesion

Coupe logitudinale Bureau - logement accesion

Axonométrie terrasse logement social

Coupe logitudinale logement social

Façade Ouest
Façade Ouest logement social

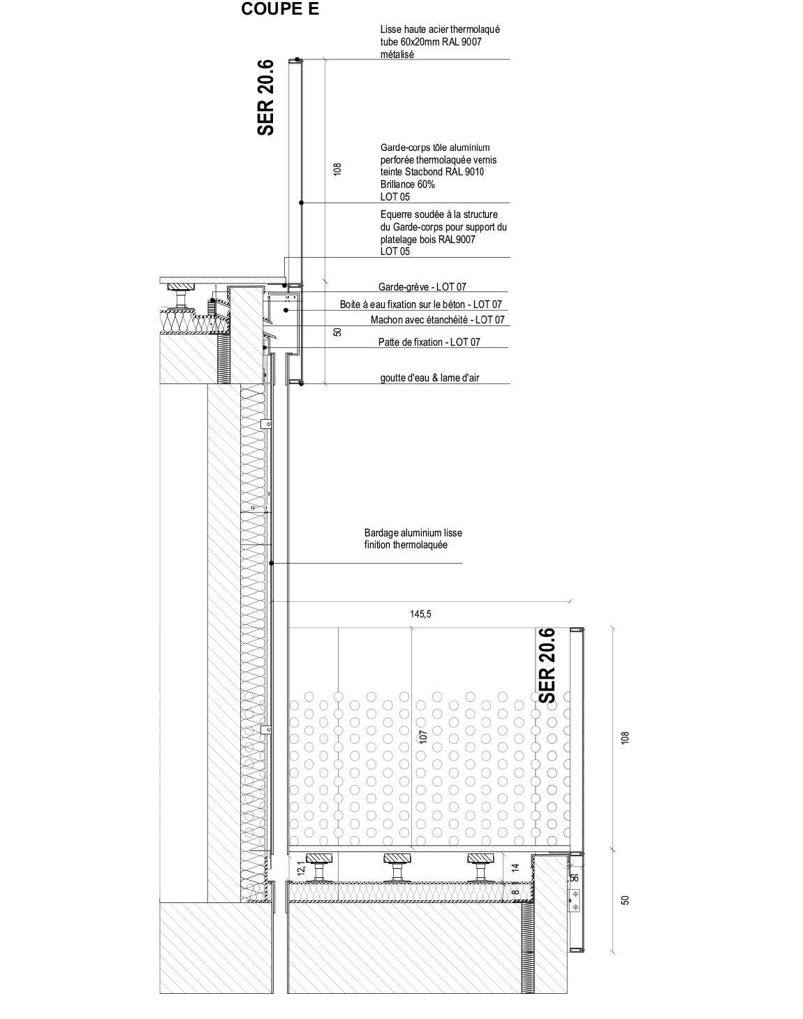
METAMORPHOSE

Angers, France

76 logements en co-living + salle de sport + bureaux + restaurant + Espace public + serre tropicale + parking

Un total de 24500m2

• Participation aux études dans la phase Dossier marché

• Élaboration et mise au point des prototypes de façades type des bureaux et logement compris synthèse architecturale et technique avec entreprises

• Missions sur phase chantier pendant 1 ans, synthèse technique, réalisation de visa sur lots Fluides, Façades, Serrurerie

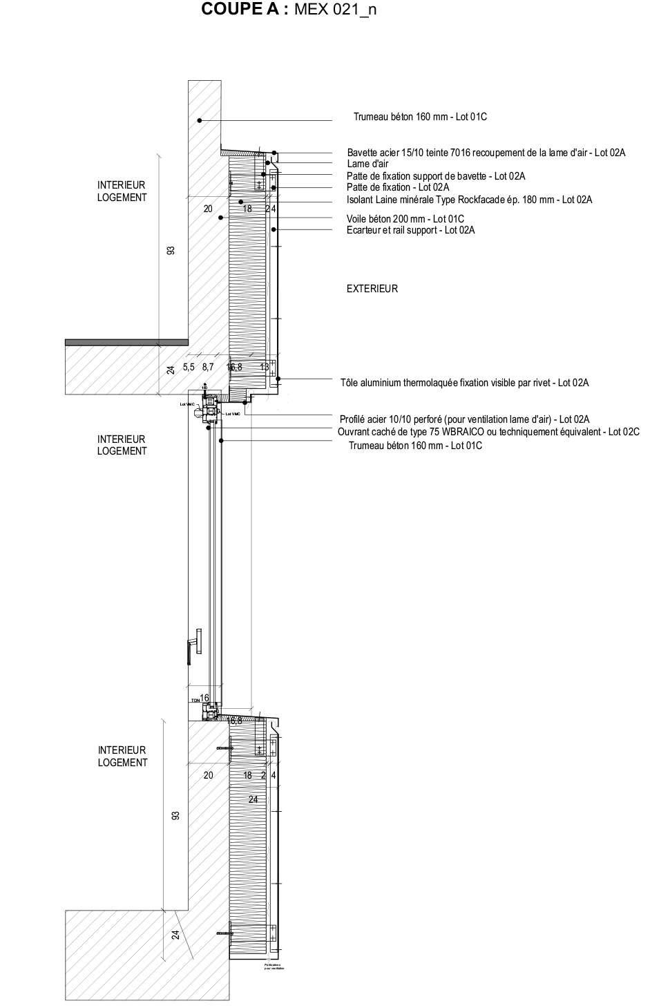
Coupe A-A'
Coupe E-E'
Prototype Logement
Facade Logement

MELLONA, ZAC DE L'ARSENAL

Dijon, France

95 logements collectifs, + 95 places de parking ( 63 accession libre et 27 accession abordable )

Un total de 6395m2

• Élaboration des Plans et détails en phase PRO/DCE

• Développement mise au point architectural phase

-PRO/DCE

Coupe côte jardin
Façade Batiment C et D côte jardin

Projet réalisé dans le marais de Magdalena en Colombie, à Mompox. Cette ville fait parti du patrimoine de l´humanité et possède un héritage architectural colonial datant de 1540.

74 logements collectifs une résidence étudiante (100 studios) + salle collective 104 places de parking

Un total de 7750m2

Nous réalisons une visite dans le centre historique de la ville, dans laquelle nous faisons une analyse architectonique urbaine d´un bâtiment spécifique: l´auberge de jeunesse de Doña Manuela.

• Réalisation et développement de la phase -PRO/DCE

• Tenue des échanges avec MOA et suivi de programme

• Élaboration des plans et détails en phase PRO/DCE

• Mise au point technique avec les BET

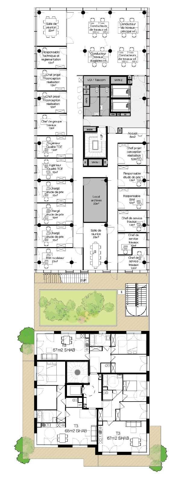
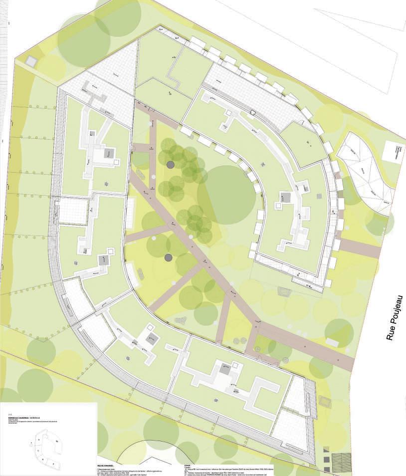
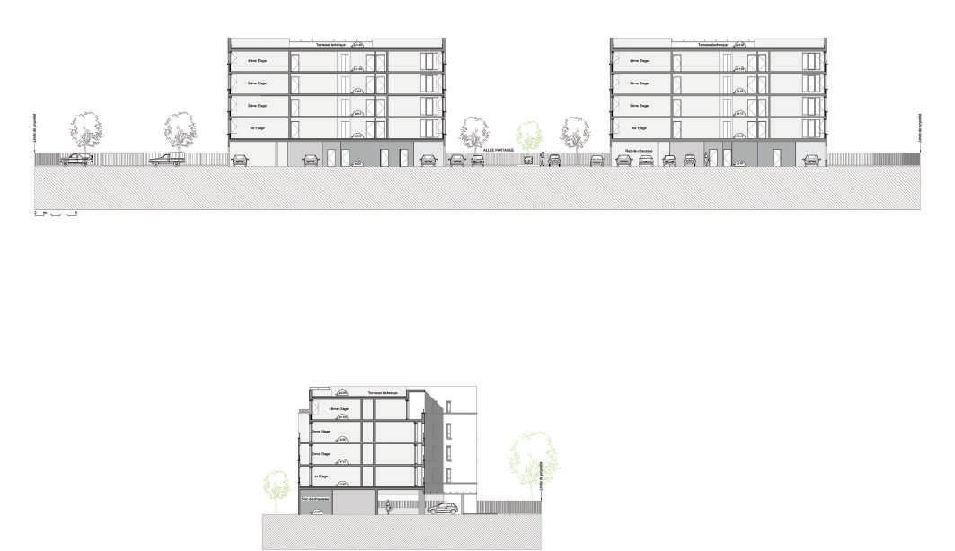
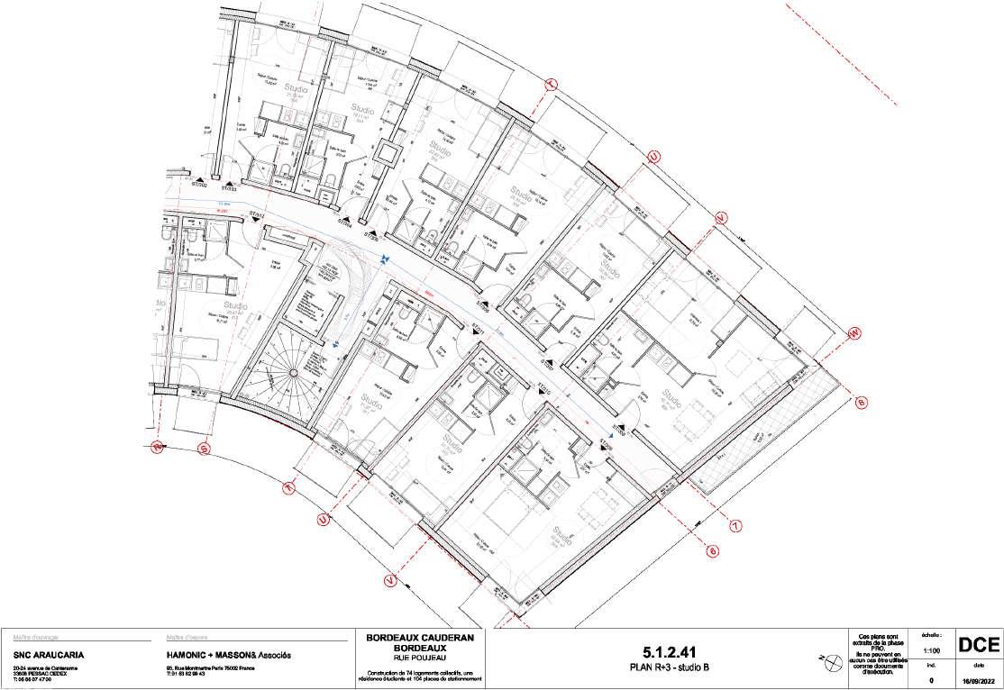
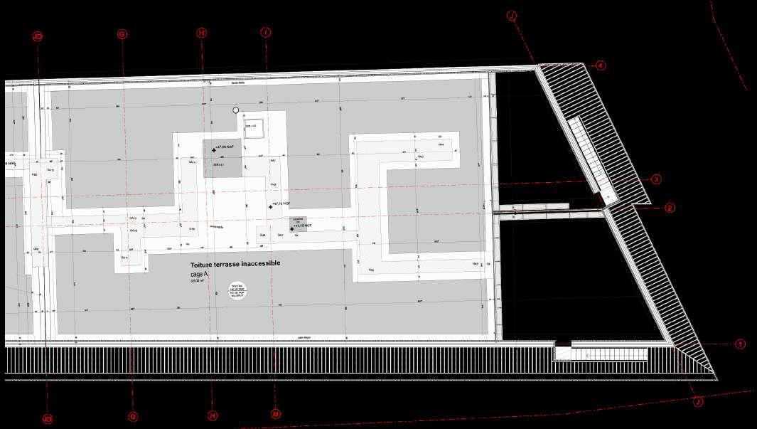
LES JARDINS DE STÉLHÉLIN

Cauderan, Bordeaux, France

Plan R+5 toiture cage A

Plan R+4 cage A
Façade cage A
Coupe cage A
Plan R+3
Façade Residence étudiante
Coupe

BÂTIMENT D´INGÉNIERIE P.U.J

Bogota, Colombie

PLAN SOUS-SOL

L´université pontificale, à la recherche d´un nouveau bâtiment pour la faculté d´ingénierie a ouvert un concours privé.

Nous proposons un bâtiment de 8 264m2 qui intègre l´espace publique et le bâtiment déjà existant. Pour cela, nous prévoyons la création d´un atrium comme point d´union au nouveau bâtiment de 13 étages en acier où la structure fera partie de l´image esthétique du bâtiment.

En même temps, ce sera un point de rencontre pour les étudiants des différentes facultés de l´universitée.

Pour plus d´informations, vous pouvez consulter la page web de “Taller 301”

http://www.taller301.com/index.html

RÉCEPTION SOLAIRE

VENTS ESPACE DE BIEN ÊTRE ÉTUDIANT

Nous proposons un bâtiment capable d´accueillir les flux de piétons qui convergent à cet endroit de l´université. Trois grandes ouvertures à échelle urbaine recoivent les piétons provenant du nord, de l´est et de l´ouest.

SITUATION ACTUELLE

PROPOSITION

PLAN CINQUIÈME ÉTAGE PLAN SIXIÈME ÉTAGE

En tant que stagiaire dans l´entreprise Taller 301, j´ai travaillé en équipe dans l´étude du secteur, dans la réalisation des plans, des dessins architectoniques ainsi que dans la mise en oeuvre complète du modèle 3D et dans la réalisation des d´images explicatives.

COUPE B-B’

PROJET URBAIN MINISTERIEL

Bogota, Colombie

Projet de rénovation urbaine en plein centre historique de la ville de Bogota, Colombie dans lequel nous cherchons à revitaliser une zone urbaine détériorée et en déclin.

Pour y remédier, nous proposons une symbiose entre l´architecture coloniale existante et la réinterprétation d´un design moderne.

C´est un projet urbain et architectonique puisqu´il intervient sur certains espaces pour construire les bureaux des ministères du gouvernement.

En tant que stagiaire dans l´entreprise “Taller 301”, j´ai travaillé dans l´équipe en charge des dessins architectoniques et dans la réalisation des plans et de la présentation architectoniques (images et rendus)

PLAN CINQUIEME ETAGE

SOUS-SOL 2

PLAN QUATRIEME ETAGE

Nous utilisons les espaces intérieurs de chaque zone où nous intervenons, pour articuler et intercepter les flux urbains, par exemple, à l´aide de passages piéton.

Pour plus d´informations, vous pouvez vous rendre sur la page web de “Taller 301”

http://www.taller301.com/index.html

SOUS-SOL 1

CONCOURS 52 LOGEMENT SOCIAUX

Trappes, France

COUPE LONGITUDINALE

COUPE TRANSVERSALE

Lors de ce concours réalisé à l’Atelier des arches, une agence parisienne, nous avons cherché à répondre adéquatement aux demandes de la mairie et à la limite monétaire établie pour la conception de deux immeubles de logements sociaux à Trappes.

Le projet conçu avec un parking au rdc et 4 étages d’appartements. Nous cherchons à mettre en œuvre la distribution spatiale de la meilleure façon possible, créant à son tour des terrasses ouvertes sur l’environnement urbain.

Durant ce projet j’étais le bras droit de l’architecte en charge, j’ai eu des interventions spécifiques dans les idées de conception, j’étais chargé de la réalisation complète des plans, maquettes et images de l’ensemble du projet.

PRINCIPALE

PFE FRANCE

CENTRE CULTURELLE EL PRADO

Bogota, Colombie

AXONOMETRIE

Pour mon PFE, j’ai réalisé un équipement urbain situé au nord de la ville de Bogota en Colombie. Celui-ci complété par un autre projet générant un ensemble architectural et une allégorie d’un théâtre en plein air.

Mon projet final se compose de 3 volumes qui sont divisés en: une bibliothèque, une maternelle, des ateliers d’apprentissage, des bureaux et des gradins d’une capacité d’au moins 917 personnes assises. Tous ces espaces conçus et positionnés dans le respect de l’environnement urbain et de la lumière naturelle.

Au cours de ma dernière année d’étude, le projet urbain a été fait en groupe avec une collegue en créant un nouveau PLU pour résoudre l’organisation et l’avenir du quartier du Prado.

COMPOSITION VERTICALE

DÉPLACEMENT HORIZONTAL

CRÉATION D'ESPACE OUVERT

OUVERTURE ET CONFIGURATION DE L'ESPACE

CIRCULATION VERTICALE

COUPE A-A’

Etancheité

Isolant laine de roche

Profilés Métaliques ( support brise - soleil )

Vitrage

Bardage Métalique
COUPE B-B’

Turn static files into dynamic content formats.

Create a flipbook
Issuu converts static files into: digital portfolios, online yearbooks, online catalogs, digital photo albums and more. Sign up and create your flipbook.