Crawford Suarez - Graduate Portfolio

Page 1


CRAWFORD SUAREZ

SELECTED ARCHITECTURAL WORKS 2025

URBAN WINDOW

01 DOWNTOWN ORLANDO, FL SPRING 2019 02

UNIFY BY TRUSS

RESILIENCE

SCARIFICATION

GAINESVILLE, FL SPRING 2018

WEKIWA SPRINGS, FL FALL 2017 03 MIAMI, FL SPRING 2021

SYMBIOTIC SOUND

LOGISTICS HUB

BARCELONA, SPAIN FALL 2018

MIAMI, FL FALL 2020

University of Central Florida | 2019

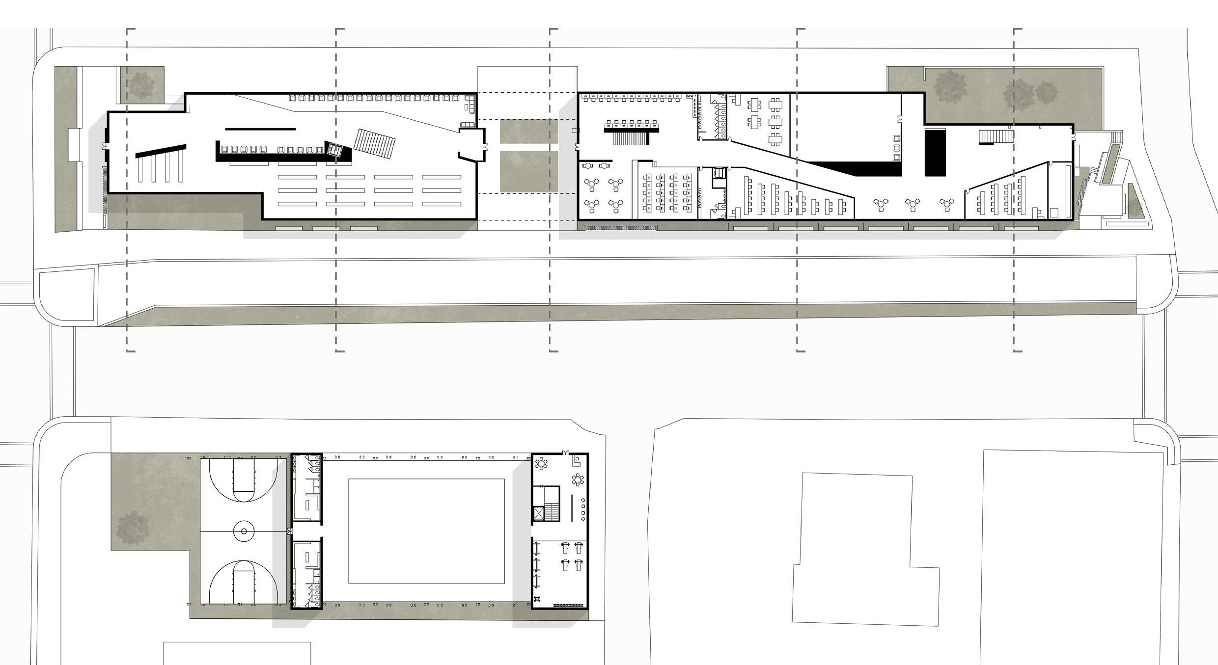
URBAN WINDOW

Project Location: Downtown Orlando, FL

Project Size: 500,000 SF

Project Semester: Spring 2019 | Design 8

The tower, designed in a gentrified area, chooses to give back to the existing community. Public circulation is scattered throughout the building and is left visible to the exterior without a sun shading device. This highlight of the public space allows for the experiences within them to be broadcasted to the outside.

CRAWFORD SUAREZ SELECTED WORKS

Gallery Floor Plan
Proposal
Glazing Interior Walls Sun Screen

University of Central Florida | 2019

UNIFY BY TRUSS

Project Location: Gainesville, FL

Project Size: 150,000 SF

Project Semester: Spring 2018 | Design 6

Partners: Michka Nazari, Tatiana Khalil, & Steven Purcell

The project helps to reconnect the dispersed members of the community of Gainesville through a structure that joins and combines the strength of all in a common effort. The steel truss can only begin to function by having two members connect together. As the space becomes more complex, the truss begines to break up into multiple members combining strength.

CRAWFORD SUAREZ

SELECTED WORKS

Spine Placement
4. Program Placement
3. Massings Added to Spine
6. Truss System Added
2. Development of Spine

- A

- B

- C

Section - D

Section - E

Section
Section
Section

Univeristy of Miami

RESILIENCE

Project Location: Miami, FL

Project Size: 150,000 SF

Project Semester: Spring 2021 | Graduate Studio 2

Partner: Alixandra Fleming

North Beach Youth Center is located on Collins Ave across the street from North Beach Oceanside Park. In moving forward with the project, we wanted to design a structure that was elevated on pilotis to combat flooding within the area as well as to keep 50% of the program passively cooled. Additionally, we wanted to mimic features of the park across the street by incorporating an arboretum / skatepark into the core of the project

SELECTED WORKS

1. Courtyard
2. Open To Bayside Park
3. Elevate Program
4.Skin & Roof

University of Central Florida | 2019

SCARIFICATION

Project Location: Wekiwa Springs, FL

Project Size: 5,000 SF

Project Semester: Fall 2017

Individual Project

Nested in Wekiwa Springs State Park, the project lies next to a controlled burn site. The linear wood system is peeled back to represent an intricate scarring system as seen in the roof, much like the burnt areas within the Florida landscape. The scarring system is then reflected into the landscape as a means to pull the users towards and through the project.

CRAWFORD SUAREZ SELECTED WORKS

University of Central Florida | 2019

SYMBIOTIC SOUND

Project Location: Winter Park, FL

Project Size: 4,500 SF

Project Semester: Spring 2018 | Design 6

Nested in Wekiwa Springs State Park, the project lies next to a controlled burn site. The linear wood system is peeled back to represent an intricate scarring system as seen in the roof, much like the burnt areas within the Florida landscape. The scarring system is then reflected into the landscape as a means to pull the users towards and through the project.

CRAWFORD SUAREZ SELECTED WORKS

Arrival Braking

Univeristy of Miami

LOGISITICS HUB

Project Location: Miami, FL

Project Size: 150,000 SF

Project Semester: Spring 2020| Graduate Studio 1

Individual Project

Delivery-service companies, such as Amazon, have become the forefront of consumerism in America. In this context, the current FedEx center in downtown Miami can only be expected to grow further as business expands and new modes of logistics are deployed. Access to the interstate highway and downtown road networks currently drive the system; However, in the future, it should be possible to tie the building into the Metromover rail network. Drones will also likely drive the next generation of delivery systems; meanwhile, access to logistics make vertical farming attractive, capitalizing on the infrastructure of mobility.

SELECTED WORKS

10 Degree Rotation
2 Cores Added
Vertical Silos Added
Art Gallery Plan

CRAWFORD SUAREZ

SELECTED ARCHITECTURAL WORKS 2025

Turn static files into dynamic content formats.

Create a flipbook
Issuu converts static files into: digital portfolios, online yearbooks, online catalogs, digital photo albums and more. Sign up and create your flipbook.