Forever Covenant Book

Page 1


WARNER PARK

KEY CONTENT

PROJECT DETAILS (PAGE 16)

RENDERINGS (PAGES 18-27)

YOUR PART (PAGE 29)

FAQ (PAGES 34-35)

When Covenant Day opened its doors 35 years ago, the ten teachers and handful of volunteers could never have imagined the profound impact they would have, not only on the 149 students who came that first year but on the many who would follow. God has been faithful to Covenant Day for generations. Today, we are stewards of this legacy, committed to upholding our mission while seeking to glorify Him in all we do as we build toward the future.

Phase 1 of the Forever Covenant campaign is a $10.5 million initiative designed to enhance our athletic facilities at Warner Park. Through this investment, we will strengthen our ability to transform hearts and minds for the glory of Jesus Christ by nurturing the whole child— spiritually, academically, emotionally, and physically—while advancing our mission of Christ-centered education.

Forever Covenant represents a bold step toward elevating excellence in every area of student life while committing to Christ-centered distinction in all we do. These improvements will create spaces that enhance our community, enrich students' experiences, and inspire future generations—all while remaining steadfast in our mission and core values. With the completion of this campaign, we envision Warner Park as a vibrant hub for our entire Covenant Day family. Picture bleachers filled with students, parents, alums, and families gathering for school-wide celebrations on a Friday night. These shared moments go beyond athletics; they strengthen our connections to one another and the mission of Covenant Day as a covenantal school.

I want to assure you that our unwavering commitment to biblical truth and Christ-centered excellence remains at the heart of all we do. The Forever Covenant campaign is about fostering holistic student development within the balanced pursuit of excellence that defines Covenant Day.

To bring this vision to life, we need your partnership. In the campus master plan survey, our CDS families indicated strong support and interest in Warner Park, and we cannot make that vision a reality without you. We ask for your prayers, involvement, and financial gifts to help make this dream a reality. Every family has a role to play—whether through giving, volunteering, praying, or all of these. Together, we can complete Warner Park, ensuring it becomes a key element of advancing our school's mission for generations to come.

Forever Covenant is not just about building facilities; it's about building lives that reflect Christ's love, impact communities, and carry the mission of Covenant Day far into the future so that students can be salt and light for God's glory. We invite you to join us in this exciting chapter as we invest in a legacy that truly lasts forever.

FOREVER COVENANT WE ARE

What is FOREVER COVENANT?

The name Forever Covenant reflects the enduring promise that defines Covenant Day School. Since our founding, we have partnered with Christian families to provide an education rooted in a biblical worldview and academic excellence, developing students holistically in academic rigor, artistic creativity, athletic achievement, and authentic faith. The Forever Covenant campaign continues that commitment, remaining steadfast to our mission while shaping a legacy that reaches far beyond today.

Warner Park is a key part of this vision: a vibrant space for Friday night games, senior celebrations, and community gatherings. It is an investment in today’s students and future generations, ensuring that Covenant Day will continue to provide Christ-centered excellence in every area of student life, preparing graduates to live out their faith and be salt and light for God’s glory.

ABOUT THE LOGO

The Forever Covenant logo, inspired by the Celtic cross found across Covenant Day’s and Christ Covenant Church’s campus, points to both our heritage and our future. Its four intersecting shapes symbolize the master campus plan: Warner Park, a new lower school, a worship and performing arts center, and a third gym . Highlighting one shape reflects the focal point of this campaign.

The stylized shapes also echo stained glass windows in the Worship Center and pathways on campus, illustrating the interconnectedness of our mission, community, and the future

we’re building together. The use of the word “FOR” in red draws attention to the school’s dedication to these enduring values for the glory of God.

The Forever Covenant campaign is not just about building facilities; it is about building lives and a community that reflects the love and truth of Jesus Christ. Forever Covenant reminds us of God’s faithfulness and the call to remain faithful to our mission and vision. Together, we can further Covenant Day’s history of excellence and deepen our commitment to transforming hearts and minds for the glory of Jesus Christ, leaving a lasting legacy.

The FOREVER COVENANT campaign is a testament to the incredible growth across our school and the blessings God continues to provide. It will elevate our athletic programs and strengthen our entire community, fostering unity, excellence, and faith in action.

Together, we're building a foundation for future generations to thrive on and off the field.”

Director Blake Van Der Schaaf

MISSION & VISION

TRANSFORMING HEARTS AND MINDS FOR THE GLORY OF JESUS CHRIST

The mission of Covenant Day is to assist the Christian family by providing an education marked by a biblical worldview and academic excellence so that students are equipped to be salt and light for God’s glory. Whether in the classroom, on the field, or in the spotlight, we are committed to our vision of transforming hearts and minds for the glory of Jesus Christ by fostering:

EXCELLENCE

MENTORSHIP

PARTNERSHIP

DISCIPLESHIP SERVICE

At Covenant Day, three core values guide our conduct, strengthen our commitments, and shape our culture.

BIBLICAL TRUTH • CHRIST-CENTERED COMMUNITY • WISDOM FOR KINGDOM LIVING

Through the years A HISTORY OF GENEROSITY

Since opening our doors in 1989, Covenant Day families have generously shared their time, talents, prayers, and financial gifts to support our mission. We are profoundly grateful for the supporters who have made Covenant Day a philanthropic priority over the years by investing in our mission, students, and teachers. God has abundantly blessed their faithfulness, and we are filled with anticipation for all He has in store for Covenant Day in the years to come.

Lions Theater addition built in the Wilcox C Building

first high school opened (current middle school)

Addition to the DeLapp Dining Hall (formerly Fireplace Room) and academic resources suite in the Wilcox C Building

With the blessing and generosity of Christ Covenant Church and our founding families, Covenant Day opened its doors with classes in the B Building

Wilcox C Building was built as the first middle school

First development at Warner Park named in memory of Anne Warner, Covenant Day’s first athletic director

Tennis courts constructed at the corner of Covenant Church Lane and Hwy 51

The

First Butterfly Garden planted behind the A Building

Through generous giving to the Legacy campaign, the current high school building opened

New lower school playground equipment was installed on the current playground

Innovate 2020 campaign was launched to provide tuition assistance during COVID Introduction of the Lions Fund

Construction of new Worship and Choir Room addition to Wilcox C Building

Forever Covenant campaign phase 1 Warner Park

Warner Park upgrades made, including baseball, soccer, and practice fields. Addition of tennis court pavilion

With gifts from the Race to Raise campaign and other donors, Covenant Field/ Davis Track opened

The flag football program at CDS has been an incredibly fun and uplifting experience, giving my sons confidence as they learn new skills and teamwork. The high school students running the program have been exceptional role models. Their encouragement and a fun, supportive environment have made the program a highlight of the school year, fostering not only athletic growth but also a sense of community.

Providing a space for a student section and parents to cheer brings life to the game and gets everyone into it. It helps with performance on the field and motivates players. It brings an energy to the game so we can show the other teams who Covenant Day is through Christ-centered athletics.

9th Grade Student Carson Massey

Covenant Day has taught me how to do athletics without any fear, knowing at the end of the day, win or lose, I am going home to my family, and no matter what, the Lord is by my side.

WHY WARNER PARK ?

Community is at the heart of Covenant Day School, and Warner Park is one of the few spaces where students from JK through 12th grade come together. Planned improvements to this area will strengthen opportunities for our community to flourish.

Athletics at Covenant Day have grown tremendously, with 80% of students now participating in at least one sport. While we are proud of their achievements, our current facilities can no longer meet the demands of our programs. Warner Park lacks a track and field facility, locker rooms, and adequate parking access. Restrooms and concessions are undersized, and temporary bleachers are not a sustainable solution. These limitations fall short of reflecting the excellence we expect for our athletes and guests.

Warner Park has generated strong enthusiasm within our community and, most importantly, aligns with our current fundraising capacity. With our desire to avoid debt, the option of a phased approach allows us to complete each stage as funding becomes available. It's time to address these needs to ensure our spaces match the caliber of our programs and the community we serve.

Questions? Scan the QR code to watch Head of School Mark Helmer and Capital Campaign Chair, Board Trustee, and CDS parent Brandon Ruby share how the Board of Trustees chose Warner Park as our capital campaign project.

Community is something that CDS is known for and sets us apart. Warner Park is one of the few places on campus where JK-12 can consistently join together. The additions and improvements to our facilities will add to already vibrant opportunities for our Covenant Day community to flourish.

With the numerous events hosted in this space, we will continue to value spending time together and supporting our great school. Our athletics, fine arts, and extracurriculars are essential in the holistic education process, so the opportunity to improve one of our facilities is exciting and motivating.

The relationships we develop, the holistic development of our students, the opportunities to host consistent events, and the coming together of our JK-12 community are essential as we seek to transform hearts and minds for Jesus Christ.”

High School Principal Mike Freace

PHASE 1 WARNER PARK PROJECTS

($10.5M)

FIELD HOUSE

EIGHT-LANE TRACK

FIELD EVENT AMENITIES

Phase 1 of F orever Covenant will elevate our athletics offerings, increase safety measures, and allow for greater use by our entire community.

CONCESSIONS

RESTROOMS PAVED PARKING

STADIUM SEATING

PRESS BOX

ASSOCIATED FIELD REPAIRS

SITEWORK

EARTHWORK

A field house will increase safety with a place to shelter from severe weather and provide much-needed locker rooms for home and away teams.

An eight-lane track along with field event amenities at Warner Park will meet our fundamental track and field needs, enabling us to host and compete against other schools while providing Covenant Day’s athletes an excellent facility for training and competition.

A centrally located concessions stand and expanded restroom facilities will accommodate large crowds, offering convenient access to refreshments and ensuring our facility meets code requirements.

Finally, paved parking and stadium seating will enhance the overall experience, ensuring we can accommodate everyone attending our games and events, and making our facilities more accessible and family-friendly.

With 100% engagement from our community, these advancements will improve our campus, increase safety, and reinforce our dedication to fostering a vibrant, united community rooted in authentic faith.

FIELD HOUSE & EIGHT-LANE TRACK

All renderings are conceptual and subject to change.

FIELD HOUSE

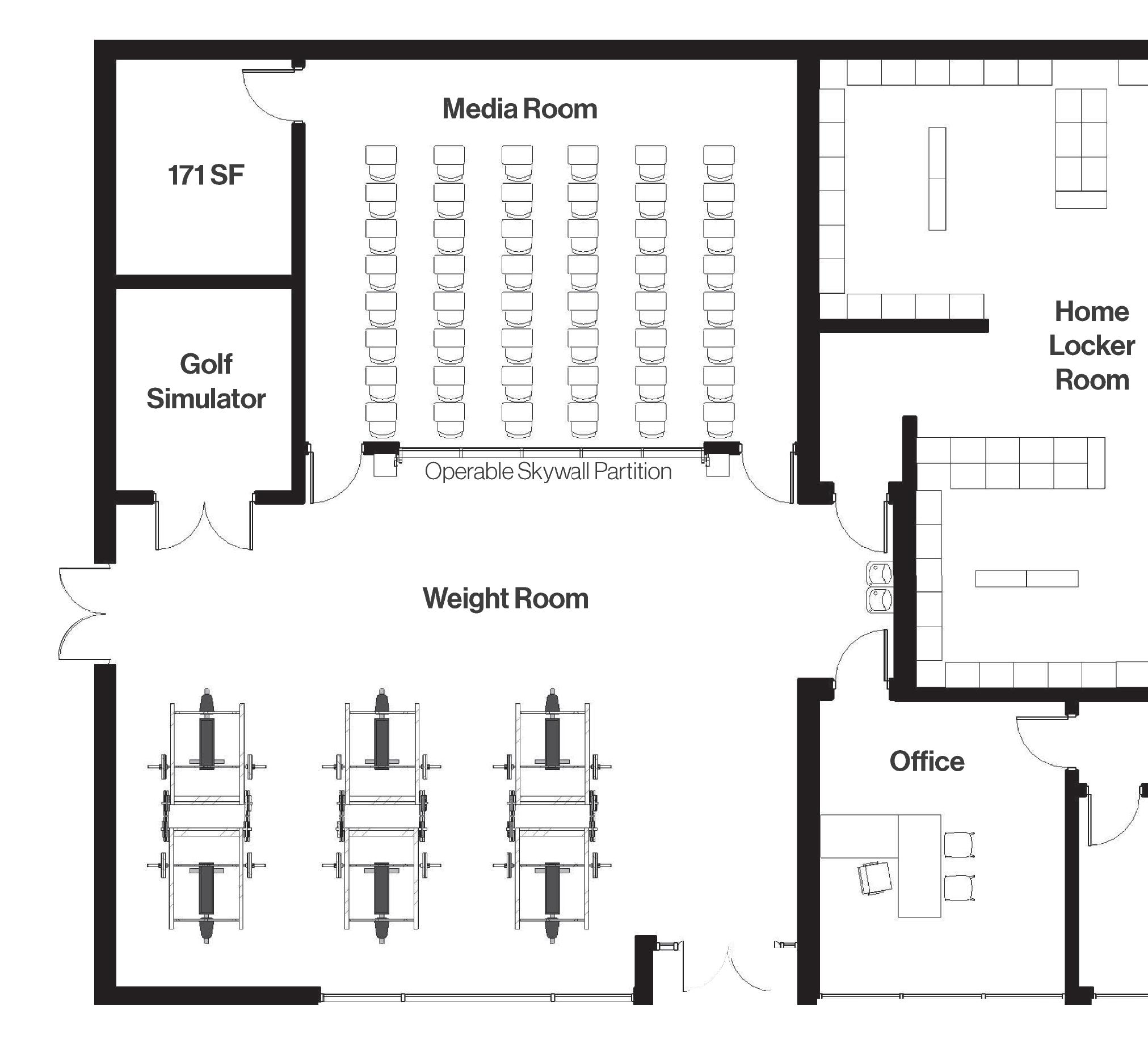
• Field house with locker rooms for home and away teams, training and first aid room, changing room for officials, office for coaches, and a laundry facility

• Potential weight and media room in the field house dependent on meeting or exceeding the fundraising goal

EIGHT-LANE TRACK & FIELD EVENT AMENITIES

• Eight-lane 400-meter track with field event amenities

FIELD HOUSE FLOOR PLAN

All renderings are conceptual and subject to change.

CONCESSION STAND & RESTROOMS

All renderings are conceptual and subject to change.

CONCESSION STAND & RESTROOMS

• Centrally located concession stand and restrooms to appropriately accommodate spectators

CONCESSION STAND & RESTROOMS FLOOR PLAN

All renderings are conceptual and subject to change.

RESTROOMS & STORAGE

CONCESSION STAND

PAVED PARKING, STADIUM SEATING, PRESS BOX, FIELD REPAIRS, SITEWORK, EARTHWORK

All renderings are conceptual and subject to change.

PAVED PARKING, STADIUM SEATING, PRESS BOX, FIELD REPAIRS, SITEWORK, & EARTHWORK

• Permanent bleachers on the home side and current temporary bleachers moving to the guest side with total seating for approximately 1,750

• Potential upgrades to irrigation and lighting system on the main soccer and football competition field

"When we enrolled our son at CDS four and a half years ago, we expected an excellent education rooted in a biblical worldview. What we didn’t anticipate was the incredible community we were stepping into—a community that has been an immeasurable blessing to our family. I was so moved by it that, just months later, I felt called to join this organization and contribute to its mission.

I can confidently say that my children are truly known at this school. They are poured into daily—academically and personally—and are genuinely loved. From the very first day, when Mrs. Carter wrapped her arms around Pearce to calm his nerves about starting a new school, to the high school students enthusiastically cheering for my boys as they coach their flag football team, our kids have always been seen, valued, and embraced. This school is more than an education; it’s a family.

When we think about giving, it’s easy to focus solely on the numbers, but our contributions represent much more than a dollar amount. They provide mentorship, discipleship, and fellowship opportunities that extend beyond the classroom. They help foster community, strengthen relationships, and create a welcoming space where alums can return and reconnect.

Bringing this project to life will require all of us working together. I humbly invite you to join me in prayerfully considering a gift. Beyond the figures on the gift chart, I encourage you to envision the profound and lasting impact this project will create. These facilities are more than just buildings—they are investments in the lives of today’s students and generations to come. Together, we can shape lives, strengthen connections, and build a legacy rooted in growth, community, and faith.”

GIVING CHART YOUR PART

We invite you to prayerfully consider how you might use the blessings you’ve received to help us reach our $10.5M fundraising goal. Every gift, regardless of the amount, makes a meaningful impact, and we are deeply grateful for the support of each donor. While the exact path to achieving our goal may be uncertain, experience and wisdom tell us that

contributions like those shown in the chart below are essential to the success of this campaign. Donors may pledge a gift amount and take up to three years to fulfill their commitment. Gifts are tax-deductible. When you are ready to make your commitment, scan the QR code or visit covenantday.org/ forevercovenant.

GIFT AMOUNT OVER THREE YEARS

There are countless reasons to be excited about Forever Covenant and the development of Warner Park, but at the top of the list is the opportunity to provide our students with the appropriate facilities they need. The addition of Covenant Field/Davis Track at the middle school has already been a tremendous blessing, but we are limited in that we cannot host meets or large crowds. Hosting a track meet at Covenant Day and being salt and light in the community through that experience would be truly incredible.

The potential for expanded community events is equally exciting. From personal experience, my extended family didn't live nearby when we were raising our children, so our church and school became our surrogate families. Those people, including many from Covenant Day, helped me raise my children because it truly takes a village! Transforming hearts and minds for the glory of Jesus Christ happens through intentional relationships. Having a space where our CDS family can gather, connect, and build community as believers will benefit every student and family— not just athletes.”

Middle School Principal Donna

The clear message we heard from our families during the recent feasibility study is that our students feel known, loved, cared for, and safe—and they’re receiving an excellent education on top of that! When all of our departments thrive, it strengthens the entire Covenant Day community. In the same way, improvements to Warner Park and our athletic facilities will benefit everyone at Covenant Day. Covenant Day is God’s school, and we are called to be faithful stewards of the resources He provides. At this moment, God has placed it on the hearts of our leadership and community to focus their resources on elevating Warner Park to a standard of excellence. A strong and thriving athletics program enriches our entire school, and this is where our attention is needed now.

Lower School Principal Mike Wiersma

On Friday nights, when families gather to watch a football or a soccer game at Warner Park, the sense of community extends far beyond the competition on the field. It’s a time for connection, where students, parents, and friends come together to enjoy fellowship and support one another. These moments reflect what we strive to teach daily in the classroom: honoring God happens both on and off the field. Teachers work with students daily, whether on the playground or in the classroom, guiding them to build strong relationships and treat one another with kindness and respect.

Gatherings at Warner Park offer older students a chance to model lessons of sportsmanship and Christ-like character meaningfully. With a new track and expanded bleacher seating, the community will have even more opportunities to gather, cheer, and grow together. One of the most beautiful traditions at Covenant Day is the prayer huddles before games. I’ve captured countless photos of students joined together in prayer, lifting each other up, and inviting God into their efforts. With the new track, these moments will carry even more significance as Covenant Day will be able to host home track meets. It will be a gift to watch our athletes run on a track they can truly call their own while continuing to build community and deepen relationships through the shared experiences of teamwork, competition, and faith.”

3rd Grade Teacher Carol Mace

“From my perspective, we don't retreat from the world; instead, we confront the same issues already confronting our students and equip them to have a defense for their faith and the hope they have in Christ.”

"Warner Park will provide an opportunity to foster God-given talents at CDS, spread the Gospel, and deepen relationships across grades, families, and generations."

CDS Parent Emily Massey

"Having been a part of this incredible community for over 25 years as a parent and staff member, I'm excited about what Warner Park will bring. Improvements to Warner Park will not only elevate our sports programs but also strengthen the bonds within our community, creating lasting memories through teamwork and competition!"

Associate Head of School Jason Klohr

"The Covenant Day soccer program has helped me put my identity in Christ, not the game. I used to put my identity in how I performed in soccer. My coach always said, 'Play with freedom, knowing that your identity is in Christ, not in the game or how you perform. Whatever you do, do it for Christ.' Covenant Day taught me that I need to put my identity in Him. It's not in the game or how we perform, but it's to glorify Him with the talents He gave us."

Class of 2024 Mario Montes

I think the community we experienced as CDS parents has only increased as I’ve become a faculty member. It has been great to engage with parents and see their desire to partner with faculty to help their children grow.

High School Bible Teacher Jason Haas

FAQ

WHAT IS THE CAMPAIGN GOAL?

$10.5 million is the total campaign goal. We will need 100% engagement from our community to get there!

WHAT ARE THE BUILDING PHASES OF THIS CAMPAIGN?

Our primary objective is to secure sufficient funding to complete the entire campaign in one phase. However, if phased implementation becomes necessary, the campaign will proceed in the following sequence to comply with the requirements of the Town of Matthews.

Phase 1: Field House

Phase 2: Eight-Lane Track and Field Event Amenities

Phase 3: Concession Stand and Restrooms, Paved Parking, *Stadium Seating, Press Box, Associated Field Repairs, Sitework, and Earthwork

*To build the stadium seating, we must add additional restrooms and paved parking.

WHAT IS THE TIMELINE FOR FUNDRAISING AND CONSTRUCTION TO BEGIN?

Once permits are finalized, construction will require an estimated nine months. With everything aligning as planned, including fundraising, Warner Park is targeted to be ready for use by the fall of 2027.

HOW WILL CONSTRUCTION AFFECT SPORTS?

During the construction of Warner Park, temporarily relocating some sports practices and games may be necessary. Rest assured, we are committed to implementing a well-organized plan to minimize disruptions. We will coordinate with nearby facilities and schools to ensure our athletes can continue their activities seamlessly. While sports may look slightly different than our coaches and families are accustomed to, the programs will continue without interruption.

WHY DO WE NEED A TRACK?

While we are thrilled to have Covenant Field/Davis Track at the middle school, it's primary purpose is to be a fitness facility used by the middle school from dawn until dusk. It is not a regulation track and cannot host official meets.

HOW MANY SPECTATORS WILL THE NEW STADIUM SEAT?

Including the home and guest side, the total capacity will be approximately 1,750 spectators.

WHAT IS THE DIFFERENCE BETWEEN THE LIONS FUND AND FOREVER COVENANT?

The Lions Fund is our annual fund that supports projects as they arise throughout the school year. The Forever Covenant capital campaign is a special fundraising effort to build the necessary infrastructure to meet the growth of our programs. In short, the annual fund sustains the school’s present, while a capital campaign invests in its future.

WILL WE TAKE ON ADDITIONAL DEBT FOR THESE PROJECTS?

Our desire is to take on little to no debt. Warner Park was the clear choice for our next capital campaign for several key reasons. Two of the most compelling are:

• Among the projects generating enthusiasm within our community, Warner Park best aligns with our current fundraising capacity.

• Given our commitment to avoiding debt, this project allows for a phased approach, enabling us to complete portions as funding becomes available.

WHAT ABOUT OUR EXISTING DEBT? WHAT IS THE PLAN FOR PAYING

IT OFF?

Our debt is roughly $5 million, most of which is from the high school Legacy campaign.

The plan for eliminating debt is as follows:

• CDS services its debt through its operating budget.

• Our debt service represents a little over 2% of the total operating budget.

• The CDS operating budget is funded 98% by net tuition and other school revenue.

DO I HAVE TO MAKE A GIFT IN FULL, OR WILL DONORS BE ALLOWED TO MAKE COMMITMENTS AND FULFILL THEIR GIFTS OVER TIME?

Donors may pledge a gift amount and take up to three years to fulfill their commitment.

MAY I CONTRIBUTE GIFTS OTHER THAN CASH?

Yes. Gifts of appreciated stocks and bonds, donor-advised funds, life insurance, and charitable trusts are accepted with gratitude. Please consult your tax professional for more information on the benefits of different methods of giving. We are also happy to answer questions.

ARE GIFTS TAX-DEDUCTIBLE?

Gifts in any amount are deeply appreciated and are taxdeductible to the full extent of the law.

HOW WILL DONORS BE RECOGNIZED?

Donor names will be acknowledged in the final campaign report. Additional opportunities for recognition will be announced throughout the campaign.

DOES THE CAMPAIGN INCLUDE NAMING OPPORTUNITIES?

Yes. Several areas are ideal for honoring or memorializing family members, friends, admired teachers, or loved ones. The development office can work with you on naming opportunities. Please contact Jessica Crumpton at jcrumpton@covenantday.org.

HOW DO I MAKE A COMMITMENT?

When you are ready to make a commitment, visit covenantday.org/forevercovenant or scan the QR code.

Turn static files into dynamic content formats.

Create a flipbook
Issuu converts static files into: digital portfolios, online yearbooks, online catalogs, digital photo albums and more. Sign up and create your flipbook.
Forever Covenant Book by Covenant Day School - Issuu