Envisioning Spaces

Page 1

ENVISIONING SPACES

Ana Coutinho M Arch, IAD

ENVISIONING SPACES

Ana Coutinho M Arch, IAD

ENVISIONING SPACES

This portfolio represents the architectural spaces that I have envisioned, and how I delivered each project in a functional and unique way.

Coutinho,Ana

SPIN

LOPEHA Community Center 28/29 50 JONES High Rise Residential 36/37

TABLE OF CONTENTS

A Modern Art Museum in Berlin 06/07 TWINE A Hotel in Oakland 20/21 3535 NORTH Airbnb Staging 72/73

DULY Medical Center 48/49 OCEANIA Miami Apartment Renovation 56/57

ARH 608: Advanced Design Studio II Project: Modern Art Museum Instructors: Mark Mückenheim/Maria Paz Location: Berlin, Germany Semester: Fall 2021 Software: Revit Enscape AutoCad

SPIN A Modern Art Museum in Berlin

The objective is to create a modern art museum in the heart of culture in the city of Berlin. The museum building will became a symbol on Berlin area. The building design was developed to make the public an easy way to approach it with the way the circu lation was designed, not just inside it but outside too. All public goes to the center of it after the exhibitions spaces, creating a big gathering. The design of the building also creates gaps on it so from all sides it is possible to approach the main lobby.

06/07 ANA CAROLINA COUTINHO M ARCH, IAD SELECTED WORKS PROJECT 01 SPIN
Architectural Model Pictures 01 - 04 3D Site Plan 05 01 02 03 04
08/09 ANA CAROLINA COUTINHO M ARCH, IAD SELECTED WORKS PROJECT 01 SPIN 05

Interior 3D view at Exhibition 01

Interior 3D, 1st Floor 02

Interior 3D, 2nd Floor 03

01
10/11 ANA CAROLINA COUTINHO M ARCH, IAD SELECTED WORKS PROJECT 01 SPIN 02 03
01 02 Section A 01 Elevation A 02 Section B 03 Elevation B 04
12/13 ANA CAROLINA COUTINHO M ARCH, IAD SELECTED WORKS PROJECT 01 SPIN 03 04
Site 3D Model 03
02
1st Floor Plan 01 Mezzanine Floor Plan 02
03
14/15 ANA CAROLINA COUTINHO M ARCH, IAD SELECTED WORKS PROJECT 01 SPIN 03
16/17 ANA CAROLINA COUTINHO M ARCH, IAD SELECTED WORKS PROJECT 01 SPIN
01
18/19 ANA CAROLINA COUTINHO M ARCH, IAD SELECTED WORKS PROJECT 01 SPIN 01 3D Site View 02 Wall Section Colored 02

IAD 613: Studio III

Project: Hotel Interior Design

Instructor: Kathleen Valkuchak Location: Oakland, California Semeter: Spring 2019 Software: Revit Enscape Photoshop

TWINE Hotel in Oakland

Located in 1540 Broadway St. in the city of Oakland, California. The objective of the project is to blend and connect art and with people. Downtown Oakland has an en vironment bustling with interface culture and art, and the hotel will bring this experi ence to the guest. Feel emotion and experience was the starting point of my concept for the Hotel. A hotel is a place where people comes from everywhere and will stay for few nights with different propose of the visit. No matter the reasons behind the visit , everyone bring a different background, which will create a connection build an atmosphere. Oakland art is expressive in the city with theaters, galleries, art murals, so my idea is bring this through the hotel. My concept will blend all those aspects people and build ing + Oakland intertwining them, creating a unique experience at the hotel, where people will enjoy and want stay more interacting with all.

20/21 ANA CAROLINA COUTINHO M ARCH, IAD SELECTED WORKS PROJECT 02 TWINE

FLUIDITY

CONNECTION

01 Project Concept 01 Builing Rendered Section 02
SIMPLICITY
TEXTURE RELATIONSHIP
22/23 ANA CAROLINA COUTINHO M ARCH, IAD SELECTED WORKS PROJECT 02 TWINE 02
02 01
01 Lobby Rendered Section 02 Lobby Rendered Section 03 2nd Floor Rendered Floor Plan 04 2nd Floor Rendered RCP
24/25 ANA CAROLINA COUTINHO M ARCH, IAD SELECTED WORKS PROJECT 02 TWINE 04 03

Guest Room Rendered Elevation

Guest Room 3D Rendering 01
02
Guest Room Rendered Elevation 03 02 03
01 26/27 ANA CAROLINA COUTINHO M ARCH, IAD SELECTED WORKS PROJECT 02 TWINE
Image: Pinterest

IAD 610: Studio II

Project: Community Center Instructor: Serena Zenello

Location: Portland, Oregon Semeter: Fall 2018

Software: Revit AutoCAD Photoshop

LOPEHA Community Center

The proposal of the community center is to create an environment where everyone of the neighborhood can go to have the classes offered or stay at the coffee shop area, the propose of the building is to be welcoming to all.

The community center is a place where people wants to feel that they are in their HOME. Refugees do not have a home, so it is hard for them feel safe. Home is synonymous shelter and relates to safety. People that are running away from their country need feel that they are safe. Refugees migrates as birds, so the DOVE bird is the symbol of the community center.

Dove birds are symbol of love, peace and harmony, which will be applied in the center name -LOPEHA (LOVE,PEACE and HARMONY). Attached to the community center building, there is a residence area for those people which will need a house for a while when they arrived in U.S as a refugee. The objective is to create a comfortable home for a family with kids. The units are the same size with neutral colors and a balcony. The adults could work as volunteer in the community center while their kids are learning in one of the classes. The building architecture will explore the relationship between outside nature and the building with fluid lines and organic geometries in the facade has the inspiration of waves sound, using a mix of traditional and contemporary material as wood and aluminum.

28/29 ANA CAROLINA COUTINHO M ARCH, IAD SELECTED WORKS PROJECT 03 LOPEHA

SHAPE

SOUND

01 01
SIMETRY All images: Pinterest
30/31 ANA CAROLINA COUTINHO M ARCH, IAD SELECTED WORKS PROJECT 03 LOPEHA
DN STAIR B BEDROOM 163 SF BEDROOM 153 SF BEDROOM
DN STAIR B BEDROOM 163 SF BEDROOM
NORTH
NORTH
NORTH

Interior 3D view at Lobby 01

Floor Plan, 1st Floor 02

Floor Plan,, 2nd Floor 03

01 01
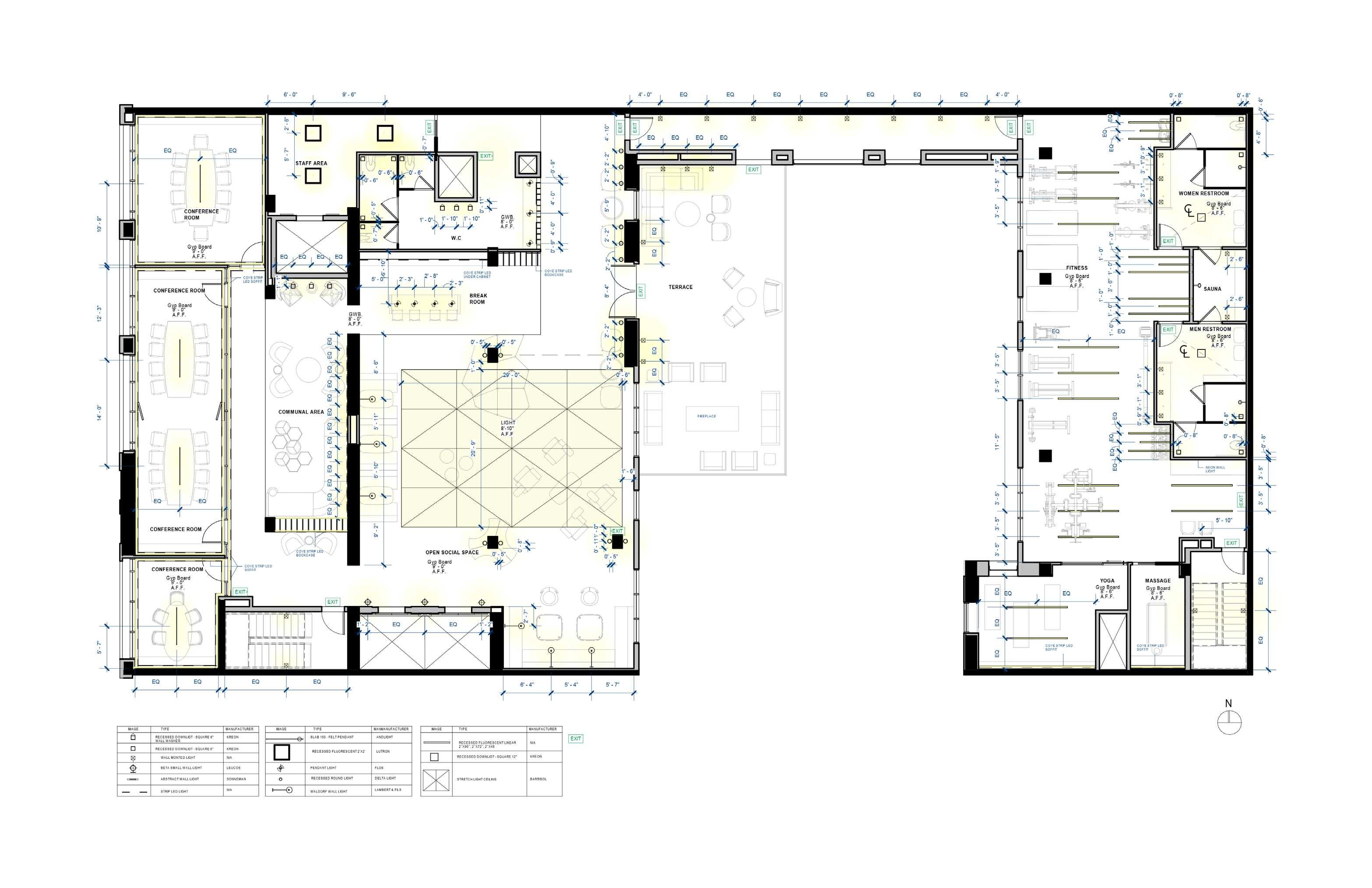
32/33 ANA CAROLINA COUTINHO M ARCH, IAD SELECTED WORKS PROJECT 03 LOPEHA UP 1 A3.01 UP UP UP RESIDENTIA L STAIR ELEVATOR UP STAIR B STAIR A ENTRANCE ELEVATOR 653 SF COMMUNITY ROOM 75 SF BATH. 450 SF CLASSROOM 177 SF BEDROOM 149 SF BEDROOM 147 SF BEDROOM 79 SF BATH. 55 SF LAUNDRY 1174 SF CAFE 215 SF WOMEN W.C 300 SF LIVING 301 SF KITCHEN 158 SF DINING ENTRANCE 40 SF STOR. 207 SF MEN W.C 400 SF COMPUTER LAB 21 SF J.C 37 SF MECH. 448 SF CLASSROOM 821 SF LOBBY 8' - 6" 3' 0" F01 F02 4' 0" 4' - 2" 3' 6" F06X8 F04 X 10 F05 X 7 F03 4' 0" 3' - 5" 3' 8" 488 SF PATIO STORAGE STORAGE F17 F17 F17 X 14 F22 F23 F24 X 6 F25 F17 F30 X 14 F10 X 6 F26 F26 F27 X8 F27 X8 F50X16 F50 X16 F13 F29 F31 F32 F33 X 6 F49 F36 F36 F36 F35 X 2 F34 X 2 F37 F38 F39 F40 X 6 F41 F42 F43 F44 F45 F46 X 2 F36 F47 F48 X 4 4' 4" F51 X 12 F52 X 12 F53 X 3 F54 X 10 2 A3.01 4' 6" N N 1 A3.01 DN DN STAIR A 182 SF MEN W.C 214 SF WOMEN W.C 520 SF CLASSROOM 120 SF CONSULTATION ROOM 120 SF PRIV. OFFICE 120 SF PRIV. OFFICE 123 SF CONSULTATION ROOM OPEN TO BELOW 23 SF J.C ELEVATOR 23 SF MEC. 27 SF STOR. 709 SF LIBRARY/LOUNGE 733 SF RECEPTION 452 SF OPEN OFFICE 3' - 6" F07 X 12 F08 X 02 F09 X 02 3' 3" 4' 0" F10 X 6 F11 X 20 F12 F12 X 02 F03 X 02 F13 F14 X 04 F15 X 8 F16 F17 F17 F18 X 3 F18 X 2 F19 X 2 F19X4 F19 X 4 F20X4 4' 8" F03 F22 F21 X8 F26 F28 X 24 N STAIR B 4' 0" 7' 0" 3' - 0" SITE PLAN N.I.S HA 2 LEVEL - FLOOR PLAN SCALE: 1/8’’ = 1’-0’’ 1 LEVEL - FLOOR PLAN SCALE: 1/8’’ = 1’-0’’ A.D.A parking community center entrance fireplacearea access to outdoor O1 O1 O2 O3 03 03 02
01
34/35 ANA CAROLINA COUTINHO M ARCH, IAD SELECTED WORKS PROJECT 03 LOPEHA 02 01 Colored Section 02 Builing Exterior Rendering 03 Library Rendereing 03
All photos: 50jones.com

Solomon Cordwell Buenz Project: Multi-family High Rise Building Amenities and apart ments staging Location: San Francisco Semester: Spring 2019 Software: Revit Enscape Photoshop

50 JONES Multifamily Residential

50 Jones Street pulls from the historic context in which it resides. By creating mod ern expression in precast concrete while still blending and alluding to the scale of the masonry of surrounding buildings, this project acts as a critical piece in revitaliz-ing mid-market. It successfully adds to the landscape without overpowering the historic buildings that makes Market the r recognizable area it is. Although individual apartments imply separation between people, the success of 50 Jones relies on the communal spaces developed to encourage interaction and a sense of community for the tenants; creating a neighborhood within a single build ing. The project team ( SCB Interiors Studio) was to have refined finishes and relaxing amenities to the residents. With a collective kitchen, landscaped courtyard and plenty of collaborative spaces, people are able to create relationships and experiences that are unique to this building.

36/37 ANA CAROLINA COUTINHO M ARCH, IAD SELECTED WORKS PROJECT 04 50 JONES
01
Amenities 01
Lounge 3D Rendering, Amenities 02 Cafe Lounge, Amenities 03
Lobby,
Cafe
03 38/39 ANA CAROLINA COUTINHO M ARCH, IAD SELECTED WORKS PROJECT 04 50 JONES
02
2 B&B Italia I Surface Side Table 3 B&B Italia I Richard Sofa 1 House Doctor I Club Double Wall 4 RH I Suar 48’’ Coffee Table 5 B&B Italia I Up 50 Armchair 6 RH I Bamileke King Side Table 7 Arteriors Home I Daryl Side Table
Furniture Selection, TV Lounge Area
40/41 ANA CAROLINA COUTINHO M ARCH, IAD SELECTED WORKS PROJECT 04 50 JONES 1 1 1 1 1 1 1
01 02 03

Outdoor Furniture 01 - 03 Amenities Section 04

42/43 ANA CAROLINA COUTINHO M ARCH, IAD SELECTED WORKS PROJECT 04 50 JONES 04
01
44/45 ANA CAROLINA COUTINHO M ARCH, IAD SELECTED WORKS PROJECT 04 50 JONES 03 02 01 Unit S7 Studio Floor Plan 02 Unit S7 Studio 03 Unit S7 Studio
1 1 1 1 1 1 1
46/47 ANA CAROLINA COUTINHO M ARCH, IAD SELECTED WORKS PROJECT 04 50 JONES 2 Crate and Barrel I Camille Taupe Chair 3 West Elm I Urban Chaise Lounge Sofa 1 Crate and Barrel I Penn Patchwork Table 5 West Elm I Drum Storage Coffee Table 6 Crate and Barrel I Sienna C Side Table 7 Urban Outfitters I Ivy Media Console 4 West Elm Bower Led Floor Lamp Furniture Selection, One Bedroom Apartment

Solomon Cordwell Buenz Project: Duly Healthcare Location: Chicago Area Semester: Summer 2021 Software: Revit Enscape Photoshop

DULY Medical Center

With the continued growth and evolution of DuPage Medical Group in the last several years, the Chicago area organization a new name designed to better reflect its reimag ined model of care delivery focused on the relation฀ship between patients and their physicians and care teams. The objective of the project was to create a new standard interior design for the next opening locations and implement the new redesign created by SCB Interiors in the ex isting locations. The study was to personalize the interiors space to be inviting while maintaining the confidentiality space where the patient can trust the doctor. The ma terials and colors were selected to bring peaceful and relaxing moment for the patient, the blue color from the new ogo gives a pop for the neutral colors in the building.

48/49 ANA CAROLINA COUTINHO M ARCH, IAD SELECTED WORKS PROJECT 05 DULY

Welcome 01 Huddle 02 Phone Room 03 Nurses Station 04 Health Room 05 Care Room 06 Flexroom 07 Lab 08 Radiology 09 Restroom 10 Storage 11 Break Room 12 Hospitality Bar 13

Floor Plan 02 01
Rendered Floor Plan Axon 01
50/51 ANA CAROLINA COUTINHO M ARCH, IAD SELECTED WORKS PROJECT 05 DULY 1 2 3 4 5 5 6 6 6 5 7 6 8 9 10 10 11 12 13 02
52/53 ANA CAROLINA COUTINHO M ARCH, IAD SELECTED WORKS PROJECT 05 DULY
02
01
54/55 ANA CAROLINA COUTINHO M ARCH, IAD SELECTED WORKS PROJECT 05 DULY 01 Rendered Healthy Room Axon 02 Rendered Care Room Axon 03 Hospitality Alcove 03
All photos: Elianepinheiro.com

Eliane Pinheiro Design Firm

Project: Single Family Apartment Renovation Location: Miami Semester: Spring 2017 Software: AutoCAD

OCEANIA Miami Apartment Renovation

This was work completed during my five years of professional experience in Brazil at Eliane Pinheiro’s office for Brazilian clients who purchased a vacation home in Miami and wanted to bring their home culture to the interiors. Oceania was a renovation of two apartment units in the same building for two clients who are sisters. The goal was to provide a cozy, neutral, practical, and timeless feeling to their new home.

56/57 ANA CAROLINA COUTINHO M ARCH, IAD SELECTED WORKS PROJECT 06 OCEANIA
01 Dining Area, Oceania 01 02 Dining/Kitchen, Oceania 01 01 02
58/59 ANA CAROLINA COUTINHO M ARCH, IAD SELECTED WORKS PROJECT 06 OCEANIA
02
01

01 Balcony, Oceania 01

02 Balcony, Oceania 01

03 Floor Plan, Oceania 01

03

60/61 ANA CAROLINA COUTINHO M ARCH, IAD SELECTED WORKS PROJECT 06 OCEANIA
01 02

01

Master Bedroom, Oceania 01 02

Master Bedroom, Oceania 02 03

Master Bathroom, Oceania 02

62/63 ANA CAROLINA COUTINHO M ARCH, IAD SELECTED WORKS PROJECT 06 OCEANIA
03
01 02

Powder Room Drawing, Oceania 01 01

Powder Room Drawing, Oceania 01 02 Powder Room, Oceania 01 03 03

64/65 ANA CAROLINA COUTINHO M ARCH, IAD SELECTED WORKS PROJECT 06 OCEANIA
66/67 ANA CAROLINA COUTINHO M ARCH, IAD SELECTED WORKS PROJECT 06 OCEANIA

Powder Room, Oceania 02 01

Kitchen/Dining, Oceania 02 02

01 02
68/69 ANA CAROLINA COUTINHO M ARCH, IAD SELECTED WORKS PROJECT 06 OCEANIA

Master Bathroom Elevation, Oceania 01 01

Master Bathroom, Oceania 01 02

01 02
70/71 ANA CAROLINA COUTINHO M.A IAD and M.Arrh SELECTED WORKS PROJECT 06 OCEANIA
All
photos by: Megan Ory Photograpy

Professional Work (Free Lance )

Project: Airbnb Furniture Staging Location: Chicago Semester: Spring 2022

3535 NORTH Airbnb Staging

This project, located in Chicago, was designed for a client that leases his apart ments as Airbnb spaces to tourists who visit the city. There are two apartment units with the same layout and finishes, and the goal is to create an impact on guests when they are looking for a place to stay. The furniture selection is based on the short-term leasing needs of the client. With the budget already set , I purchased the furniture and accessories and staged each space for future rentals. Art work was one of the must-haves in the units, so it pops in the pictures.

72/73 ANA CAROLINA COUTINHO M.A IAD and M.Arrh SELECTED WORKS PROJECT 06 OCEANIA

Living Room, Airbnb 01 01

Living Room, Airbnb 01 02

01
74/75 ANA CAROLINA COUTINHO M ARCH, IAD SELECTED WORKS PROJECT 07 3535 NORTH 02
01 02
01 , Airbnb 01 01
02, Airbnb 01 02
03, Airbnb 01 03
Bedroom
Bedroom
Bedroom
76/77 ANA CAROLINA COUTINHO M ARCH, IAD SELECTED WORKS PROJECT 07 3535 NORTH 03

01

Corridor, Airbnb 02

02 Corridor, Airbnb 02

01
78/79 ANA CAROLINA COUTINHO M ARCH, IAD SELECTED WORKS PROJECT 07 3535 NORTH 02

Living Room, Airbnb 02 01

Living Room, Airbnb 02 02

01
80/81 ANA CAROLINA COUTINHO M ARCH, IAD SELECTED WORKS PROJECT 07 3535 NORTH 02
01 Corridor, Airbnb 01 02 Master
Airbnb 02 01
Bedroom,
02 82/83 ANA CAROLINA COUTINHO M ARCH, IAD SELECTED WORKS PROJECT 07 3535 NORTH

I sincerely appreciate the almighty God for His graces, strength, suste nance, and above all, His faithfulness and love from the beginning of my academic life. His benevolence has made me excel and succeed in all my academic pursuits.

MY FAMILY

Thank you for encouraging me in all of my pursuits and inspiring me to follow my dreams; for your uncondi tional support and love; and for always believing in me, even from far away. Thank you to my husband, Álvaro, who is always by my side.

ACKNOWLEDGEMENTS

MY INSTRUCTORS

Thank you to all my instructors in the Schools of Architecture and Interior Architecture and Design at Academy of Art University for always being there when I needed the support, re viewing my progress constantly, and guiding me through my master’s de gree program. I would especially like to thank the instructors of my Studio classes Mark Mückenheim, Maria Paz, Peter Suen, Mark Myers Tom Collom and Kathleen Valkuchak.

MARY SCOTT AND JIM O’HARA

I would like to express my sincere gratitude to my MA Portfolio Seminar instructor, Mary Scott, for her patience and guidance on my portfolio book. It would never be as good without your help. I also want to thank Jim O’Hara for supporting Mary and helping me with his comments.

SCB

Thank for giving me my first internship opportunity in the U.S. and launching my job career. Since 2018, working in the San Francisco and Chicago offic es has been an amazing and inspiring experience.

84/85

PORTFOLIO Envisioning Spaces DESIGNER Ana Coutinho anacrccoutinho@gmail.com WEBSITE www.coutinhodesign.com

COLOPHON

SCHOOL Academy of Art University School of Architecture San Francisco COURSE GR 700 MA Portfolio Seminar Mary Scott COVER AdobeStock.com PRINTING Blurb.com

SOFTWARE InDesign Illustrator Photoshop AutoCAD Revit Enscape PHOTOGRAPHY Project 4: 50jones.com Project 5: Elianepinheiro.com Project 7: Megan Ory
86
TYPEFACE Gotham PAPER Mohawk Superfine, Eggshell Finish #100 text
COUTINHODESIGN.COM

Turn static files into dynamic content formats.

Create a flipbook
Issuu converts static files into: digital portfolios, online yearbooks, online catalogs, digital photo albums and more. Sign up and create your flipbook.