1. DESFIINTARE CORP C2, CONSTRUIRE LOCUINTA UNIFAMILIALA P+1E, REFAERE IMPREJMUIRE SI ORGANIZAREA EXECUTIEI LUCRARILOR.
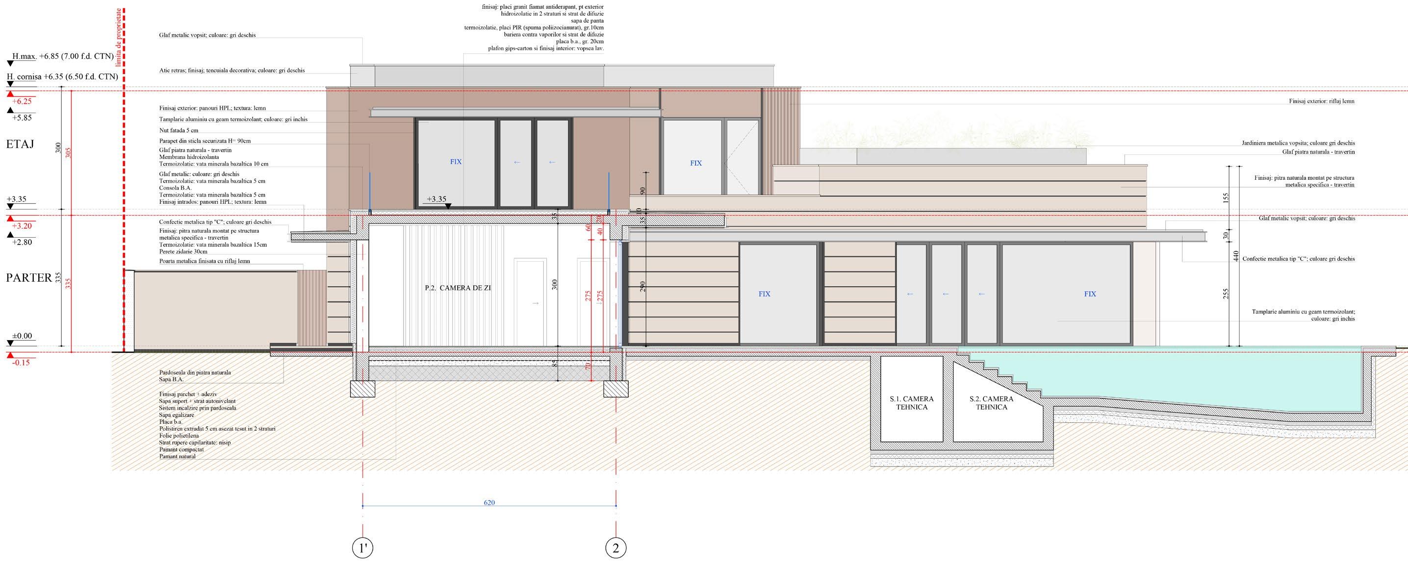
2. DESFIINTARE CORP C1, CONSTRUIRE FAMILIALA P+1E, PISCINA, REFAERE IMPREJMUIRE GANIZAREA LUCRARILOR DE EXECUTIE.


ANTEPROIECT
+ Oferta economica
+ Acceptarea ofertei si incheierea contractului de proiectare
+ Analiza contextului urbanistic, tehnic si legislativ
+ Documente si studii necesare
+ Specialisti necesari a fi implicati in elaborarea proiectului
+ Conceptul general de arhitectura
+ Tema detaliata
+ Releveu constructii existente
+ Proiectul definitiv prezentat la nivel schematic
PROIECTARE PENTRU AUTORIZARE-D.T.A.C.
+ Documente si studii necesare
+ Proiectare pentru autorizare
+ Depunerea documentatiilor, urmarirea stadiului de elaborare si ridicarea avizelor
+ Documentatie tehnica pentru Autorizarea Executarii lucrarilor de Demolare-D.T.A.D.
PROIECT TEHNIC
+ Proiectare tehnica
+ Coordonearea tehnica a proiectelor de specialitate
ASISTENTA IN EXECUTIE
+ Participarea la fazele determinante
+ Dispozitii de santier
+ Supravegherea modalitatii de executare a lucrarilor
ANTEPROIECT
+ Analiza contextului urbanistic, tehnic si
+ Documente si studii necesare
+ Specialisti necesari a fi implicati in elaborarea
+ Conceptul general de arhitectura
+ Tema detaliata
+ Releveu constructii existente
+ Proiectul definitiv prezentat la nivel schematic
PROIECTARE PENTRU AUTORIZARE-D.T.A.C.
+ Documente si studii necesare
+ Proiectare pentru autorizare
+ Depunerea documentatiilor, urmarirea elaborare si ridicarea avizelor
+ Documentatie tehnica pentru Autorizarea lucrarilor de Demolare-D.T.A.D.
PROIECT TEHNIC
+ Proiectare tehnica
+ Coordonearea tehnica a proiectelor de
3. TABARA PENTRU COPII SI SERVICII CONEXE, BRANSARE LA UTILITATI, IMPREJMUIRE TEREN SI ORGANIZAREA EXECUTIEI LUCRARILOR.

arhitectura

+ Proiect realizat in cadrul cu biroului de arhitectura Rubrick Architecture; 2023- Prezent
PROIECTARE PENTRU AUTORIZARE-D.T.A.C.
+ Documente si studii necesare
+ Proiectare pentru autorizare
+ Depunerea documentatiilor, urmarirea stadiului de elaborare si ridicarea avizelor
4. CONSTRUIRE IMOBIL DE LOCUINTE IN REGIM DE INALTIME S+P+2E+3 RETRAS, REFACERE IMPREJMUIRE, BRANSARE LA UTILITATI SI ORGANIZAREA EXECUTIEI IN INCINTA.

2019- 2021
PROIECTARE PENTRU AUTORIZARE-D.T.A.C.
+ Documente si studii necesare
+ Documentatie tehnica pentru Autorizarea Executarii lucrarilor de Demolare-D.T.A.D.
PROIECT TEHNIC
+ Proiectare tehnica
+ Coordonearea tehnica a proiectelor de specialitate
DETALII DE EXECUTIE
+ Proiectare de detaliu
+ Coordonarea de detaliu a proiectelor
ASISTENTA IN EXECUTIE
+ Participarea la fazele determinante
+ Dispozitii de santier
+ Supravegherea modalitatii de executare a lucrarilor
5. CONSTRUIRE ANSAMBLU CU FUNCTIUNI MIXTE CU REGIM DE ÎNALTIME MAXIM 2S+P+11+ET. TEHNIC, AMENAJARE STRADA DESCHISA CIRCULATIEI PUBLICE, AMENAJARI DE INCINTA, REALIZARE ÎMPREJMUIRE SI ORGANIZARE SANTIER, STR. BAICULUI 51.

+ Proiect realizat in cadrul stagiului de arhitectura in cadrul biroului de arhitectura ADEST ARCHITECTURE; 2018- 2022
ANTEPROIECT
+ Tema pentru ofertare
+ Oferta economica
+ Acceptarea ofertei si incheierea contractului de proiectare
+ Analiza contextului urbanistic, tehnic si legislativ
+ Documente si studii necesare
+ Specialisti necesari a fi implicati in elaborarea proiectului
+ Studiu de ilustrare comparativ (variante)
+ Conceptul general de arhitectura
+ Tema detaliata
+ Proiectul definitiv prezentat la nivel schematic
PROIECTARE PENTRU AUTORIZARE-D.T.A.C.
+ Documente si studii necesare
+ Proiectare pentru autorizare
+ Depunerea documentatiilor, urmarirea stadiului de elaborare si ridicarea avizelor
PROIECT TEHNIC
+ Proiectare tehnica
+ Coordonearea tehnica a proiectelor de specialitate






































































































































































































































