Portafolio de Arquitectura - Angela Correa

Page 1

1
2

Facultad de Arquitectura y Diseño Realizado por: Ángela María Correa Ceballos Cel: 3214963704 correac_am@javeriana.edu.co

3

Ángela María Correa Ceballos

4
Estudiante de arquitectura Pontificia Universidad Javeriana Idiomas Español Inglés Habilidades técnicas Sobre mi 28 de enero, 2002 Bogotá, Colombia Datos de contacto 3214963704 +573214963704 angel4mari4@gmail.com m4r_pics “La arquitectura es cuestión de armonías, una pura creación del espíritu”. - Le Corbusier
5 Comunicación Trabajo en equipo Sensibilidad Disciplina Compromiso Responsabilidad HABILIDADES

CENTRO

Proyecto

Director: Carlos Eduardo Aguilar Seligman

Proyecto Centros Urbanos 2021-3

Director: José Fernando Rubio Vaca

Proyecto Patrimonio Urbano 2022-1

Director: Andrés Gaviria Valenzuela

Proyecto Arquitectura y Materialidad para un mundo sostenible 2022-2

Director: Ricardo La Rotta Caballero

6 01 02 03 04 CONTENIDO
LÚDICO INTEGRAL PARA LA PRIMERA INFANCIA RENOVACIÓN URBANA - CANDELARIA 2035 PROYECTO MOMPOX, BOLIVAR ARQUITECTURA Y MATERIALIDAD 7 - 22 23 - 47 48 - 57 58 - 64
Equipamientos Urbanos 2021-1
01 CENTRO LÚDICO INTEGRAL PARA LA PRIMERA INFANCIA

01CENTRO LÚDICO INTEGRAL PARA LA PRIMERA

INFANCIA

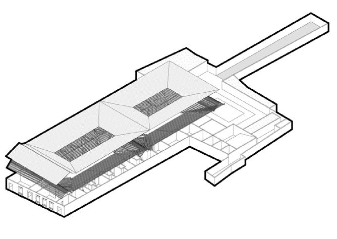
El Centro Lúdico Integral para la Primera Infancia es un proyecto que busca ser un eje articulador en la recuperación y apertura del humedal Capellanía, proponemos una ludoteca atractiva, imponente y escultórica a escala del Niño convirtiendo la arquitectura en un juguete habitable.

Proyecto Equipamientos Urbanos 2021-1

Equipo de trabajo

Angela María Correa Ceballos

María Gabriela Castro Rincón

PRINCIPIOS DE INTERVENCIÓN

Aumentar las áreas verdes por medio de alamedas, robusteciendo así el espacio público y de este modo produciendo puntos de interés.

Consolidar la ronda del humedal, aumentando sus zonas verdes de protección que actualmente son inva didas por construcciones aledañas.

Fortalecer la red de equi pamientos y circuitos de proximidad buscando ese acoplamiento desde bordes blandos.

Impulsar las actividades a pie y en bicicleta sin necesi dad del uso del transporte público o del vehículo privado para realizar las actividades del día a día.

Concebir sectores autó nomos dentro de la gran ciudad y impulsando nue vos modelos de negocios cercanos.

Existe una comunidad que gira al rededor del hume dal y esta no es consiente que el elemento próximo a sus casas es un organismo aglutinante vivo, de igual manera sucede con la ciudad, es inconsciente de las estructuras naturales que en ella se encuentran gene rando una serie de consecuencias que evidenciamos en nuestro sector convirtiéndose estas en un borde urbano y no como una parte integra de la misma.

Vinculos

Áreas Verdes

El humedal ya es un equipamiento: servicio ambiental Sistemas de conexión a partir de parques aledaño al Humedal

Incentivar a la ciudadanía al uso de la bicicleta dentro del barrio

Incrementar los circuitos de movilidad donde el protagonista sea el peatón y el bici usuario.

Reducir distancias a la hora de buscar una necesidad básica.

ACOPLAMIENTO A PARTIR DE LA ESTRUCTURA NATURAL

Kennedy Engátiva DIAGNÓSTICO Humedal Capellanía1.1 ANÁLISIS URBANO Sistema hídrico y natural como elemento estructural de nuestra propuesta Humedal Capellanía Elemento potencializador recuperación de la cuenca hídrica Suelos blandos y húmedos Agricultura urbana con énfasis en aprendizaje, producción y experiencia aumentando los espacios verdes Buscamos un entorno más familiar y no un corazón urbano con exclusividad a usos laborales Modelia actividad residencial Contiene 8 UPZ Conexión a la sabana Calle 13- intercambio productivo y cultural área urbana y rural Red diversa de servicios Acercándonos al urbanismo de proximidad Núcleo Económico Aeropuerto el Dorado conexión tanto interna cional como nacional generando diversidad cultural 1 2 3 4 56
12 3 4 5 6 7
en red de Equipamientos Enlaces en
Conclusión del acoplamiento en la Movilidad

ACCESO VEHICULAR Y PEATONAL

ILUMINACIÓN

Implementamos varios tipos de luces respondiendo a las diferentes necesidades, tam bién usamos tecnología led en las caras de los poliedros elevados permitiendo que se iluminen y con esto también mostrar ese juego que queremos reflejar.

DIMENSIONES DEL EQUIPAMIENTO

11 ACCESOS Y SISTEMA DE CIRCULACIÓN1.2
Luces difusas neón en fachada Luces difusas Luces focales de menor tamaño Luces focales de gran tamaño
12 INTENCIÓN FRENTE AL PEATÓN Y EL VEHÍCULO PLANIMETRÍA PLANTA 11.3 CANAL SAN ANTONIO TRANSVERSAL 94 HUMEDAL CAPELLANÍA Se espera una relación directa y continua del espacio público propuesto y el ya existen te, dándole apertura al Humedal Capellanía integrando su vegetación al sector. PUNTOS FIJOS Escaleras Ascensores Ciclo parqueaderos Parqueaderos Vía de acceso (transversal 94) Plaza principal Plazas de entrada al equipamientoAccesos principales al equipamiento Accesos principales al equipamiento
13 PLANIMETRÍA PLANTA 21.3
14 PLANIMETRÍA PLANTA 31.3

FACHADA NORTE FACHADA SUR

FACHADA ORIENTAL

FACHADA OCCIDENTAL

15
FACHADAS1.4
16 CORTES CORTES1.5

SISTEMA ESTRUCTURAL

Cerchas perímetrales (estructura portante)

Reforzamiento adicional con cerchas en diagonal, permitiendo que se sostengan las placas de entrepiso y los módulos que se encuen tran unos encima de otros (continuidad estructural)

Placas de entrepiso

Exoesqueleto (estructura autoportante)

Sistema de envolvente por medio de una estructura tubular com puesta de barras y nodos que generan una unión articulada

Triangulación del pentágono para dar rigidez a la estructura y no se deforme

Estructura portante (cerchas perimetrales)

Perfiles tubulares, sosteniendo la estructura de cada cara del pentágono, encima de este va el acabado final

CORTE ESTRUCTURAL

Exoesqueleto estructura autoportante (estructura tubular)

DETALLE ARQUITECTÓNICO

Cubierta verde

Doble fachada

Unión exoesqueletoestructura portante

Maqueta estructural

Placa de entrepiso

Cimentación

18 SISTEMA DE CIRCULACIÓN Y ESTRUCTURA1.6
Lámina de acero Vidrio templado Perfil tubular Sistema spider Perfil en C Platina Canaleta perimetral Nodo articulado estructura tubular Cinta de unión en silicona Malla eslabonada Soldadura Viga de entrepiso Perfil en C Tubería descolgada estructura metálica tubular Acabado en madera laminada Espuma Triplay estructural fenólico (madera) Tornillo para placa fenólico Placa de acero multifuncional Traslapo Pernos autoperforantes Viga Pernos de anclaje Cercha metálica Cobertura vegetal Substrato vegetal Piedras de drenaje Geotextil Capa de protección antiraíz Capa de impermeabilización (EPDM) Mortero de pendiente Placa de concreto Tubería de desagüe Perfil en L Viga cubierta Cercha metálica Pernos Platina de anclaje Acabado de piso en porcelanato Mortero Placa de concreto Acero viga Vigas de acero Viga de amarre Capa de recebo Dado de concreto Micropilote in situ Suelo compactado Aceros micropilote

En este corte se puede ver como la estructura pasa a ser parte de la experiencia espacial para el usuario por esta razón decidi mos darle color a estos elementos estructurales dándole vida a los espacios.

En el exterior podemos observar la doble fachada que varia en las diferentes caras de los poliedros

19
CORTE FUGADO1.7
20 ASPECTO AMBIENTAL DEL EQUIPAMIENTO1.8

PROYECTOS URBANOS

cuerpos de agua y zonas

para el humedal buscando

mitigando

ciudad

elevado

a nivel

accesibilidad

de occidente

barrio,

de renovación urbana de viviendas y patios con nueva morfología para la reubicación

trazado de la ALO, evitando

zonas

ESQUEMA DE EQUIPAMIENTOS PROPUESTOS

la industria, alcanzando

ecosistema

(empleo, actividad

mercial), buscando

biental.

PLAN DIRECTOR

Mediante

LOCALIZACIÓN

industria

y con responsabilidad

alcantarilla

aguas negras

PARCIAL DEL EQUIPAMIENTO

INSTRUMENTOS DE GESTIÓN

Reparto de cargas y beneficios

Compensaciones

Los directamente afectados por el proyecto serán reubicados y recibirán una compensación.

Cambio en la morfología

Reajuste de suelos

Ajuste de la industria para recuperar el humedal y ubicando una nueva industria más sostenible.

Zonas de renovación urbana en la cercanía a la vía ALO recu perando el espacio cedido en altura.

Adquisición de predios

Enajenación voluntaria

Expropiación

La adquisición de los predios se realizará por medio de una enajenación voluntaria y de no llegar a un acuerdo con el propietario se llevará a cabo una expropiación por vía judicial o administrativa

21 AGENDA DE GESTIÓN1.9 1 4 2 4 2 13 PLAN
CANAL SAN ANTONIO TRANSVERSAL 94 HUMEDAL CAPELLANÍA Avenida longitudinal
(ALO) perfil
30m transporte de alta velo cidad y
Transporte local permitiendo la
al
se busca la rela ción del peatón para llegar al humedal, y también lazos entre los barrios. Rescatar el
verdes
su fauna original,
el impac to de la
hacia el ecosistema. Áreas
del
las
de inundaciones. Reorganización de
un
em presarial
co
una
limpia
am
Labor de
do de
a los canales existentes
Conexión equipamientos propuesta Ciclorrutas Actuales Equipamientos propuestos 10 en total Vías Principales Vías Principales Escala urbana (1) Escala zonal (2,3,4,5) Escala vecinal (6,7,8,9,10) Se plantearon 10 equipamientos de los cuales se desarrollo el #2
este este instrumento de planificación se plantea la construcción de un parque y un equipamiento
Ubicación: Humedal Capellanía Localidad: Fontibón Delimitación Plan Parcial
02 RENOVACIÓN URBANA CANDELARIA

RENOVACIÓN URBANA

CANDELARIA 2035

02 AtlasEn el territorio la Candelaria surgen oportunidades de nivel productivo debido a la ubicación como sector de desarrollo de producción cultural tanto tangible como in tangible. Debido a esto se prospecta una visión territorial que responda las activida des productivas culturales y manufactureras que tienen las Industrias artesanales, mayormente en escala microempresarial, pequeñas empresas e incluso comercio informal. Asi mismo se contempla la implementación de un sistema de conexión en cuestión a su movilidad con el fin de proyectar al sector de la Candelaria como una centralidad histórica patrimonial productiva de la mano con la proyección de proyectos urbanos qué presente una capacidad de carga eficiente.

Proyecto Centros Urbanos 2021-3

Equipo de trabajo Angela María Correa Ceballos

Geraldine Fernández Alfaro

Andrea Estefania Balaguera Cáceres

Lucia Alejandra Vargas Miranda

24
25 CONFETI PROGRAMÁTICO2.1
26 CONFETI PROGRAMÁTICO2.1
27 CONFETI DE PRODUCCIÓN2.1

PRODUCCIÓN MANUFACTURERA

PRODUCCIÓN CULTURALPRODUCCIÓN CREATIVA

PRODUCCIÓN COMERCIO

28 CÓDIGOS GENÉTICOS ESPACIALES2.2
29 AXONOMETRÍAS SECTOR2.2
30 AXONOMETRÍAS SECTOR2.2
31 SINTESIS INDICADORES AMBIENTALES2.3
32 FENÓMENOS SINERGIA PRODUCTIVA CULTURAL2.4 Este fenómeno se manifiesta ante el desarrollo de una produc ción en donde su principal foque convergente es la cultura y el flujo turístico que mantiene la Candelaria. Viendo diferentes adaptaciones especiales y temporales, donde de por si, se iden tifica cómo los mismos comerciantes informales y formales del sector han adaptado el espacio publico en este sector.
33 FENÓMENOS AGLOMERACIÓN DE TRANSFORMACIÓN EDUCATIVA2.4 Los equipamientos educativos, las nuevas apariciones de ellos y la apropiación de ciertas manzanas comienza a transformar el lugar mediante el surgimiento de actividades que van tomando las nuevas manzanas cercanas, actividades como tiendas, restaurantes, bares, papelerias, residencias estudiantiles o alquiler de viviendas para estudiantes. 1930 Comienzos del 2000 En este zoom es de la u. de la Salle se puede ver más a de talle esa mixtura de usos que se dan entorno a estas univer sidades usos de vivienda, comercio, abastecimiento, ocio, etc., debido a que son un gran atractor.inámicas en el sector Valor m2 Generación de usos Aglomeración de usos Sistema de transporte

El fenómenos de adaptabilidad moderna productiva es aquel desalojo principalmente de uso de labores de oficina, que se encuentra en dispo sitivos arquitectonicos del modernismo. Este impulsado por las transfor maciones actuales que ha tenido a los edificios antiguos, dirigo a un uso hotelero y formal comercial.

34 FENÓMENOS ADAPTABILIDAD MODERNA PRODUCTIVA2.4
35 SINTESIS FENÓMENOS2.4
36 ESCENARIO 12.5

PRODUCCIÓN INTELECTUAL

Interconexión de espacios por tecnología

37 ESCENARIO 22.5
38 ESCENARIO 32.5

Surgen espacios relacionados con cada una de las estrategias en las cuales la principal intención es aumentar la porosidad y el nivel de interacción en lugares puntuales del sector, para que de esta manera el sector adopte una postura más permeable y permita la fl uidez de nuevas dinámicas entorno a lo productivo - cultural, esas aperturas porosas abren la posibilidad de aumentar a condición multifacetica que adopta el territorio luego de analizar cada uno de los escenarios posibles, siendo así, un territorio de espacios accesibles, de alto grado de interacción económica, social, cultural y produc tiva.

39 DIAGNÓSTICO CANDELARIA2.6
Zonas verdes Zonas protegidos Poroso No poroso Espacio público
40 VISIÓN PLAN 20352.7
41 SINTESIS DE ESTRATEGIAS2.7
42 VISIÓN ESTRATÉGICA CANDELARIA 20352.8
43 DISPOSITIVO 1 AGLOMERACIONES PRODUCTIVAS LOCALES2.9
44 DISPOSITIVO 2 ESPACIOS BINARIOS Y COOPERACIÓN PRODUCTIVA2.9
45 DISPOSITIVO 3 CENTROS DE AGRUPACIÓN INTELIGENTE2.9
46 DISPOSITIVO 4 ATRACTORES LOCALES RESIDENTES2.9
47 VISIÓN ESTRATÉGICA CANDELARIA 20352.9
48 03 PROYECTO MOMPOX MZ 50 HOSTAL DOÑA MANUELA

BOLÍVAR

El Centro Lúdico Integral para la Primera Infancia es un proyecto que busca ser un eje articulador que busca la recuperación del humedal Capellanía por medio del

Proyecto

Equipo

MZ 50 - HOSTAL DOÑA MANUELA MOMPOX,
Patrimonio Urbano 2022-1
de trabajo Angela María Correa Ceballos Geraldine Fernández Alfaro 03

LINEA DE TIEMPO 1962 -2015

Cambios en el lote

Se presentan pocas subdivisiones en los lotes de la MZ, uno de estos casos es el de la casa rinconada ubicada en la esquina del Callejón Don Blas que se comunica con la calle de atrás donde paso de ser 1 lote a subdividirse en 4 En el Hostal Doña Manue la encontramos grandes cambios es en el predio del Hostal Doña Manuela debido a la declaratoria de uti lidad pública el centro de manzana y su apropiación por parte del hostal.

Nuevas construcciones en los traspatios como debi do a la ampliación de algunas viviendas y del Hostal Doña Manuela, asimismo vemos la pérdida de parte del traspatio de varias viviendas debido a esta amplia ción del hostal al declararse el centro de MZ como utilidad pública, también se puede observar la cons trucción de algunos cobertizos en los traspatios pa tios.

En cuanto a la problemática de la manzana encontramos una fragmentación en su identidad dependiendo de la calle y callejón de la misma, ésta ruptura está dada principalmen te por la privatización del centro de manzana, también de los flujos de callejón Colegio Pinillos y la Calle de Atrás, en las cuales existe una pérdida de conservación del lenguaje de la arquitectura tradicional momposina de primer momento. Esto conlleva a la pérdida de valores en las tipologías, así la ruptura y pérdida de valores se encuentran con mayor fuer za sobre la calle de atrás.

La mayoría de los cambios en la totalidad del lote se dan hacia la calle atrás donde vemos una gran pér dida de la arquitectura tradicional Momposina y la presencia en su mayoría de arquitectura popular y arquitectura contemporánea.

La pérdida del patio se evidencia en su mayoría ha cia el Callejón Don Blas donde predomina un uso residencial debido a la necesidad de generar nuevas construcciones en los patios de la vivienda.

Se evidencia un gran contraste entre el nolli de 1962 y el actual donde vemos una gran densificación de la manzana sin embargo se sigue viendo esa fuerza en las esquinas y esa x que conecta la manzana con las manzanas de su contexto.

Actualmente la manzana cuenta con 56 predios pero anteriormente contaba sólo con 52 y algunos de estos se subdividieron como es el caso de la casa rinconada que pasó de ser un predio hacer 4 predios y la el predio a su derecha el cual se subsidio y paso de ser uno a dos predios.

50 DIAGNÓSTICO MZ 503.1
Cambios en el traspatio (nuevas construcciones) Cambios en la totalidad del lote Ocupación del patio
CAMBIOS
EN LA MZ - FACHADAS CONTEXTO INMEDIATO La MZ 50, se encuentra ubicada entre la Calle Real (Cr 2), la calle de atrás (Cr3) y entre el callejón del colegio Pinillos (Cl 18) y Don Blas (Cl 17). Colegio Pinillos Plaza del Tamarindo Calle de atrás (Conexión con el cementerio) Iglesia de Santo Domingo 1 2 3 4 Callejón del Colegio Pinillos 5 Calle Real o del medio6 Callejón Don Blas7 Abastecimiento8 1 2 3 4 5 6 7
PROLEMÁTICA MZ Centro de manzana Construcciones 1962 Hostal Doña Manuela
51
ANÁLISIS
COLORIMETRIA FACHADAS MZ Calle Real o del medio (Cr 2) Callejón Colegio Pinillos (Cl 18) Homogeneidad de alturas y colorimetría, presencia de arquitectura tradicional Momposina Diferencia de alturas, presencia de vegetación y arquitectura tradicional y popular Callejón Don Blas (Cl 17) Calle de atrás (Cr 3) Homogeneidad de alturas y colorimetría, ruptura de la gama de colores con presencia de arquitectura popular Diferencia de alturas, presencia de vegetación, diversidad de la gama de colores, arquitectu ra tradicional, popular y contemporánea DIAGNÓSTICO FACHADAS3.2

PROBLEMÁTICAS ESQUEMÁTICAS

Condiciones externas

52 DIAGNÓSTICO PROBLEMÁTICAS AMBIENTALES3.3
PROBLEMÁTICAS MAPEADAS Lenguajes fragmentados Elemento fragmentador Tendencia a pérdida de traspatio Tendencia a conservar el traspatio Doña Manuela como fragmentador Perfil donde: predios afectados negativamente con menor fuerza Perfil donde: predios afectados negativamente con mayor fuerza Predios (áreas) con mayor confort ambiental Predios (áreas) con menor confort ambiental

TIPOLOGÍA 1: CASA ALTA

TIPOLOGÍA 2: CASA BAJA

TIPOLOGÍA 1: CASA ALTA

TIPOLOGÍA 3: POPULAR

TIPOLOGÍA 4: HOSTAL DOÑA MANUELA

2: CASA BAJA

3: POPULAR

4: HOSTAL DOÑA MANUELA

53 TIPOLOGÍAS ARQUITECTÓNICAS Y VALORACIÓN3.4
TIPOLOGÍA
TIPOLOGÍA
TIPOLOGÍA
En la MZ 50 se presentan 4 tipologías arquitectónicas: casa alta, casa baja, popular y Hostal Doña Manuela
Popular aleatoria Popular con retroceso Popular historicista Popular cintemporánea de 2 niveles
Casa alta tradicional Casa alta fachada reinterpretada, especial contemporánea Casa alta popular (Colegio Pinillos)
Casa baja tradicional Casa baja tradicional transformada Casa baja con variaciones Casa baja sin patio
Tipo casa Doña Manuela

DE VALORACIÓN

54 TIPOLOGÍAS ARQUITECTÓNICAS Y VALORACIÓN3.4 TIPOLOGÍA 1: CASA ALTA TIPOLOGÍA 2: CASA BAJA TIPOLOGÍA 3: POPULAR TIPOLOGÍA 4: HOSTAL DOÑA MANUELA SINTESIS VALORACIÓN CRITERIOS
Una valoración alta implica una coherencia positiva de los criterios de valoración, pues permite una vista puntual Una valoración media implica una coherencia positiva de algunos criterios sub criterios de valoración, puede que tenga varios de ellos en una connotación negativa o no tan beneficiosa. Una valoración baja implica una cohe rencia no tan positiva de los criterios sub criterios de valoración, es decir, puede que sea deficiente ese sub crite rio o que directamente no cuente con él.

ESTRATEGIAS DE INTERVENCIÓN

Porosidad por medio de las esquinas

TRAZADO EN ESPINA DE PESCADO

Predialización 1962

Predialización

1962

actual

Recuperar el carácter comunitario del centro de mz Centro de Mz como aglomerador

La espina de pescado es un característica muy importante del desarrollo urbano de Mompox, en estos planos podemos ver las transformaciones que ha tenido desde 1962 a la actualidad donde vemos como se ha mantenido esta estructura, sin embargo se ve la subdivisión de algunos predios lo cual podría ser una amenaza de la pérdida de esta. En nuestra intervención valoramos esta característica urbana y por esto buscamos pro tegerla y hacerla parte de nuestros parámetros de diseños.

Se puede observar la pérdida de la presencia del verde entre 1962 y la actualidad por la construcción de nuevas edificaciones, la ampliación de algunas viviendas y construcciones en los traspatios de las mismas, también por las construcciones generadas en el centro de mz lo que ha ocasionado una ruptura del verde, en nuestra intervención buscamos recuperar el verde que había antes en el centro de mz haciendo que este se convierta en un elemento aglutinante de la manzana.

PLANTEAMIENTO NUEVAS CONSTRUCCIONES

MODIFICACIONES PLANTA MZ

En la planta se puede observar los muros que conservamos principalmente de las tipolo gías de casa alta y casa baja que tienen una mayor valoración del resto y los muros elimi namos teniendo en cuenta las acciones estratégicas de intervención.

55 ESTRATEGIAS DE INTERVENCIÓN3.5
Manzana como
un solo elemento
actual Vegetación
Vegetación

Para el diseño del centro de mz se trazaron unos ejes principales de carácter axial partiendo de las 4 esquinas y unos ejes secundarios siguiendo la predia lización de los predios del Callejón del Colegio Pinillos y la Calle de atrás, tam bién se crearon unos espacios en los traspatios de las viviendas que tienen comunicación con el centro de mz para generar fachada hacia este.

FACHADAS CON INTERVENCIÓN

Siguiendo estos ejes se dispusieron zonas con diferentes vocaciones entre ellas: Zonas verdes y huertas, Zonas de estancia tranquila, plazoletas, zona de juegos y zona de canchas deportivas con zona libre.

56
DISEÑO CENTRO DE MZ3.6 DISEÑO CENTRO DE MZ
Calle Real
o del medio (Cr 2)
Callejón Colegio
Pinillos (Cl 18)
Callejón
Don Blas (Cl 17)
Calle
de atrás (Cr 3)
Homogeneidad en las alturas de los paramentos de cada una de las fachadas de la manzana
57 PLANTA PROYECTO MZ 50 HOSTAL DOÑA MANUELA3.7
Zona de juegos Zonas de estanciaZonas de deporte y huertas Biblioteca Centro gastronómico
04 ARQUITECTURA Y MATERIALIDAD PARA UN MUNO SOSTENIBLE

ARQUITECTURA Y MATERIALIDAD PARA UN MUNDO SOSTENIBLE

Arquitectura y materialidad es un proyecto que busca cambiar la forma como los arquitectos realizamos nuestro diseño dejando a un lado el concepto como base para realizar el diseño y enfocándose en las propiedades y posibilidades del material para que este nos guíe nuestro proceso de diseño.

Arquitectura y materialidad para un mundo sostenible 2022-3

Equipo de trabajo Angela María Correa Ceballos María Camila Agudelo Sotelo

59
04

LABORATORIO DE MATERIALIDAD - PROCESO EXPERIMENTAL CON EL MATERIAL

Para la realización del ejercicio exploratorio con el concreto, durante los primeros experimentos creamos una mezcla de proporciones 1:2:2; (1) de cemento, (2) de yeso, (2) de agua que nos permitiera un tiempo de fragua do menor a la mezcla de concreto y con una apariencia similar a este. De bido a que inicialmente solo íbamos a usar una mezcla de yeso de proposi ciones 3:2; (3) de yeso, (2) agua en esta pudimos observar que este material tiene una velocidad de secado más eficiente donde tomamos la decisión de reemplazar una porción de yeso por una de cemento. Sumergimos el estropajo en la mezcla.

En este prototipo se evidencia la fluidez del concreto como la capacidad de comportarse como un fluido en estado fresco. Se vierte la mezcla en la parte superior del prototipo y por gravedad fluye hacia abajo y va formando el suelo, se generan las estalactitas que son las formaciones verticales que parten del techo hacia el suelo y las estalagmitas se forman justo al contra rio, del suelo hacia el techo, generando las columnas del modelo.

LABORATORIO DE MATERIALIDAD - PROCESO EXPERIMENTAL CON EL MATERIAL EN EL TERRENO

Como ejercicio de implantación en el terreno se usa la tierra y la arena como formaleta de los prototipos, se busca generar una inte racción directa entre el material y el terreno, generando las texturas interesantes.

En este ejercicio implementamos una membrana con fibras sintéticas (es tropajo) a la cual le incluimos alambre para darle una estructura comple mentaria y la sumergimos en nuestra mezcla de cemento y yeso.

En este ejercicio usamos como formaleta un globo sobre el cual colocamos una capa de estropajo y sobre esta vertemos nuestra mezcla de cemento y yeso donde la parte inferior de esta cáscara es la que cuenta con mayor porosidad como se puede observar en las imágenes

El primer prototipo realizado para la implantación consistió en excavar la tierra y compactarla haciendo presión con las manos con el propósito de generar vacíos, adicionalmente, para darle textura, se le puso estropajo. Se vertió la mezcla como se muestra en la imagen de la izquierda, al día siguiente se retiró de la tierra y se limpió con un cepillo el exceso de tierra.

Para el segundo experimento se realizó una aproximación similar al anterior sino que con arena, debido a que la arena estaba hú meda, el cemento no secó.

Finalmente, se decidió hacer formaletas en arcilla ya que al in vestigar el tipo de suelo del Simón Bolívar se encontró que está compuesto en su mayoría por arcillas, siendo este optimo para el proceso constructivo.

60 PROYECTO PABELLÓN MATERIAL: CONCRETO4.1
61 PROYECTO PABELLÓN MATERIAL: CONCRETO4.1 LOCALIZACIÓN: PARQUE SIMÓN BOLÍVAR Es el más importante de la ciudad por su gran extensión y su estratégica ubicación en el co razón de Bogotá. Tiene amplios espacios verdes con vasta variedad de especies de árboles. localización de la propuesta en el parque: Esquina de la Av. carrera 68 con Av. calle 53 En la visita de campo se descubrió un lugar con gran potencial por ser la intersección entre varios caminos, unos en ladrillo y otros creados por las personas por el paso constante. En el camino que se encuentra frente al embarcadero se encontró un camino muy interesante generado por el paso de las personas como ingreso al bosque, se escogió este como ingreso principal al pabellón.
FOTOS
DEL LUGAR

El proyecto cuenta con varios accesos siendo el principal desde la parte superior hacia un es pejo de agua en el interior de pabellón, adicional mente, se conecta con los caminos pro pios del parque y otros generados por las personas que recorren de manera frecuente el lugar .El pabellón tiene una forma orgánica y porosa en cuanto a su implantación y materialidad, la materiali dad se genera mediante formaletas metálicas que le dan la textura y formaletas para las aperturas tipo ventana también con formas orgánicas pensando en la visuales y la relación con el entorno, permitien do la entrada de luz natural y generando un juego de sombras.

DETALLES CONSTRUCTIVOS

El pabellón SERENIDAD busca ser un espacio para desconectarse y alejarse del ruido de la ciudad y del mismo parque en sí.

En proyecto se implanta en el terreno con pendiente, se realiza un muro de con tención para sostener el terreno y generar una continuidad entre el terreno y el pabellón.

1.Se excava el volumen del muro

2.Bentonita

3.Refuerzo estructural

4.Cuando el muro de contención sea portante se excava el volumen requerido para la construcción del pabellón

5.Para el ingreso al proyecto desde la parte superior se plantea un talud recorrible

1. Excavar el área del muro

2. Estabilizar el terreno

3. Formaleta apuntalada al interior del vacío para generar las porosidades (venta nas) en el muro

4. Ubicación de la Formaleta metálica con porosidades

5. Fundir el muro con el concreto usando cemento blanco, agregados, y aditivo ace lerante. Adicionalmente fibras de acero para garantizar la adherencia de la mezcla y resistencia de la estructura.

6. Izar el muro sobre la viga de amarre

Como muros se plantean dos tipos:

Fundido en sitio en un hueco excavado en la tierra como se explicó anteriormente

Fundido en el lugar entre dos muros fundidos sobre la tierra

Concreto poroso: es una apariencia que reúne la textura lisa del concreto con peque ños huecos sobre la superficie. También se le conoce como textura de grano de sal, ya que se forma tirando granos de sal a la mezcla de concreto antes del fraguado, y se deja secar. Una vez terminada la estructura, con las lavadas los granos de sal se deshacen, quedando en su lugar una serie de pequeños huecos.

62 PROYECTO PABELLÓN MATERIAL: CONCRETO4.1 PLANTA 1
MAQUETA
1.
2.
63 PROYECTO FACHADA MATERIAL: VIDRIO4.2 Valor de la preexistencia: el habitar. Buscamos que por medio del uso del vidrio de color se mejore y se genere una nueva experiencia en el habitar de los usuarios LOCALIZACIÓN: ED C4, CENTRO ANTONIO NARIÑO Implementación de colores fríos en la fachada frontal que es la más expuesta al sol y predominancia de colores cálidos en la fachada posterior para permitir un mayor paso de los rayos de sol disminuyendo la humedad presente en el edificio. PLANTAS Confort térmico Valoración
PROPIEDADES DEL VIDRIO: COLOR - TEMPERATURA - ILUMINACIÓN TIPOS DE VIDRIO Vidrio dicroico Vidrio pigmentado Vidrio con pelicula
Nuestra propuesta consiste en una fachada flotante en escamas de vidrio y cerámica con formas rom boidales, que se anclan a una estructura metálica por medio de unos separadores en acero galvanizado.
64 PROYECTO FACHADA MATERIAL: VIDRIO4.2
DETALLE FACHADA MAQUETA FACHADA PERSPECTIVAS solar que emiten los ra yos del sol Es un proyecto que busca generar una nueva experiencia en la forma de habitar del usuario por medio del color en la fachada, esta compuesta por escamas de diferentes opacidades y tonos respondiendo a las necesidades de confort térmico y de privacidad de cada uno de los espacios del edificio existente. MAQUETA EXPERIENCIAL
65

Turn static files into dynamic content formats.

Create a flipbook
Issuu converts static files into: digital portfolios, online yearbooks, online catalogs, digital photo albums and more. Sign up and create your flipbook.