Corina Averil Portfolio

Page 1

AVERIL I
C T
PORTFOLIO CORINA
N T E R I O R D E S I G N A R C H I T E
U R E

01

02

CONTENTS
HARAPAN INDAH, BEKASI
RIVIERRA GARDEN, JAKARTA
03
PURI ANGKASA 3, DEPOK

04 MISCELLANEOUS WORK

05 OPULENCE RESIDENCE, JAKARTA

06 MRS. M, BEKASI

07 MEIKARTA APARTMENT, BEKASI

CONTENTS

C O R I N A A V E R I L

Jakarta, Indonesia | +62 81398218789 | corinaaveril@gmail com

CAREER SUMMARY:

Currently handling tenant construction in Mall Kelapa Gading and Summarecon Villaggio Outlet where I communicate with tenants and manage everyday progress based on Fit Out Guidelines I also design Kampoeng Tempo Doeloe layout and manage the construction until finish. Furthermore, I designed sev eral house architecture and interior in the past year.

Portfolio: https://issuu com/corinaaveril/docs/portofolio

WORK EXPERIENCE:

PT. Summarecon Agung Tbk

Mall Kelapa Gading & Summarecon Villaggio Outlet - Fit Out Coordinator | October 2022 - Present

Assist tenants in the fit-out process from the initial design to the opening of the rental unit, both technically and administratively

Maintain standardization of mall rental unit designs, especially in the fields of Civil, Architectural and ME related to building installations.

Controlling every fit out work of the rental unit from the beginning to the opening of each rental unit

Design layout and review vendors designs of Kampoeng Tempo Doeloe in 2023 and 2024 Manage construction and of Kampoeng Tempo Doeloe until finish.

Tenants:

Optik Melawai, Din Tai Fung, Chadol Gujeolpan, Chanba, Shin Sushi Bar, JCO, Marugame Udon, Pepper Lunch, etc (Mall Kelapa Gading and Gafoy)

Charles & Keith, The North Face, Kidz Station, Converse, Cotton On, Travelogue, Ipanema,, etc (Summarecon Villaggio Outlet)

PT. Scala Contractor

Interior and Product Designer | May 2022 - September 2022

Plan and build interior layout and furniture for residential and commercial building

Communicate with other architects and interior designers to discuss designs. Site visit to acquire more information.

Create shop drawing and render with Auto Cad, SketchUp, and Lumion.

Monitor project's furniture making in workshop.

Archine

Self-Employed Architect | June 2022 - September 2022

Plan, design, and build residential buildings.

Communicate with clients and construction workers.

Present concept and design to clients

Create project cost management and schedule

Monitor and manage on-going construction.

A R C H I T E C T U R E A N D I N T E R I O R D E S I G N

CV. Cabine Graha Deco

Interior Design Intern | October 2021 - January 2022

Design interior layout for residential building

Assist head designer to site visit.

Create budget quotation and furniture unit pricing.

RELEVANT PROJECTS:

Mr. S House, Depok

House façade renovation | June 2022 - September 2022

Renovate house façade and bathroom

Build walk-in closet

Mr. N House, Bandung

Interior design renovation |

Create furniture based on designer's designs and offers.

Grand Mercure Penthouse, Jakarta

Interior design renovation |

Create furniture based on designer's designs and offers.

EDUCATION:

2017 - 2022 | Parahyangan Catholic University

Bachelor of Architecture

Thesis award nominee 2022

2014 - 2017 | Penabur Harapan Indah High School

Major in Science

ORGANIZATION:

2017-2022 | MAHITALA - UNPAR

Vice President (2020 - 2021)

Secretary (2019 - 2020)

2019-2020 | Student Association of Architecture

Community Service Member (Project: Bhakti Ganva)

2019 | Radio Station (RRI Bandung)

Radio Announcer of Vimala Dharma Temple

SKILLS:

Software

SketchUp

AutoCad

Lumion

Adobe Photoshop

Microsoft Office

Language

Bahasa

English

Advanced

Advanced

Advanced

Intermediate

Advanced

Native

TOEFL 609

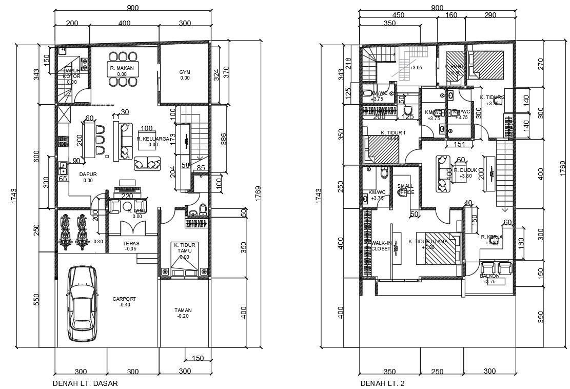
PURI ANGKASA 3 DEPOK 01

This house renovation is one of my business project. Owned by husband and wife, located in suburb area in Puri Angkasa 3, Depok, this house facade was renovated with industrial architectural approach by using mainly concrete and wood. Aside from facade, there were also major interior changes made in the master bathroom and walk-in closet. This project was constructed within three months from design to build.

+0.00 GARDEN -0.40 1ST FLOOR PLAN 1 2ND FLOOR PLAN 1 WALK-IN CLOSET AC AC CAR PORT -0.15 -0.40 UP UP 01 02 03 04 05 06 01 02 03 04 05 06 14 13 12 11 10 09 08 07 -0.20

Fully renovated with a modern minimalistic look, this house was owned by a religious family with three kids. The goal of this design was to achieve tranquil and cozy feeling around the house with the presence of praying room and a good flow of activity for the family to enjoy activities together.

HARAPAN INDAH BEKASI 02

BEDROOM 1 ±0.00 BATHROOM -0.50 LIVING ROOM ±0.00 BEDROOM 2 ±0.00 KITCHEN ±0.00 -0.05 CARPORT -0.20 GARDEN -0.20 UP 01 02 03 04 05 06 07 08 09
PLAN 1
1ST FLOOR
BALKON +3.80 BATHROOM +3.45 MASTER BATHROOM +3.45 FAMILY ROOM +3.50 WORKING SPACE +3.50 UP 08 09 10 11 12 14 15 16 17 18 13 19 PRAYING AREA +3.50 LAUNDRY ROOM +3.45 BEDROOM 3 +3.50 MASTER BEDROOM +3.50
2ND FLOOR PLAN 2

This house is located in Rivierra Garden, Kelapa Gading. The main purpose of this renovation was to add another bedroom and expand the kitchen. But, the client also asked for a full renovation on the interior. The design itself adapted a minimalist with a touch of classic look.

RIVIERRA GARDEN JAKARTA 03

MISCELLANEOUS WORKS 04

Lumion Render

2ND FLOOR

7814 13291 3103 3171 3108 1104 510 1100 1100 KITCHEN STORAGE SEATING AREA 5 SEATING AREA 1 SEATING AREA 2 TOILET 910 SEATING AREA 3 SEATING AREA 4 942
PLAN 7814 15293 3606 3698 310 2936 3300 2100 1532 7814
1ST FLOOR
PLAN FRIDGE BAR 3914 2750 1098 2584 2459 2566 1200 700 800 1200 1232 1302 2100 2251 7112 3737 3977 2575 1584 1559 450 450 3877 3877 1267 1267 1649 1649 9336 3246 2551 Cafe and Office Shop Drawing Furniture Making - Grand Mercure Penthouse Jakarta - Mr. N House, Bandung

A pastel-toned approach was selected in this design to make kids bedroom and playroom seem fun and cozy to live in. To incorporate fun inside the design, dynamic shapes were used. The idea of this design was to create different feelings in every room by using different complementary colors.

OPULENCE RESIDENCE JAKARTA 05

MRS. M HOUSE BEKASI 06

This room was made for two children who shares their bedroom. The idea of this design was to create a masculine yet soft sentiment. Blue and light brown was mostly used to give the aspects of masculinity.

MEIKARTA APARTMENT BEKASI 07

A light, warm earth-toned minimalistic approach was used in this apartment design to make this place feel homey. The simplicity potrayed within the design was to maximize functionality and space, also minimize the maintenance needed.

Corina Averil

email : corinaaveril@gmail.com

phone : +62 81398218789

location : Jakarta, Indonesia

Turn static files into dynamic content formats.

Create a flipbook
Issuu converts static files into: digital portfolios, online yearbooks, online catalogs, digital photo albums and more. Sign up and create your flipbook.