
Project Logbook
CONCORDE BGW GROUP


![]()

CONCORDE BGW GROUP


When we began work on The Trafalgar, our ambition was to create a pub and restaurant that felt genuinely connected to its setting, while offering something distinctive for King’s Road. Chelsea’s rich history, layered character, and enduring cultural relevance provided a strong foundation for the project, informing a design approach that balances tradition with a contemporary, welcoming sensibility.
From the outset, we were conscious of the responsibility that comes with working on a site of this nature. Drawing inspiration from the heritage of the building and the elegance of the surrounding architecture, the design was carefully shaped to feel familiar yet fresh - respectful of its context without feeling nostalgic or static. Our aim was to create spaces that evolve throughout the day, offering the warmth and informality of a classic British pub alongside more refined dining areas that respond to modern expectations.
Collaboration was central to the success of the project. Three Cheers Pub Co, Concorde BGW Group and external trades/suppliers worked closely together to ensure every element was considered, from the overall spatial flow to the finer details of joinery, finishes, and lighting. Materiality played a key role throughout, with an emphasis on quality, durability, and character - allowing the interiors to age gracefully while maintaining a strong sense of identity.
Above all, The Trafalgar was designed with people in mind. It was important that the spaces felt inviting, comfortable, and authentic - somewhere to gather, linger, and return to. The completed project reflects a balance of authenticity and innovation, resulting in a destination that feels rooted in place yet relevant to contemporary life, and one that we hope will continue to be part of King’s Road’s social fabric for years to come.
(The History)
(The Design Concept)
(The Build Process)
(The Completed Project)
(Reviews & Press)
Published by: Concorde BGW Group, Palmer Street, Hyde Park, South Yorkshire, DN4 5DD. Tel: 01302 361024 Email: info@concordebgw.com www.concordebgw.com
Typefaces: Baskerville by John Baskerville & Anatomical by Arendxstudio @Concorde BGW Group, Doncaster 2025
All rights reserved. No part of this publication may be reproduced or transmitted in any form by any means, electronic or mechanical, including photocopy or any storage and retrieval system, without permission in writing from the publisher. All reasonable attempts have been made to trace, clear and credit the copyright holders of the image reproduced in this book. However, if any credits have been inadvertently omitted, the publisher will endeavour to incorporate amendments in future editions. Respect copyright, encourage creativity!
This book was conceived by: Guy Bostock & Phil Willan
Edited by: Scott Ryalls, Rick Cartwright & Phil Willan
Co-edited by: Guy Bostock & Sally Dale
Designed by: Phil Willan
Copy writing by: Phil Willan
Project Photography by: Nicole Cheetham
Proofed by: Lindsay Sanders & Sophie Oldfield


The King’s Road originated as a private royal route under Charles II in the late 16th century, linking Westminster and Hampton Court via Chelsea. In 1719, Sir Hans Sloane successfully petitioned for public access, and by the late 18th century local roads were permitted to connect with it. By 1869, the road had been widened and improved, becoming the focus of commercial and residential development in Chelsea and shifting the historic settlement centre away from the river. The modest Georgian terraces that once lined the street were gradually replaced by more imposing Victorian and Edwardian buildings, reflecting the area’s growing prosperity.
Early maps, including Thompson’s 1834 survey and the 1874 Ordnance Survey, show three terraced houses on the site of present-day 224–226 King’s Road, positioned between Chelsea Manor Street (then Upper Manor Street) and a timber yard. These were modest, set back from the street with rear gardens. By the mid-19th century, an additional house had been added to fill the corner plot.
The existing building was constructed in 1909 to designs by Sir Reginald Blomfield, a leading Edwardian architect, for the London & County Bank. Its Edwardian Baroque style is expressed through a dignified stone façade, rusticated detailing, arched ground-floor openings, and restrained classical ornamentation.
Positioned prominently on the corner, the building was intended to convey civic pride, financial stability, and modern sophistication.
Externally unified, the building was internally divided into two elements: No. 224, with the bank at ground and basement levels and a manager’s apartment above, and No. 226, a small shop with residential accommodation. The rear range on Chelsea Manor Street, despite its decorative façade, accommodated staircases and linking corridors. Photographs from 1909 depict the arched windows and original signage for the Westminster Bank Limited, following the London & County Bank’s merger.
Throughout the 20th century, the building was adapted to meet changing commercial needs. By 1960, the shopfront to No. 226 had been reconfigured, and in 1964 the shop and basement were incorporated into the bank. Internal alterations included removal of fireplaces and panelling, introduction of modern services, and modifications to the banking hall. Later permissions recorded office conversions and a two-storey rear extension in 1987.
A significant redevelopment occurred in 1993, when the rear yard was infilled with a two-storey extension fronting Chelsea Manor Street. The former manager’s apartment at No. 224 was converted into three flats, and the
maisonette at No. 226 was refurbished. Subsequent changes, including the lowering of window cills and removal of the original access door to No. 226, reflected evolving retail patterns.
In 2014, a major refurbishment led by Donald Insall Associates reinstated key architectural features and replaced a low-quality 1993 infill with a more sympathetic extension. Further consents in 2019 and 2023 allowed for mixed retail and fitness uses and discreet servicing interventions, continuing the careful process of adaptation.
A notable recent transformation was the introduction of Three Cheers Pub Co, establishing the first independent free house on the King’s Road in over a century. This adaptive reuse reintroduced local identity and social value to a street historically dominated by corporate tenancies.
Today, 224–226 King’s Road is a fine example of Edwardian commercial architecture and a tangible record of Chelsea’s urban evolution. Its prominent corner setting, Baroque detailing, and history of adaptation illustrate the area’s continuous reinvention. From its origins as a purpose-built bank expressing Edwardian confidence to its transformation into contemporary retail and hospitality spaces, the building demonstrates the potential of sensitive adaptive reuse, preserving its historic significance while securing its relevance for the future.











The areas at the rear of the banking hall and the space originally occupied by 226 King’s Road had been stripped of most original features over time and offered little historical context.
The banking hall itself, although altered with modern openings in the party wall between 224 and 226 King’s Road, retained several notable elements.
These included decorative window surrounds, plaster mouldings such as panelling and garland details, and the original ornate cornice and ceiling coffers, which remained in place, albeit partially adapted to conceal modern services.
The lower ground floor was accessed via a shared stairwell at the rear. A stair was incorporated within this space as part of the refurbishment. Prior to the works, the original layout had been extensively altered, with walls and staircases removed.
More recently, a raised acoustic slab had been added to accommodate its use as a fitness area. Overall, the lower ground floor was largely modern and contributed minimally to the historic character of the building, allowing the significant features of the banking hall and upper floors to be preserved and celebrated.

The Trafalgar, which takes its name from Britain’s historic naval victory at the Battle of Trafalgar in 1805, stands as a subtle nod to the country’s maritime heritage and enduring spirit of resilience.
The name evokes the triumph of Admiral Lord Nelson and the Royal Navy over the combined French and Spanish fleets—a defining moment that secured Britain’s naval supremacy and became a symbol of national pride.
By adopting this name, the venue not only acknowledges a pivotal event in British history but also reflects a sense of strength, tradition, and timeless character that resonates with the enduring architecture of King’s Road itself.

Entered directly from King’s Road, the ground floor comprised a newly designed internal entrance lobby, drinking and dining areas, and the main bar. A new dumbwaiter and passenger lift were installed, alongside ancillary back-ofhouse facilities including disabled WC provision. The layout had been carefully configured to minimize physical interventions within the historic banking hall, with back-of-house operations primarily located in the lower ground floor. This approach allowed the interior design to fully maximize the height and volume of the ground floor, enabling
the original architectural features—such as decorative plasterwork, cornices, and panelling—to remain visible and celebrated. Where new joinery or fittings intersected with the historic surfaces of the banking hall, detailed drawings were prepared at scales of 1:10, 1:5, and 1:2 to ensure all interventions were sympathetic to the original fabric.
A new stair, installed within the existing floor void, provided access for customers to the lower ground floor, maintaining a discreet connection between the two levels while preserving the openness of
the ground floor space. Male and female WC facilities were provided on the lower ground floor, alongside a small bar area. The remaining areas were occupied by the kitchen, cellar, and ancillary staff facilities, all arranged to support the operational requirements of the venue. The lower ground floor incorporated the approved fire strategy and shared a means of escape with the residential units above, with exits leading onto Chelsea Manor Street or via the main entrance on King’s Road.








Historically, the areas at the rear of the banking hall and the space originally occupied by 226 King’s Road had been stripped of most original features over time and offered little historical context. The banking hall itself, although altered with openings in the party wall between 224 and 226 King’s Road, retained several notable elements, including decorative window surrounds, plaster mouldings such as panelling and garland details, and the original ornate cornice and ceiling coffers, which remained in place albeit partially adapted to conceal modern services.
The lower ground floor had also been extensively altered prior to the refurbishment, with walls and staircases removed. A raised acoustic slab had been added more recently to accommodate its use as a fitness area. Overall, the refurbishment allowed these largely modern spaces to support the building’s new operational requirements while preserving and highlighting the more significant historic features of the banking hall and ground floor. The design carefully balanced contemporary functionality with the building’s historic character, creating a flexible and inviting environment that celebrated the Edwardian architecture while accommodating modern use.


Fought on 21 October 1805 off the coast of Cape Trafalgar, near Cádiz, Spain, the Battle of Trafalgar was one of the most decisive naval engagements in British history. Under the command of Vice-Admiral Horatio Nelson, the Royal Navy defeated the combined fleets of France and Spain during the Napoleonic Wars, ensuring Britain’s dominance at sea for more than a century.
Although Nelson was mortally wounded in the battle, his tactical brilliance and the courage of his fleet secured a victory that reshaped the course of European history. The triumph became a defining symbol of British unity, courage, and ingenuity—values that continue to inspire the nation’s cultural and architectural legacy.
The name The Trafalgar therefore carries with it a sense of history, pride, and enduring craftsmanship, qualities that are reflected in the building’s restoration and renewed purpose on King’s Road.















Saturday Sept 14th
At Six o’Clock arrived at Portsmouth and having arrainged all my business Embarked at the Bathing Machines with Mr Rose and Mr Canning at 2 got on board the Victory at St Helens who dined with me preparing for sea.
Saturday Sept 15th
At day Weighed with Light air Northerly at 6 was obliged to anchor at 8 weighed all day Light breezes at sun sett off Christ church all night Light Breezes & very foggy Euryalus in Company.
Monday Sept 16th
First part Light Breezes & very foggy at noon fresh Breezes Westerly in the Evening off the Berry head 4 miles. All night fresh Breezes Westerly.
Tuesday Sept 17th
Fresh Breezes WSW at 9 abreast of Plyo. sent in Euryalus to call out the Ajax and Thunderer all night standg to the Westward Wind from SW to SSW.
Wednesday Sept 18th
First part light Breezes & heavy western swell Wind South Lay too for the Ajax and Thunderer [signal?] North at noon they joined made all possible Sail all night Breezes vble from SE to SSW swell from the Westward.
Thursday Sept 19th
First part fresh gales & heavy sea at noon hard gales at SW at 6 hard Rain wind at NW all night heavy sea & fresh breezes
Friday Sept 20th
Modte Breezes WSW & heavy Sea at 9 Saw a Squadron of Ships of War at 11 passed the Squadron of Rear Adl Stirling consisting of 5 Sail of the Line and one frigate At noon Wind WSW Saw a frigate to Windward which made the private signal at 2 Spoke the Decade carrying the flag of Rear Adl Sir Richd Bickerton Capt Stuart came on board gave him orders for his farther proceeding. Fresh gales at 3 reeft the Courses. All night very fresh gales from the NW which came on with heavy rain at 9 oClock
Saturday Sept 21st
Fresh gales all day at NNW at night wind at North & NE heavy swell.
Sunday Sept 22nd
Modte Breezes at NE & heavy swell from NW at 10 o Clock saw a Convoy of 7 Sail under a Vessel of War in the SE quarter at 6 o Clock Euryalus made the Signal that a Vessel was reconnoitering in the East quarter all night fresh gales at East to ESE.
Monday Sept 23rd
Fresh gales EbS at 6 o’Clock abreast of Cape Finisterre 17 Lgs at noon modte Wr in Lat 42o: 25N all night fine weather wind Easterly.
Tuesday Sept 24th
Modte Breezes SE at noon in Lat 4o: 05 No: 3pm Light airs South in the Evening wind Northerly Light Breezes all night at NE and a swell from the NW
Wednesday Sept 25th
Light airs Southerly saw the Rock of Libra SSE 10 Leagues at Sunsett the Capt. of the Constance came onboard sent my letters for England by him to Lisbon and wrote to Capt Sutton & the Consul the Enemys fleet had not left Cadiz the 18th of this month therefore I yet hope they will wait my arrival.
Monday Sept 26th
Light airs at NW all day Rock of Lisbon in sight to the NNE 13 or 14 Lgs. At 4 o’Clock sent Euryalus to join Vice Adl. Collingwood with my orders to put himself under my Command considering myself as within the Limits of my Command all night Light Breezes at NW.
Friday Sept 27th
At day light Cape St. Vincent SEbS by Compass 6 leagues saw a Sloop of War or Small frigate East 5 or 6 miles called her in she proved to be the Nautilus Sloop from Vice Ad. Collingwood bound to England with dispatches at noon abreast of Lagos Bay fresh Breezes NW at 1am brought too fresh Breezes NWbN.
Saturday Sept 28th
Fresh Breezes at NNW at daylight bore up & made sail at 9 saw the Aetna Cruizing at noon saw nine Sail of ships of War bearing East Latde. 36: 32 N at one saw Eighteen Sail nearly Calm in the Evening joined the fleet under Vice Admiral Collingwood saw the Enemys fleet in Cadiz amounting to 35 or 36 Sail of the Line.
Sunday Sept 19th
Fine Weathr gave out the necessary orders for the fleet sent Euryalus to watch the Enemy with the Hydra off Cadiz.
Tuesday Oct 1st
Fine Wt. Adl Louis’ Squadron joined with Thunder & Eurymion with sprung masts. Sent Aetna to cruize under Cape St. Marys Pickle joined from Plymouth.
Wednesday Oct 2nd
Fine Wt: westerly sent Thunder to Gibr. Sarda. Palermo & Naples. Sent Canopus, Tigre, Spencer Queen, Zealous to Gibr & Tetuan for water & provn.
Thursday Oct 3rd
Fine Weather. Sent Eurydice to Cruize under Cape St. Marys
Friday Oct 4th
Fine Weather Wind Easterly several Ships of War in sight to the Southward which proved to be Adml. Louis’ Squadron.
Saturday Oct 5th
Fine weather, Bittern joined with 2 transports from Gibr, laying too clearing transports.
Sunday Oct 6th
Mode. Breezes ESE clearing transports in the night fresh breezes Easterly.

Monday Oct 7th
Fresh Breezes & a hasty sea joined the Amphion with a transport from Lisbon Naiad & Niger with transports from Gibraltr. Sent the Bittern to Lisbon with the Gibr. Mail at noon mode. Breezes & a swell from the Eastward all night fresh Gales Easterly.
Tuesday Oct 8th
Fresh Breezes Easterly. Royal Sovereign in sight to Leeward at 4pm she joined, sent the Naid off Cadiz. Eurydice captured a Spanish Privateer.
Wednesday Oct 9th
Fresh Breezes Easterly receiv’d an account from Capt. Blackwood that the French ships had all bent their Topgt sails sent the Pickle to him with orders to keep a good look out. Sent adl. Collingwood the Nelson Touch. At night Wind Westerly
Thursday Oct 10th
Fine Wr: Wind Westerly receiv’d an account that the Enemy are ready for Sea and at the very harbours Mouth. Bellisle made her number at noon Bellisle joind from Plyh: in the Evening the Renommee frigate & Confounder Brig sent the Aetna & Confounder to Gibraltar. All night very fresh Breezes NW & Rain.
Sunday Oct 12th
Fresh Breezes NWesly keeping to the Westward Renomee Joined.
Sunday Oct 13th
Fine Weather Agamemnon joined from England having fallen in with the French Squadron off Cape Finistr. consisting of 1 Three decker and 5 Two deck’d Ships and had a narrow Escape from Capture.
Monday Oct 14th
Fine Weather Westerly Wind sent Amphion to Gibraltar & Algiers Enemy at the Harbours Mouth placed Defence & Agamemnon from Seven to Ten Leagues West of Cadiz and Mars & Colossus five Leagues East from the fleet whole station will be from 15 Lgs: to twenty West of Cadiz and by this Chain I hope to have a constant communication with the frigates off Cadiz.
Tuesday Oct 15th
Fine Wt Westerly sent Renommee & L’aimable to Gibraltar & Malta and the transpt to Gibt Adl Louis is order’d to see the Convoy above Cartagena & the frigates to escort them to Malta. all night mode. Breezs. Westerly
Wednesday Oct 16th
Modte: Breezes Westerly all the forenoon Employd forming the fleet into the order of Sailing at noon fresh Breezes WSW & Squally in the Evening fresh gales Enemy as before, by Sign: from Weazel.
Thursday Oct 17th
Mode: Breezes NWerly Sent Donegal to Gibraltar to get a ground Tier of Casks. Receivd accounts by the Diligent Store Ship that Sir Richd. Strachan was supposed in Sight of the French Rochford Squadron which I hope is true. At Midnight the Wind came to the Eastward.
Friday Oct 18th
Fine Weather Wind Easterly the Combined fleets cannot have finer Wt. to put to Sea.
Saturday Oct 19th
Fine Wt. Wind Easterly at ½ pt: 9 the Mars being one of the look out Ships made the Signal that the Enemy were coming out of Port made the Signal for a general Chase SE. Wind at South Cadiz bearing ESE by Compass distance 16 Leagues. At three the Colossus made the Signal that the Enemy fleet was at Sea in the Evening made Sigls to Observe my motions during the night, for the Britannia Prince & Dreadnought they being heavy sailers to take Stations as Convenient and for Mars, Orion Bellisle Leviathan, Bellerophon & Polyphemus to go ahead during the Night and to carry a light Standing for the Streights Mouth
Sunday Oct 20th
Fresh Breezes SSW and rainy. Communicated with Phoebe, Defence and Colossus, who saw near forty sail of ships of War outside of Cadiz yesterday evening, but the wind being Southerly they could not get to the Mouth of the Straits. We were between Trafalgar and Cape Spartel. The frigates made the signal that they saw 9 sail outside the Harbour; gave the Frigates instructions for their guidance, and placed Defence, Colossus and Mars between me and the Frigates. At noon fresh gales and heavy rain, Cadiz NE 9 Leagues. In the afternoon Captain Blackwood telegraphed that the Enemy seemed determined to go to the Westward; and that they shall not do if in the power of Nelson and Bronte to prevent them.
At 5 Telegraph’d Capt. Bd. that I rely’d upon his keeping sight of the Enemy at 5 o’Clock Naiad made the signal for 31 Sail of the Enemy NNE. The frigates and Look out Ships kept sight of the Enemy most admirably all night and told me by Signals which tack they were upon. At 8 We wore & stood to the SW and at 4am wore and stood to the NE.
Monday Oct 21st
At day light saw the Enemys Combined Fleet from E to ESE bore away made the Signal for order of sailing and to prepare for Battle the Enemy with their heads to the Southward, at 7 the Enemy wearing in succession, May the Great God whom I worship Grant to my Country and for the benefit of Europe in General a great and Glorious Victory, and may no misconduct in any one tarnish it, and may humanity after Victory be the predominant feature in the British fleet, for myself individually I commit my Life to Him who made me, and may his blessing light upon my Endeavours for serving my Country faithfully. To Him I resign myself and the just cause which is Entrusted to me to Defend. Amen, Amen, Amen.
(This is Nelson's last diary entry, known as his 'Trafalgar Prayer'.)
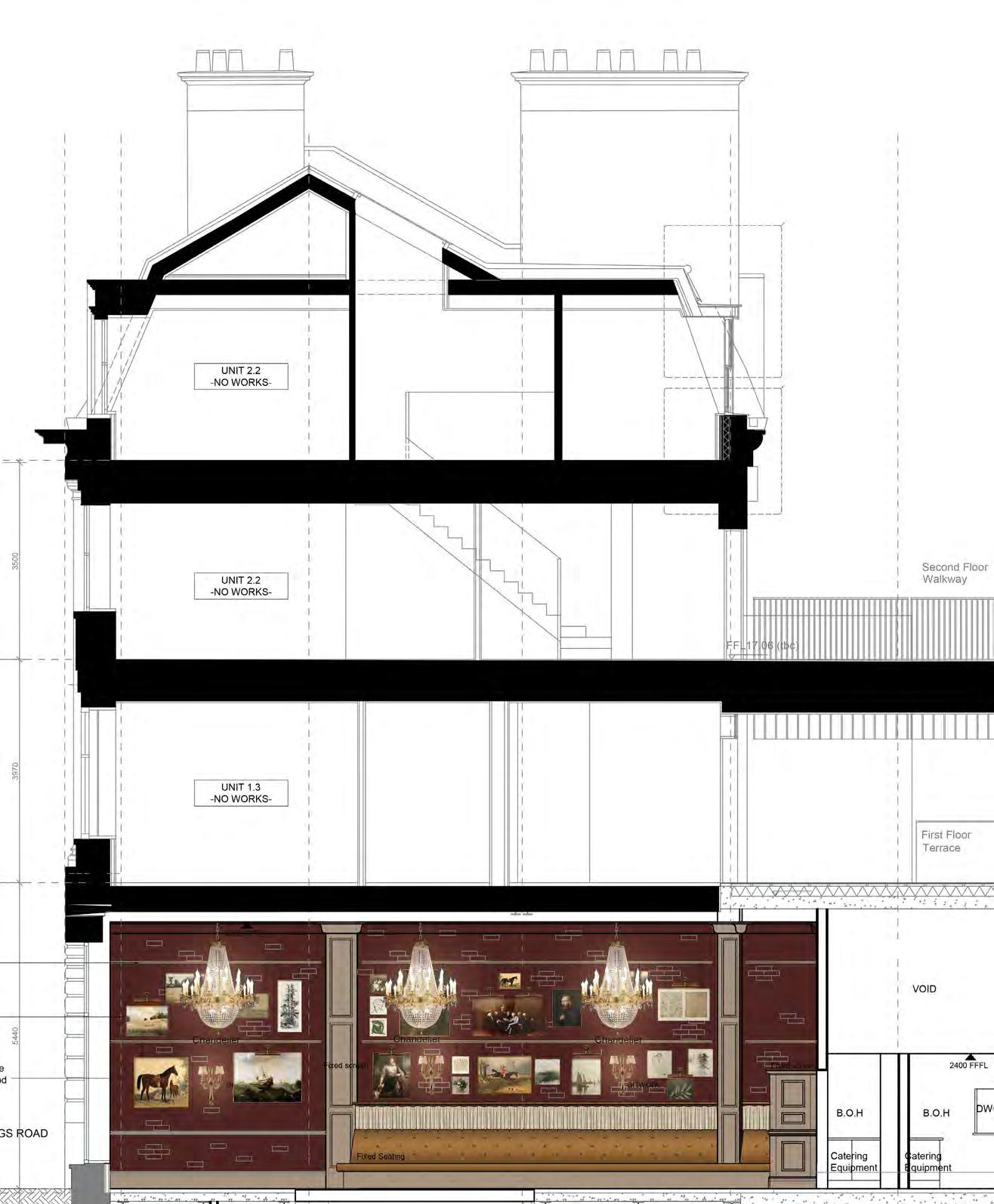
As guests enter through the main lobby into the Old Banking Hall, a space defined by its impressive five-metre-high agedbronze ceilings, four grand chandeliers and bespoke wallpaper framed by original festoon plasterwork. Vintage artwork, historic banking documents and oversized feature lamps create an atmosphere that feels both elegant and timeless. Restored Georgian windows and ornate plaster detailing sit harmoniously alongside the warm new interior scheme, which introduces an impressive central bar, intimate booth seating, leather dining chairs and striking statement chandeliers. Together, these elements highlight the hall’s Edwardian character while offering a welcoming contemporary experience.
Beyond the Old Banking Hall, accessed through two glazed and panelled archways, lies the Dining Room, which seats up to 45 guests. Rich burgundy walls, along with a curated collection of vintage, contemporary and bespoke artwork and tapestries, create an intimate and enveloping setting. Velvet tasselled wall lights, classic empire chandeliers, dark timber tables and tan leather banquette seating come together to form a characterful, inviting dining space that blends heritage charm with modern comfort.
Descending to the lower level, guests discover The Havannah Room—a dedicated space for live entertainment and private gatherings that reflects King’s Road’s vibrant cultural history. A velvet-draped stage, antique mirrored ceiling, concealed bar and high-quality sound system shape an atmospheric venue ideal for performances. Whether hosting private celebrations, burlesque evenings, comedy nights or the classic pub quiz, the room brings energy and a sense of occasion to the venue.
It is a pleasure to collaborate once again with our friends at Three Cheers to deliver such a distinctive and beautifully crafted space. Impressive in scale, design and experience, it is a venue that invites guests to return again and again.































What a wonderful addition to Kings Road. Such an amazing building so well renovated and designed, we loved our visit.
Pauline D
What an addition to the Kings Rd. Will become the place to go I am sure.
Anonymous
Beautifully presented venue, staff are very friendly, efficient and ‘grown ups’. I would definitely go back, for the surroundings and proximity to my home. A welcome addition to Chelsea.
Anonymous
We had a fabulous time at The Trafalgar for their opening evening- they have done the place up beautifully and it felt very premium but still cosy.
Elle
We are Chelsea residents and delighted to see a new beautifully decorated pub opened on King Road.
Yuka D
The vaulted ceilings and rich decor allow for great acoustics and therefore, easy conversation. It hits all the notes of a gastro pub and the Sunday menu is appropriate. Easy going and relaxed without the rancid musty smell of the more marinated pubs! Great addition to the Chelsea neighbourhood.
Rob R
We had a wonderful lunch at this new pub. What a great place to meet and spend some time together. We were seated by the large window in the dining area and really enjoyed the view of the Old Town Hall. Great atmosphere.
Annette D
The Trafalgar is the a handsome new establishment (the first new pub on King's Rd for more than 200 years apparently) with eclectic interiors that are part faux antique homage to its maritime namesake, part contemporary colonial, with flattering lighting, a convivial vibe and pleasant staff.
Natalie G
Absolutely gorgeous pub / restaurant newly opened opposite Chelsea Town Hall.
Ellen K
Was very excited to see this new addition to the Kings Road. We dropped by the other day and absolutely loved it! Will be my go to when shopping with friends- and for suppers too. Staff were friendly, great atmosphere and delicious food. Love the airy feeling and gorgeous decor. Looking forward to going around Christmas time.
Nicki
What a brilliant find! I was out shopping and popped in with the family. It was very busy but the manager found us a window table - the food was fabtastic and so lovely watching the world go by through the large window. Absolutely love this place. So good to have a new pub on the Kings Road.
N M
Beautiful pub, stunningly done. Very popular with a great vibe.
Alex B
Beautiful interior and decoration and a great selection of drinks! Lovely atmosphere.
Immogen D
A fantastic and welcome addition to Kings Road. A proper pub with beautiful decor sympathetic to its location, warm and friendly staff and great food at good prices
Suzy C
Went for a lunch after a lovely day of shopping, such a beautiful pub - so elegant. Great for people watching as the grand hall is opposite. Would definitely recommend to anyone!
Darcy
What a pub to have on the Kings Rd!! Great atmosphere, great decor and really wonderful food and staff. THE pub to go to.
Jemma E

The former bank is now an elite pub in a prime spot in Chelsea...
The first new pub to launch in Chelsea's famous King's Road in over 100 years has officially opened its doors to the public, following a £2.4 million renovation project. The Trafalgar occupies a plum spot on King's Road, just opposite Chelsea Town Hall, and it is the latest project from Three Cheers Pub Co, set up by a trio of childhood friends, Tom Peake, Mark Reynolds and Nick Fox.
The Trafalgar is designed to be the archetype of a British pub - bringing drinking, dining and live entertainment back to Chelsea. The pub is located in a former bank, which is an impressive Grade II listed Georgian building, with long arched windows giving a powerful first impression of the front of the building.
Guests enter through a lobby marked by a small Trafalgar Square lion into the main bar area, named 'The Old Banking Hall', with its five metre high bronze ceilings, mighty Flemish chandeliers and an impressive dark oak bar. Adjacent to the Old Banking Hall, is the dining room with capacity for 45 guests. The Trafalgar's owners say the dining room combines "grandeur and warmth" with its burgundy walls, chandeliers, dark wooden tables and leather banquette seating.
Meanwhile, downstairs is the entertainment venue, dubbed 'The Havannah Room', featuring a staged area with velvet curtains, a first-class sound system, a hidden bar and an antique mirrored ceiling. The venue can be used for club nights or private bookings.
Stewart Carr
There are very few things that we Londoners enjoy quite so enthusiastically as a humble pub...
And you’d blooming well hope so, because there are – quite literally – thousands of them dotted around the capital. But we city-dwellers are generous folk, and so we’re always willing to budge up and make room for a new wonderful watering hole. Especially when the new boozer in question comes in the form of a Grade II listed building that’s set to be the first new pub to land on London’s swanky and stylish King’s Road in over 100 years.
The ale-aficionados are actually responsible for a fair few of London’s beloved boozers, and The Trafalgar will mark their tenth pub in the capital city. Setting up shop inside a Grade II listed former bank on the King’s Road; the trio of school friends have transformed the historic building into a what is set to be a vibrant and unique venue. The two-story spot has undergone a rather hefty £2.4 million makeover for the occasion, and is very nearly ready to swing open its doors.
Spread across two fun-filled floors, The Trafalgar won’t just be your average London pub. Because alongside all of its classic taproom offerings, it’ll also have an entire floor dedicated to live entertainment. The ground floor is where you’ll find the main pub and restaurant area, perched beneath the outrageously high ceilings and large Georgian windows.
The pub room will boast an impressive bar, some intimate booth-style seating, some fancy chandeliers, and some rather gorgeous vintage artwork. And based on the team’s other venues, I’m sure expect a decent array of beer and pub grub. Downstairs will certainly be keeping Londoners entertained with its first-class sound system, antique mirrored ceiling, hidden bar, and fully stack programme of live music, cabaret, and stand-up comedy (courtesy of the award-winning Always Be Comedy).
Katie Forge

Situated on one of London’s most iconic streets, this former Grade II listed bank, part of the Cadogan Estate, has been transformed into a two-storey pub featuring a restaurant and live performance space for both locals and visitors to enjoy.