TALLER DE DISEÑO_PROYECTO FINAL_BEAUTIFUL LANDSCAPE

Page 1

BEAUTIFUL LANDSCAPE

TALLERDEDISEÑO4 “AÑO DEL FORTALECIMIENTO DE LA SOBERANÍA NACIONAL” UNIVERSIDAD PRIVADA DEL NORTE ESTUDIANTES: - PajaresRodríguez,MileneG. - PompaCastrejón,NiltonJ. - UrquíaRodríguez,DavyP. ARQUITECTOS: - VargasBriones,KarlaAmparo. - RodríguezChávez,JoséManuel. CICLO: TEMA: - Cuarto - ExamenFinal CAJAMARCA 2022
ÍNDICE
PRESENTACIÓNDELAUTOR
INTRODUCCIÓN
Introducción 3.LINEAMIENTOS
Lineamientos 4. PLANODEUBICACIÓN
Planodeubicación 5.MAQUETAENTORNO
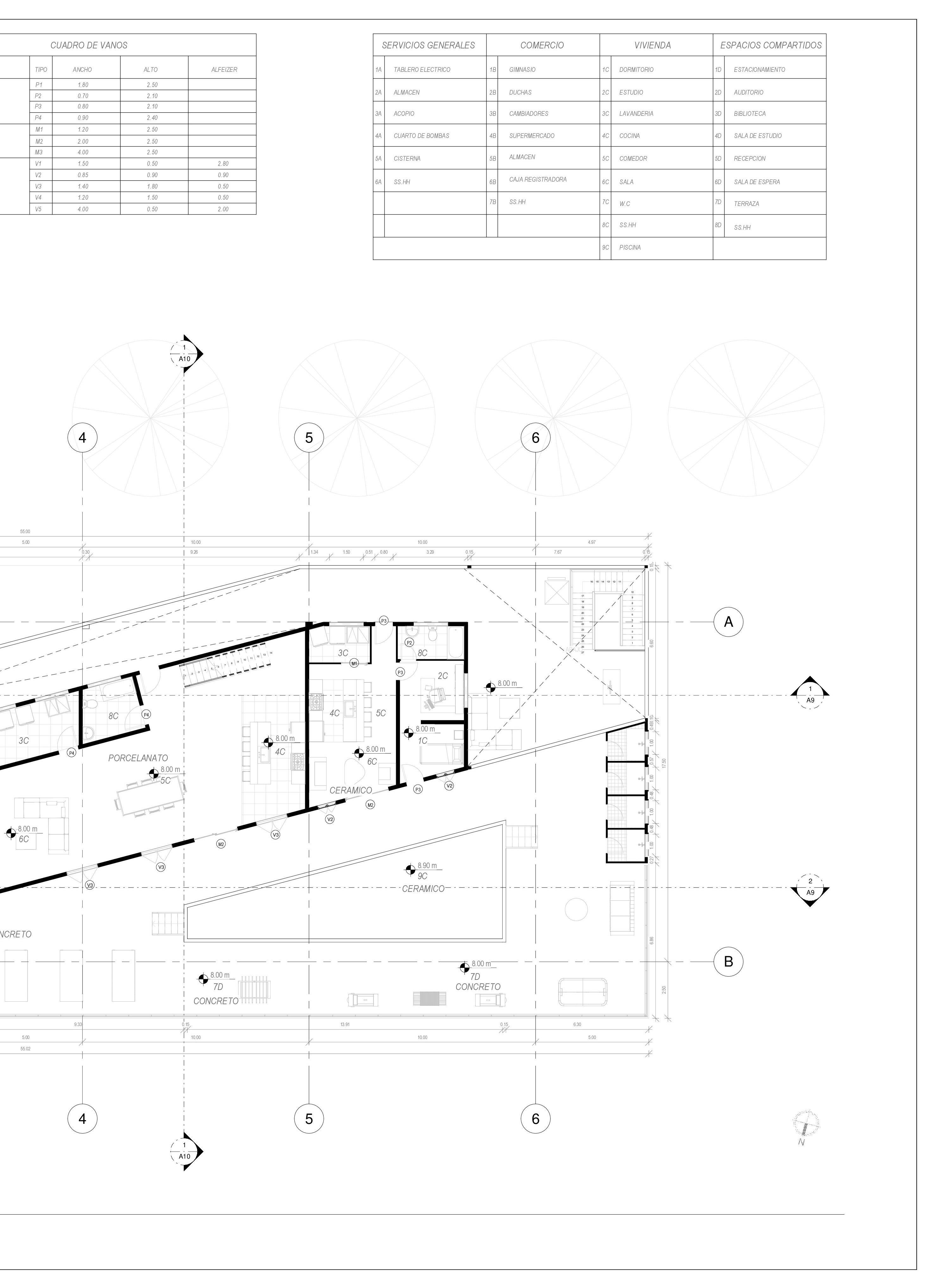
Maquedadeentorno 6.PLANOSARQUITECTÓNICOS 6.1. Sótano 6.2. NivelBajo
PrimerNivel
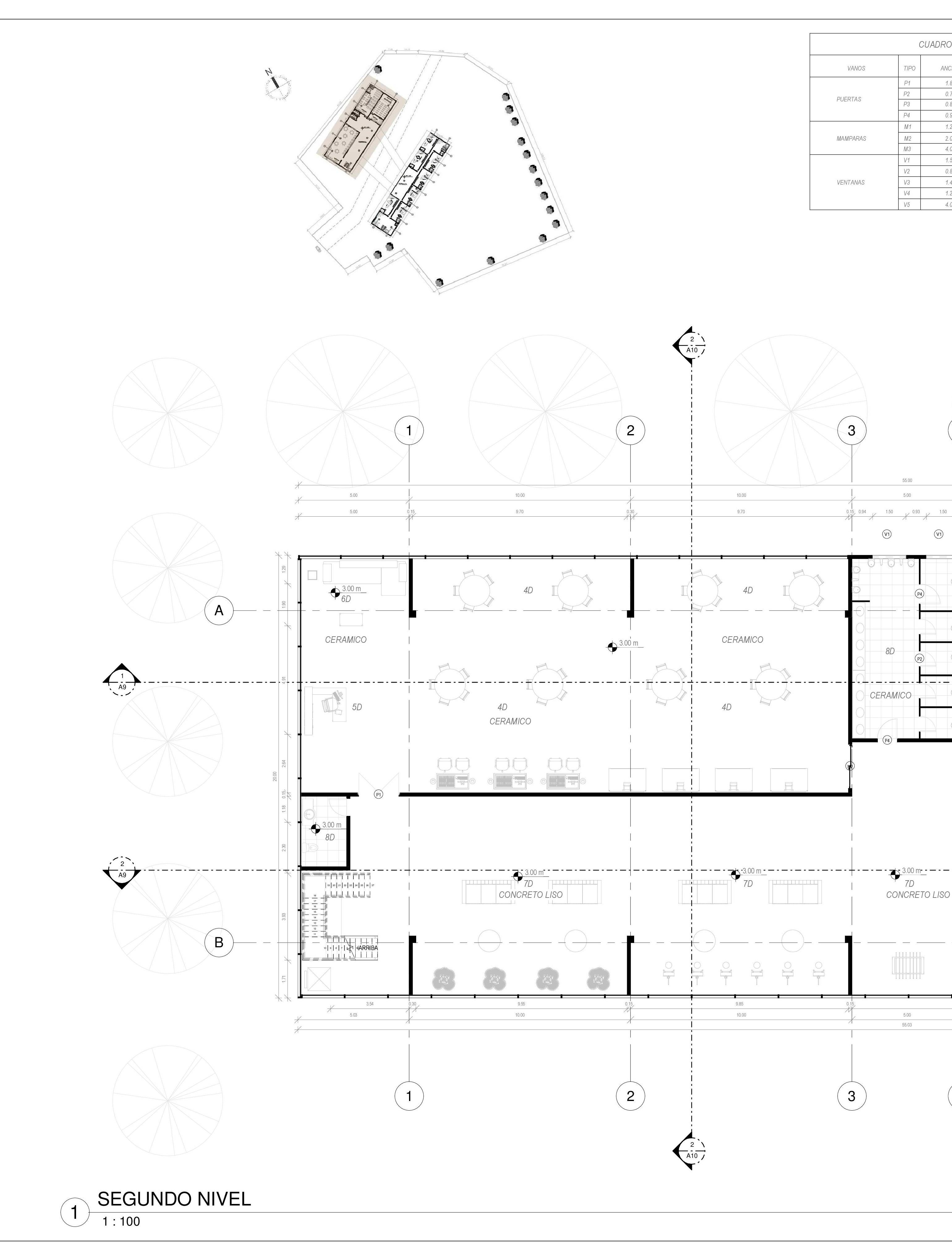
SegundoNivel
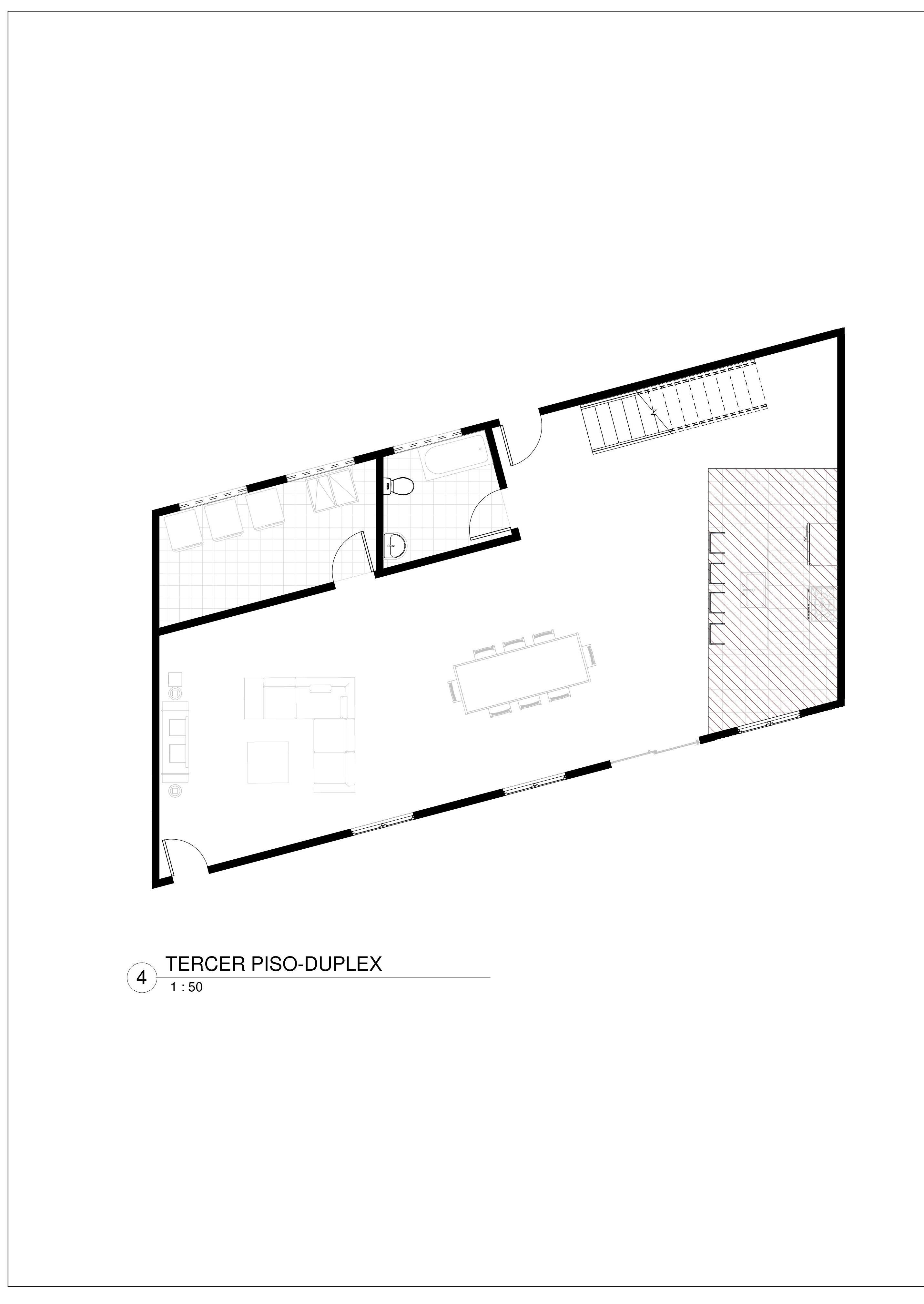
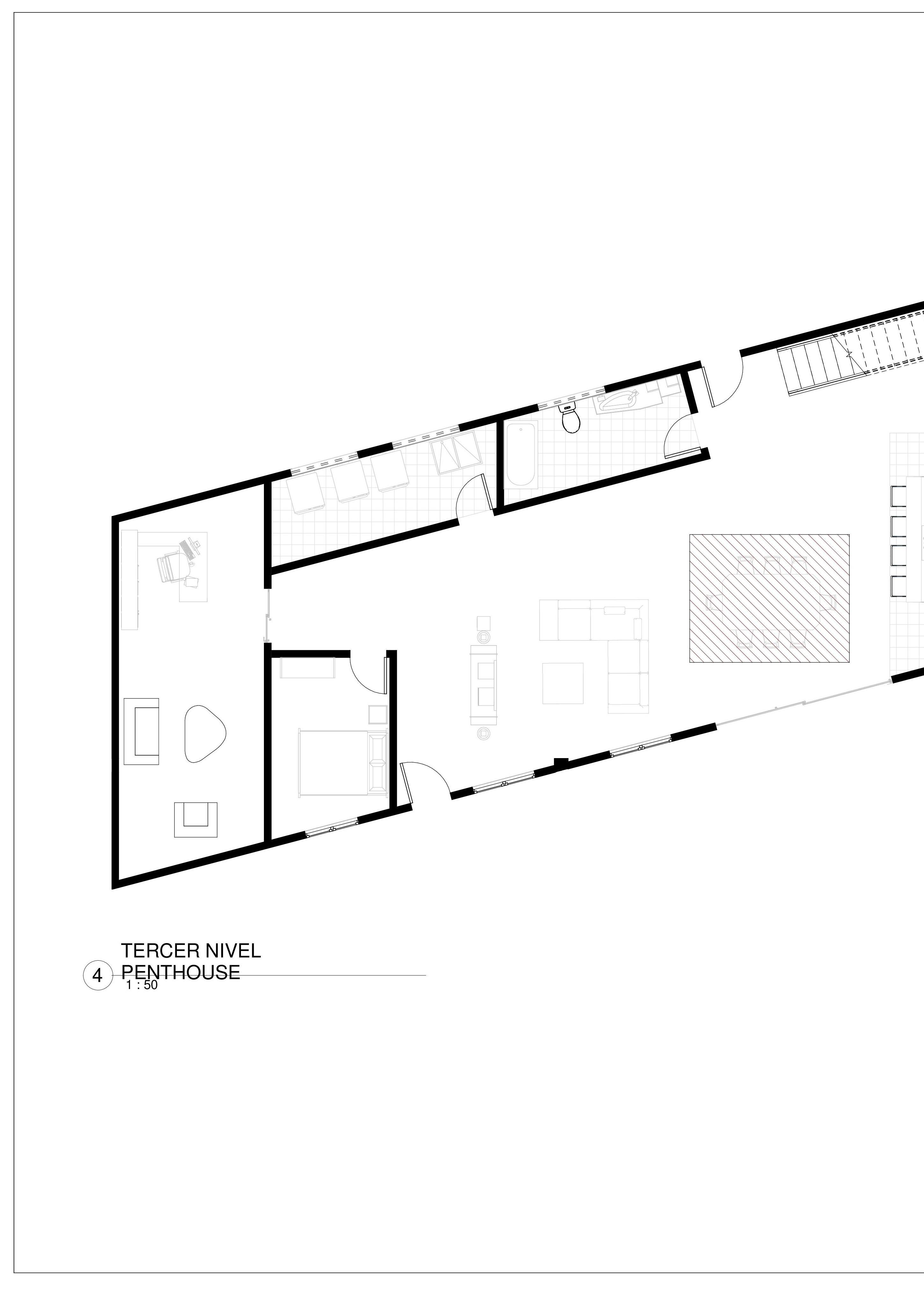
TercerNivel
CuartoNivel
PlanoDeTechos
1.
2.
2.1
3.1.
4.1.
5.1.
6.3.
6.4.
6.5.
6.6.
5.7.
Maqueta
10.
11.DETALLES 11.1.Detalles 12.ATMÓSFERAS
Interiores 12.2.Exteriores
7.CORTESARQUITECTÓNICOS 7.1.CortesArquitectónicos 8.ELEVACIONES 8.1.Elevaciones 9.MAQUETAADETALLE 9.1.
adetalle
ISOMETRÍA 10.1.Isometría
12.1.
13.LÁMINARESUMEN 12.1.LáminaResumen

PRESENTACIÓN DEL AUTOR

CARRERA: Arquitectura CURSO: TallerDeDiseño CICLO: Cuarto N00281127@upn.pe 944822902 Trabajo enequipo Responsabilidad Creatividad Razonamientológico 2009–2014 Primaria–CristoRey 2015–2019 Secundaria–G.G.C. Actualidad Pregrado – Universidad PrivadaDelNorte NILTON J. POMPA CASTREJÓN Dibujar Aprenderidiomas Viajar EscucharMúsica Inglés Español (IdiomaNativo) - EDUCACIÓN: Certificacionesensecundaria. - RECONOCIMIENTOS: - IDIOMAS : - PASATIEMPOS: - HABILIDADES:
N00273377@upn.pe 933830571 • Arte • Fotografía • Viajar • Música • 2010 – 2015 Primaria – Juan PabloII • 2016 – 2020 Secundaria – Juan PabloII • Actualidad Pregrado UniversidadPrivadaDelNorte MILENE G. PAJARES RODRÍGUEZ CARRERA: Arquitectura CURSO: TallerDeDiseño CICLO: Cuarto - EDUCACIÓN: - RECONOCIMIENTOS: - IDIOMAS : - PASATIEMPOS: - HABILIDADES: Inglés Español (IdiomaNativo) • Trabajoenequipo. • Adaptaciónalcambio • Creatividad • Proactividad • Certificación en Programación Neurolingüística. • CertificaciónenOfficeBásico. • Certificación en Taller De HabilidadesBlandas. • CertificaciónenDesignThinking.
• EscucharMúsica • Deporte • Viajar • Dibujar • 2010–2015Primaria • 2016–2020Secundaria • Actualidad - Universidad PrivadaDelNorte DAVY P. URQUÍA RODRÍGUEZ CARRERA: Arquitectura CURSO: TallerDeDiseño CICLO: Cuarto - EDUCACIÓN: - RECONOCIMIENTOS: - IDIOMAS : - PASATIEMPOS: • Certificaciones en secundaria. N00284602@upn.pe 925529110 • Inglés • Español (IdiomaNativo) • Trabajo enequipo. • Toleranciaalapresión. • Empatía. • Inteligenciaemocional. - HABILIDADES:

INTRODUCCIÓN:

Elpresenteproyecto,seubicaenlaciudaddeChachapoya, donde creemos que es devital importancia tenerun buen lugar o ambiente en cuál la población logre sentirse cómoda,agustoysegura.

Por ello realizamos este edificio que tiene como función satisfacer algunas de las necesidades que tienen las personasdeChachapoyas.

Para lograr un buen resultado se tomó en cuenta un análisis, que se fue haciendo desde lo más macro hasta lo más micro, en el cuál analizamos el lugar en donde realizamos dicho proyecto, además estudiamos su entorno, el usuario y todo lo que nos ayudaría a realizar una buena propuesta. además de que respetamos y tomamosencuentaeláreaverdeparaqueasíseaunlugar másatractivoparalavistadelaspersonas.

1.1.
2. PLANO
UBICACIÓN
DE
2.1. PLANO DE UBICACIÓN:

2

Jr.Sosiego LosRosales

Av.VirgendeAsunta 1 4
Víadeevitamiento 3
3.
MAQUETA DE ENTORNO
3.1. MAQUETA DE ENTORNO
PLANOS ARQUITECTÓNICOS
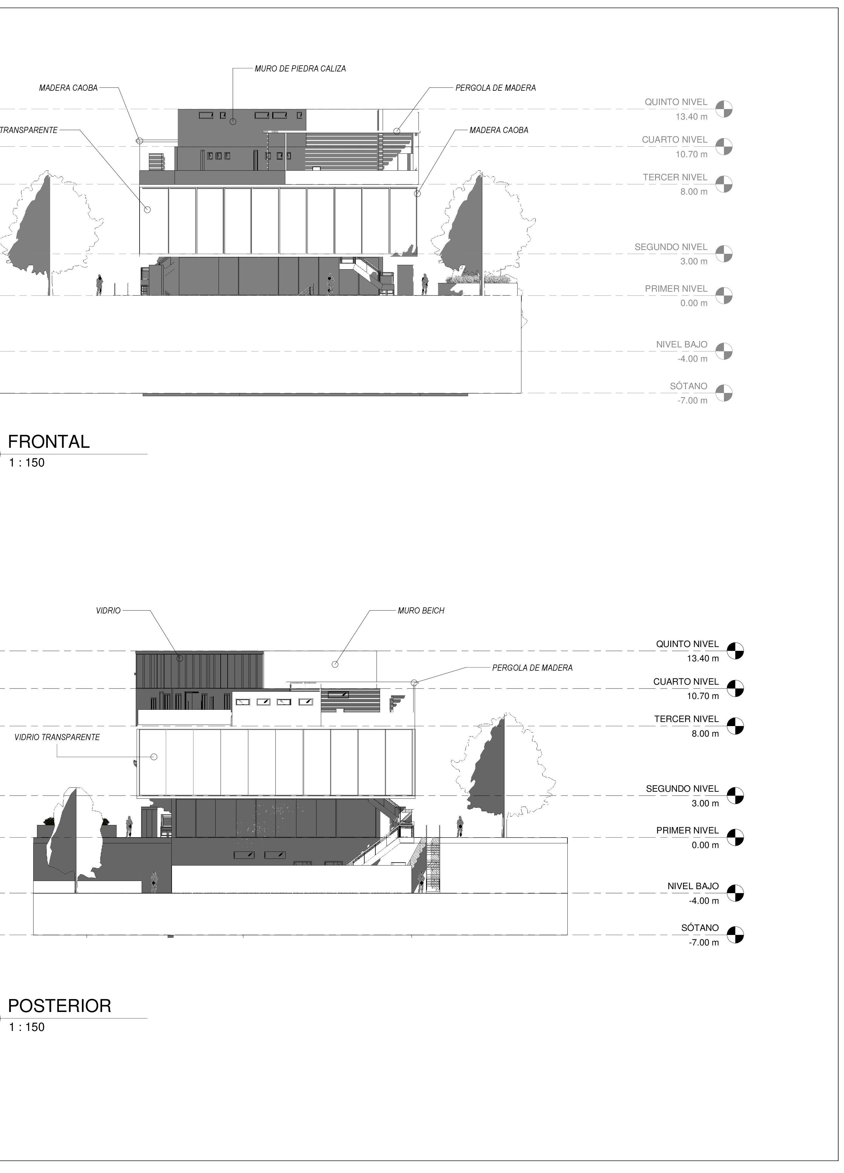
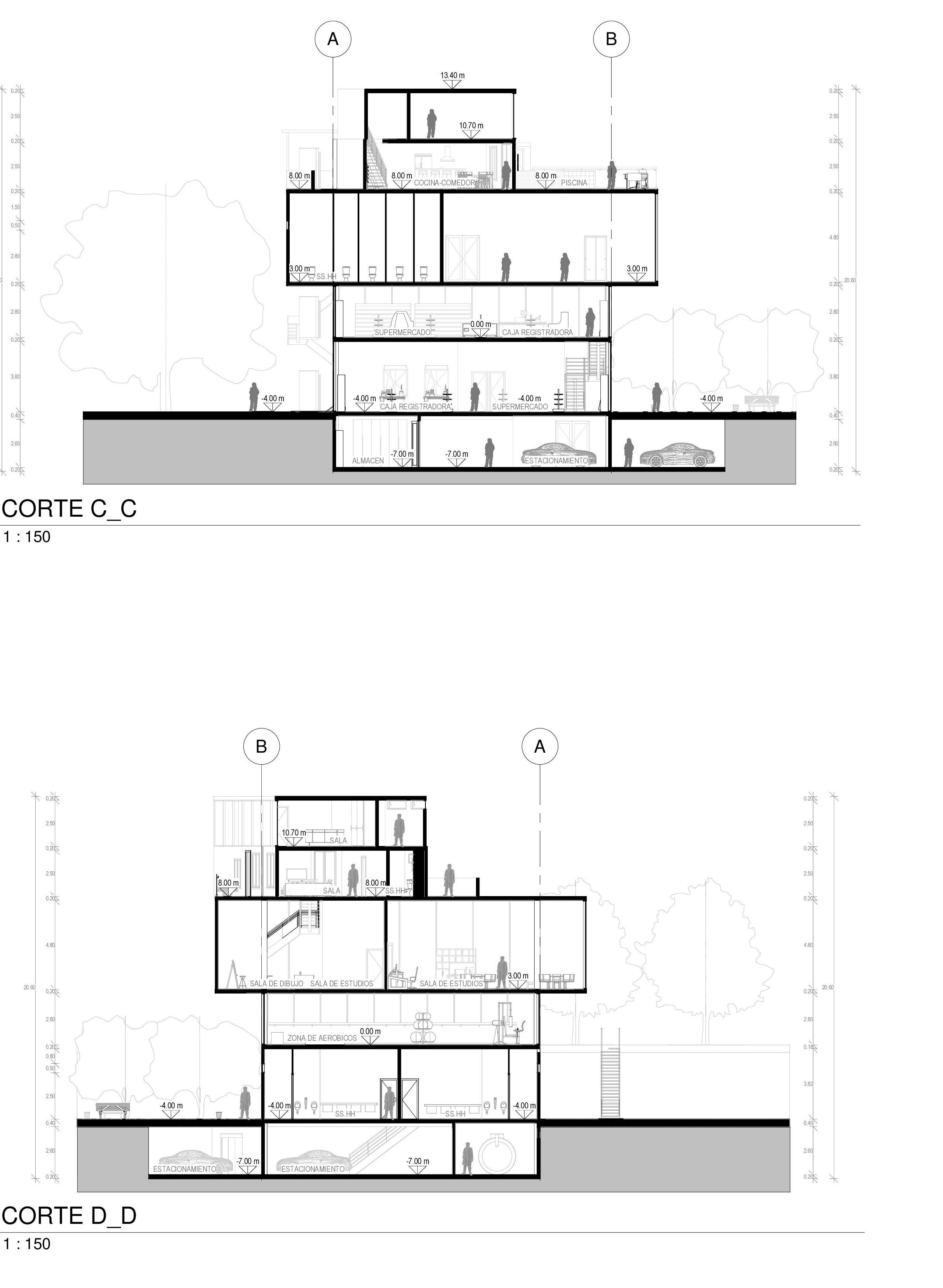
CORTES ARQUITECTÓNICOS

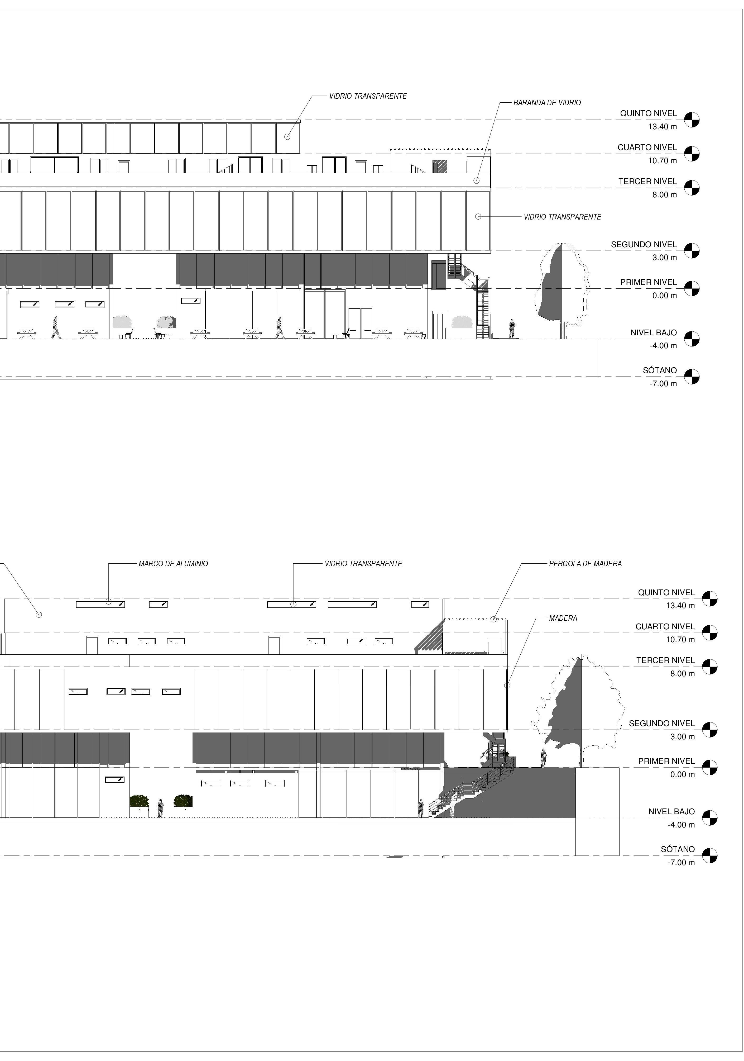
ELEVACIONES

MAQUETA
A DETALLE

DETALLES ARQUITECTÓNICOS

ISOMETRÍA
ATMÓSFERAS
ÁTMÓSFERAS EXTERIORES
ÁTMÓSFERAS INTERIORES
LÁMINA RESUMEN

LÁMINA RESUMEN

El proyecto presentado trata de cumplir las expectativas del usuario, manteniendo la calidad con la belleza del edificio.Ademásdequererdardelasáreasverdesdonde podrándisfrutardelashermosasvistas.

En esta edificación podemos encontrar distintos ambientes que la población puede disfrutar como un estacionamiento que sirve tanto para la zona privada como para la de comercio que consta de tres niveles dondesepuedeencontrarunGYM,unsupermercado,una amplia sala de estudios, una biblioteca y un auditorio. Mientras que la zona privada tiene dos niveles y se encuentranloslofts,losminis–departamentosylospenthouse.

Todos estos ambientes cuentan con una buena iluminación y ventilación, además de tener buenas visuales y tratar de brindar seguridad y comodidad a los usuarios.

Turn static files into dynamic content formats.

Create a flipbook
Issuu converts static files into: digital portfolios, online yearbooks, online catalogs, digital photo albums and more. Sign up and create your flipbook.