Luis Cortes Architecture Portfolio Graduate/Undergraduate Work

Page 1


BIO & CONTACT

I am Luis Cortes, an Architectural Designer and Repossession Support Supervisor at Credit Acceptance Corporation. I hold a bachelor’s degree in Architecture from Lawrence Technological University and a Master of Architecture from the Taubman College of Architecture and Urban Planning at the University of Michigan. In my supervisory role, I manage the performance and development of a team of eight employees.

Since 2012, I have fully dedicated myself to studying architecture while simultaneously holding a full-time leadership role in an auto finance company.

My architectural passion centers around advancing affordable housing through the exploration of construction technologies and methods. I am resolute in my goal to attain licensure as an architect, with a vision to craft sustainable and socially responsible designs that cater to both collective and individual spatial experiences. I advocate for integrating Passive House building principles and leveraging cutting-edge digital tools to elevate environmental awareness.

As a motivated team player, I actively pursue opportunities for personal and professional growth, focusing on advancing both my studies and my career.

Freelance Residential Design Work, MI, United States 2015 - Present

Calderon Residence | Second Floor Addition

Pontiac, MI | June 2015

Worked closely with the client on the development of the CD for a 800sqft second floor timber construction addition in ArchiCAD needed for city’s approval. Measurements were taken directly from the existing house and construction approval was granted.

Cabrejo’s Residence | Garage and Second Floor Addition

Royal Oak, MI | April 2020 - May 2020

Worked closely with the client on the Pre-Design, SD, DD in Sketch up and CD in Revit to seek city’s approval for the construction of a 2000sqft addition. Measurements were taken directly from the existing house and construction approval was granted.

Credit Acceptance Corporation

Repossession Support Supervisor | Southfield, MI | 2017 - Present.

Recruit, assess employees fit, make employment decisions as necessary, set and continually reinforce expectations for the work, provide performance feedback, track progress, coach, identify when/how to use training to improve performance, train during team meetings, build trust and credibility with all stakeholders, monitor staffing levels, ensure plan is driving the intended behaviors and performance outcomes, identify opportunities to improve tools, processes, policies, assess the team and department structure.

Credit Acceptance Corporation

Senior Repossession Specialist Bilingual | Southfield, MI | 2009 - 2017 (Trainer & Mentor)

Credit Acceptance Corporation

Funding Credit Analyst | Southfield, MI | 2007 - 2009

Credit Acceptance Corporation

Recovery Specialist | Southfield, MI | 2003 - 2007

AWARDS

2018 Q2 Workplace Hero

https://youtu.be/M4-XiHEUiEw

Copy on the link and paste on one of the INTERNET browsers to watch the video

NR-Winkelman Scholarship Award, 2022

University of Michigan, Taubman College of Architecture and Urban Planning, Ann Arbor, MI

Architecture Graduate Grants Award, 2022

University of Michigan, Taubman College of Architecture and Urban Planning, Ann Arbor, MI

Taubman College of Architecture and Urban Planning

UNIVERSITY OF MICHIGAN | ANN ARBOR, MI

Master in Architecture (02-May-2024)

Lawrence Technological University | SOUTHFIELD, MI

BIM Certification (2022-Present)

Lawrence Technological University | SOUTHFIELD, MI

Bachelor of Science in Architecture (2020)

Oakland Community College | AUBURN HILLS, MI

The Associate in Applied Science degree in Architecture Extended degree (2014)

SKILLS, CERTIFICATIONS & LANGUAGES SPOKEN

Revit, Rhino, Grasshopper, Sketch up, Adobe Suite (Photoshop, InDesign, Illustrator, Premier), ArchiCAD, Auto CAD, Lumion, Enscape, 3D Printing, Laser Cutting, Climate Consultant, Microsoft Office (Excel, Word, Power Point), CNC Machine.

Leadership (White-belt and Orange belt) Certified.

LIDAR FARO (Focus Scanner User) Certified

BIM Certification, 2020 - Ongoing Lawrence Technological University, Southfield MI

Fluent in English and Spanish (Native Language)

LEADERSHIP

Credit Acceptance Corporation

Repossession Support Supervisor | 2016 - Present

Senior Repossession Specialist Bilingual | 2009 - 2016 (Trainer & Mentor)

DESIGN

I MASTER’S THESISIZTAPALAPA: AUTO-CONSTRUCTION AND INDIGENOUS PRAXIS

Mycelium/Corncrete Community Facility | Mexico City, Mexico

TAUBMAN COLLEGE OF ARCHITECTURE AND URBAN PLANNING

UNIVERSITY OF MICHIGAN

II CO-ECO_LIVING : LIVE_GROW

Urban Farming Community | North Corktown, Detroit MI

TAUBMAN COLLEGE OF ARCHITECTURE AND URBAN PLANNING

UNIVERSITY OF MICHIGAN

III

BITTERSWEET FARMS

Medical & Therapeutic Building | Whitehouse OH 43571

LAWRENCE TECHNOLOGICAL UNIVERSITY

IV BIM CERTIFICATION PROJECTS

BIM Certification | Southfield MI

LAWRENCE TECHNOLOGICAL UNIVERSITY

BUILD

V THE SHARING TABLE (TAVOLO CONDIVISO)

Furnature Making | Ann Arbor MI

TAUBMAN COLLEGE OF ARCHITECTURE AND URBAN PLANNING

UNIVERSITY OF MICHIGAN

VI FASCINO DELL’ ARGILLA

Ceramic Facade Using The Kuka Robot Computation | Ann Arbor MI

TAUBMAN COLLEGE OF ARCHITECTURE AND URBAN PLANNING

UNIVERSITY OF MICHIGAN

DRAFTING

VII Timber Construction Single Family

Residential Building | Building Systems

OAKLAND COMMUNITY COLLEGE

VIII Minton Hill House Renders

Residential Building | North Hatley, Quebec Canada

OKLAND COMMUNITY COLLEGE

FREELACE RESIDENCIAL DESIGN

IX Calderon Residence - Second Floor Addition

Residential Building | Pontiac MI

X Cabrejo Residence - Garage & Second Floor Addition

Residential Building | Royal Oak MI

MASTER’S THESIS IZTAPALAPA: AUTOCONSTRUCTION AND INDIGENOUS PRAXIS

DESIGN

Thesis

PROGRAM:

Mycelium/Corncrete Community Facility

LOCATION

Mexico City, Mexico

The rapid urbanization of megacities like Mexico City presents significant challenges in construction due to population growth and housing demands, leading to a surge in informal economy activities. This informal sector spans from the city center to its outskirts, encompassing vital sectors such as housing and employment, but exacerbating infrastructure strains and inadequate housing conditions due to insufficient regulation and economic policies.

Mexico City also faces a severe water crisis exacerbated by climate change-induced droughts and infrastructure leaks, with reservoir levels critically low and rainwater harvesting, and wastewater recycling insufficiently implemented. These challenges are compounded by the informal economy’s impact, further stressing urban infrastructure.

In response to these pressures, temporary architecture using biomaterials offers a sustainable solution. By repurposing materials like agave waste pulp and corn, temporary structures reduce environmental footprints and provide cost-effective alternatives to conventional building materials. Reviving

ancient indigenous practices, such as using agave fibers and corn in corncrete bricks, not only promotes cultural preservation but also supports ecologically responsible urban development.

Focused on indigenous auto-construction as an alternative for affordable housing, this thesis advocates for temporary architecture as a flexible and adaptive approach to urban planning challenges in Mexico City. It aims to address housing shortages and environmental concerns while embracing local knowledge and resources for sustainable development.

ANALYSIS

SITE STRATEGY

EXISTING

- Accessible to public transportation.

- In the middle of formal apartments and informal housing blocks.

- Closed to one of the major circulated roads Av. San Francisco Tlatenco.

- Accessible to a school (Escuela Primaria Marcelino Renteria).

- One side of the site is surrounded by trees.

- Local market (Cuauhtemoc).

- Public Library (Consejo Agrarista).

- Veterinary Clinic.

- Community Church (Parroquia del Santisimo Sacramento).

LAB FACTORY SCHOOL COMMUNITY

IZTAPALAPA: AUTO-CONSTRUCTION AND

CREATION/ITERATION

MYCELIUM PRODUCTION LAB

- Green roof - Agave growth.

- Lab spaces for Mycelium preparation and growing.

- Gravel roads throughout the entired site to allow rain water to filtrate into the ground and redirected into the reservoir facility.

FORM PRODUCTION DESIGN

MYCELIUM

CREATION/ITERATION

IZTAPALAPA: AUTO-CONSTRUCTION AND INDIGENOUS

MYCELIUM PREPPING FACILITY

CREATION/ITERATION

IZTAPALAPA: AUTO-CONSTRUCTION AND

CORNCRETE BRICK PRODUCTION FACILITIES

DESIGN

- Designed to be stacked.

- Designed for temperal or permanent installation.

MOLD MAKING

- MDF form work is made

- Positive brick form is 3D printed.

- Liquid silicon is used for final mold casting.

CONCRETE MIXING FACILITY

CREATION/ITERATION

IZTAPALAPA: AUTO-CONSTRUCTION AND INDIGENOUS PRAXIS DESIGN

CORNCRETE BRICK PRESSING FACILITY

CREATION/ITERATION

CORNCRETE KILN

CREATION/ITERATION

CORNCRETE BRICKS

IZTAPALAPA: AUTO-CONSTRUCTION AND INDIGENOUS PRAXIS DESIGN

CREATION/ITERATION

CO-ECO_LIVING : LIVE_GROW

DESIGN

COLLECTIVES_DIY STUDIO

PROGRAM:

Urban Farming Community

LOCATION

North Corktown Detroit, Michigan

The concept described is an innovative urban farming community living within a greenhouse, aiming to tackle food insecurity, social isolation, and environmental degradation. By combining urban agriculture with intentional community living, this model offers a holistic approach to urban development. The greenhouse supports year-round cultivation of diverse crops like vegetables, fruits, herbs, and flowers, reducing dependence on industrial agriculture and its environmental impacts. It also maximizes space with a multi-tiered growing system.

Beyond food production, the community serves as a center for social engagement and collaboration. Shared living spaces foster close bonds among residents through communal activities such as meals, workshops, and cultural events, reducing social isolation. Environmentally, the community adopts sustainable practices like composting, rainwater harvesting, and solar energy use, promoting regenerative living. The greenhouse also serves as an educational platform for sustainable practices, inspiring similar models elsewhere.

SITE - NORTH - CORKTOWN

MIX - USE LIVE/PRODUCE

MEZZANINE

RESIDENTIAL LIVE/GROW

LEVEL 2

LEVEL 3

LEVEL 1

LEVEL 1

MIX-USE LIVE/PRODUCE

RESIDENTIAL LIVE/GROW

15TH ST ELEVATION
WEST ELEVATION ON 14TH ST

MIX-USE LIVE/PRODUCE

COLLECTIVE SPACE

PRIVATE SPACE

RESIDENTIAL LIVE/GROW

GEOTHERMAL WITH AIR EXCHANGER FOR HEATING AND COOLING

High efficiency ducted heating and cooling system with an air exchange and handler for individual temperature control for individual comfort.

Extra windows have been placed in the front and back facades of the residential building for optimum natural ventilation and lighting. Also, geothermal with aid handlers has been chosen to provide more control to the user in each room and floor.

COOL ROOF

Designed to reflect more sunlight, absorbing less solar energy for more comfortable summers and heat gain in the winter.

R-15 BATT IN WALL ASSEMBLY

Batt insulation is the least expensible insulation that can provide good insullation to the wall assembly.

Light-wood frame construction walls and roof with C.L.T floor slabs on concrete foundation.

URBAN EXPERIENCE

MIX-USE

LIVE/PRODUCE

URBAN EXPERIENCE

MIX-USE

LIVE/PRODUCE

URBAN EXPERIENCE

RESIDENTIAL LIVE/GROW

URBAN EXPERIENCE

RESIDENTIAL LIVE/GROW

BITTERSWEET FARMS

DESIGN

ID 5 Studio

PROGRAM:

Clinical and Recreational Facility

LOCATION

Whitehouse, Ohio

The Bittersweet Farms is a Clinical and Recreational Facility designed for children and adult with autism.

This project was focused on the feelings an autistic adult will experience within a given space. Stressful spaces such as the gym and outdoor gathering spaces were carefully designed to meet the needs of an autistic individual.

For example, holes were incorporated within the exterior retaining walls to stimulate an individuals’ feelings in a moment of anxiety. Above the gym organic shaped cubbies were added to the hall for individuals to sit in whenever they have the need to decrease the amount of stress to their surroundings. These design methods were used as a stimulator to provide comfort and security to autistic individuals.

My contribution to the project can be observed in the water system design, interior design, structure modifications and physical model making.

Main Entrance Perspective
Retaining Wall Perspective
East Elevation - Parking Side
West Elevation - Facing Field
South Elevation - Main Road
North Elevation
Hallway Section
Library Above Gym
Sitting Above Gym
Hallway Section
Polycarbonate Hallway

INTERACTIVE DETAIL

The railing was created by incorporating negative space into retaining walls. The rail system conforms to the shape of the hand and takes on the textures of the concrete molds.

Multi Purpose Gym Space
Gym Towards Field Gym Towards Hallway
Courtyard Outside of Gym
1 to 1 Scale
Wood Ramp Goes Up, Concrete Ramp Goes Down
Ramp at Dusk

Site in Relation to Its Surroundings

Physical Representation of Proposed Materials

Physical Representation of The Water System and Structure

Digital Representation of the Structural Glulam Arches

Physical Representation of Proposed Cubbies for Autistic Patients Use in a Moment of Anxiety

Physical Representation of The Gym In Relation to Human Scale

BIM CERTIFICATION PROJECTS

DESIGN

BIM Fundamentals - Spring 2022

PROGRAM:

BIM Certification

LOCATION

Southfield, MI

This course provided an introduction to the principles and practices of Building Information Modeling (BIM), focusing on its core concepts and applications. It covered the fundamentals of BIM project organization, hierarchies, and the use of geometric elements and component families. I learned to apply BIM tools to create visual and graphical representations of built forms, including both orthographic and perspective views. Additionally, this course explored how BIM integrates quantitative and graphical data, offering insights into the advantages and limitations of the technology.

OFFICE/STUDIO BUILDING

OFFICE/STUDIO BUILDING

4K SQFT Residential
4K SQFT Residential

THE SHARING TABLE (TAVOLO CONDIVISO)

DESIGN PROPOSITIONS

PROGRAM: FURNATURE MAKING

LOCATION

Taubman College, Ann Arbor, MI

The Tavolo Condiviso, or Sharing Table, embodies the essence of conviviality and communal dining. Its innovative design gracefully bridges the gap between functionality and aesthetics, fostering a sense of togetherness and culinary exploration.

Whether it’s a cozy family meal or a gathering of friends, this table encourages shared experiences and culinary adventures, bringing people together to create lasting memories around the communal table. With its inviting design and exquisite craftsmanship, the Tavolo Condiviso embodies the spirit of hospitality and collaboration, making every meal a celebration of friendship and good food.

DETAILS

The table’s core is expertly crafted from steel, ensuring durability and stability, while its elegantly bent and welded structure adds a touch of artistic flair. The cherry wood top, coated with epoxy resin, not only enhances the table’s visual appeal but also provides a sleek and sophisticated surface for dining. This combination of materials creates a harmonious balance between modernity and tradition, making the Tavolo Condiviso a focal point of any dining space.

Crafted with meticulous attention to detail, the table features rotating arms that can accommodate 2 to 4 people, facilitating the seamless sharing of their favorite dishes. These arms enable easy access to the various layers of the centerpiece, which serve as trays for an assortment of delectable offerings. Each layer is thoughtfully designed to showcase culinary delights while maintaining a lower outer level to honor the personal space of each diner.

Full Table With Chairs
Table Legs
Rotating Trays
Legs and Roating Tray Assembly
Table Arrangement

FASCINO DELL’ ARGILLA

DESIGN FABRICATIONS

PROGRAM:

CERAMIC FACADE USING THE KUKA ROBOT

LOCATION

Taubman College, Ann Arbor, MI

The Fascino dell’ Argilla brings a new range of hues, elevating urban beauty. Its features encompass diverse shading options, cooling effects, and a natural feel to the cityscape. At the same time, it introduces lush greenery to streets, creating a lively ambiance that enhances the well-being of urban residents.

Trial No.2

Developing a primary design with different iterations and tool paths

Module + Surface Iterations System/ Assembly Sketches/ Renders Facade Sketch/ Renders

DETAILS

Looking into different examples and trying to apply these techniques using different tools with the robot.

Trial No.1

Module + Surface Iterations Toolpath Iterations System/Assembly Sketches/Renders

Trial No.3

Developing a design samples and technical detailing

Tiles Samples

FINAL DESIGN ITERATION

Developed Design from previous trials and samples

Coloring Options
Tile Details

MANUFACTURING PROCESS

The tile is made of four iterations and three layers of clay

Possible Facade Configuration

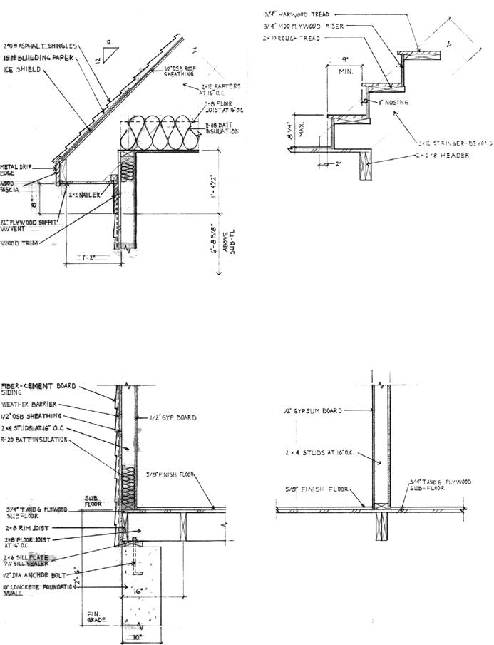
TIMBER CONSTRUCTION

SINGLE FAMILY

DESIGN

OCC Building Systems I

PROGRAM:

Residential Building | Hand Drawings

This project was intended to apply my drafting skills learned in Building Systems I design at Oakland Community College.

The single family house consisted of a typical platform timber construction frame, with a brick masonry wall facade.

The design challenged me to develop a set of construction and detailed drawings which needed to meet the required construction codes developed at different scales.

West Elevation South Elevation
East Elevation North Elevation
Wall Section
Building Section B - B
Column Footing Detail Brick Veneer- Brick Ledge
Trench Footing - W/Brick Veneer
Spread Footing Detail
Exterior Wall And Foundation Interior Partition Wall
Eaves Detail Stair Detail
Building Section A -A

MINTON HILL HOUSE RENDERS

HAND RENDERS

DESIGN

LOCATION

North Hatley, Quebec Canada

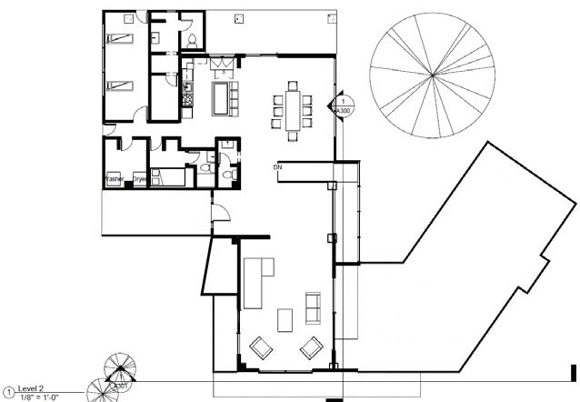
CALDERON RESIDENCE -

SECOND FLOOR ADDITION

DESIGN

Addition

PROGRAM: Residential Building

LOCATION

Pontiac, Michigan

Worked closely with the client on the development of the Construction Documents for a 800sqft second floor timber construction addition in ArchiCAD needed for city’s approval. Measurements were taken directly from the existing house and construction approval was granted.

Second Level Floor Plan

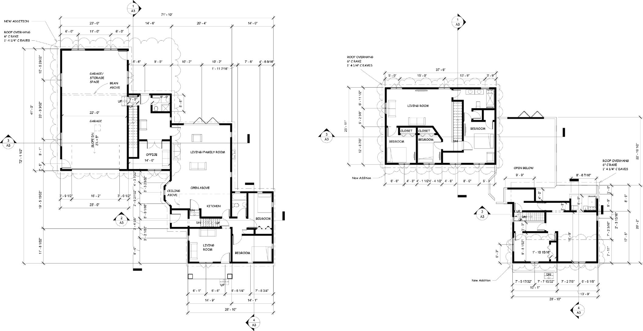
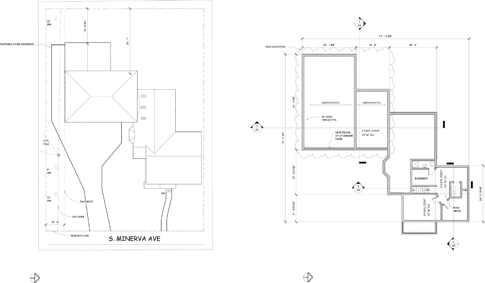
CABREJO RESIDENCEGARAGE & SECOND FLOOR ADDITION

DESIGN

Addition

PROGRAM:

Residential Building

LOCATION

Royal Oak, Michigan

I worked closely with the client on the Pre-Design, the Schematic Design, the Design Development in Sketch up and Construction Documents in Revit. The design was submitted for the city’s approval to construct a 2000 sq ft addition. Measurements were taken directly from the existing house and construction approval was granted.

North Elevation South Elevation
East Elevation
West Elevation
South Side Cross Section
East Side Cross Section
West Side Cross Section
North Side Cross Section

Turn static files into dynamic content formats.

Create a flipbook
Issuu converts static files into: digital portfolios, online yearbooks, online catalogs, digital photo albums and more. Sign up and create your flipbook.