IM - 10 Old Saleyard Road, Cromwell

Page 1

10 Old Saleyard Road | Cromwell Information Memorandum For Sale by Deadline Private Treaty closing 4pm Tuesday 3 October 2023 at Colliers (unless sold prior) Accelerating success.

Introduction

Colliers as sole agents, have been appointed to market for sale 10 Old Saleyard Road, Cromwell.

This property is being offered For Sale by Deadline Private Treaty closing Tuesday 3 October 2023 at 4pm (unless sold prior).

For further information about the sales process please see page 16.

This information Memorandum provides preliminary information to assist interested parties with their assessment of the property. Further information is available via an online data room which can be accessed upon registration.

www.colliersotago.co.nz/67025437

Data room documents available:

• Information Memorandum

• Record of Title

• Land Information Memorandum

• Sale & Purchase Agreement

• CODC District Plan

All enquiries, requests for information and arrangements to undertake inspections in relation to this opportunity are to be directed to the listing agent below.

Steve McIsaac +64 21 680 304 steve.mcisaac@colliers.com

Executive Summary 3 Investment Highlights 6 The Property 7 Cromwell Market 8 Zoning 10 Record of Title 14 Sales Process 16 Due Diligence 17 Contents

Executive Summary

ADDRESS 10 Old Saleyard Road, Cromwell

DESCRIPTION

Vacant Industrial Lot of 4,879m². Level in contour this lot fronts onto the State Highway to Queenstown while vehicle access is via Old Saleyard Road.

TENURE Freehold

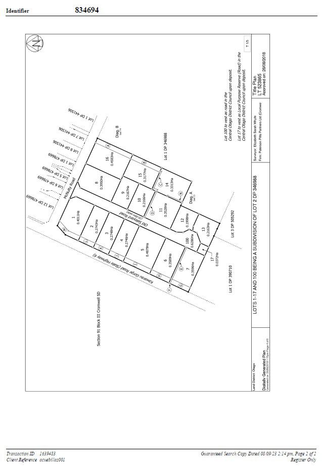
LEGAL DESCRIPTION Lot 5 Deposited Plan 523865

CERTIFICATE OF TITLE 834694

LAND AREA 4,879m²

ZONING Industrial Resource Area

RATEABLE VALUE $ 2,690,000 (as at 1 Oct 2022)

SALES PROCESS For Sale by Deadline Private Treaty closing 3 October 2023 at 4pm (unless sold prior)

10 OLD SALEYARD ROAD CROMWELL 3

Investment Highlights

FULLY FENCED SECTION

Fully fenced and level in contour

GREAT EXPOSURE

Boundary fronting State Highway 6

LARGE VACANT LOT

Land area 4,879m²

DEVELOPMENT OPPORTUNITY

Site offers numerous development options

10 OLD SALEYARD ROAD CROMWELL 4

The Offering

The site represents a significant land holding and a rare opportunity for businesses or developers in Cromwell’s Industrial precinct. With Cromwell quickly cementing its reputation as a service hub for the wider Queenstown Lakes and Central Otago region, this site offers development scale for numerous industrial uses. Located at the western sector of the Industrial Resource Area, the site enjoys good exposure to State Highway 6, with over 5,000 vehicles per day on average passing by. Convenient access to the State Highway is advantageous for large industrial vehicles due to limitations on large vehicles being able to travel through the wider urban surrounds of Cromwell. Its level contour and being fully fenced means it is ready for development, or holding income could be generated from casual yard leasing.

The property has boundaries to both Old Saleyard Road and State Highway 6 of 60 meters, offering great profile opportunities, and with a depth of 81 meters, provides a total area of 4,879sqm. Note there is a 10m setback from the State Highway boundary. Cromwell Business Park is the most recent large lot industrial subdivision that has been developed, delivering modern buildings, and occupiers include a number of well established companies.

Industrial lots of this size are in short supply currently, and this is one of only 7 lots that offers the added benefit of exposure to State Highway 6. With Plan Change 18 not far away from being approved, this will mean that Old Saleyard Road will be able to be extended through to Cemetery Road, from McNulty Road. These two roads are the main arterial roads for vehicles servicing the Cromwell Industrial Precinct, allowing easy access for vehicles to the site. State Highway 6 is the main arterial road to Queenstown and Wanaka, while close by, State Highway 8 is the main transport route north to Christchurch and south to Central Otago, and onto Dunedin.

Cromwell is predominately a community serving local rural industries that include substantial vineyard and horticulture blocks, but also the rapidly growing freight/logistics hub for the wider region. It has a population of over 5,200 people and has a full range of amenities including, 2 primary schools, a college, 2 medical centres and an established town centre containing 2 supermarkets. While house prices have risen in recent times they still offer reasonable value for owning your own home, which delivers a stable workforce. A number of people are investing in new homes within the area as there has been a number of residential subdivisions developed here, with more planned.

Queenstown International Airport, a 40 minute drive, offers direct flights to major New Zealand cities and Melbourne, Sydney, Brisbane and Coolangatta in Australia. Dunedin is approximately 220 kilometers south east of Cromwell, and Invercargill is 190 kilo meters to the south.

Cromwell Market

The strategic position of Cromwell as an access ‘pivot’ for the Queenstown and Wanaka markets with its availability of industrial/service land at reasonable prices and the significant Viticulture and Horticulture development in the locality has meant significant incremental increases in property values over the last decade. With its strategic location and proximity to Wanaka and Queenstown, Cromwell is becoming an important hub servicing the Lakes District and surrounding Central Otago towns.

Cromwell had benefited from (now historical, prior to March 2020) strong growth in Queenstown tourism and the property market. Significant price increases in the Queenstown residential property market has seen home ownership become beyond the reach of a number of people. Some have left the district, but others have decided to relocate to Cromwell where residential housing is seen as more affordable option. A number of these people commute to Queenstown on a daily basis whilst others have found employment or relocated businesses to Cromwell. The permanent population is increasing, and this has boosted the local economy.

On the back of this we are seeing increasing values and rental levels across all property sectors within Cromwell. This is being driven by both the desire for local businesses to own their own commercial/industrial property and by investors looking to secure long term returns. Additionally with national businesses establishing in Cromwell to service the wider region, land values have been steadily increasing.

Queenstown industrial land values have increased to around $1,500/ m², resulting in an unaffordability situation for many enterprises in comparison to the relatively cost effective industrial land values in Cromwell. The most to recent Cromwell industrial land sales have been at rates in the range of $400-$600/m².

Commercial property investment is becoming more desirable due to the growth in Cromwell and because investment options are limited in the financial marketplace. The solid appeal of a ‘bricks and mortar’ investment, provided the tenant covenant is considered robust, is an attractive proposition.

Cromwell commercial and service/ industrial yields are now sitting around 5.50% – 6.50%.

Zoning

Town Planning Zone: Industrial Resource Area

The zoning requirements are contained within Section 9 of the Central Otago District Plan. Following is a summary of the zone rules, as such not all relevant standards might be included, only those that might be applicable in a lot development scenario. Purchasers will still need to undertake their own research into the District Plan requirements for developing a lot and we advise the engagement of a professional town planner to assist in this regard.

District Plan and Zoning requirements:

1. Any activity that fails to comply with the standards set out in Rule 9.3.5 as well Sections 12 – 15 of the District Plan shall be a restricted discretionary activity, if all the standards are complied with then no consent is required as the activity is ‘permitted’. These standards are discussed further below. Of note for developing industrial lots, owners should also be mindful of:

a. Retail: Retail activity (excluding retail activity at a service station) shall be ancillary to and form an integrated and complementary part of any industrial activity and shall not occupy more than 10% of the gross floor space of the building or 50m² , whichever is the greater.

b. Bulk and Location of Buildings: No front yards are required Rear and side yards of 5 metres shall be provided where a site adjoins the Cemetery

10 OLD SALEYARD ROAD CROMWELL 10

Height: 10m or if located next to the Cemetery then the maximum height is 1.5 times the building setback from the Cemetery boundary (to a maximum of 10m). For example, if a building is located within 5m of the Cemetery its maximum height is 7.5m.

c. Noise:

On any day 7:00am - 10:00pm 65dBA L10, 10:00pm - 7:00am the following day 45dBA L10, 85dBA Lmax

Habitable spaces within buildings must achieve an indoor design sound level of 45 dBA.

d. Signage: rules on signage will apply.

e. Screening/Fencing: rules on screening will apply to any open space associated with a residential activity.

f. Off Road Loading: Off road loading facilities shall be provided for each site where this is an integral part of the activity. All such loading areas shall be so located that no vehicle or machinery engaged in any loading or unloading operation shall stand on or be required to manoeuvre on any part of a formed road.

g. Parking: Every activity shall make sufficient provision for vehicular parking in accordance with Table 12.3

2. Subdivision is a controlled activity.

3. Any activity that requires an offensive trade license under the Health Act 1956 is a discretionary activity.

4. Residential activities are not restricted in the industrial zone and can be undertaken without the need for consent so long as the standards mentioned above in point 1 are complied with as well as Sections 12 -15 of the District Plan. Note, there are specific requirements when it comes to residential activities with regards to ensuring they are designed to meet the expected noise outputs from the industrial zone and to screen any outdoor area from neighbouring activities. For further information please refer to codc.govt.nz.

COMMERCIAL - INDUSTRIAL

10 OLD SALEYARD ROAD CROMWELL 11
Travellers Accommodation & Homestay 1 per bedroom or 1 per 4 occupants whichever is greater Shops 1 per 30m² gross floor area Supermarket 1 per 20m² gross floor area Service Stations 1 per 40m² gross floor area excluding canopies over petrol pumps Restaurant and Taverns 1 per 10m² of net public floor space or 1 space per 4 seats whichever is greater Outdoor Display Area 1 per 100m² gross display area Vehicle Showrooms 1 per 100m² gross floor area Offices 1 per 100m² gross floor area Industrial Premises and Warehouses 1 per 100m² gross floor area or 1 per 2 staff members whichever is greater Industrial storage, internal or external except warehouses 1 per 100m² gross display area
CARPARKING
FOR SALE 10 OLD SALEYARD RD

Source: CODC Cromwell Spatial Framework Report 2019

10 OLD SALEYARD ROAD CROMWELL 13
10 Old Saleyard Road

Record of Title

10 OLD SALEYARD ROAD CROMWELL 14
10 OLD SALEYARD ROAD CROMWELL 15

Deadline Private Treaty Sales Process

A deadline sale is the process of purchasing real estate throug h confidential submitted written offers. If you want to buy a property by deadline sale, you prepare your best offer and send it to the vendor’s Agent to consider alongside any other offers the vendor receives at any point in the deadline sale campaign.

The property is offered for sale with no price, with a deadline by which offers need to be submitted on the basis that the vendors reserve the right to ac cept an offer at anytime before the deadline sale closes.

Buying by deadline sale is a relatively simple process, with ad vantages for the purchaser as well as for the vendor. However, it’s not simply a matter of turning up on the day and writing down what you’d like to pay. It’s worth doing full due diligence early to know your rights and obligations and to ensure you feel comfortable with the process.

To help you better understand how deadline sales work, we’ve pu t together a list of key things you’ll need to do before submitting an offer.

• Arrange finance. This is very important. You need to be comfortable with the le vel at which you’re offering. It’s fine to put a finance clause into t he contract, but bear in mind that a vendor may favour the most straightforward offer on the day.

• Read the contract. The ‘Sale and purchase agreement’ is the contract signed by the potential purchaser at the time of submitting a deadline sa le offer. If your offer is accepted, it will then be signed by the vendor and become a binding contract. It contains a legal description of the property and terms of settlement. We recommend you engage legal advice before presenting an offer.

• Know the value. If you have been studying the market, you may have a good idea of what the property is worth. If you need help, your real esta te Sales Consultant can refer you to similar properties which have sold recently that a re a good comparison. Otherwise you could arrange for an independent valuation.

How to make an offer:

• Know the process. Talk to your Colliers Agent about exactly what will happen on and before the deadline sale closing day.

• Talk to your Colliers Agent when formulating your offer. They can assist you in looking at comparable sales and provide information enabling yo u to make an offer you’re comfortable is the current market value.

• Consider your conditions carefully. Where possible it’s best to minimise the conditions on a deadline sale offer, however it’s also advisable to not spend a large amount in advance when there is a chance your offer may not be s elected. Balance is the key.

Offers to be submitted to Colliers Sole Agents by 4pm, Tuesday, 3 October 2023.

Due Diligence

To assist in the assessment of this offering, comprehensive due diligence information is available via a secure documents link. For access to all documents you will be required to register in the data room.

• Information Memorandum

• Record of Title

• Land Information Memorandum

• Sale & Purchase Agreement

• CODC District Plan

All enquiries, requests for information and arrangements for site inspections are to be directed to the Colliers sole agent:

Steve McIsaac

+64 21 680 304

steve.mcisaac@colliers.com

10 OLD SALEYARD ROAD CROMWELL 17

DISCLAIMER: This Information Memorandum has been prepared solely for information purposes in order to assist interested parties in making an initial evaluation of the property and does not constitute advice nor purport to contain all of the information that a prospective purchaser may require. In all cases interested parties must conduct their own investigation and analysis of the property and the data set out in this Information Memorandum to satisfy themselves in all respects and not rely on the information in this Information Memorandum to make their purchasing decision. This Information Memorandum has been prepared in good faith and with due care by Colliers, but neither Colliers nor the Vendor accept responsibility hereunder for the accuracy of any part of the information contained in this Information Memorandum. Therefore the recipient/s of this Information Memorandum to the extent that they rely on the information contained herein do so entirely at their own risk. The Vendor and Colliers NZ Limited (and its brokers) expressly disclaim all liability for representations, express or implied, contained in, or for omissions from, this Information Memorandum or any other written or oral communication given to any prospective purchaser in the course of their evaluation and/or offer. This Information Memorandum does not constitute an offer for sale or purchase or otherwise.

Please be aware that Mortgagee Sales can present more risk to purchasers, we recommend you take advice from your lawyer in this respect.

10 Old Saleyard Road Cromwell FOR SALE BY DEADLINE PRIVATE TREATY closing 4pm, Tuesday 3 October 2023 (unless sold prior) Colliers, Top Floor, 10 Athol Street, Queenstown colliersotago.co.nz/67025437 Steve McIsaac +64 21 680 304 steve.mcisaac@colliers.com

Turn static files into dynamic content formats.

Create a flipbook
Issuu converts static files into: digital portfolios, online yearbooks, online catalogs, digital photo albums and more. Sign up and create your flipbook.