120 Maori Jack Road Information Memorandum

Page 1

120 Maori Jack Road | Jacks Point Information Memorandum For Sale at $830,000 plus GST (if any)
success.
Accelerating

This property is being offered For Sale at $830,000 plus GST (if any). This Information Memorandum provides preliminary information to assist interested parties with their assessment of the property. Further information is available via an online data room which can be accessed upon registration. www.colliersotago.co.nz/67021707

Colliers as sole agents, have been appointed to market for sale 120 Maori Jack Road, Jacks Point, Queenstown. Introduction Data room documents available: • Subdivision Plan • Concept Plans • Resource Consent • Sale & Purchase Agreement All enquiries, requests for information and arrangements to undertake inspections in relation to this opportunity are to be directed to the listing agent below. Barry Robertson +64 27 433 5941 barry.robertson@colliers.com Steve McIsaac +64 21 680 304 steve.mcisaac@colliers.com
Executive Summary 3 Investment Highlights 6 Location 8 Property 9 Site Plan 10 Consented Floor Plans 11 Resource Consent 12 Market Summary 14 Due Dilligence 17 Contents

Executive Summary

ADDRESS

DESCRIPTION

120 Maori Jack Road, Jacks Point Village, Queenstown

A 592m² site with Resource Consent for a 3 unit, 2-level mixed use development, in the village commercial precinct at the heart of Jacks Point

TENURE Freehold

LEGAL DESCRIPTION

Title to issue

AREA 592m² (estimated)

ZONING Jacks Point Zone - Village Activity Area (V ( JP)

SALES PROCESS

For Sale at $830,000 plus GST (if any)

120 MAORI JACK ROAD JACKS POINT 3
location
indicative only
120 MAORI JACK ROAD JACKS POINT 6
two-level units plus carparking
fast developing Jacks Point Village
childcare / medical centre FULLY CONSENTED PRIME LOCATION
COMMERCIAL PRECINCT
for owner-occupier or developer-investor INVESTMENT OPPORTUNITY
GROWTH AREA
Investment Highlights 3
In
Adjoining
DEVELOPING
Opportunity
Adjoins expanding Hanley’s Farm subdivision
Render of approved design - south elevation Render of approved design - north elevation

Location

The proposed Lot 2 is located at the central boundary of Jacks Point and Hanley’s Farm, within the Jacks Point Village activity area.

With the rapid build out of Hanley’s Farm, combined with the existing Jacks Point residential neighbourhood, this central location is at the heart of a wide catchment. It is anticipated that Jacks Point and Hanley’s Farm will be interconnecting by road by 2024. Currently, they are connected by the trail network

The substantial locals shopping precinct at Frankton and Queenstown Airport is a 7 minute drive away, while Queenstown CBD is approximately a 20 minute drive. Access to Lake Wakatipu is via Homestead Bay Road.

Property

Adjoining the lot is the already operating Remarkable Start Early Learning Centre and Queenstown Medical Centre with another commercial building is proposed on the corner of the wider Lot 12.

With the proposed lot area of 592m², the developer will deliver the 6 carparks associated with proposed Lot 2, along with the vehicle crossing on to Homestead Bay Road.

Approved for Lot 2 are 3 x two-level units that offer both commercial and residential outcomes. These units could accommodate individual tenants or could be combined for a larger occupier.

The consented plans are an ideal opportunity for a party to generate income streams from retail/office or short/long term residential accommodation.

All services are available to site with both potable water and storm water accessed via the Jacks Point Residents & Owners Association (JPROA), while the waste water connection is to the QLDC main that services the Jacks Point Village.

The owner of the property will need to become a member of the JPROA and JPROA levies will be due with property ownership. More information on the JPROA can be accessed via the Jacks Point website.

Commercial

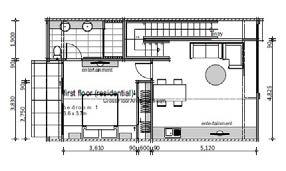
Consented Floor Plans

Residential

120 MAORI JACK ROAD JACKS POINT 11

Resource Consent

RM220704, was approved by the QLDC on 11th November 2022, which provides for the development of two commercial buildings, including this property.

“The building will comprise of three two-level units. This consent does not include the internal fit-out and activity use of these buildings, but the applicant has proposed them to be either fully commercial or a combination of commercial tenancies on the ground level and residential units on level 1.”

RM221017 currently being processed by QLDC provides for a 3 lot subdivision including the subject Lot 2 of 592m².

Market Summary

Jacks Point is a master planned residential area and golf course developed over a 1200ha (3000acre) site, set on the shores of Lake Wakatipu at the foot of the Remarkables mountain range, 15 minutes from Queenstown, New Zealand.

An 18-hole, par 72 championship course designed by Darby Partners, Queenstown was completed in 2008.

Development of residential zones has taken place over the last 20 years under tight design controls to preserve the landscape and environment.

The next chapter in the settlement of Jack’s Point is the Village, comprising 14.2 hectares of land alongside Lake Tewa at the heart of the wider Jack’s Point community. Work on the Village services infrastructure was largely completed in 2018, with above ground work, including roading underway in 2019. The first residential and mixed-use commercial buildings went to market in 2020, many pre-sold. The Village is the primary commercial hub for the area, and designed to ultimately service an immediate adjacent population of over 7,000. The Village design serves as a tourism, shopping and recreational destination in its own right, and acts as an important lodging base for the broader Queenstown market.

To date, Jacks Point has seen 628 houses and apartments built, with a further 178 currently under construction and 134 approved by the Design Review Board, but not yet started.

19 units adjoining the Clubhouse are currently under construction.

A further attraction of this development site is the future access via Homestead Bay Road to the adjoining Hanley’s Farm development. This comprises a comprehensive development of houses with 1000 built to date and a further 200 under construction, 160 lots that have been presold and approximately 300 lots still to be offered to the market. A 450 pupil capacity Primary School opened this year, with the ability to expand to 950 as the area’s population grows, and a 90 child capacity day care centre is nearing completion.

Due Diligence

To assist in the assessment of this offering, comprehensive due diligence information is available via a secure documents link. For access to all documents you will be required to register in the dataroom.

• Subdivision Plan

• Concept Plans

• Resource Consent

• Sale & Purchase Agreement

All enquiries, requests for information and arrangements for site inspections are to be directed to the Colliers sole agents:

Steve McIsaac

+64 21 680 304 steve.mcisaac@colliers.com

Barry Robertson

+64 27 433 5941

barry.robertson@colliers.com

120 MAORI JACK ROAD JACKS POINT 17
120 Maori Jack Road Jacks Point FOR SALE AT $830,000 plus GST (if any) colliersotago.co.nz/67021707 Barry Robertson +64 27 433 5941 barry.robertson@colliers.com Steve McIsaac +64 21 680 304 steve.mcisaac@colliers.com
solely for information purposes in order to assist interested parties in
advice nor purport to contain all of the information that a prospective
investigation and analysis of the property and the data set out in
rely on the information in this Information Memorandum to
faith and
care by Colliers,
Colliers
liability for representations,
oral communication
purchaser
offer for sale
purchase
DISCLAIMER: This Information Memorandum has been prepared
making an initial evaluation of the property and does not constitute
purchaser may require. In all cases interested parties must conduct their own
this Information Memorandum to satisfy themselves in all respects and not
make their purchasing decision. This Information Memorandum has been prepared in good
with due
but neither
nor the Vendor accept responsibility hereunder for the accuracy of any part of the information contained in this Information Memorandum. Therefore the recipient/s of this Information Memorandum to the extent that they rely on the information contained herein do so entirely at their own risk. The Vendor and Colliers NZ Limited (and its brokers) expressly disclaim all
express or implied, contained in, or for omissions from, this Information Memorandum or any other written or
given to any prospective
in the course of their evaluation and/or offer. This Information Memorandum does not constitute an
or
or otherwise. Please be aware that Mortgagee Sales can present more risk to purchasers, we recommend you take advice from your lawyer in this respect.

Turn static files into dynamic content formats.

Create a flipbook
Issuu converts static files into: digital portfolios, online yearbooks, online catalogs, digital photo albums and more. Sign up and create your flipbook.