Colin White Portfolio

Page 1

portfolio
2018-2023 Selected Work
Colin White

AWARDS

• AIA National Component Scholarship winner/Central PA Chapter of AIA - Fall 2020

• Design 4 final project selected to feature in CABE magazine

Spacework 07 - Fall 2020

• Design 3 final project nominated for CABE Exhibition - Fall 2019

• Design 2 final project selected to feature in CABE magazine

Spacework 06 - Spring 2019

PROFICIENCY

REVIT

RHINOCEROS

ENSCAPE

LUMION

CAD

SKETCHUP

WORD

POWERPOINT

COLIN WHITE

Philadelphia, PA

717-329-6268

colinharrisonwhite@gmail.com

EDUCATION

THOMAS JEFFERSON UNIVERSITY, CABE

• Canidate for B.ARCH

HERSHEY HIGH SCHOOL

• Participated in the ACE Mentorship Program of Central PA (20152016)

• Attended the Architecture and Landscape Architecture Summer Camp at the Penn State Stuckeman School of Architecture and Landscape Architecture

WORK EXPERIENCE/INTERNSHIPS

GENESIS AEC - Jun 2021-Dec 2022

ARCHITECTURAL DESIGNER - BLUE BELL, PA

• Developed and produced Revit models

• Used Sketchup to produce concept models and facades

• Developed 3D perspective renders using Enscape

• Developed architectural details for construction documents

• Performed redline changes and revisions to documents

• Provided support for design and rendering projects

ROCKS & CORNERSTONES, LLC - Oct 2020- May 2021

ASSISTANT PROJECT MANAGER - BENSALEM, PA

• Performed redline changes and revisions to documents

• Developed 3D perspectives renders using Lumion

• Surveyed job sites

• Assisted with managing job sites

THE HERSHEY COMPANY - Jun 2019- Aug 2019

FACILITIES INTERN - HERSHEY, PA

• Developed and updated Revit models

• Developed augmented reality of the Hershey Company office spaces

Table of Contents

PRINCETON CHEMISTRY LAB

pages 3-12

VENETIAN CONCERT HALL

pages 13-24

TRONCETTO II URBAN DEVELOPMENT

pages 25-36

01 03
02

The following work focuses primarily on the connection between architecture and nature, and how natural light and green spaces can positively effect the performance of students. The program of this project is seperated between an administration space and educational space, with a central atrium connecting the two. The facade of the building is operable, meaning that when the weather is ideal, the facade will open up to fresh air and become a park space.

PRINCETON CHEMISTRY LAB

PRINCETON, NJ

DESIGN 8

Design Partners: James Sanchez Amanda Schultz

01
3
PRINCETON CHEMISTRY LAB 4
PRINCETON CHEMISTRY LAB MASTER PLAN 01 02 03 04 JADWIN HALL PRINCETON NEUROSCIENCE INSTITUE JADWIN GYM ICAHN LABRATORY 01 02 03 04 5
PRINCETON CHEMISTRY LAB SITE DIAGRAMS
Pedestrian vs Vehicular Roads Trees Recreational Fields
6
Green Space 1. Foundation 3. Ext Walls 2. Grid 4. Sub-Grid 5. Int Walls
GRID DIAGRAMS 7
6. Structure

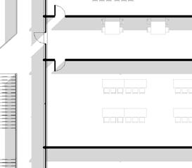
First Floor Plan

2nd, 3rd & 4th Floor Plan

PRINCETON CHEMISTRY LAB FLOOR PLANS OFFICE RESEARCH OFFICE RESEARCH OFFICE OFFICE OFFICE WORK SPACE KITCH. CHEMISTRY LAB CHEM. STOR. CHEM STOR. EQUIP. ROOM EQUIP. ROOM WORK SPACE WORK SPACE EQUIP. ROOM CHEM. STOR. CHEM. STOR. PLUMB. MECH. BR BR CLASSROOM CLASSROOM CHEMISTRY LAB RESEARCH LAB LAB SUPPORT LAB SUPPORT LAB SUPPORT LAB SUPPORT ELEC. OFFICE CAFE STOR. BR BR STORAGE TEL/COM CLOSET CONFERENCE ROOM CONFERENCE ROOM MECH. RESEARCH LAB EQUIP. ROOM CHEM. STOR. CHEM. STOR. EQUIP. ROOM EQUIP. ROOM CHEM. STOR. CHEM. STOR. EQUIP. ROOM WORK SPACE WORK SPACE WORK SPACE KITCH. CHEMISTRY LAB CHEMISTRY LAB RESEARCH LAB CLASSROOM CLASSROOM PLUMB. MECH. BR BR LAB SUPPORT LAB SUPPORT LAB SUPPORT LAB SUPPORT ELEC. STORAGE GROUP ROOM RESEARCH OFFICE RESEARCH OFFICE OFFICE GROUP ROOM OFFICE KITCHEN LOUNGE OFFICE OFFICE RESEARCH OFFICE RESEARCH OFFICE CONFERENCE ROOM CONFERENCE ROOM MECH. STORAGE TEL/COM
8
PRINCETON CHEMISTRY LAB SECTION EDUCATION SPACE 84,000 sf PUBLIC SPACE 24,500 sf 9
PRINCETON CHEMISTRY LAB OFFICE OFFICE WORK STOR. CHEM EQUIP. BR CLASSROOM RESEARCH LAB STOR. BR CLOSET MECH. ADMINISTRATION SPACE 17,000 sf 10

ALUMINUM CAP FRAME

GLAZING SEAL

CONCRETE EXTERIOR WALL

HYDRAULIC BIFOLD DOOR

STEEL STRUCTURE

THERMAL COATING

DRAFT SEAL 3 X7

SEAL

GROWING MEDIUM ROOT BARRIER

DRAINAGE BOARD WATERPROOF MEMBRANE

FILTER FLEECE CAPILLARY IRRIGATION RETENTION TRIM

FASTENER 4 X7 11

PRINCETON CHEMISTRY LAB WALL SECTION & DETAILS
INSTALLATION
CONTINUOUS
RIGID VINYL THERMAL BREAK 2 X7

DRAFT SEAL

INSTALLATION

CONCRETE EXTERIOR

HYDRAULIC BIFOLD

STEEL STRUCTURE

THERMAL COATING

FILTER

CAPILLARY

GROWING

ROOT BARRIER

DRAINAGE

WATERPROOF

RETENTION

DOOR
FASTENER
PRINCETON CHEMISTRY LAB
CONTINUOUS SEAL
View of Atrium Looking Down
RENDERINGS 12
View of Atrium on Ground Floor

The following project focuses primarily on views. The building sits on a redeveloped port overlooking the Venetian water. The project consists of two chambers, one angled toward the Venetian City Center, while the second chamber is angled directly at the mountains. The wavy glass facade is inspired by the Venetian water, while also connecting to simple musical theory rules such as repetition and melody.

VENETIAN CONCERT HALL VENICE, ITALY DESIGN 10

02
13
VENETIAN CONCERT HALL 14
VENETIAN CONCERT HALL MASTER PLAN
Extrusion
15
Chamber 2 Chamber
1 Extrusion
VENETIAN CONCERT HALL PLAZA FLOOR PLAN EQUIPMENT STORAGE UP COSTUME STORAGE MAIN SWITCHBOARD BATHROOM BATHROOM REPAIR WORKROOM BATHROOM BATHROOM REHEARSAL ROOM ORCHESTRA ROOM TICKETS BOOKSTORE & CAFE SECURITY STAFF ROOM ADMIN. ADMIN. ARTISTIC DIRECTOR DIRECTOR COAT ROOM ADMIN. LOBBY PUBLIC EATING SPACE UP 16
VENETIAN CONCERT HALL SECTION THROUGH CHAMBER 1 17
VENETIAN CONCERT HALL 18
VENETIAN CONCERT HALL SECTION THROUGH CHAMBER 2 19
VENETIAN CONCERT HALL 20
VENETIAN CONCERT HALL CHAMBER 1 SECTION 21
VENETIAN CONCERT HALL 22

VIEW OF ATRIUMS

VENETIAN CONCERT HALL
View of Lobby Atrium
23
View of Chamber 1 Atrium
VENETIAN CONCERT HALL
View of Chamber 2 Music Hall View of Chamber 1 Music Hall
OF
24
VIEW
MUSIC HALLS

TRONCETTO II URBAN DEVELOPMENT VENICE, ITALY DESIGN 10

Venice, Italy is one of the most famous cities in the world, but it faces serious harm when it comes to its chances of survival. The population of Venice has drastically decreased since the 1950s, as people only view it has a tourist destination and not a long term place to live.

The Venetian water port is an underdeveloped and underutilized site that presents potential. In this project, my partner and I decided to implement a variety of program that would present long term social and economic benefits for Venetian residents. We implemented a pedestrian friendly grid system that will encourage walking and biking.

Design Partners: Joseph Falcone

03
25
TRONCETTO II URBAN DEVELOPMENT 26
TRONCETTO II URBAN DEVELOPMENT MASTER PLAN 27
TRONCETTO II URBAN DEVELOPMENT SITE DIAGRAMS 28 Green Belt Canals Piazzas Green Belt Circulation Boulevard Circulation Pedestrian Circulation

MARKET

MIXED USE

RESIDENTIAL

OFFICE

CONCERT HALL

TRONCETTO II URBAN DEVELOPMENT PROGRAM
29

RESIDENTIAL

Views to water, private land away from commercial zones

MIXED USE

encourage gathering

OFFICE

Places along boulevard for efficient transportation

TRONCETTO II URBAN DEVELOPMENT SITE AXON
30
Placed adjacent to piazza spaces to
TRONCETTO II URBAN DEVELOPMENT OVERALL SITE VIEW 31
TRONCETTO II URBAN DEVELOPMENT 32
TRONCETTO II URBAN DEVELOPMENT VIEW INSIDE PIAZZA 33
TRONCETTO II URBAN DEVELOPMENT 34
TRONCETTO II URBAN DEVELOPMENT VIEW OF GREEN BELT 35
TRONCETTO II URBAN DEVELOPMENT 36
Thank you

Turn static files into dynamic content formats.

Create a flipbook
Issuu converts static files into: digital portfolios, online yearbooks, online catalogs, digital photo albums and more. Sign up and create your flipbook.
Colin White Portfolio by colinhwhite - Issuu