Coleman Conner Portfolio 2023

Page 1

COLEMAN CONNER 2023 PORTFOLIO

COLEMAN CONNER

Aspiring Architect

colemanjconner@gmail.com

www.linkedin.com/in/coleman-conner Boston, MA

SKILLS EDUCATION

Wentworth Institute of Technology - Boston, MA

Master of Architecture | Anticipated: April 2023

Concentration in Emerging Technologies

Minor in Business Management

Cum Laude

Rochester Institute of Technology - Rochester, NY

Studies in Engineering

Transfer Student: May 2018

EXPERIENCE

Gensler - Boston, MA

Professional Intern | May 2022 - August 2022

Assisted in the design process of large scale projects, including a life science campus, amenity buildings, and sustainable structures

Engaged with the Design Technology team to visualize projects physically and virtually through the use of digital fabrication, programming logic, and modeling

Led an intern team towards a successful design proposal for the Boys and Girls Club of America, collaborating with the client to re-design an outdoor space

Generated innovative solutions for various teams, focused on technology, sustainability, and community, to improve performance and spark ideas

Turner Construction - San Francisco, CA

Assistant Engineer | June 2021 - August 2021

Helped Bohlin Cywinski Jackson Architects manage the construction of a ground floor lobby renovation within a 48 story building in downtown San Francisco

Utilized SketchUp to conceptualize the constructability of the project that included a canopy with new steel connections to the existing structure

Developed a Quality Assurance plan for our project team that covered a complete redesign of the surrounding plaza including a reflecting pool

Processed submittals and RFI’s with Procore to assist in the design of the clubhouse, cafe, kiosk, and landscape for the 101 California project

Harvard University - Cambridge, MA

Assistant Project Manager | January 2020 - April 2020

Collaborated with architects, owners, and contractors to design and construct theaters, science labs, libraries, and other spaces on Harvards Campus

Performed regular site visits to aid in the construction of religious and community spaces for Harvard’s students

Utilized AutoCAD to prepare and ensure accuracy of technical documents related to housing projects, sports facilities, science and engineering complexes, and more

Participated in discussions on project-related issues such as material selection, resolving structural challenges, and systems with multiple trades

Rhino

Grasshopper

AutoCAD

Revit

VDC

Adobe Creative Suite

Digital Fabrication

Mixed Reality

Microsoft Teams

STRENGTHS

Innovation

Areas of research span from immersive virtual worlds to architecture in outer space.

Communication

Living in every region in the United States has given me worldly expirience that allows me to relate and communicate effectively to a diverse range of team members.

Curiousity

Researching new technologies such as AR/ VR, artificial intelligence, and robotics as I embrace the path of becoming a life-long learner.

AFFILIATIONS

Wentworth Architecture Club, President

National Organization of Minority Architecture Students(NOMA), Member

American Institute of Architecture Students(AIAS), Member

Wentworth Center for Applied Research, Lab Fellow

Wentworth Student Mentor

2
Rosenthal Center for Contemporary Arts - Exploded Axonometric Drawing
3 CONTENTS SPACE ARCHITECTURE MAKERSPACE DIGITAL ART MUSEUM ARTISTS RESIDENCE BOYS & GIRLS CLUB 0102030405 -

SPACE ARCHITECTURE

“Think Cosmic, Act Global”: This thesis explores ways of constructing in space to shine light on innovative ways to build on Earth. By teaming up with people from NASA and other aerospace companies, I created a snapshot of what architecture on Mars could look like by the year 2050. In 2022, NASA launched it’s Artemis program to send people to the moon and eventually Mars, this time to stay. This is the start of imagining a brighter future that could advance architecture while informing strategic changes to terrestrial architecture.

4
5
Analytique - Architecture on Mars: Lava Tubes

Types of Space Architecture

6
7 Space Architecture Moments - Perspective of Hatch
Detailed Section with Martian Soil(Regolith) and Aerial View
8 Exterior Approach Perspective of Martian
with
3D Printed Nature Inspired Domes
Habitat Covered
Regolith
9
Think Global - Future Proof: Sustainability, Augmented Reality, Grasshopper/Artificial Intelligence (Bottom Images Created with AI)

MAKERSPACE

Our goal is to create a focal point in Lowell that showcases the artwork created by makers. We also want this design to be an experience for the community to enjoy. We believe it’s important that each maker space has a visual connection to the city, framing a greenway, the river, nearby landmarks, and Lowell so it can enhance their work. We imagine this intervention to be similar to a monument, so we are including spaces that allow pedestrians to engage with the creations. We want to build a new structure that will change the Lowell Community for the better.

10
Skylar Chardon Coleman Conner
11
Section Perspective - Structural Acrobats
12
Programming Diagram Perspective from University of Massachusetts Lowell Facade Parti Diagram
13
Interior 3 - Extended Greenway Interior 1 - Community Interior 2 - Facade Interaction Interior 4 - Monumental
14
Facade Study - Kunsthaus Bregenz
15
Perspective from University of Massachusetts Lowell Detailed Wall Section
Balcony Perspective

DIGITAL ART MUSEUM

Inspired by the synergy between technology and nature, this museum is a place for people to congregate and experience new pieces of artwork created by digital artists. Intended for a College of Computing paired with a College of Art, this building hosts a variety of spaces. Initial designs suggest possible ways to be connected back to nature while experiencing the museum, which implies a duality between the manmade and the natural. This duality will help the community learn about the future while also feeling grounded with Earth. Utilizing the architectural device of angular planes, the museum creates an experience that allows for smooth transitions from outside to the digital underworld.

16
17
Interior Digital Art with Visual Connections to Nature - Duality
18
Harvard University Site Plan Floor Plans - Art Galleries
19
Conceptual Collage Digital and Natural Syntergy: Smart Glass Technology
20
Perspective and Section
1 2 3
Angular Planes: Parti Diagram
21
Interior Perspective

MFA RESIDENCE

The goal of this Artists Residence is to guide nearby pedestrians into the site to showcase works of art created by the MFA community. With an intriguing approach from both Pontiac Street and a busy St. Alphonsus St, this residence provides a place to learn. Whether it’s walking by the updated art wall or joining a class that has a foldable door on the outside, this building is a location that embraces connection through art.

22
23
Hand Crafted Model - Exterior View
24 1 2 3
Models A B C Approach Sequence
Process

Approach Perspective

25
26 ELEVATION A SECTION A
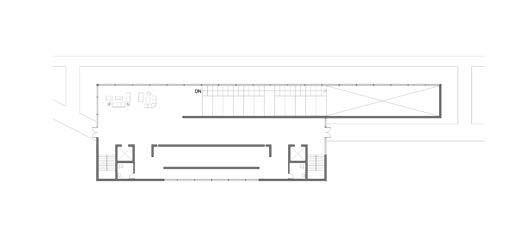
27 DN DN DN First Floor
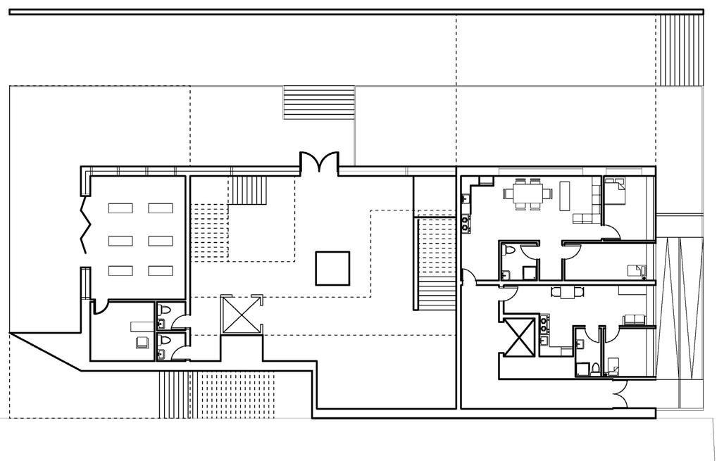
Second Floor Section A

BOYS AND GIRLS CLUB AMERICA - GENSLER

Led an intern team to design an outdoor space for the Boys and Girls Club of America which fully embodies the organization’s principles of promoting learning, play, and growth. Our project uses “cold media” to allow the team to share their ideas more fluidly as we discuss design iterations. We aimed to create a dynamic and engaging greenway that kindles ideas, creativity, and physical activity while promoting a sense of belonging.

Coleman Conner

Susie Kim

Tyler Mudge

Vanessa Shimada

Brandon Soto

28
29 Cold Media Perspective
30
“What We Heard” Diagram Series
31
Community Perspective
Axonometric Drawing A Basketball Flex Space Perspective Plan
32
33
B
Axonometric Drawing
34 COLEMAN CONNER ASPIRING ARCHITECT 207-522-9137 COLEMANJCONNER@GMAIL.COM

Turn static files into dynamic content formats.

Create a flipbook
Issuu converts static files into: digital portfolios, online yearbooks, online catalogs, digital photo albums and more. Sign up and create your flipbook.
Coleman Conner Portfolio 2023 by Coleman Conner - Issuu