
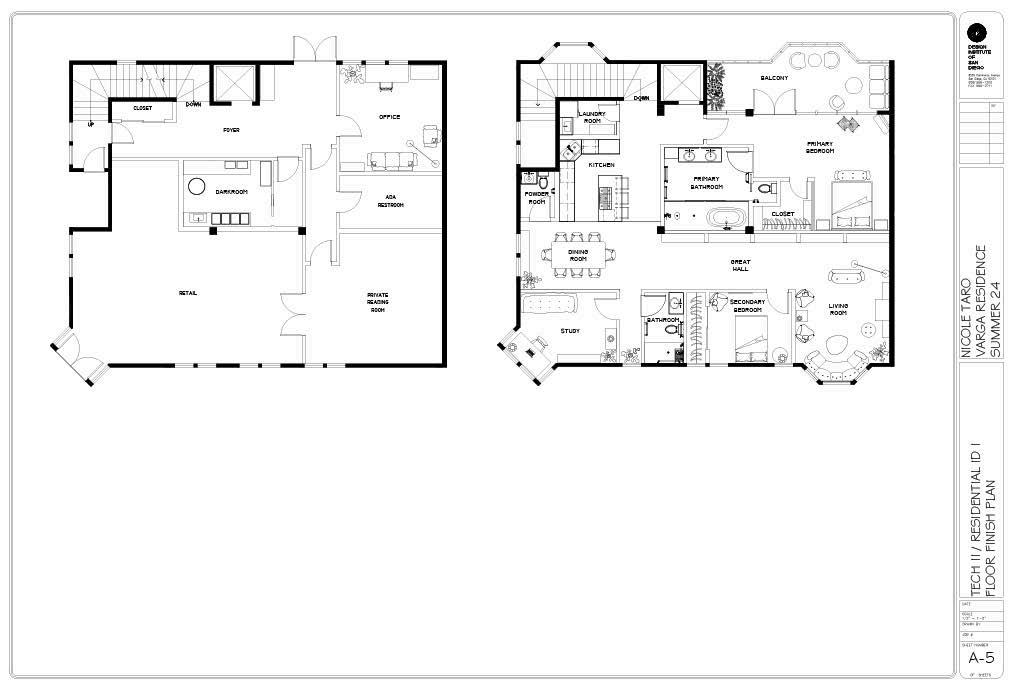
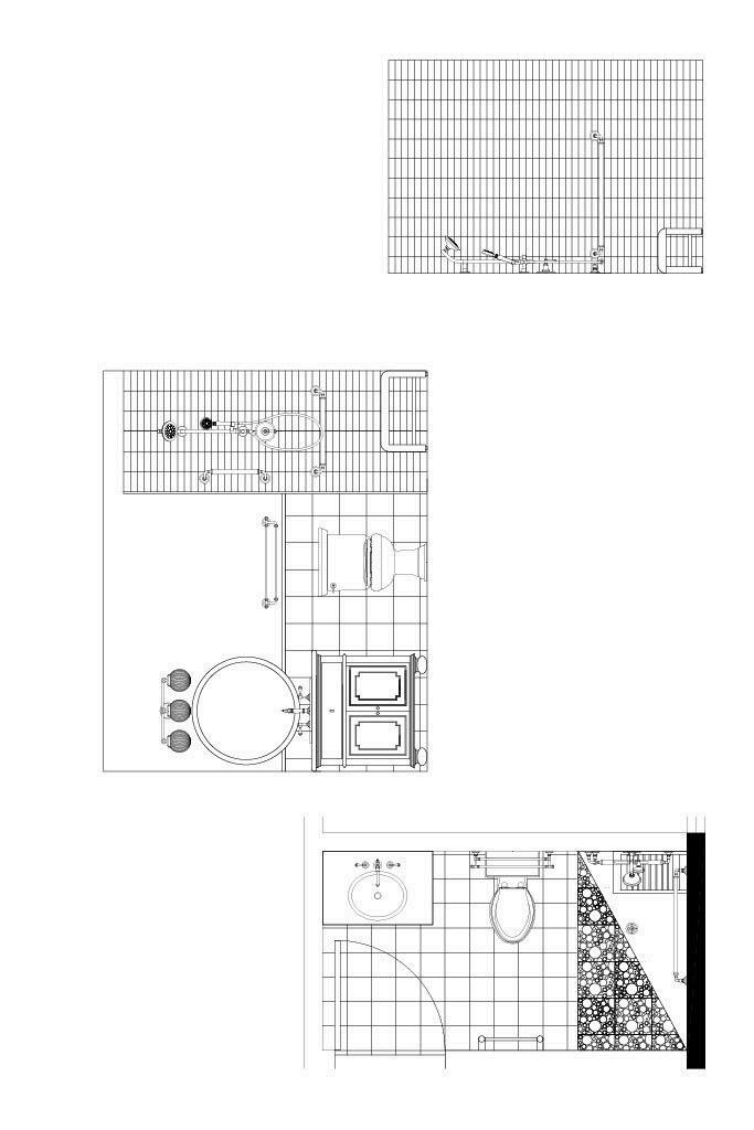
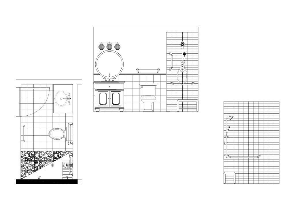
Reimagine a 4,500 sq. ft. historic 1909 building in Salem, Massachusetts, to serve as both a custom retail space and private residence for Sorina and Madison Varga. Balance preservation of the building’s character with the clients’ need for a space that honors their culture, heritage, and creative spirit.

































