architecture portfolio


New York City










































































































































































1 2 3 4
ADAPTIVE REUSE PROJECT
CONSTRUCTION
MIXED USE BUILDING INTEGRATION
![]()


New York City










































































































































































1 2 3 4
CONSTRUCTION
MIXED USE BUILDING INTEGRATION
From island soil my vision grew, Where sun and sea shape every hue.
Each line I draw, each form I find, Carries the rhythm of home in mind.
From bamboo breeze to city’s climb, I build with heart, through space and time.

+1 929 318 1182
codysmith.arch@gmail.com
465 Commonwealth Ave, NY
https://www.linkedin.com/ in/cody-smith-709870163/
E D U C A T I O N
Bachelor Degree in Architecture
New York City College of Technology, Brooklyn, New York
The Associate in applied science in Architecture With Honors 2021 - 2025 2021 - 2023
E X P E R T I S E
● Problem Solving
● Adaptability
● Collaboration
● People Skills
● Strategic Thinking
● Handling Conflict
T E C H N I C A L
● Concept creation
● Designing of functional interior spaces
● Flexibility and inventiveness
● Construction plans delivery
● 3D modeling and rendering
● Advance detailing
My career goal is to become a well-rounded, highly commendable architect who provides innovative and reliable consultation services to both the public and private sectors. I aim to achieve this by leveraging effective research methods, advanced analytical skills, and a deep commitment to sustainable and functional design. Through collaboration, creativity, and attention to detail, I aspire to deliver exceptional architectural solutions that address complex challenges and positively impact communities.
Concord Nursing Home, New York
• Assist patients in leisure activities to engage and improve their minds, bodies, and spirits.
• Document a patient’s progress during their activities.
• Provide personal observation.
• Organize and supervise field trips for patients.
• Accompany patients with various personal activities outside of the facility.
AECOM, Manhattan, New York
Seasonal 2024 – 2025
• Attend presentations showcasing AECOM's flagship projects and their design philosophies.
• Study case studies of completed projects to understand their innovative solutions and design impact.
• Learn about how AECOM integrates urban planning and architecture in their projects.
• Participate in virtual and in-person tours of AECOM’s ongoing projects to understand real-world applications of workshop learnings.
• Participate in a one-on-one and group portfolio review session with AECOM architects.
American Institute of Architecture Student, Brooklyn, New York
• Assist the President in the club/society’s activities, e.g. events and meetings
• Help to oversee the club/society committee structure
2022-2023
• Run meetings in the absence of the club/society President, and taking accountability for decisions that are made.
• Complete any tasks as delegated by the President
• Help to strengthen the relationship between the committee and members, and inspiring and encouraging them to ahieve the club/society’s agreed goals
• BENHAR’S SCHOLARSHIP FOR DESIGNERS & CREATORS OF COLOR
• DEAN L�ST �
• Member of The National Organization of Minority Architects Students (NOMA)
• Vice President of American Institute of Architects Students (AIAS)
• Member of Construction Management Association of America (CMAA)
• Member of �reedom by Design �A�AS��
• Michael Duddy, M.Arch., R.A. | Assistant Professor | Department of Architectural Technology
• Rain Yan Wang | Adjunct Assistant Professor | Department of Architectural Technology
• Elisabeth Martin, FAIA | Principal | MDA designgroup architects & planners
• Sanjive Vaidya , Board of Directors ALNY | Chair | Department of Architectural Technology

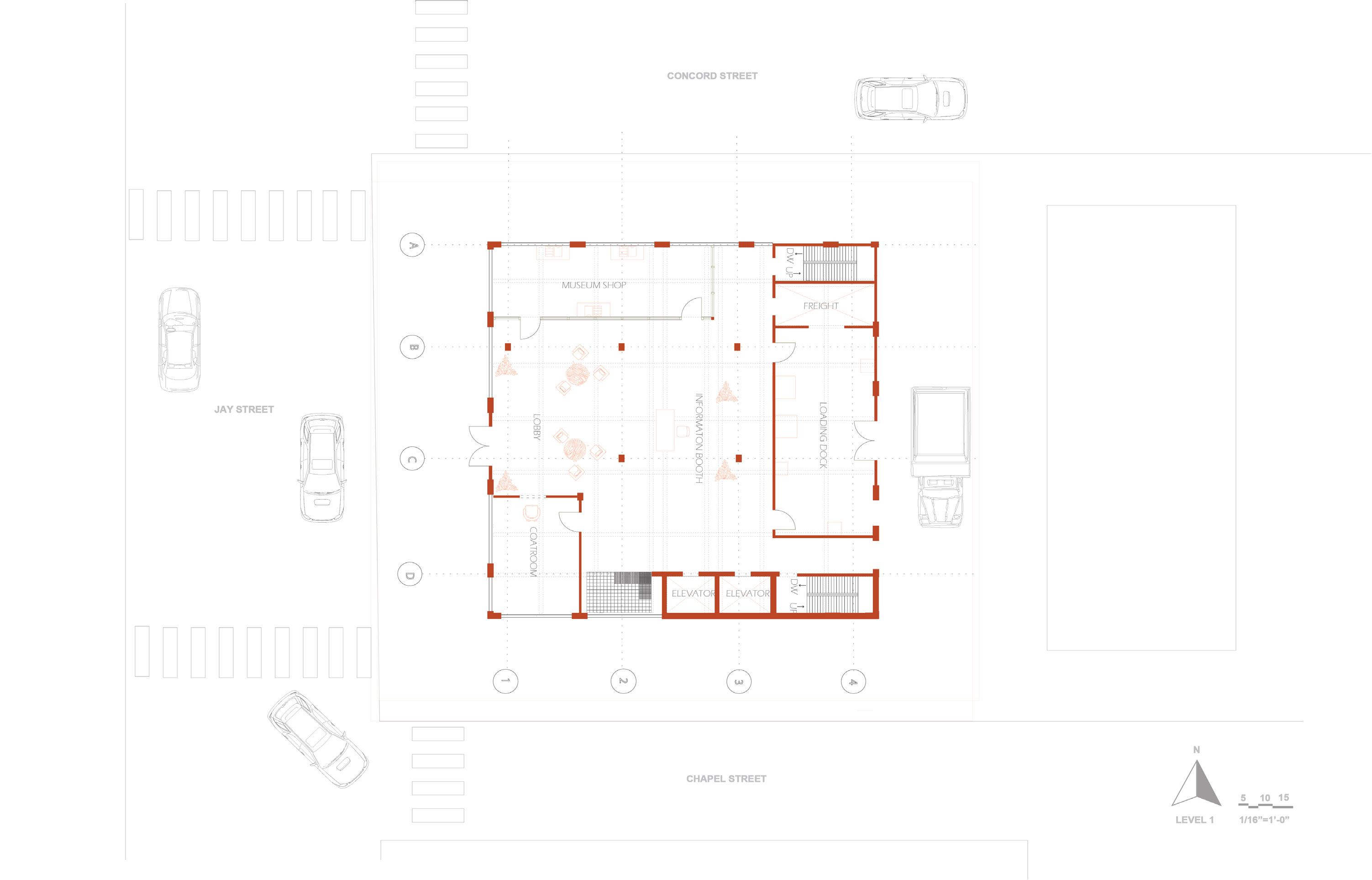
Since DUMBO has been redeveloped as a chic, residential neighborhood, many changes have taken place there: a new incubator space is being built around the Vorhees Building, and a high-rise hotel/apartment building has been built adjacent to it. The college campus will be enriched by a museum of culture.
The Museum of Culture will be located on the parking lot site bounded by Jay, Concord and Chapel streets. In addition to 100’ x 100’, there is an additional 100° x 25° available on the east edge over an access alleyway.



The creation of the Reggae Museum is to establish and secure an identity within New York. A key goal of the exhibition hall is to convey Reggae music sentiments of consolidated unity and intangible love (one love) - illustrating and denning Jamaica’s beloved culture of peace and love. The Reggae Museum will emphasize. these characteristics of reggae creatively as design factors for visitors to experience. Furthermore, the Reggae Museum aims to inform its visitors about how Reggae music impacts the world at large. By making the lower level of the building segregated and the top of the building more open without boundaries, the undertaking started to manipulate spaces in the museum. Lower-level segregation represents how society groups of people according to their economic class and race, whereas upper-level open. Floor plans will symbolize the counterculture reggae music provides. Grid mapping will be used to establish the form using lines and shapes.








Section 2



Interior View


Project Description
I highlight my expertise in building technology, enriched through a comprehensive understanding of axonometric representations and detailed drawings of walls and floors. Utilizing Revit software, I demonstrate my proficiency in leveraging cutting-edge technology to create accurate and dynamic architectural models.


















































































































































































































































































VAPOUR BARRIER
SLOPED CONTINUOUS BLOCK METAL COUNTER FLASHING




























SUSPENSION RODS
SUSPENSION CLIPS
PLASTER BOARD



SPACER


EXTERIOR
BOLTS
VERTICAL
BRACKET FASTENERS
FIREPROOFING
CONCRETE SLAB



SPACER












ROOF MEMBRANE























HORIZONTAL MULLION
VERTICAL MULLION


























Project Description
This studio explores environmental sustainability through bioclimatic design, emphasizing material consumption, thermal comfort, and energy efficiency. By integrating quantitative methods, the project analyzes site conditions, building form, spatial organization, and façade systems to optimize performance. The course challenges the application of life safety, structural, environmental control, and envelope systems while achieving measurable building performance outcomes. Through iterative design reviews and workshops, the project balances occupant comfort, environmental impact, and low-carbon strategies, aligning with NAAB 2020 accreditation standards for Building Integration.
