A Huge House II: 360 Student Housing - International House

Page 1

INTERNATIONAL HOUSE

96 City Road, 2023

Coco Xing & Aaron Jin A Huge House II: 360 Student Housing

Index

Project statement

Site plan

Model image

Ground floor plan

Typical plan

Plan diagrams

External view

Section A

Sectional diagrams

Section B

Model image II

Unit plan

Plan diagrams II

Model image III

Façade detail

Façade axonometric

Material palette

Considerations Of Country

Model image IV

Interior image

Preliminary budget

Postscript

pag. 2

pag. 3

pag.4

pag. 5

pag. 6

pag. 7

pag. 8

pag.11

pag. 12

pag. 13

pag. 14

pag. 15

pag. 16

pag. 17

pag. 19

pag. 21

pag. 22

pag. 23

pag. 24

pag. 25

pag. 26

pag. 27

pag. 28

2
INDEX

PROJECT STATEMENT

“… is a map and not a tracing.The map is open and connectable in all of its dimensions; it is detachable, reversible, susceptible to constant modification. … is without a General and without an organizing memory or central automaton, defined solely by a circulation of states.”

The Huge House situates itself on the previous International House, 96 City Rd. It grows from the existing skeleton of masonry and concrete, sitting next to the brutalist School of Architecture at a corner of the university campus.

Only the skeleton of the existing structure remains after the radical removal of all walls and most structures to the west. The podium was demolished for the accommodation-only extensions, which leaves the existing to serve as the circulation core, connecting the other two accommodation areas via bridges.

In the unit, 3 students share a set of separate sanitary facilities plus a ‘kitchen-less’ and stove-less bench for a simple and rapid meal in the morning. Bedrooms are radically squeezed to contain only a bed, a wardrobe, and a bay window with good natural lighting where tenants may ornament. 9 levels of units on CLT construction unfold themselves through lightweight bridges around the deconstructed and discrete existing skeleton, and some banal canopy structures on top.

In response to the compression of private spatial ownership in the unit, double-level communal lounges find

their place in the vacated existing structure, which receive brutal penetrations on quasi-mezzanines and are defined by students as they co-work, barbeque, and circulate within.

The ground floor includes huge bicycle storage, providing a bike spot for every tenant. For security purposes, the main entrance on this partially open site was moved from City Road to Maze Crescent. The parcel room sits near the reception that faces the rotated circulation core with a secured entrance. The skeleton of the existing cylinder structure is cut through, delineating an open-air theatre for a movie. 3 irregular shallow ponds and gravel piles make up the freeform landscaping, adding an ambiguous touch.

Is the protection enough? With couple layers of timber, sheets of curtains, and the last but certainly not the least, big, windows and openings, we seek to introduce situational ways of living that internalises the exterior atmosphere.

--We acknowledge theTraditional Custodians of the land on which we gather today.We pay our respects to Elders past, present and emerging and celebrate the diversity of Aboriginal peoples and their ongoing cultures and connections to the lands and waters.

3

SITE PLAN

We see student housing in such a special corner on campus part of the uni-community and thus open up the ground floor so it blends with the site. With proximity to City Rd. in the north, sound-proofing panels are applied to the facade of the building.

4
GSEducationalVersion
1/1000

MODEL IMAGE

New buildings for accommodation are situated aside from the existing structure, allowing subversion of functions. What was enclosed is now open, and what used to accommodate now serves as common area. Sunshading devices are utilised to prevent strong daylighting.

5

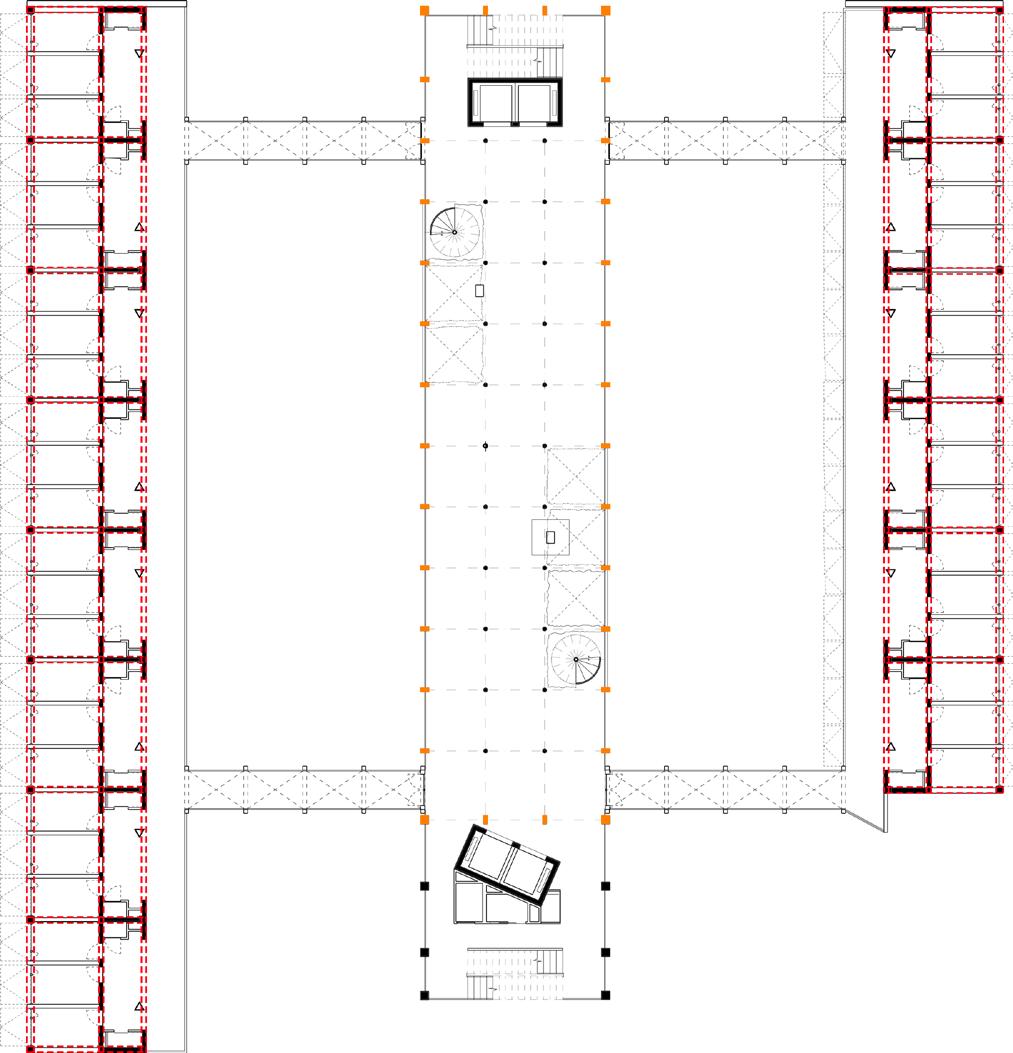
GROUND FLOOR PLAN

The area on the far left is designed entirely as a bicycle storage. The 3 ponds, and piles of stones have been artificially placed to create a natural visual and functional separation between the bicycle storage and the outdoor space. The main entrance move to the uni-side for better security purpose. The far right open venue cinema made by the column from old cylinder building.

6
1/400

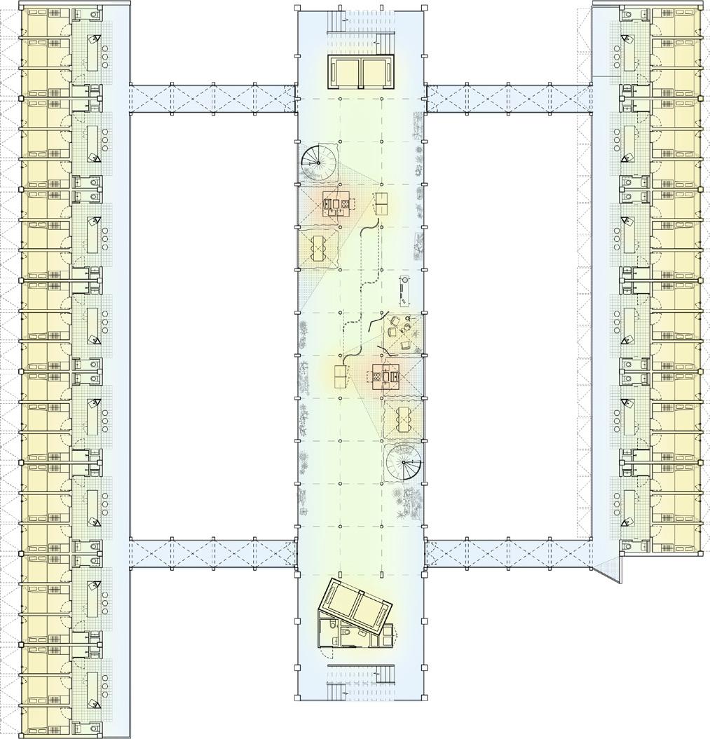
TYPICAL PLAN

The 3 people unit contains 3 minimal rooms with big windows next to the bed, a bench, and separate bathroom and toilet. Curtains are the only buffer between the exterior and the unit to create ambiguity. Existing structure is vacated as a central shared space for the students to define.

7
1/400 A

PLAN DIAGRAMS

The diagrams all seem to express separate meanings, but when viewed together, there seems to be some correlation? For example, the only scissor staircase has also become the only fire staircase, the area wrapped by the load-bearing structure is relatively private, while the walkway is cantilevered.

8
Vertical circulation Main circulation run through the whole building Spiral stair run between a main floor to a mezzanine
Enclosed and open spaces 1/600
Fire srategy
Structural grid

PLAN DIAGRAMS

As the shared space provided as an open plan, in addition to the uncertainties caused by natural factors, there are also human-generated uncertainties. The temperature can be changed from season to season by the actions of the occupants themselves, such as fans, cooling appliances, or heating and outdoor gas heaters.

9
Winter Climate Zone Summer Climate Zone Level of Privacy Cross Ventilation 1/600 Low Temp. High Low Temp. High High Low High Low
10 PLAN DIAGRAMS Week 6 Week 6 Week 11 Week 13

EXTERNAL VIEW

The open shared space allows tenants to catch up and establish new relationships with one another. With fixed BBQ & cooking place, and other flexible furniture layouts, the spatial quality gets defined as the tenants gather and study within the common area.

11

SECTION A

The building floats above the ground scattered with vegetation and amenities. Detaching from the shared space in the middle that is left open to read, are bodies of machines for living. It is a structure both unfolds itself and internalises the circulations of states.

12
1/250

SECTIONAL DIAGRAMS

The only solid protections are the walls of the private rooms. Extra sunshading is provided while ventilation might be the least concerned in such strategy.

13
GSEducationalVersion W E W E

SECTION B

Although this is described as a section, it actually shows more of the elevation on the side of the unit shared space. Being a very open façade, the balustrades are the only protection. The penthouse at the top has a raised ceiling height with a rectangular skylight above the kitchen bench top. Below is the residential side entrance to the cycle garage.

14
1/250

MODEL IMAGE II

By plays of translucent wall materials, we seek to dematerialise the ground floor and make it part of the campus. The upper living programs are thus segregated and made autonomous. Space begins to perform as the tenants bring in their own living.

15

UNIT PLAN

The doors clearly divide the private space from the shared space for three people, and the tiled floor of the shared space clearly demarcates the area that belongs to the shared space for three people, even if it is semi-open. Three sinks offer the possibility of washing up at the same time. The kitchen bench top without a stove allows for simple meals.

1/50

16

The same thing happens here, where the diagrams seem to express separate meanings to each other, but many correlations can be found. Shared open spaces carry the most functions, wet areas, reinforced load-bearing CLT wall panels around, and better cross ventilation.

17
Sharing arrangement Wet areas Structural grid Cross Ventilation Low High
PLAN DIAGRAMS II
18 PLAN DIAGRAMS
Week 6 Week 8 Week 9 Week 15
II

MODEL IMAGES III

A narrow room with a huge window, the room has space for the most basic living needs, a double bed, a wardrobe, and a bay window seat next to the bed, carrying all the needs of use. It is a small room, but it has everything you need. The enormous windows diminish the cramped feel of the room itself.

19
20
FAÇADE DETAIL
1. Corrugated metal roof cladding, white, screwed to Z purlins, membrane underpay, cap flashing on the edge 2. Corrugated metal wall cladding, white, screwed to metal battens, membrane underlay 3. Metal battens attached to studs 4. Interior plaster lining, screwed to studs 5. Folding arm awning 6. Natural ventilation & Drainage
CORRUGATED METAL ROOFCLADDING, WHITE, SCREWED TO PURLINS, MEMBRANE UNDERLAY, CAP FLASHING ON THE EDGE CORRUGATED METAL WALL CLADDING, WHITE, SCREWED TO METAL BATTENS, MEMBRANE UNDERLAY METAL BATTENS ATTACHED TO STUDS INTERIOR PLASTER LINING, SCREWED TO STUDS FOLDING ARM AWNING NATURAL VENTILATION & DRAINAGE CLT SLAB WITH VAPOUR BARRIER MEMBRANE, CARPET OVER IN BEDROOM 1/50
7. CLT slab with vapour barrier membrane, carpet over in bedroom

FAÇADE AXONOMETRIC

21
1. Beam under 2. CLT flooring with cement finish in the corridor, tiles on the lounge area 3. Glulam column 4. CLT shear wall 5. Stud wall
GSEducationalVersion 1 3 4 5 2 6
6. Corrugated metal wall cladding

Simple and easily installed materials, seemingly lightweight materials and environmentally friendly construction materials make up the complete closure of the material palette. The choose of colour also aligned to the natural of the material itself and gives neutral feeling.

22
MATERIAL PALETTE
Glued-laminated Timber Ceramic Tiles Polycarbonate Sheet Corrugated Metal Cladding Fabric Polished Paint Cement Finish Transparent Glass Bricks Cross-Laminated Timber

CONSIDERATIONS OF COUNTRY

Micro Ecological Endocycle

The combination of miniature but relatively comprehensive vegetation, water and rock form the closest thing to nature at the base of the building. The linkage and integration of the vegetation from the bottom up allows the entire open building to be integrated into the miniature nature at the lowest base. Even the artificially created ecosphere can help to awaken the user to nature.

Non-Anthropocentric Ecology

We question the necessity of barriers. Humans in Country is merely part of a living entity with its own spirit, and humans are responsible for caretaking the land. Instead of segregating the land and living, we remodel the heterogenous anthropocentric architecture into artificial land.

Despite varied reading of Country, we acknowledge Country as an important ideology of our design. No matter what position we take, we design for the benefit of everyone, and hopefully, every being on this land we live and build.

23

MODEL IMAGE IV

Although there are only three chairs in each unit, the openness of the unit with a soft barrier provides ambiguity between each unit. Perhaps the residents of neighbouring units could visit each other as all of the units has their 3 chairs, and the kitchen-less bench could become a relatively private place to gather.

24

INTERNAL VIEW

A shared space delineated by columns, both structural and significative. Slabs of every 2 floors get penetrated in a banal manner, creating the casualness that activates and enables the definitions from the students. With the sheltrelessness, the students must reposition and reconsider the contextual relations among the building, environment, and themselves.

25

PRELIMINARY BUDGET

26
$/m2 4400.00 No landscape included just not the FF&E and ICT components. m2 proposal 5450.00 % AUD Preliminaries 15 $9,825,000.00 Substructure 1.5 $982,500.00 Superstructure Columns 4 $2,620,000.00 Upper Floors 11.5 $7,532,500.00 Staircase 2.5 $1,637,500.00 Roof 0.5 $327,500.00 Externall Walls/Windows 5 $3,275,000.00 External Doors 0.1 $65,500.00 Internal Walls 4 $2,620,000.00 Balustrade 2 $1,310,000.00 Internal Doors 1.4 $917,000.00 Finishes Wall 2 $1,310,000.00 Floors 4 $2,620,000.00 Ceilings 2 $1,310,000.00 Fittings Fitments 13 $8,515,000.00 Specials 0.6 $393,000.00 Services Plumbing 13.6 $8,908,000.00 Mechanical 3 $1,965,000.00 Fire 0.9 $589,500.00 Electrical 4.5 $2,947,500.00 Transportation 5.5 $3,602,500.00 Special 0.4 $262,000.00 External Services 0.2 $131,000.00 Contingency 2.8 $1,834,000.00 Total 100 $65,500,000.00

Looking back on the journey, we feel proud of what we achieved. While radicality is what accelerates the project, it brings trouble.

The intentional lack of barriers is a bald move, if not a problem. The building is probably more of a success in places where the climate is more moderate. Under the weather circumstances of Sydney, it is likely better to provide extra protections, say, operable facades or enclosed areas within the shared open space. With the openness of the ground floor that allows a good relation between the uni-campus and the student housing, we put the level of security on the edge. Extra barriers may be helpful, however, may impact spatial transparency. Tenants who use the shower in extreme weather might not feel welcomed, as the soft barrier is just not the perfect choice in terms of thermal control.

And there are considerations for Country. Being sceptical of the superficial cultural representation, we refuse to see the minority as “Other“. Instead, we focus on the living quality of the tenants, and the contextual relations among architecture, environments, and people.

Architecture and living, after all, are circulations of states.

27 POSTSCRIPT

INTERNATIONAL HOUSE

A Huge House II: 360 Student Housing
Coco Xing & Aaron Jin Jack Cooper

Turn static files into dynamic content formats.

Create a flipbook
Issuu converts static files into: digital portfolios, online yearbooks, online catalogs, digital photo albums and more. Sign up and create your flipbook.
A Huge House II: 360 Student Housing - International House by coco.xing - Issuu