Portafolio Carlos Nuñez

Page 1

J. Nuñez ARQUITECTO PROYECTOS ARQUITECTONICOS ELABORACION DE PROYECTOS ARQUITECTONICOS Y CONSTRUCCION DE OBRAS EN GENERAL Ca. San Miguel 276 – San Luis | Lima 983304161 arq.nunezcarlos@gmail.com LIMA | PERU
Carlos

DE LA MATA VIVIENDA UNIFAMILIAR

|segundo NIVEL

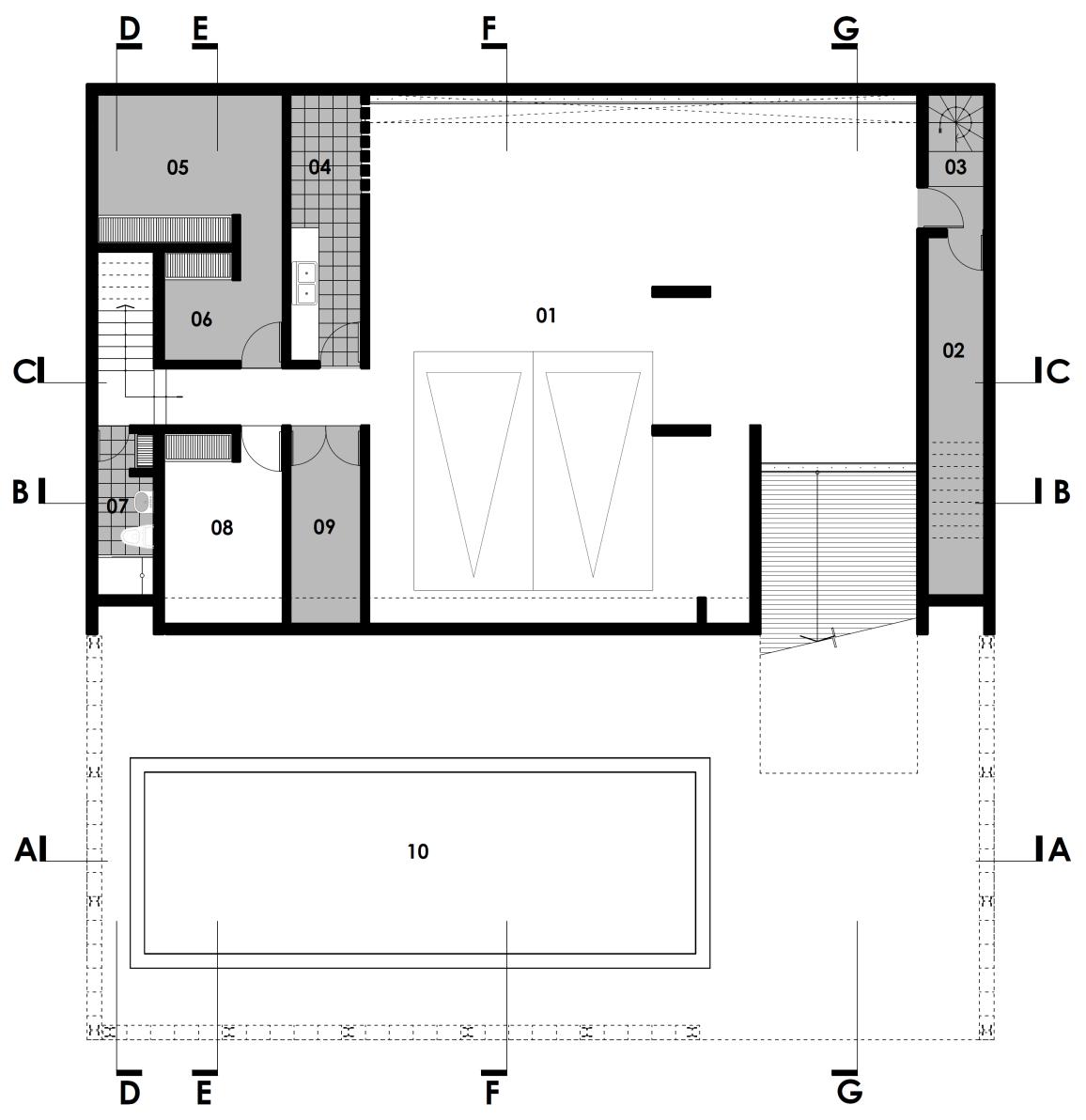
|

semi SÓTANO

1 ESTACIONAMIENTO

2 DEPOSITO

3 ESCALERA DE SERVICIO

4 LAVANDERIA

5 CUARTO DE SERVICIO

6 CUARTO DE PLANCHADO

7 SS.HH.

8 CUARTO DE VISITA

9 ALMACEN

10 PISCINA

FICHA TECNICA

Ubicación : Condominio Jockey Club, Chiclayo - Lambayeque

Tipo : Vivienda Unifamiliar

m2 Diseñados : 564.77

|

primer NIVEL

1 INGRESO

2 INGRESO A SOTANO

3 INGRESO SECUNDARIO

4 ESCALERA DE SERVICIO

5 PATIO TERRAZA

6 ESPEJO DE AGUA

7 JARDIN

8 COCINA

9 COMEDOR

10 SALA

11 SS.HH. VISITA

segundo NIVEL

1 DORMITORIO PRINCIPAL

2 W. CL.

3 JACUZZI

4 SAUNA

5 ESCALERA DE SERVICIO

6 SS.HH. PRINCIPAL

7 ESTAR TV

8 DORMITORIO 01

9 DORMITORIO 02

10 SS.HH.

11 HALL

12 ESTUDIO

|

1 TECHO

2 TANQUE ELEVADO

3 PATIO TENDAL

4 ESCALERA DE SERVICIO

| azotea
| corte A-A
| corte B-B

ROJAS

VIVIENDA BIFAMILIAR

1 ESTACIONAMIENTOS

2 CTO INST. SANITARIAS

3 CTO INST. ELECTRICAS

4 HALL DE SERVICIO

5 SSHH

6 CTO GUARDIAN

7 CTO SERVICIO

8 CTO SERVICIO

9 SSHH

| semi SOTANO

1 CIRCULACION INGRESO

2 EXCLUSA

3 SSHH

4 BAR

5 PARRILLA

6 SALA COMEDOR

7 COCINA

8 SSHH

9 ESTUDIO

10 PATIO DE SERVICIO

11 DEPOSITO 1

12 DEPOSITO 2

13 CTO PLANCHADO

14 PUENTE

15 SSHH VISITA

16 SALA COMEDOR

17 COCINA

18 TERRAZA

19 ESTUDIO

20 HALL

21 SALA COMEDOR

22 COCINA

23 SSHH

24 INGRESO ESTACIONAMIENTOS

| primer NIVEL

1 DORMITORIO 1

2 SSHH 1

3 DORMITORIO 2

4 ESTAR FAMILIAR

5 DORMITORIO 3

6 DORMITORIO 4

7 WC 1

8 WC 2

9 SSHH 2

10 SSHH 3

11 HALL

12 DORMITORIO PRINCIPAL

13 SSHH PRINCIPAL

14 WC

15 JACUZZI

| segundo NIVEL

|

corte A-A

FICHA TECNICA

Ubicación : Urb. Víctor Raúl Haya De La Torre, Pimentel, Chiclayo - Lambayeque

Tipo : Vivienda Bifamiliar

m2 Diseñados : 732.90

| corte B-B S22 VIVIENDA UNIFAMILIAR

| primer NIVEL

1 PORCH DE INGRESO

2 VESTIBULO

3 ESTUDIO

4 HALL

5 GARAGE

6 SALA

7 COMEDOR

8 COCINA

9 SSHH VISITAS

10 LAVANDERIA

11 JARDIN

FICHA TECNICA

Ubicación : Urb. El Santuario, Chiclayo - Lambayeque

Tipo : Vivienda Unifamiliar

m2 Diseñados : 395.50

|

segundo NIVEL

1 HALL

2 DORMITORIO PRINCIPAL

3 WC

4 SSHH PRINCIPAL

5 SALA DE ESTAR

6 DORMITORIO 1

7 WC

8 SSHH

9 DORMITORIO 2

10 WC

11 SSHH

| AZOTEA

1 TERRAZA + BBQ

2 SUM

3 SSHH

4 DEPOSITO

5 SSHH

6 LAVANDERIA 1

7 LAVANDERIA 2

8 PATIO

|
FACHADA
PARQUE VIVIENDA UNIFAMILIAR
DEL

|primer NIVEL

FICHA TECNICA

Ubicación

: Av Del Parque, La Planicie – La Molina, Lima Tipo

: Vivienda Unifamiliar m2 Construidos : 982.60

|corte A-A
|corte B-B
PEDREGAL CASA

FICHA TECNICA

Ubicación : Urb. Los Ficus, carretera PimentelChiclayo

Tipo : Vivienda Unifamiliar

m2 Diseñados : 491.07

|

semi SOTANO

1 ESTACIONAMIENTO

2 DEPOSITO

3 LAVANDERIA

4 PATIO

5 ESCALERA DE SERVICIO

6 RAMPA

|

primer NIVEL

1 PORCH DE INGRESO

2 SALA

3 ESTUDIO

4 COMEDOR

5 SSHH

6 DESPENSA

7 COCINA

8 ESCALERA DE SERVICIO

9 COMEDOR DE DIARIO

10 PARRILLA

11 SSHH PISCINA

12 JARDIN

13 TERRAZA MADERA

14 ESCALERA INDEPENDIENTE

segundo NIVEL

1 DORMITORIO PRINCIPAL

2 TERRAZA BALCON

3 SSHH

4 ESCALERA INDEPENDIENTE

5 ESTAR TV

6 DORMITORIO 1

7 DORMITORIO 2

|
8 WC
|segundo NIVEL

Turn static files into dynamic content formats.

Create a flipbook
Issuu converts static files into: digital portfolios, online yearbooks, online catalogs, digital photo albums and more. Sign up and create your flipbook.
Portafolio Carlos Nuñez by cnarquitectura - Issuu