Architektur Portfolio Cornelius Menzel

Page 1


PORTFOLIO

2017 - 2025

Bachelor

Thesis

Prof. Dipl.-Ing- Peter Arnke

Berliner Hochschule für Technik

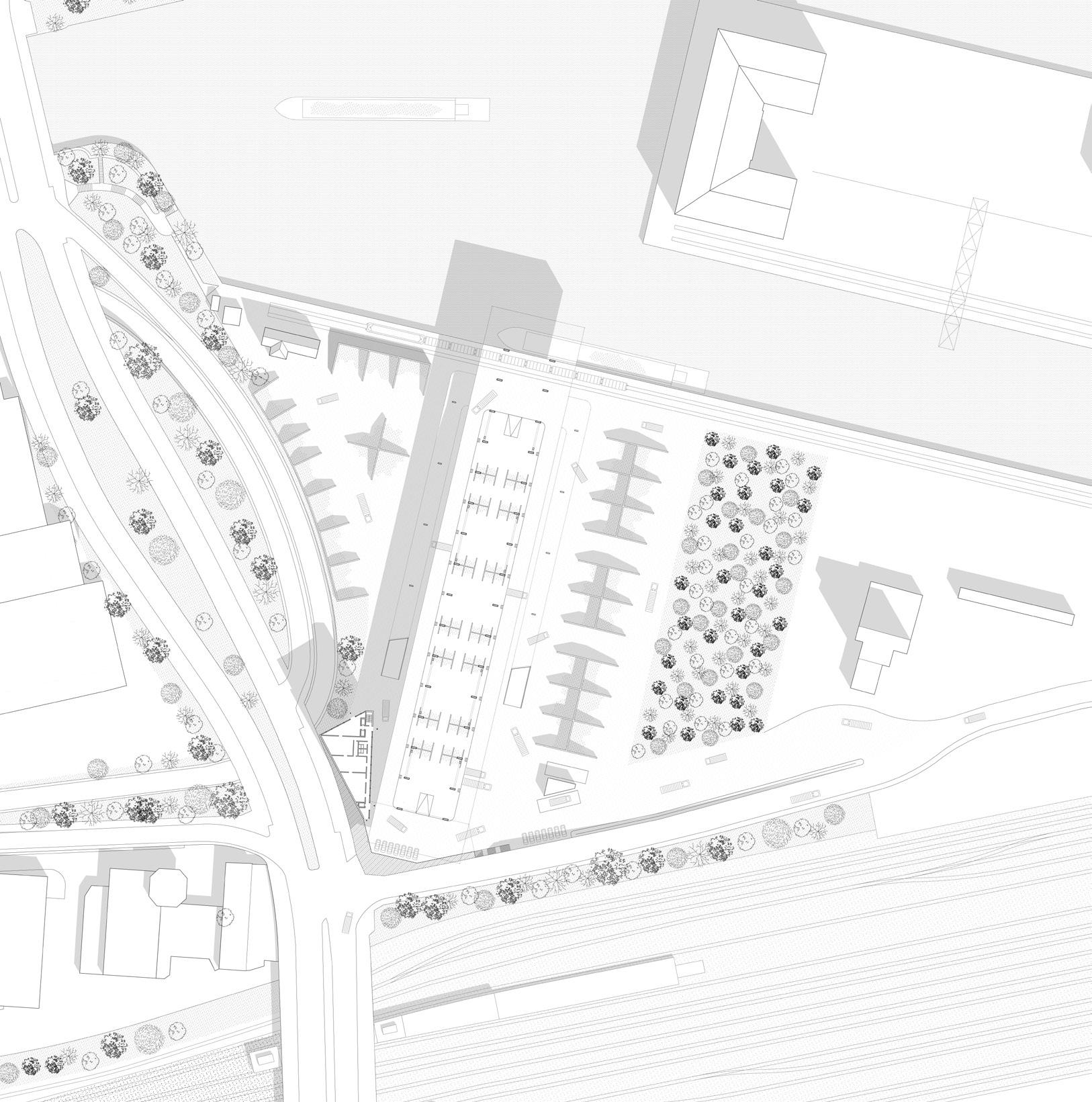
Fahrradparkhaus

am Berliner Hauptbahnhof

Auf dem dreieckigen Grundstück nördlich des Berliner Hauptbahnhofs soll ein zeitgenössisches Fahrradparkhaus für min. 3000 Fahrräder entstehen. Da ein großer Teil des Grundstücks als Feuerwehrzufahrtsbereich für die beiden Notausgänge der Bahntunnel frei bleiben soll, entstand die Idee diesen Bereich als Innenhof zu verstehen und rings herum die öffentlichen Gebäudefunktionen anzuordnen. Auf den oberen Geschossen befinden sich die Parkebenen. Da das Gebäude von umlaufenden Verkehr und dem Busbahnhof im Osten umschlossen ist, bekommt die Fahrradgerechte Erschließung einen hohen Stellenwert.

Über die Rampen kann man die oberen Parkebenen bequem erreichen und verlassen. Zudem gibt es Aufzüge die über den Innenhof befahrbar sind. Das Erdgeschoss bildet einen massiven Sockel aus Sichtbeton, welcher nach Bedarf im Bistro oder der Werkstatt mit einer Innendämmung ertüchtigt werden kann. Das Obergeschoss und das Dach lagern auf einer filigranen Stahlstruktur, welche natürliche Belüftung und Tageslicht gewährleistet. Um die parkenden Fahrräder vor Witterung zu schützen wird die Stahlfassade mit transparenter Etfe-Folie umspannt.

Konzept Tragwerk

Axonometrie

Master Hochbau Projekt I

Deviant Architecture

Prof. Rainer Hehl

Zusammenarbeit mit:

Leonardo Schmitz

Vincent Marx

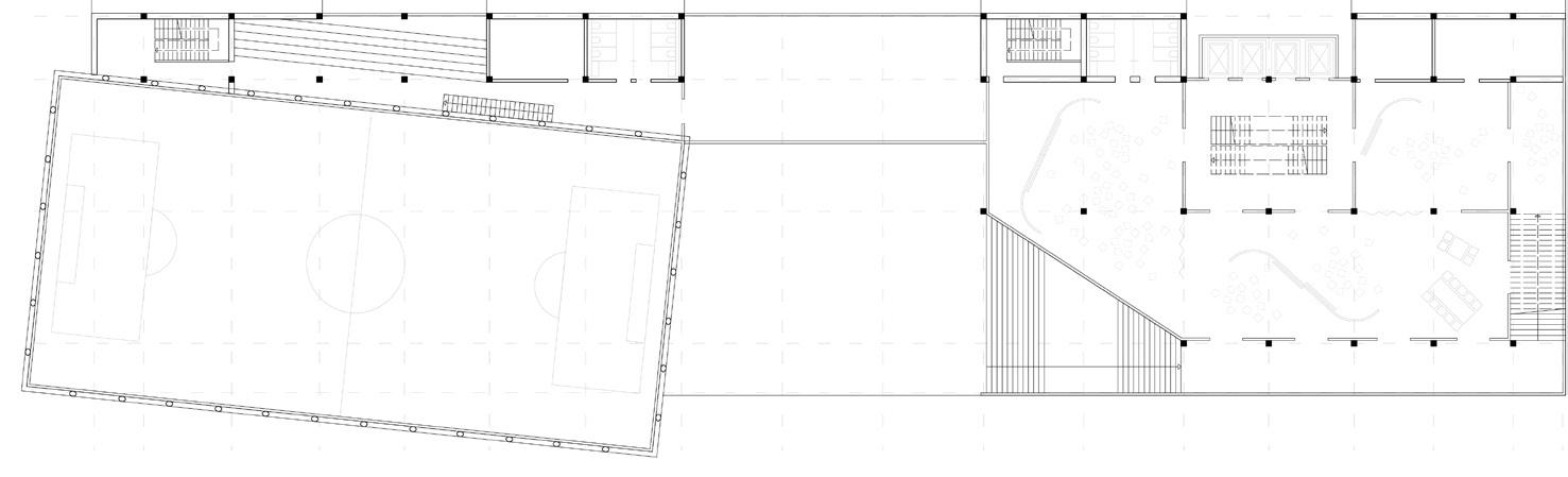
Volkshochschule Neukölln

Am S-Bhf Neukölln entsteht ein öffentliches Gebäude für die Volkshochschule Berlin. Anspruch ist eine integrative Architektursprache, welche Menschen jeden Alters, Geschlechts und sozialer Herkunft anzusprechen vermag. Gleichzeitig steht eine möglichst niedrigschwellige, flexible und effiziente Nutzung zu allen Tageszeiten im Mittelpunkt der Planung. Das ‘Infrastruktur-Gebäude’ kann wie eine Erweiterung des Gehweges gelesen werden: Eine vertikale Fußgängerzone mit einem diversem Bildungsangebot.

Im Erdgeschoss sind neben Laden- und Gewerbeflächen, eine offene Küche und weitläufige Werkstätten eingerichtet, mit einer eigenen Anlieferungsrampe. Über eine Tribünen-artige Treppe gelangen die Besucher zur Plaza in der Mitte des Gebäudes. Gegenüber der Turnhalle befindet sich der Haupteingang zum Bildungsbereich der Volkshochschule.

Auf dem Dach entsteht ein Dorf aus Holzhütten, welche wie Pavillons je nach speziefischer Nutzung angelegt werden und zum ‘Beschnuppern’ einladen.

“In building a structure of great capacity, a project design should come up with a scheme, capable of creating a set of rich and diverse situations of interest to the School, the city and the landscape.” Lacaton & Vassal

Zuarbeit Wettbewerb Blockhaus ADA CAD Zeichnungen + Modelle

Während meiner Zeit bei Nieto Sobejano Arquitectos war ich hauptsächlich zur Unterstützung von zwei Projekten in den LPH 5-8 eingeteilt. Dort gab es kleinere Entwurfs- und Visualisierungsaufgaben sowie die Bearbeitung von Detail- und Ausführungsplanungen z.B. für den Haupteingang der archäologischen Staatssammlung München oder die Sicherheitsschleuse und Möblierung der Gerichtssäle vom Amtsgericht Haßfurt. Ebenfalls unterstützte ich die Bauleitung durch Kontakt mit Baubeteiligten, Leistungverzeichnisse und Abschlagsrechnungen. Am meisten Freude hatte ich im Modellbau und bei CAD-Zeichnungen für das Wettbewerbsteam.

Praktikum + Werkstudent Berlin 2017/-18

Nieto Sobejano Arquitectos ↗

Copyright © Nieto Sobejano für alle Darstellungen auf dieser Seite

städtebaulicher Ideenwettbewerb 2019

Auszeichnung: Anerkennungspreis

TU Berlin Master - Prof. Jörg Stollmann

in Zusammenarbeit mit:

Karola Schäfermeier

Sina Wendl

Johanna Grau

Lychen. Exodus

Viele Berliner Künstler zieht es raus aus der teuren Stadt ins unbekannte Hinterland. Die Uckermark wird bereits als 13. Bezirk oder auch die ‘Hamptons’ von Berlin bezeichnet. Mittendrin zu finden, die Stadt Lychen mit ihrer mittelalterlichen Stadtstruktur, gelegen auf einer Anhöhe, umgeben von drei malerischen Seen. Die Halbinsel zieht immer mehr jüngere Menschen an, bietet jedoch lediglich nur noch im Zentrum Platz zur behutsamen Nachverdichtung. Ähnlich einer mittelalterlichen Klosterstruktur, entstehen auf den drei ausgewiesenen Grundstücken Oasen zum Leben und Arbeiten für die Zugezogenen. Die Apartmenttürme bieten als Landmark fantastische Aussicht auf die umgebende Naturlandschaft und prägen das neue Erscheinungsbild der Stadt.

Das Baufeld der Bezirksverwaltung hat eine konkrete Bestimmung: hier soll ein Sozial- und Gesundheitszentrum entstehen. Ein Zufluchtsort für jegliche Menschen ohne Krankenversicherung und sozialer Unterstützung. Hier soll hier eine einfache,niedrigschwellige Notversorgung und eine kurze Atempause im alltäglichen Überlebenskampf von Obdachlosen und Flüchtlingen im Kiez ermöglicht werden. Durch die horizontale Gliederung der flachen Holzstruktur, entsteht ein flexibles und vielfältiges Wechselspiel zwischen Räumen und Innenhöfen. Wichtiger Aspekt hierbei ist das einfache und direkte Zusammenwirken der unterschiedlichen Institutionen wie Sozialarbeiter:innen, Quartiersmanagement, Obdachlosenhilfe sowie der medizinischen und psychologischen Unterstützung. Die Holzbau-Module können vorgefertigt angeliefert und kostengünstig, mit kurzer Bauzeit vor Ort montiert werden. Somit kann das Gebäude je nach Finanzierungsstand langsam wachsen.

Community Health Center

Neukölln - Master TU Berlin

Prof. Lars Steffensen

Zusammenarbeit mit:

Julius Fittkau

Clara Peter

INKORE Berlin Master thesis:

AIV Berlin Schinkel-Wettbewerb 2021

Auszeichnung: 2. DIESING-Preis Architektur Baunetz Campus Masters: Jury-Preis

Materialaufbereitungsanlage und Forschungszentrum für Baustoff-Recycling am Westhafen

Boden ist die wertvollste Ressource der Stadt. Um diese sinnvoll zu nutzen und eine effiziente Infrastruktur im Gebäude zu gewährleisten, gliedert sich der Entwurf durch kompaktes Stapeln in zwei Gebäudeteile: einen Turm mit administrativen und repräsentativen Funktionen, sowie einen Riegel mit Forschung, wettergeschütztem Depot und Materialaufbereitung. Die dadurch eingesparte Fläche kann z.B. als eine großzügige Renaturierungsfläche mit Kurzumtriebsgehölzen wie Weiden und Birken dienen um den Hafen als Zukunftsstandort attraktiv zu machen. Von der Beusselstraße aus sind die Depotflächen sowie die Materialaufbereitung ihrer Länge nach einsehbar, wie auf einer Schaubühne. Der untere Teil ist aus Recyclingbeton gefertigt während die Konstruktion der oberen, 36 m breiten,

Leichtbauhalle aus Holz besteht. Die aneinander gelehnten Zweifeld-Rahmenträger bilden zwei parallele Hallen, in denen Laufkräne über die gesamte Länge von 210 m operieren können. Die Fassade wird mit 100 % recycelten PolycarbonatPlatten versehen. Das Dach ist mit dreilagigen ETFELuftfolienkissen ausgebildet, welche ebenfalls zu 100 % recyclebar sind. Bei Nacht bildet der gesamte Riegel eine leuchtende ‘Hafenlaterne’. Der Turm ist fast vollkommen verglast, durch seine Holzlammellenverkleidung nie aber komplett einsehbar. Die ersten beiden Etagen sind der Öffentlichkeit gewidmet. Die oberen Etagen bieten Platz für Büroflächen sowie Seminarräume. Ganz oben präsentiert sich der 6m hohe Veranstaltungssaal mit einem Rundumblick über das gesamte Hafengelände.

“Die elegante gesetzte städtebauliche Figur entspricht nachvollziehbar ihren funktionalen Abläufen des Innovations- und Kompetenzzentrums für Baustoffrecycling am Westhafen Berlin. Das behutsame, aber entschiedene Materialisieren von Konstruktion und Fassade sendet ein Erscheinungsbild, welches den sorgsamen und notwendigen städtischen Umgang mit den Schätzen zukünftiger Baumaterialien sichtbar macht. Darüber hinaus bietet das Projekte ein komplexes Zusammenspiel aus Anforderungen seines Standortes wie dem Determinieren von Feinstaub durch Pflanzung eines schnellwachsenden Birkenforstes als auch den Optionen der Anlieferung über Straße, Schiene und Wasser. Ein gelungenes und überzeugendes Projekt, was ich mir direkt umgesetzt wünschen würde!”

Thomas Kröger von Thomas Kröger Architekten Berlin

Fahrraddach neben einer Villa Stahlkonstruktion mit Doppelstegplatten

Die Doppelstegplatten sind nach hinten hin abschüssig montiert und enden kurz vor dem Stahlrahmen, so kann das Regenwasser in die rückwärtige Hecke abtropfen. Durch die Anordnung der Stützen an den Längsseiten, können die Fahrräder mit einem einfachen Schwung ein- und ausgeparkt werden. 2019

Privathaus Weimar Fahrraddach

Beton- und Natursteine

Babelsberg

2018 bis 2023: Werkplanung + Bauzeichnungen für Beton- und Gesteinselemente

BNB erstellt vielfälltige Betonelemente für den Außen- und Innenbereich und ermöglicht hierbei eine weite Bandbreite an Beton- und Gesteinsstrukturen sowie eine großzügige Gestaltungsfreiheit in der Formenfindung. Unterschiedliche Zuschläge und Pigmente, kombiniert mit Schleif- und Sandstrahltechniken lassen heterogene Oberflächen entstehen. Meine Aufgabe bei BNB bestand darin die Entwurfsplanung der Architekten in eine prüffähige Werkplanung umzusetzen sowie Anschlussdetails zu entwickeln und Übersichtspläne zu erstellen für die Konstruktion und Montage.

Copyright © BNB und Max Dudler für alle Darstellungen auf dieser Seite

Neubau Wohnhaus

Quartier Heidestraße

Berlin BNB

Entwurf: Max Dudler

800 Meter Fensterbänke + Gesimsbänder

Fassadenplatten + Attikaabdeckungen

Textilbeton mit Glasfaserarmierung

Anthrazit Schalungsglatt

2018

Neubau QH-Core BNB Europacity Berlin

Entwurf: ROBERTNEUN

BNB: 250 Balkone als Fertigteile ca. 1500 laufende Meter Fensterbänke, Brüstungsabdeckungen in Klinkerfarbe

Copyright © BNB und RobertNeun ™ für alle Darstellungen auf dieser Seite

Bürohaus am Kohlebahnhof

offener Wettbewerb

Holz-Hybrid-Bauweise Leistungsphase 1+2

Dresden 2023/-24

Zusammenarbeit mit:

Enrico Lau

Romy Helfrich

Tracy Adrian

Direkt am S-Bahnhof ‘Freiberger Straße’ in der Dresdner Innenstadt wünschte sich der Bauherr ein Gebäude, als Aushängeschild für das entwickelte Quartier, östlich der Weißeritz. In einem offenen Wettbewerb für ein Bürohochhaus mit Gewerbeeinheit setzte sich unser Entwurf durch und wir erhielten den Zuschlag für die weitere Planung. Mit 11 Etagen inkl. Tiefgarage gab es zzgl. zu den gängigen Herausforderungen im Holzbau auch zusätzliche Anforderungen aus der Hochhausrichtlinie sowie die Zielsetzung mindestens eine DGNB-Gold Zertifizierung zu erreichen. In der LPH 2 wurde der Holzbau wiederkehrend in Frage gestellt und wir durchliefen eine intensive Kommunikation und Abstimmung mit den Fachplanern. Zu lösen waren neben den hohen Brandschutztechnischen Anforderungen vor allem die Bauphysik bzgl. Schallschutz und sommerlichen Wärmeschutz.

Das Tragwerk des Gebäudes beruht auf einem zentralen Stahlbeton-Kern in dem das Sicherheitstreppenhaus, drei Aufzüge sowie alle weiteren, vertikalen, gebäudetechnischen Versorgungsleitungen untergebracht sind. Durch die Anordnung und die Größe gewährleistet der massive Kern die Aussteifung des Gebäudes. Die Geschossdecken wurden in Holz-Beton-Verbund BalkenElementen geplant, welche fassadenseitig auf Holz-Doppelstützen lagern. Zwischen den Balken kann die horizontale TGA sichtbar angeordnet werden und die Unterseite der Betondeckung dieht als thermische Speichermasse. Abgesehen vom Erschließungskern und der Tiefgarage kann das komplette Gebäude mit Kran und Hubsteigern in kurzer Zeit montiert werden. Ebenso auch die vorgehangene Elementefassade, welche an wenigen Haltepunkten befestigt wird und somit verhältnismäßig unkompliziert repariert, ausgetauscht oder angepasst werden kann.

Fachingenieur für Holzbau

Schwerpunkte der Fachfortbildung:

1. Grundlagen Holz als Baustoff

2. Vorschriften und Regelwerke

3. Brandschutz im Holzbau

4. MHolzBauRL für GK 4 + 5

5. Bauphysik für den Holzbau

6. Kontruktion und Tragwerk

7. Gebäudetechnik im Holzbau

berufsbegleitende Fachfortbildung HKS / EIPOS - Dresden 2024 Prof. Dipl.-Des. Tom Kaden

Die berufsbegleitende Fachfortbildung zum Fachingenieur für Holzbau ist konzipiert für Bauingenieure, Architekten und Zimmermänner um den speziellen Anforderungen des modernen Holzbaus fachkundig zu begegnen. Dabei wird profundes und praxisorientiertes Fachwissen vom Entwurf und der Planung, über die konstruktive Ausführung und Anbindung an Bestand, bis hin zu Fragen der interdisziplinären Zusammenarbeit, Genehmigungsfähigkeit und Prüfung vermittelt. Abschließendes Ziel ist es, komplexe mehrgeschossige Gebäude, insbesondere in den Gebäudeklassen 4 und 5 in Holzbauweise zu planen und zu bauen, sowie die Entwicklung eines funktionierend Bauteilkatalogs unter Berücksichtigung der nötigen An- und Verwendbarkeitsnachweise der jeweiligen Bauarten und Bauprodukte hinsichtlich der vielfältigen und tiefergehenden Anforderungen im Holzbau.

Belegarbeit:

Dachaufstockung WBS 70

Gebäudeklasse 5 in Sachsen

Mehrgeschossiger Wohnugsbau

Holztafel- und Holzmassivbauweise

In der zu planenden, zweigeschossigen Aufstockung eines bestehenden WBS70 wurden die schottenweise angeordneten Trennwände als Lastabtragend eingestuft. Die Spannweite von 6m ist für den Holzbau eher ungeeignet und somit ergaben sich etwas stärkere Massivholzdecken, vorranig um den Schwingungsnachweis zu erfüllen. Durch eine Zweigeschossigkeit der Wohnungen (Maisonette) und die Beschränkung der Nutzungseinheiten auf < 200m² konnte die Anforderung an die Schwingungsgrenzfrquenz auf 6 Hz reduziert werden und die aussteifend/tragenden Wände konnten mit einfacher Beplankung auskommen.

Dadurch genügte es auch aus die Treppenhäuser lediglich um ein Geschoss zu verlängern, um mehr Wohnfläche zu erzeugen. Durch die zweischalige Ausführung der Wohnungstrennwände konnte auf weitere Beplankungen verzichtet und die Schallübertragung zwischen den Wohnung ausreichend reduziert werden. Aufputzleitungen sparen weitere Fläche von Vorsatzschalen und teure Brandschutzdurchdringungen. Der flächig beschichtete Heiz-/Kühlestrich kann im Sommer Hitze regulieren und erhöht die thermische Speichermasse. Zusätzlich liefert er eine wertvolle Ergänzung für den Schall-, Schwingungs- und Brandschutz.

Als neuer Ankerpunkt und Studierendenhaus, soll das Projekthaus-Zukunft den Campus-Mittelpunkt der TU-Dresden neu in Szene setzen. Ein Haus, so divers wie die gesamte Universität, mit einem vielfältigem Raumprogram. Labore, Werkstätten, Verwaltung, Showrooms, Hörsaal, Kinderbetreuung, Gärten und auch die Campus Feuerwehr sollen hier untergebracht werden. Gemäß den geforderten Richtlinien des New European Bauhaus sollten Offenheit, Inklusion, Ästhetik und Nachhaltigkeit federführend den Entwurf bestimmen und es war unser Anspruch dies auch sichtbar in der Konstruktion darzustellen. Das Holz-Tragwerk in Kombination mit HBV-Decken ermöglich eine effiziente Resourcennutzung für ein Gebäude dieser Größe. Die Betondeckung wird gezielt dort eingesetzt wo sie Vorteile voll ausspielen kann, u.a. im Brand- und Schallschutz, als therm. Speichermasse, sowie für die horizontale Aussteifung. Durch die geschickte Bauteilfügung kann ein entscheidenden Beitrag zur Reduktion der TGA gemäß dem Anspruch für Low-Tech des Bauherrn geleistet werden. Die Glasfassade ermöglicht Einblicke in die vielfältige Nutzungslandschaft. Passive Verschattung und vegetative Kühlung reduzieren hierbei die sommerlichen Wärmeeinträge.

Projekthaus Zukunft

TU Dresden 2025

geladener Wettbewerb

2. Platz

Zusammenarbeit mit:

Tracy Adrian

Max Werner

Wilhelm Franke

Turn static files into dynamic content formats.

Create a flipbook
Issuu converts static files into: digital portfolios, online yearbooks, online catalogs, digital photo albums and more. Sign up and create your flipbook.
Architektur Portfolio Cornelius Menzel by cmenzel - Issuu