POE MILL THRIVING
RESILIENT NEIGHBORHOOD DEVELOPMENT WITHIN GREENVILLE’S TEXTILE CRESCENT FALL 2023 FLUID STUDIO | CLEMSON UNIVERSITY SCHOOL OF ARCHITECTURE + TECHNISCHE





![]()





According to the research done by Rashida Jeffers-Campbell, the patterns of decline in Poe Mill include concentrated poverty, poor building conditions, high rates of investorowned properties, crime, and depressed real estate values. To help influence our masterplan decisions, we looked closely at the research objectives in her thesis document related to crime, land assembly opportunities, proposed developments, and the need to expand community facilities within the neighborhood.
Early in the semester, Professor Albright made us aware of the thorough and enlightening work of Rashida Jeffers Campbell, which she performed during her graduate studies in urban planning at Clemson University. Her research took intensive inventory of the Poe Mill Community, and as a group, we referenced her observations and recommendations throughout our master plan phase. Specifically, we built upon her findings of local community facilities, crime activity, land assembly, housing, and the former mill site. These references culminated in the proposals for new community resources and anchors, a prioritization of greenspace, recommendations for community land trust models, and an increase in affordable and dense middle housing.
We have compiled a program catalog grouped by existing and preserved programs, proposed development & programming, rehabilitated properties, and new-build construction opportunities. Some notable priorities were to preserve the skatepark and smokestacks and acknowledge the American Spinning Mill’s planned development. The collection of rehabilitation efforts includes housing properties, existing neighborhood amenities such as the food mart, a health club, the historic F.W. Poe property, a community laundromat, and a multipurpose space associated with the Poe Baptist Church. These programs would benefit from improvements and repairs to help revitalize the existing neighborhood assets and transform them into community anchors. The next set is new construction programs, including a maker space, live-work model, crisis center, health center, middle housing, daycare & caregiving, commercial storefront plus housing, a neighborhood grocery, and bus shelters.




Programming strategies include preserving existing infrastructure, rehabilitating existing, acknowledging and proposing new development, and proposing new construction and programming in 3 phases.

COMMUNITY RESOURCE HUB MIXED USE MULTIFAMILY
PREFAB DIGITAL MANUFACTURING FLOOR
MAKER SPACE
WORKFORCE DEVELOPMENT
MEETING & CLASSROOMS
RENTABLE STOREFRONT

Phase one neighborhood interventions capitalizes opportunities for community land trusts, the preservation and rehabilitation of community anchors, and new construction initiatives on the former mill site, including housing and community resources.
PHASE ONE
PHASE TWO
PHASE THREE

STOREFRONT
COMMUNITY RESOURCE HUB MIXED USE MULTIFAMILY PREFAB MIDDLE HOUSING
WORK HOUSING
PREFAB DIGITAL MANUFACTURING FLOOR
MAKER SPACE
WORKFORCE DEVELOPMENT
MEETING & CLASSROOMS
RENTABLE STOREFRONT
Phase two neighborhood Interventions capitalize on opportunities that seek to densify the neighborhood using existing zoning regulations. The densification of housing can stabilize rents, making housing throughout the neighborhood more stable and affordable.
MIXED USE MULTIFAMILY
COMMUNITY RESOURCE HUB
PREFAB DIGITAL MANUFACTURING FLOOR
MAKER SPACE
WORKFORCE DEVELOPMENT
MEETING & CLASSROOMS
RENTABLE STOREFRONT

FLEXIBLE GREEN SPACE
MONTESSORI CENTER
COMMUNITY HEALTH CLINIC
NEIGHBORHOOD GROCERY
Phase three neighborhood interventions look to the future, proposing new construction builds that resist neighborhood decline and promote the growth and health of the community
Agustin Granados
Poe Mill can serve as a catalyst for community engagement and economic revitalization. Initiatives to repurpose these abandoned spaces can draw attention to the rich history of the mill village, attracting investors, artists, and entrepreneurs eager to be part of its revival. As the community transforms, it becomes a beacon for innovation, showcasing the potential of repurposing neglected areas into thriving, interconnected live-work environments.
There is a opportunity not only to rejuvenate a historic community but also to redefine the narrative surrounding forgotten spaces. The integration of livework opportunities can serve as a model for sustainable urban development, fostering a sense of pride and belonging among residents while attracting new talents and ventures to breathe vitality back into the heart of Poe Mill. The story of Poe Mill is not one of abandonment but of resilience, reinvention, and the limitless potential that lies within the forgotten corners of our cities.





This inaugural live-work space epitomizes adaptive reuse, as it artfully preserves the character of the original structure.By retaining the historic brick walls, the essence of the building’s past is maintained, showcasing a commitment to architectural heritage. The only addition, a new roof, seamlessly blends modern functionality with the timeless charm of the existing structure, embodying a harmonious marriage of preservation and innovation.



The inclusion of a maker space within the new structure introduces a dynamic element to the project. This dedicated area serves as a creative hub for fabricating prefabricated wall panels. It not only supports the live-work concept but also promotes a culture of craftsmanship, DIY ethos, and innovation within the community.
Leveraging the maker space, the construction process benefits from the fabrication of prefabricated wall panels. This approach streamlines efficiency, as these panels can be precisely crafted on-site, reducing the need for extensive on-site construction. Prefabrication enhances quality control and accelerates the overall building process.
The freedom of building on empty land allows for innovative design choices that optimize natural light, energy efficiency, and spatial configuration. This new structure becomes a canvas for creative architecture that seamlessly integrates modern living and working concepts.








































































Live-work refers to a lifestyle and design concept where individuals seamlessly integrate their living space with their workspace. It involves combining residential and professional areas within the same environment, allowing people to live and work in a single location. This approach is often seen as a way to enhance work-life balance, reduce commuting time, and foster a more holistic and efficient way of living.
Poe Mill can serve as a catalyst for community engagement and economic revitalization. Initiatives to repurpose these abandoned spaces can draw attention to the rich history of the mill village, attracting investors, artists, and entrepreneurs eager to be part of its revival. As the community transforms, it becomes a beacon for innovation, showcasing the potential of repurposing neglected areas into thriving, interconnected live-work environments.
There is a opportunity not only to rejuvenate a historic community but also to redefine the narrative surrounding forgotten spaces. The integration of live-work opportunities can serve as a model for sustainable urban development, fostering a sense of pride and belonging among residents while attracting new talents and ventures to breathe vitality back into the heart of Poe Mill. The story of Poe Mill is not one of abandonment but of resilience, reinvention, and the limitless potential that lies within the forgotten corners of our cities.












































































































































































































Austin Lemere & Kelsey Murphy
IN SIMPLEST FORM A COMMUNITY RESOURCE HUB AIMS TO PROVIDE JOB TRAINING AND EDUCATION AS WELL AS RSEOURCES FOR THE COMMUNITY AS A WHOLE TO USE. WITH A PURPOSE OF WORK FORCE DEVELOPMENT AND JOB CREATION, THE COMMUNITY RESOURCE HUB ALLOWS EACH COMMUNITY MEMBER TO PURSUE THEIR OWN INTERESTS AND PASSIONS.

JOB CREATION

WORK FORCE DEVELOPMENT ACCESSIBLE RESOURCES

THE COMMUNITY RESOURCE HUB INCLUDES:
- A PREFABRICATION MANUFACTURING FACILTY THAT DEVELOPS INFIL HOUSING FOR THE COMMUNITY
- A MAKERSPACE, COMPRISED OF A WOOD, METAL, AND DIGITAL DESIGN SHOP THAT COMMUNITY MEMBERS CAN USE
- A COMMUNITY GARDEN THAT WORKS IN RELA TION TO THE COMMUNI TY GROCERY STORE TO PROVIDE FRESH PRODUCE TO COMMUNITY MEMBERS
- EDUCATION SPACES TO PROMOTE JOB TRAINING AND WORK FORCE DEVEL OPMENT FOR COMMUNITY MEMBERS




COMMUNITY MAKERSPACE & TOOL SHED

PROMENADE LEADING TO GREENSPACE
5
Sitting in the crosshairs of imminent gentrification, the neighborhood of Poe Mill searches for ways to protect its vulnerable residents and revitalize the built fabric of their home without displacing them. Poe Mill is a loving, friendly community that cares about investing in its own future, as evidenced by its majority home ownership and nearly half of homes in stages of disrepair refurbished in the past fourteen years. Upon our first visit to the community, to see it and to have a conversation with some of its residents and leaders, it was recommended that any new revitalization efforts should be connected to existing ones. Rebuild Upstate, a local non-profit, and Greenville Technical College, offering accessible job training and workforce development, are just two of the assets to the neighborhood that were identified.

As part of phase one of our revitalization master plan for Poe Mill, we have proposed the construction of a light industrial community resource facility dedicated to home construction and refurbishment through the utilization of digital fabrication systems. Prefabricated homes are around 10-20% less expensive than typical homes and offer potential to involve community members in their construction, as well as create accessible energy efficiency and sustainable strategies built into the structural panels.

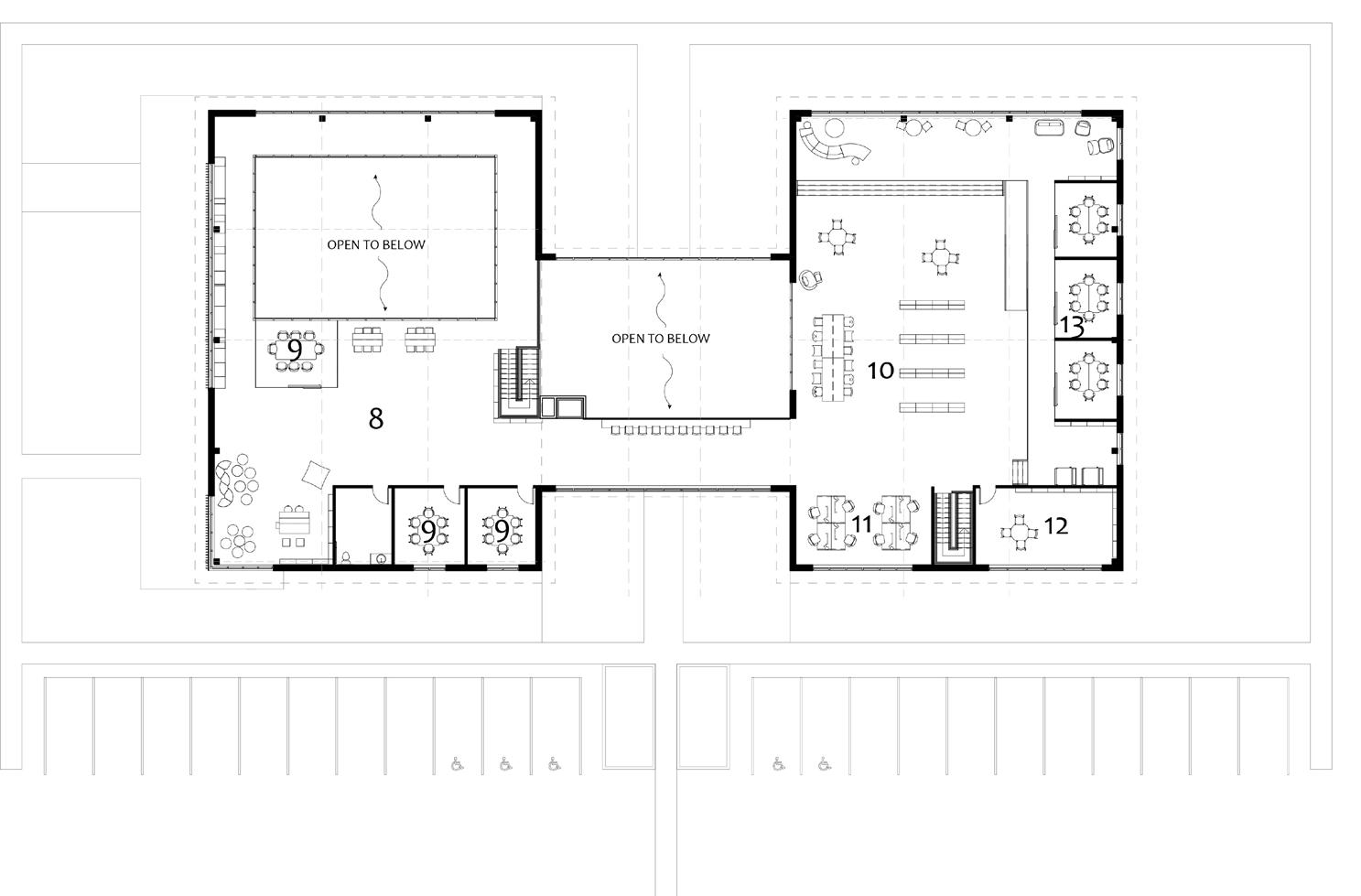
7Responding to community, site and infrastructure, the Poe Mill Community Resource Hub consists of a welcoming administrative and educational core with two large wings. The south wing houses the digital fabrication assembly floor, and the north wing houses office space, retail storefront, and a communal workshop space outfitted with machinery for wood, metal and digital design. In addition to sustainable strategies being implemented into the prefab panels being produced in the south wing, they are also implemented into the building itself to serve as precedent for measures Poe Mill can make to invest in energy efficiency and ultimately reduce consumption and costs over time.
SCALE: 1/8” = 1’0”

SCALE: 1/8” = 1’0”




Machining tools consist of saws, mills, drills, CNC routers and lathes.
Machining tools consist of saws, mills, drills, CNC routers and lathes
Flat-packed space required for one single-family residence
The facility would operate on a Made-to-order (MTO) basis, leveraging digital fabrication to accomodate affordable mass customization in single-family residences.
The facility would operate on a Made-to-order (MTO) basis, leveraging digital fabrication to accomodate affordable mass customization in single-family residences.
An open prefabrication system would be utilized, meaning partnerships with third parties would work to enhance the quality and performance of the prefabricated panels.
An open prefabrication system would be utilized, meaning partnerships with third parties would work to enhance the quality and performance of the prefabricated panels.
Panels would be modular grid construction in 4ft increments, measured on face, and milled from third party machinery such as Hundegger and/or Panels Plus
Panels would be modular grid construction in 4ft increments, measured on face, and milled from third party machinery such as Hundegger and/ or Panels Plus.
There is potential for multiple types of panel combinations, including a mix of stick-framed walls and CLT (MHM) timber floors and roofs, mimicking the structural hierarchy of the building itself.
There is potential for multiple types of panel combinations, including a mix of stick-framed walls and CLT (MHM) timber floors and roofs, mimicking the structural hierarchy of the building itself.



Prefab Energy Efficiency
Prefabricated wall panels can also be outfitted with sustaiable strategies such as thermal efficient insulation and integrated MEP systems as shown to the right. The savings on energy consumption integrated at the very beginning of the construction process ensures the resident will ultimately be paying less and polluting less.
Rachel Glanton
The interest of this project and reasearch explored the extent of neighborhood decline and the factors and context contributing to its outcome
While many initiatives exist to mitigate factors like crime and poverty, a factor that garners less attention is the need for more porgrams, infrastructure, and resources to support intergenerational communities.
As a reflection of American’s propensity toward individualism, multigenerational households are uncommon, but events like the 2019 COVID-19 pandemic have caused growth.

Despite its rarity, a growing body of research, such as a study by the Pew Research Center in 2020, shows that multigenerational living yields social and financial benefits. For instance, the household can benefit from additional income streams, childcare assistance, domestic tasks, and a greater sense of belonging and social connection.
Through masterplan phasing, this proposal includes small-scale initiatives to support intergenerational communities, such as using Poe Mill churches to provide twice-a-week childcare, retrofitting ramps and easy-entry bathtubs into existing homes, and partnering with existing childcare programs.



What is an Intergenerational Montessori School?
An Intergenerational Montessori is a new proposed typology aiming to provide multigenerational care for toddlers and elders with early on-set, age-related cognitive delays. The design balances providing care and safety to its users while facilitating intergenerational interaction. Ultimately, the goal is to equip Poe Mill families with the resources to age in place to resist neighborhood decline
ELDERLY
socio-economic statuses, society, lacking spaces to engage in activities, and from their families.
for elders in and around receive care, and engage can restore memory and cognitive delay diseases like
Addressing the Elderly
Once explicitly developed for impoverished children, Montessori pedagogy in 2023 is usually limited to affluent families. By constructing the center on a community land trust and utilizing the maker space for furniture and other materials, attendance for local toddlers can be subsidized, if not eliminated.
Toddlers receive enrichment through sensorial, practical life, language, mathematical, and cultural activities and develop social skills with their peers and elders at mealtime in the multipurpose room.
Elders, especially those from lower socio-economic statuses, are typically overlooked in society, lack spaces to interact with each other, engage in activities, and receive care without removal from their families
This program provides a space to receive care and engage in Montessori activites, which can restore memory and agency in age-related cognitive delay diseases
Originally explicitly developed for impoverished children, Montessori pedagogy in 2023 is usually limited to affluent families. By constructing the center on a community land trust and utilizing the maker space for furniture and other materials, attendance for local toddlers can be subsidized, if not eliminated.
Toddlers receive enrichment through sensorial, practical life, language, mathematical, and cultural activities
audience of toddlers and elders, the primary caregivers and family by and meeting spaces to conduct summer camps.
designed for caregivers to print have a private place to perform a computer to develop a website children complete homework receive care.
In addition to the target audience of toddlers and elders, the center supports their primary caregivers and family by providing classrooms and meeting spaces to conduct nighttime adult classes or summer camps. The media center was designed for caregivers to print resumes and documents, have a private place to perform a virtual interview or use the computer to develop a website or send an email or have children complete homework while their grandparents receive care
Three case studies were referenced for their programmatic use and use of mass timber: Imagine Montessori School in Valencia, Acadia Nursery in the UK, and the Centennial Park Pavilion in Fayetteville, Arkansas.
Three case studies were referenced for their programmatic use and use of mass timber: Imagine Montessori School in Valencia, Acadia Nursery in the UK, and the Centennial Park Pavilion in Fayetteville, Arkansas.
Three case studies were referenced for their programmatic use and use of mass timber: Imagine Montessori School in Valencia, Acadia Nursery in the UK, and Centennial Park Pavilion in Fayetteville, Arkansas.
At night, the facility supports adult night classes to promote economic mobility
During the day, the building functions primarily as a Montessori Center for toddlers
During the day, the building functions primarily as a Montessori Center for toddlers.



Environmental Considerations
Environmental Considerations







Environmental Considerations



Louvers are placed on the Southern Facade to limit interior sun exposure
Louvers are placed on the Southern Facade to limit interior sun exposure
Louvers are placed on the southern facade to limit interior sun exposure


the day, the building functions primarily as a Montessori Center for toddlers. Design utilizes cross ventilation to passively cool spaces.
Louver connection diagram
The design utilizes cross ventilation to passively cool interior spaces

































The First wall type is a curtain wall system (B) connected to a supporting column in the interior (C) with wood louvers attatched to the mullions on the Exterior A

The second wall type is a glass curtain wall system (A) consisting of a exterior mullion, connecting to an interior bracket with moisture guards on each outer face of the glass panes. The system connects to a structural column (B) in the interior via a bracket.


Angela Kraus
A local community-owned grocery store designed to address specific community needs, such as improving access to fresh and affordable food, promoting local economic development, and fostering a sense of neighborhood ownership and engagement. The store is a reflection of the community and aims to prioritize the interests and values of the neighborhood residents it serves.

One key goal is to design the neighborhood grocery with local residents in mind, aiming to contribute to equitable economic development in the community. This includes hiring from within the community, paying a livable wage, and providing opportunities for advancement. Community requests to keep in mind were to provide entry-level jobs for local teens, support emerging businesses by providing a space for residents to sell handmade goods and products, and create employment opportunities that celebrate neighborhood talents, including positions for local bakers, cooks, gardeners, and artists.









SKATEPARK
COMMUNITY HEALTH CENTER
NEIGHBORHOOD GROCERY
SINGLE-FAMILY HOMES
HISTORIC F.W. POE MANUFACTURING CO.
PLANTED ROOF
OUTDOOR MARKET
POINT OF SALE
PREPARED MEALS
ROOF DECK
BACK OF HOUSE


A roof deck and planted roof occupy the space above the canopy to serve as an outdoor meeting space and opportunity for community gathering. The planted roof initiative presents collaborative opportunities with the community gardens located across the street on the former mill site and aligns with the proposed green roof at the neighboring health center to promote shared sustainability goals.
Other sustainable strategies include using locally sourced, renewable materials and resources such as mass timber to provide carbon benefits. Furthermore, the incorporation of solar energy through photovoltaic panels enhances energy efficiency and contributes to the overall sustainable initiative of the project
CARBON SUMMARY
GLULAM BEAMS + CLT PANELS
3,631 FT 3 VOLUME OF WOOD
35 METRIC TONS AVOIDED GREENHOUSE GAS EMISSIONS
EQUIVALENT TO:
91 METRIC TONS CO 2 STORED IN WOOD
127 METRIC TONS POTENTIAL CARBON BENEFIT
27 CARS OFF THE ROAD FOR A YEAR
ENERGY TO OPERATE 13 HOMES FOR A YEAR
SOLAR ENERGY SOLAR PHOTOVOLTAIC PANELS



GLULAM BEAM
40 TOTAL ROOFTOP PV PANELS
25,200 kWh PRODUCED ANNUALLY
CLT PANELS

PEDESTAL PAVERS
PEDESTAL
SLIP SHEET UNDER PEDESTAL
DOWNSPOUT
METAL FASCIA
PARAPET FRAMING
FLASHING
GRAVEL + GUTTER
PERFORATED GALV. STEEL BENT PLATE
SOIL + PLANTINGS
FILTER FABRIC
RESERVOIR BOARD
EPDM ROOFING MEMBRANE
1/2” COVERBOARD
TWO-LAYER TAPERED RIGID INSULATION (1.5”/LAYER)
VAPOR BARRIER
TREATED, EXPOSED 3PLY CLT
ALUM. GLAZING SYSTEM W/ INSULATED GLASS
BLOCKING
5/8” PAINTED GYPSUM WALLBOARD
6” BATT INSULATION
5/8” SHEATHING
VAPOR BARRIER
1.5” RIGID INSULATION
1/2” AIR SPACE
METAL PANEL SIDING OVER CLIP
ANCHOR BOLT
CONCRETE SLAB ON GRADE
VAPOR BARRIER
HSS TUBE STEEL COLUMN
STEEL CONNECTION PLATE
CONCRETE FOOTING
Katherine Harland

There
•
•
•
•
•
•
1, 2, 3 EMPTY LOTS - OPPORTUNITIES FOR LANDSCAPE DESIGN THAT SUPPORTS MOBILE CLINICS.
4, 5 CHURCHES - MOBILIZE COMMUNITY HEALTH FAIRS IN CHURCH FACILITIES SUCH AS PARK PLACE CHURCH OF GOD AND GRIGGS CHURCH.
6 CHAPEL DEVELOPMENT - UTILIZATION OF COMMUNITY CENTER SPACES FOR POPUP COMMUNITY CLINICS.
1, 2, 3 EMPTY LOTS SUPPORTS MOBILE
4, 5 CHURCHES FACILITIES SUCH
6 CHAPEL DEVELOPMENT SPACES FOR POPUP




The CDC defines community health centers as “community-based and patient-directed organizations that serve populations with limited access to health care.”
• To be classified as a health center, the organization’s Board — the people that are in charge of decisions — must have a majority (at least 51%) of community-served patients.
• Health centers receive their funding through grants, and traditional forms like Medicare, Medicaid, and billing patients’ insurance providers.
• A general physician performs many of the same functions that a health center does. However, it does not have a majority board of community patients and thus does not employ a patient-centered approach. It also does not accommodate patient needs as much. In most cases, it does not have a dental unit under its roof, provide transportation services, or provide a health care discount based on the federal poverty guidelines.
Services in Community Health Centers generally include:
• Basic primary medical care,
• Preventative care, e.g., prenatal and perinatal care, immunizations, pediatric screenings, family planning services;
• On-going care of serious chronic conditions, e.g., diabetes, hypertension, HIV/AIDS;
• Free or low-cost prescriptions;
• Additional support services that enable patients to access primary care more easily, e.g., case management, translation and interpreter services, health education.
• Access to an on-call medical professional in the case of a medical emergency after hours when the clinic is closed.
• In addition, many health centers offer dental care, behavioral health services, and diagnostic lab and radiology services.
OUTDOOR COVERED CANOPY
EXAM OFFICE ROOMS
PHARMACY
TOILETS
LOBBY AND WAITING
RADIOLOGY
CHECK IN/OUT
OPEN WORK

While there are many health resources within the larger Greenville area, providing a Community Health Center within walking distance of the Poe Mill neighborhood and adjacent to other catalyzing resources (such as the masterplan’s proposed community grocery and day care) allows individuals within the neighborhood to have needed financial and geographic access to health resources. Specifically, the model of a Community Health Center directly pinpoints low-income and equitable resources for healthcare. Finally, the physical manifestations of architectural space will contribute to the overall health of the Poe Mill neighborhood.
Located between 2nd and 3rd Ave., the Poe Mill Community Health Center utilizes site conditions to optimize both pedestrian and vehicular circulation. As mentioned prior, one of the main goals of the project is to amplify and support existing community health resources, such as mobile clinic units. As a result, it was crucial to the site plan to design for accessibility for mobile clinic units. The loop adjacent to 3rd Ave. allows mobile clinic units and other drive-through care to take place alongside a large covered patio space. This maximizes support for a variety of care options.
Sited between 2nd and 3rd Ave, the Poe Mill Community Health Center utilizes site conditions to optimize both pedestrian and vehicular circulation. As mentioned prior, one of the main goals of the project is to amplify and support existing community health resources, such as mobile clinic units. As a result, it was crucial to the site plan to design for accessibility for mobile clinic units. The loop adjacent to 3rd Ave allows mobile clinic units and other drive through care to take place alongside a large covered patio space - maximizing support for a variety of care options.
2 N D A V E 3 R D A V E

SITE AXON



The proposal for the Poe Mill Community Health Center focuses on resilient building systems - tectonics that include a combination of light frame and mass timber structure, as well as a green roof system. Research behind these materials and systems points to not only sustainability in carbon emissions and building efficiency, but as Planet Ark reports, direct implications in physiological health through “Improvements to a person’s emotional state, reduced blood pressure, heart rate and stress levels, improved air quality through humidity moderation.”


designing for a healthy Poe Mill...