Análisis de museo de sitio Julio Cesar Tello

Page 1

TALLER DE DISEÑO III ANALISIS DE MUSEO DE SITIO JULIO CESAR TELLO G-06 Clemente Guizado, Alex De La Cruz Limaco, Joel Aaron Flores Perez, Carlos Daniel Lima Archi, Katy Integrantes: Cátedra: Arq. Carmen Vanessa Guzman Arq. Brian Wilder Sanchez

MUSEO DE SITIO JULIO CESAR TELLO - SANDRA BARCLAY, JEAN PIERRE CROUSSE

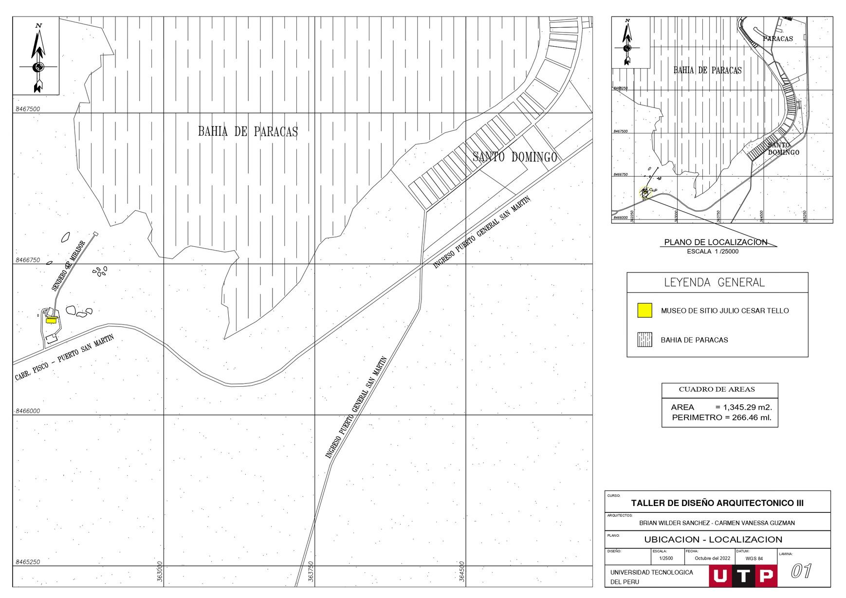
EL MUSEO DE SITIO JULIO C. TELLO, ESTÁ UBICADO EN EL KM. 27 CARRETERA PISCO PUERTO SAN MARTÍN, RESERVA NACIONAL DE PARACAS ICA

DOS VOLÚMENES PRISMÁTICOS SEPARADOS POR UN PASILLO Y AL MÁS GRANDE DE ESTOS LE HAN SIDO ADOSADOS 4 VOLÚMENES EN LA PARTE SUPERIOR

EL PROYECTO SE IMPLANTA PRÁCTICAMENTE SOBRE LAS RUINAS DE LO QUE FUE SU PREDECESOR, DESTRUIDO POR UN TERREMOTO EN EL 2006

RELACIÓN ARMÓNICA CON EL PAISAJE DESÉRTICO DE ICA, EL ENTORNO COMO IDEA GENERADORA DEL PROYECTO

SUPERFICIE

DE EXPOSICIÓN

IMÁGENES

I N T R O D U C C I Ó N
1,220 m2
CULTURA PARACAS
Y
NAZCA
SALA
PERÚ DEP. DE ICA MACRO - LOCALIZACION Y UBICACION A N Á L I S I S C O C E P T U A L
CONEXION DIRECTA CONEXION INDIRECTA A N Á L I S I S C O C E P T U A L MACRO - CONTEXTO MEDIATO C A R R . P I S C O - P U E R T O S A N M A R T I N C E N D E R O V E H I C U L A RE N T R A D A A L C E N T R O D E I N T E R P R E T A C I O N A V E N I D A L O S L I B E R T A D O R E S

L

S

S

S e c u e n t a c o n z o n a s d e r e c r e a c i ó n p u b l i c a ú n i c a m e n t e a l l a d o d e l m u s e o d e s i t i o J u l i o C , T e l l o , a d e m á s d e q u e p r e d o m i n a n l a s á r e a s d e s t i n a d a s a o t r o s u s o s .

MACRO - CONTEXTO MEDIATO A N Á
I
I
C O C E P T U A L P
L A Z A C E N T R A L D E L M U S E O D E S I T I O J U L I O C E S A R T E L L O
R
E C R E A C I O N
P
U B L I C A E S T A C I O N A M I E N T O D E L M U S E O D E S I T I O J U L I O C E S A R T E L L O
O
T R O S U S O S
E D
U C A
C
I
O N
P E R U K I T EK I T E S U R F I N G S C H O O L P A R A C A S
C o n c l u s i ó n :
D O U B L E T R E E R E S O R T B Y H I L T O N H O T E L P A R A C A SP E R U
H O T E L L A H A C I E N D A B A H I A P A R A C A S
M
I R A D O R A L A B A H I A
P
A R A C A S

MACRO - USO DE SUELOS

N

LEYENDA DE USO DE SUELOS:

L I S I S C O C E

Z O N A S D E E Q U I P A M I E N T O

Z o n a r e s i d e n c i a l d e D e n s i d a d A l t a

Z o n a d e r e c r e a c i ó n p u b l i c a d e D e n s i d a d A l t a

Z o n a c o m e r c i a l d e D e n s i d a d A l t a

Á r e a e d u c a t i v a d e D e n s i d a d M e d i a

O t r o s u s o s ( C e n t r o d e i n t e r p r e t a c i ó n , e s t a c i o n a m i e n t o s , e t c . )

U A

Conclusión:

Concluimos que las zonas residenciales son las predominantes en cuanto a usos de suelo, además que se observan muchos lugares de hospedaje que fueron considerados en las zonas de comercio.

A
Á
P T
L

Accesibilidad y transporte

S I S

A N Á L I
C O C E P T U A L

C a r r e t e r a p r i n c i p a l d e d o b l e s e n t i d o y a l t a m e n t e t r a n s i t a d a p o r t o d o t i p o d e v e h í c u l o s , a d e m á s e s l a ú n i c a r u t a c o n l a q u e s e c u e n t a p a r a l l e g a r a l T e r m i n a l P o r t u a r i o P a r a c a s T P P .

Accesibilidad y transporte A N Á L I S I S C O C E

C a r r e t e r a d e d o b l e s e n t i d o y a l t a m e n t e t r a n s i t a d a p o r t o d o t i p o d e v e h í c u l o s .

C a r r e t e r a p r i n c i p a l d e l a c i u d a d d e S a n t o D o m i n g o d e d o b l e s e n t i d o y a l t a m e n t e t r a n s i t a d a p o r v e h í c u l o s p r i v a d o s , c u s t e r s y t u r i s t i c o s

UTC o n c l u s i ó n :

L a c a r r e t e r a P i s c o - P u e r t o S a n M a r t i n e s l a p r i n c i p a l y d e l a q u e s e d e r i v a n h a c i a l a s d e m á s q u e c o n e c t a n e l m u s e o c o n l a c i u d a d a l e d a ñ a . A d e m á s d e s e r a l t a m e n t e c o n c u r r i d a p o r v e h í c u l o s d e t o d o t i p o .

V í a d e d o b l e s e n t i d o y m e d i a n a m e n t e t r a n s i t a d a p o r v e h í c u l o s p r i v a d o s y t u r i s t i c o s .

P
A L

N

L

S

S C O C E P

U A

ANÁLISIS

E l m u s e o d e S i t i o J u l i o C T e l l o a l e s t a u b i c a d o e n u n a z o n a n o p o b l a d a p o r e n d e n o e x i s t e n m u c h o s p u n t o s d e a g l o m e r a c i ó n m a s q u e l o s r e c o n o c i d o s :

C o n c l u s i ó n :

C o n c l u i m o s q u e a u n q u e e l m u s e o e s t e e n u n l u g a r d e s h a b i t a d o e s m u y v i s i t a d o

CENTRO DE INTERPRETACIÓN PARACAS MICRO - ANALISIS DE CONTEXTO INMEDIATO A
Á
I
I
T
L
PLAZA DEL MUSEO ESTACIONAMIENTO

L I S I S C O

ANÁLISIS

E l m u s e o e n s i n o p o s e e á r e a s v e r d e s l o m a s p r ó x i m o a e n c o n t r a r s e v e n d r í a a s e r u n o s p e q u e ñ o s m o n t í c u l o s d e p l a n t a s q u e s e d e s a r r o l l a n e n l a a r e n a

VEGETACION

C o n c l u s i ó n :

S e c o n c l u y o q u e e l m u s e o n o p o s e e á r e a s v e r d e s a r t i f i c i a l e s l o m a s p a r e c i d o s e r i a n u n o s m o n t í c u l o s q u e f l o r e c e n a u n l a d o d e

MICRO - AREAS VERDES A N Á
C E P T U A L
e s t e

L

S I S C

C o n c l u s i ó n :

D a d o a q u e s e u b i c a e n u n a z o n a n o p o b l a d a n o s e e n c u e n t r a n c o m e r c i o s , e d u c a c i ó n , e n t r e o t r o s .

MICRO - USOS DE SUELO A N Á
I
O C E P T U A L ANÁLISIS R
E C R E A C I O N P U B L I
C A O
T R O S U S O S

N

C
O N C L U S I Ó N : C O N C L U I M O S Q U E E L M U S E O N O P R E S E N T A M A S D E U N A V Í A D E A C C E S O Y U N A D E R E C O R R I D O
. MICRO - ACCESIBILIDAD Y TRASPORTEA N Á L I S I S C O
C E P T U A L

S I S C O N

MICRO - ACCESIBILIDAD Y TRASPORTEA N Á L I
C E P T U A L
Carretera pisco Puerto San Martin Camino del personal Sendero Al Mirador Camino hacia el museo
A N Á L I S I S F O R M A L ANÁLISIS DE ESTRATEGIAS PROYECTUALES PLANO ESC: 1/1250 PUESTA DE SOL ANOCHECE R SALIDA DEL SOL AMANECER SON VIENTOS MUY FUERTES 71 120 KM/H CONCLUSION: CONCLUIMOS QUE LA SALIDA ESTA DIRECCIÓN AL ESTE Y PUESTA CON DIRECCIÓN AL OESTE DEL SOL, ASI ARMONIZANDO EL MUSEO, TAMBIÉN LOS VIENTOS QUE VAN DE NORTE A SUR CON 71 120 KM/HRS

ANÁLISIS DE ESTRATEGIAS PROYECTUALES

A N Á L

S I S

EN EL MUSEO SE VE LA SECUENCIA DE ESTOS ELEMENTOS, LOS CUALES SON CONSTANTES Y DE FORMA RECTANGULAR DANDO MOVIMIENTO A LA HORA DEL RECORRIDO

E J E

EN EL MUSEO VEMOS LA PAUTA YA QUE EL PATIO PRINCIPAL SE ABRE A VARIOS ESPACIOS

R

EL EJE EN EL MUSEO SE VE PRESENTE EN EL PASILLO PRINCIPAL QUE SE USA PARA SEPARAR AL MUSEO EN DOS

A

LA SIMETRIA EN EL MUSEO LA PERSIBIMOS CUANDO CORTAMOS A KA MITAD EL MUSEO, SE VE REFLEJADO

CONCLUSIÓN

EL MUSEO POSEE PRINCIPIOS ORDENADORES LOS CUALES VALORIZAN MAS SU DISEÑO Y EDIFICACION

I
F O
M
L P R I N C I P I O S O R D E N A D O R E S
R I T M O LEYENDA
S I M E T R I A P A U T A
PLANTA NIVEL +0.00 m A N Á L I S I S F O R M A L ANÁLISIS DE ESTRATEGIAS PROYECTUALES TRAZA: SU TRAMA ES REGULAR,YA QUE ESTA FORMADA DE REPETICIÓN UNIFORME DE CIERTOS ELEMENTOS EN DOS SENTIDOS, PARA FACHADAS O PLANTAS; Y EN TRES SENTIDOS SI SE CONSIDERA EL ESPACIO. ESTO PERMITE DOTAR AL EDIFICIO DE UN ORDEN, A LA VEZ QUE SE MARCAN LAS PROPORCIONES DEL MISMO. CONCLUSIÓN POSEE UNA TRAMA REGULAR LA CUAL PROYECTA UN ORDEN A TODOS SUS AMBIENTES ANALISIS:

ANÁLISIS DE ESTRATEGIAS PROYECTUALES

A N

LA COMPOSICIÓN ARQUITECTÓNICA SE INSPIRO EN LA GEOMETRÍA DE LOS MANTOS PARACAS.

TELAR DE PARACAS QUE FUE USADO EN EL DISEÑO DEL MUSEO.

L

S I S

SE PUEDE EXTRAER MODULACIONES REGULARES

SE PUEDE EXTRAER PATRONES

SE IDENTIFICAN FORMAS

CONCLUSIONES

SU GEOMETRÍA REINTERPRETA LA SERIE Y EL DESFASE CARACTERÍSTICO DE LOS TEJIDOS PARACAS, QUE FUERON SUS EXPRESIONES TECNOLÓGICAS Y ARTÍSTICAS MÁS RESALTANTES.

QUE SE EVIDENCIAN EN CADA ESTRUCTURA YA QUE POSEEN FORMAS REGULARES Y EL COLOR ROJIZO DE LA TELA

QUE SE VEN REPLICADOS EN LA FORMA Y COLOR DEL EDIFICIO Y MOVIMIENTO

QUE SON USADAS EN LA CAIDA DE COLUMNAS

Á
I
F O R M A L C Ó D I G O S

ORGANIZACIÓN

N

LEYENDA PAUTA RGANIZACIÓN FORMAL ES A YA QUE LLEVA A NAR A LOS OTROS ESPACIOS. A
Á L I S I S F O R M A L
FORMAL C O N C L U S I O N CONCLUIMOS QUE POSEE VARIOS EJES PERO EL PRINCIPAL QUE ES PAUTA ORDENA A LOS DEMÁS DE FORMA FUNDAMENTAL
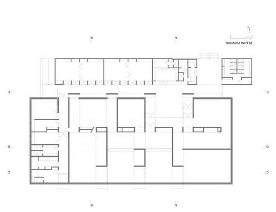
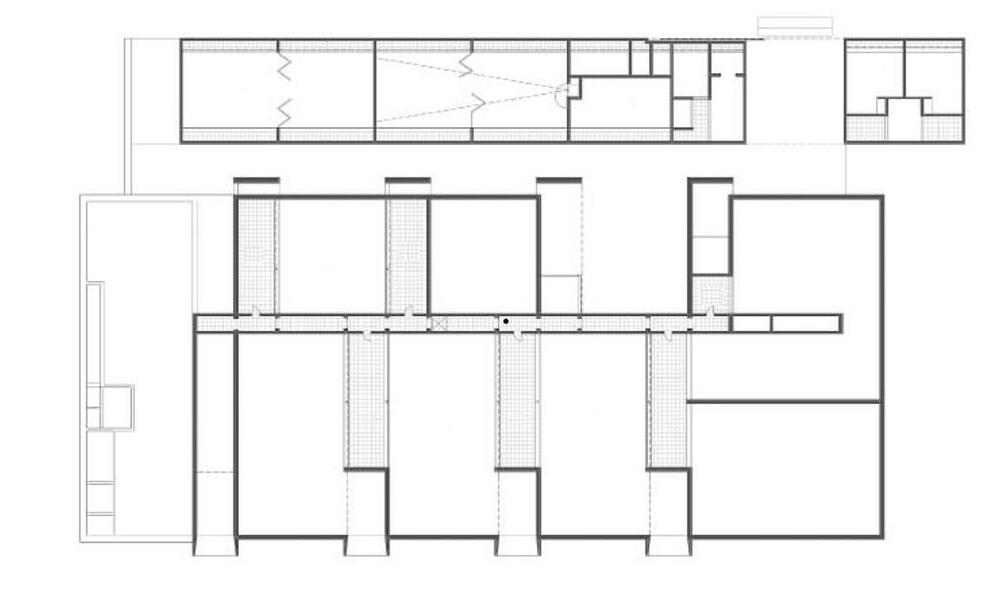
MODULACIÓN 2x2 11 A N Á L I S I S F O R M A L MODULACIÓN DE ESPACIOS SE CONCLUYE QUE EN CUANTO A MODULACION EL MUSEO PRESENTE VARIEDAD DE ORDENE PARA DIFERENTES AMBIENTES C O N C L U S I Ó N : 5 6 6 6 6 6.9 6.5 6 6 6 HALL DE 1ENTRADA . 5. SALÓN DE USOS MÚLTIPLES 6, TALLER 8. INGRESO PARA LA EXHIBICIÓN 9. GALERÍA DE EXHIBICIÓN 11 Y 13. ZONA ADMINISTRATIVA 9. GALERÍA DE EXPOSICIONES 31 6642 9 9 9 999 9 10 11 12 13 13 7 55 8 2. SS.HH A A B B 10.5 18 0 6 10 7 9. GALERÍA DE EXPOSICIONES 9. GALERÍA DE EXPOSICIONES 9. GALERÍA DE EXPOSICIONES 6 6.5 10. ALMACÉN MUSEOGRAFICO 9. GALERÍA DE EXPOSICIONES 14 2
A N Á L I S I S F O R M A L MODULACIÓN DE ESPACIOS FORMA ES RECTANGULAR (ALARGADO Y DE MAYOR DIMENSIÓN)E INDEPENDIENTE QUE EL OTRO VOLUMEN FORMA ES RECTANGULAR (ALARGADO Y ESTRECHO) ES UN VOLUMEN INDEPENDIENTE ES UN RECTÁNGULO INTERSECTADO CON OTRO RECTÁNGULO, QUE ES PARTE DEL TECHO, UNIDO AL VOLUMEN DE LA ZONA MUSEAL. SE CONCLUYE QUE EL EDIFICIO JUEGA CON SUS ELEMENTOS RECTANGULARES TANTO ALARGADOS COMO DE VOLUMENES INDEPENDIENTES C O N C L U S I Ó N : CORTE A-A CORTE B-B 34x18 6x18 40.2x6 18x2 9. GALERÍA DE EXPOSICIONES6, TALLER 9. GALERÍA DE EXPOSICIONES 9. GALERÍA DE EXPOSICIONES 9. GALERÍA DE EXPOSICIONES 9. GALERÍA DE 9EXPOSICIONES . VESTUARIO DEL PERSONAL
MATERIALIDAD A N Á L I S I S F O R M A L C O N C L U S I Ó N : 2 3 3. MUROS Y SUELOS DE CEMENTO CON ACABADO DE PIEDRA 2 2 2 CONTRUIDA ENTERAMENTE CON CEMENTO PUZOLÁNICO, RESISTENTE AL SALITRE DEL DESIERTO 3 1 1 HECHO DE CEMENTO PUZOLÁNICO, CON COLORES DE TELA DE PARACAS, 1. 3 3 3 4. PINTURA LATEX 4 6 6. VIDRIOS LAMINADOS CONCLUIMOS, QUE EL MATERIAL ES MUY EFICIENTE TOMANDO EN CUENTA SU ALREDEDOR. ADEMAS,SE APRECIA QUE EL MUSEO OPTO POR USAR COLORES QUE SE ASEMENJEN AL TERRENO, ASI COMO EN LAS TEXTURAS SE USARON LAS QUE OTROGABAN UN ASPECTO A ÉPOCA PRECOLOMBINA

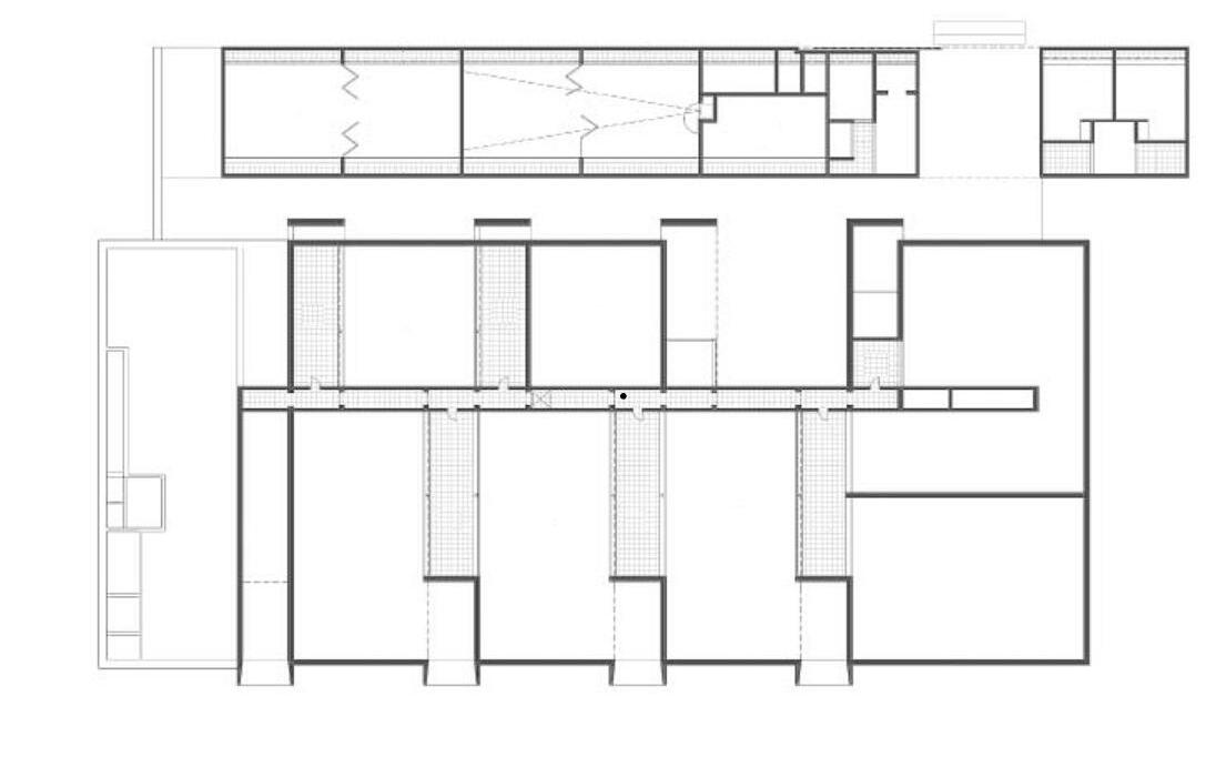
ZONIFICACIÓN

DISTRIBUCIÓN DE

A N Á L I S I S F U N C I O N A L
Y
AMBIENTES PLANO ESC: 1/1250
31 42 66 9 9 9 999 9 10 11 12 11 13 13 7 55 8 ZONA DE EXIBICION ZONA PUBLICA ZONA ADMINISTRATIVA 1. HALL DE ENTRADA 2. BAÑOS 3. TAQUILLA 4. TIENDA 7. CIRCULACIÓN EXTERNA 8. ENTRADA Y SALIDA DE LA EXPOSICIÓN 114 5 15 17 14 14 14 14 14 114 5 15 15 15 15 115 5 15 15 15 15 16 16 161161616 6 DISPOSITIVO DE CONTROL AMBIENTAL LEYENDA A N Á L I S I S F U N C I O N A L PLANTA NIVEL +3.90 m PLANTA NIVEL +-0.00 m ZONIFICACIÓN Y DISTRIBUCIÓN DE AMBIENTES 5. SALÓN DE USOS MÚLTIPLES 6. TALLER 9. GALERÍA DE EXPOSICIONES 10 ALMACENAMIENTO MUSEOGRÁFICO 11. LABORATORIO ARQUEOLÓGICO 12. VESTUARIO DEL PERSONAL 13. DORMITORIO DEL PERSONAL 14 VACIO SOBRE SALA 15. DISPOSITIVO DE CONTROL AMBIENTAL 16. VACIO 17. ACCESO PARA MANTENIMIENTO B B A A C C B A A C BC 9 9
ZONA DE EXIBICION ZONA PUBLICA ZONA ADMINISTRATI DISPOSITIVO D CONTROL AMBIENTAL 63% 20% 611% % LEYENDA A N Á L I S I S F U N C I O N A L ZONIFICACIÓN Y DISTRIBUCIÓN DE AMBIENTES CORTE C-C CORTE B-B CORTE A-A CONCLUSIÓN: T I E N E D I S T I N T A S S A L A S D E E X P O S I C I Ó N , D A N D O V A R I E D A D A L O Q U E S E P R E S E N T A , A D E M Á S T I E N E U N A E X C E L E N T E D I S T R I B U C I Ó N , C O M O S E M U E S T R A E N E L R Á P I D O Y F Á C I L A C C E S O A L A T I E N D A Y L O S B A Ñ O S . L A Z O N A D E E X H I B I C I Ó N P R E S E N T A 1 1 S A L A S D E E X P O S I C I Ó N , L A Z O N A
A D M I N I S T R A T I V A
C
U E N T A A L M A C E N E S , D O R M I T O R I O S P A R A E L
P
E R S O N A L , E N T R E O T R O S Y L A Z O N A P U B L I C A
E
S T Á C O N F O R M A D A P O R L A E N T R A D A , E L P A T I O ,
T
I E N D A Y L O S S E R V I C I O S H I
G
I
É
N I
C
O
S E N L A P L A N T A D E + 3 . 9 0 M S O L O E S A C C E S I B L E P O R E L P E R S O N A L , P A R A E L M A N T E N I M I E N T O D E L D I S P O S I T I V O D E C O N T R O L A M B I E N T A L ANALISIS: 9 9 9 9 9 11515 5 15 115 5 15 115 5 115 5 9 9 9 48 7 7 47 6 12 9 9 9
PLANTA NIVEL +-0.00 m CONCLUSIÓN: E L A C C E S O P R I N C I P A L E S L L A M A T I V O Y I N V I T A A L U S U A R I O A L I N G R E S O , C A S O C O N T R A R I O E S E L A C C E S O A D M I N I S T R A T I V O L O C U A L E S M U Y E F I C I E N T E E N E L U S O D E E L L O S . 31 42 66 9 9 9 999 9 10 11 12 11 13 13 7 55 8 PRINCIPAL PEATONALEJE SECUNDARIOEJE PRINCIPA PRINCIPAL ADMINISTRATIVO LEYENDA ACCESOSA N Á L I S I S F U N C I O N A L ACCESO ADMINISTRATIVO ACCESO PRINCIPAL 9

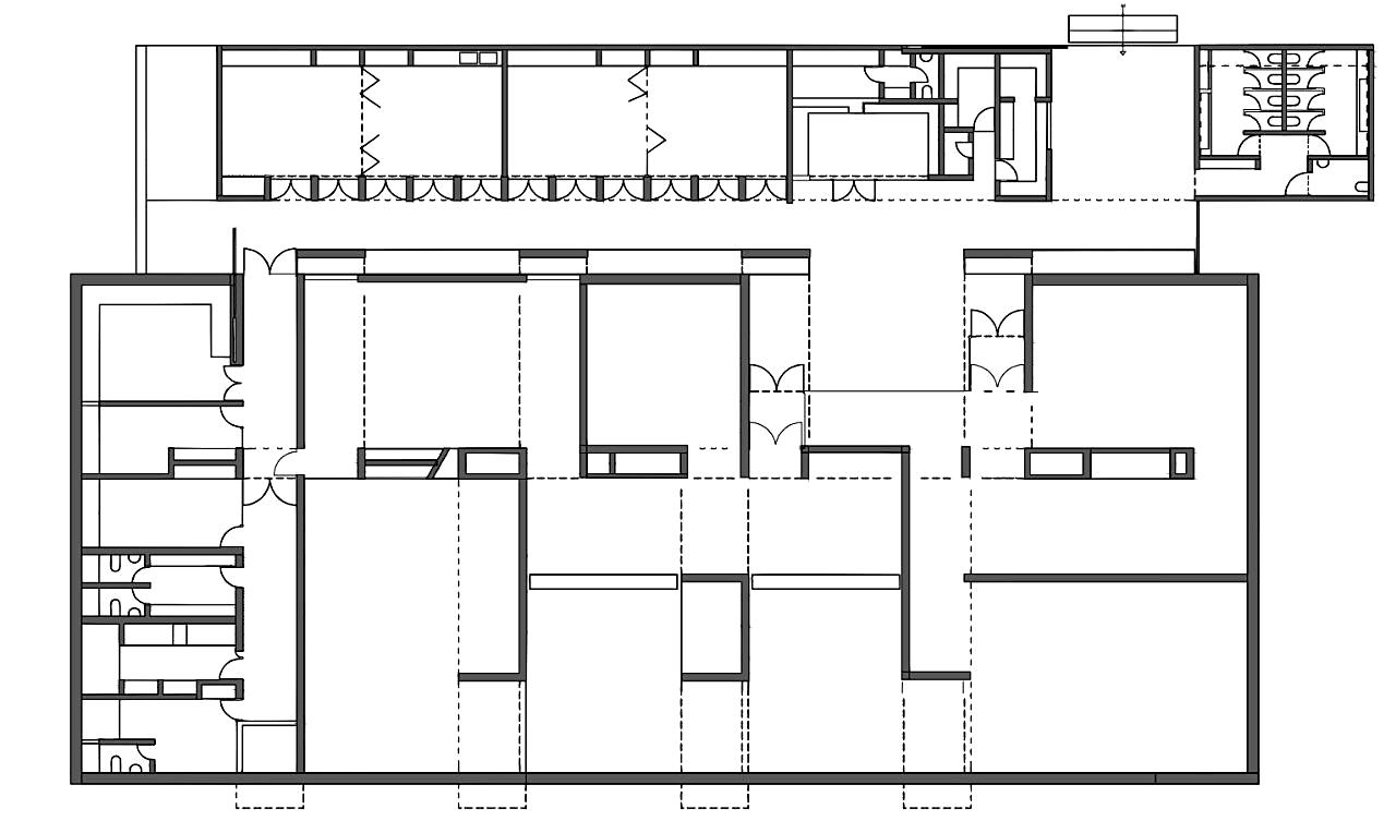
CIRCULACIONES

N

LEYENDA

CIRCULACIÓN DE VISITANTE

L I S I S F U N

CIRCULACIÓN DE TRABAJADORES

CIRCULACIÓN DE VISITANTE

CIRCULACIÓN DE TRABAJADORES

A
Á
C I O N A L
PLANO ESC: 1/1250
A B C 31 42 66 9 9 9 999 9 10 11 12 11 13 13 7 55 8 A B C D CIRCULACIONESA N Á L I S I S F U N C I O N A L CIRCULACIÓN DE TRABAJADORES CIRCULACIÓN DE VISITANTE LEYENDA PLANTA NIVEL +-0.00 m ANALISIS: T I E N E U N C I R C U L A C I Ó N L I N E A L Y O R D E N A D A , H A C I E N D O E F I C I E N T E L A C I R C U L A C I Ó N T A N T O D E V I S I T A N T E S C O M O T R A B A J A D O R E S . D A N D O S U P R O P I O E S P A C I O A A M B O S . D VISTAS - L A C I R C U L A C I Ó N V A R Í A E N T R E 2 A 5 M E T R O S B R I N D A N D O U N E S P A C I O C Ó M O D O P A R A L A C I R C U L A C I Ó N D E L O S U S U A R I O S . - E L N I V E L + 3 . 9 0 M N O C U E N T A C O N U N M E D I O P A R A A C C E D E R A É L , P O R E L L O N O S E P U D O A N A L I Z A R .
15 15 15 15 15 15 LEYENDA 17 CIRCULACIONESA N Á L I S I S F U N C I O N A L PLANTA NIVEL +3.90 m 14 15 14 14 14 14 14 14 115 5 15 15 15 16 16 161161616 6 15 CIRCULACIÓN DE TRABAJADORES ACCESO PARA MANTENIMIENTO CORTE A-A 9 9 9 9 9 11515 5 15 7 12 A A CORTE CONCLIUCIONES L A C I R C U L A C I Ó N E S M U Y O R D E N A D A Y E F I C A Z . E N E L N I V E L + 3 9 0 M S O L O C U E N T A C O N A C C E S O E L P E R S O N A L D E L M U S E O P A R A M A N T E N I M I E N T O D E B I D O ( S E A C C E D E A E L P O R M E D I O D E U N A E S C A L E R A D E G A T O ) A D E M Á S , S O L O E X I S T E U N A C I R C U L A C I Ó N E N V O L U M E N M Á S G R A N D E , Y A Q U E P O R S U A L T U R A N E C E S I T A S A C C E D E R A É L , E N E L V O L U M E N P E Q U E Ñ O E L M A N T E N I M I E N T O S E P U E D E H A C E R D E S D E E L N I V E L + 0 0

-SE CONSIDERÓ MEDIANA ACCESIBILIDAD A LOS QUE CONTABAN CON UN CONECTOR QUE NO ES LINEAL COMO EL RESTO DE LOS ACCESOS.

-A LOS DE BAJA ACCESIBILIDAD SE CONSIDERÓ A LOS QUE TENÍAN QUE PASAR POR OTRA SALA DE EXPOSICIÓN

SE PUEDO APRECIAR QUE ESTE MUSEO DE SITIO TIENE UNA ALTA ACCESIBILIDAD EN CASI TODOS SUS RECINTOS.

S A L A D E E X P O S I C I O N 1 S A L A D E E X P O S I C I O N 4 S S . H H . D E P O S C I T O O F I C I N A E N T R A D A P R I N C I P A L T A L L E R D E V I D E O S T A L L E R D E C E R A M I C A T I E N D A E N T R A D A S E C U N D A R I A S A L A D E E X P O S I C I O N 3 S A L A D E E X P O S I C I O N 5 S A L A D E E X P O S I C I O N 6 S A L A D E E X P O S I C I O N 9 S A L A D E E X P O S I C I O N S8 A L A D E E X P O S I C I O N 7 P A T I O P R I N C I P A L S A L A D E E X P O S I C I O N 2 SECUENCIA ESPACIALA N Á L I S I S F U N C I O N A L CONCLUSIÓN: LEYENDA BAJA ACCESIBILIDAD MEDIANA ACCESIBILIDAD ALTA ACCESIBILIDAD

EL MUSEO ESTA CONFORMADO

POR UNA SERIE DE FORMAS REGULARES Y PARA NADA COMPLEJAS.

CONCLUCIONES

A SU VEZ QUE POSEE UNA CONSIDERABLE VARIEDAD DE EJES ADEMAS DE UNO PRINCIPAL QUE ES EL QUE LES DA UN ORDEN A LOS DEMAS.

TAMBIEN OBSERVAMOS COMO LA TEXTURA EN SU EXTERIOR CONFORMADA POR HORMIGON ROJO DAN UNA AGRADABLE SENSACION POR ESTAR EN ARMONIA CON SU ENTORNO.

RECOMENDACIONES

MEJORAR LA VIA PEATONAL

PRINCIPAL USADA PARA LLEGAR A LA PLAZA DEL MUSEO, YA QUE A SU LADO DERECHO TIENE UN DESNIVEL QUE PUEDE ATENTAR CON LA INTEGRIDAD DE LOS VISITANTES

COLOCAR ALGUN OTRO PUESTO DONDE LAS PERSONAS SE PUEDAN ABASTECER DE COMIDA Y BEBIDAS A LOS LARGO DEL RECORRIDO.

ESTO DEBIDO A QUE POR EL MOMENTO SOLO SE CUENTA CON UNA TIENDA Y MUCHAS VECES TERMINA GENERANDO AGLOMERACION EN LA ZONA.

SU EXCELENTE DISTRIBUCION HACE

QUE LA CIRCULACION SEA UN RECORRIDO MAS AGRADABLE POR LO LINEAL Y ORDENADO QUE RESULTA SER, Y ASI DAR AL PUBLICO UN RAPIDO Y FACIL ACCESO A CADA AMBIENTE.

COLOCAR MAS AREA VERDE TANTO POR LAS CIRCULACIONES EXTERIORES Y LA UNICA

PLAZA.PARA ASI DAR MAS VIDA AL LUGAR Y DAR UNA MEJOR SENSACION A LOS VISITANTES.

REFERENCIAS

REACTIVACIÓN TURÍSTICA! LA RESERVA NACIONAL DE PARACAS REANUDÓ LA ATENCIÓN A VISITANTES (S F ) NOTICIAS | AGENCIA PERUANA DE NOTICIAS ANDINA. RECUPERADO 16 DE OCTUBRE DE 2022, DE HTTPS://ANDINA.PE/AGENCIA/NOTICIA-REACTIVACIONTURISTICA-RESERVA-NACIONAL-PARACAS-REANUDO-ATENCION-A-VISITANTES-820068.ASPX

MUSEO DE SITIO DE PARACAS DE BARCLAY&CROUSSE (2022, 8 JULIO) ARQUINE RECUPERADO 09 DE OCTUBRE DE 2022, DE HTTPS://ARQUINE.COM/OBRA/MUSEO DE SITIO DE PARACAS/

MUSEO DE SITIO DE LA CULTURA PARACAS / BARCLAY&CROUSSE ARCHITECTURE. (2022, 7 OCTUBRE). ARCHDAILY PERÚ. RECUPERADO 09 DE OCTUBRE DE 2022, DE HTTPS://WWW.ARCHDAILY.PE/PE/868471/MUSEO-DE-SITIO-DE-LA-CULTURA-PARACASBARCLAY AND CROUSSE

REDFUNDAMENTOS. (S. F.). REDFUNDAMENTOS. RECUPERADO 09 DE OCTUBRE DE 2022, DE HTTP://WWW.REDFUNDAMENTOS.COM/BLOG/ES/OBRAS/DETALLE 178/ PARACAS, UN PAISAJE DESAFIANTE. (2020, 29 AGOSTO). TECNNE. RECUPERADO 10 DE OCTUBRE DE 2022, DE HTTPS://TECNNE.COM/COLABORACION/PARACAS-UN-PAISAJE-DESAFIANTE/

MUSEO DE SITIO DE LA CULTURA PARACAS / BARCLAY&CROUSSE ARCHITECTURE. (2022, 7 OCTUBRE). ARCHDAILY PERÚ. RECUPERADO 09 DE OCTUBRE DE 2022, DE HTTPS://WWW.ARCHDAILY.PE/PE/868471/MUSEO DE SITIO DE LA CULTURA PARACAS BARCLAY AND CROUSSE

MUSEO DE SITIO JULIO C. TELLO. (S. F.). RECUPERADO 9 DE OCTUBRE DE 2022, DE HTTPS://WWW.CUSCOPERU.COM/ES/VIAJES/ICA NAZCA-PARACAS/MUSEOS/MUSEO-DE-SITIO-JULIO-C-TELLO

Turn static files into dynamic content formats.

Create a flipbook
Issuu converts static files into: digital portfolios, online yearbooks, online catalogs, digital photo albums and more. Sign up and create your flipbook.