PORTFOLIO

00/ Curriculum vitae
![]()

00/ Curriculum vitae
ISTRUZIONE
IED - Master in “Exhibit Design”
Roma, Italia | 2023 - 2024 | Votazione: 110L
Dip. Architettura “Università degli Studi di Ferrara”
Ferrara, Italia | 2016 - 2023
Votazione laurea magistrale: 110/110
Conservatorio di musica “G. Rossini”
Pesaro, Italia
5° anno, diploma di vecchio ordinamento
Liceo artistico “ Preziotti - Licini”
Fermo, Italia | 2014 - 2016
Votazione Maturità: 100/100
Liceo artistico “Cantalamessa”
Macerata, Italia | 2010 - 2014
Curriculum Vitae
Programma di mobilità internazionale “Erasmus”
ETSAB - Escola Técnica Superior de Arquitectura
Barcelona
2019 - 2020 | 1 anno
Workshop “Delta international summer school 2019” (DISS)
Progetto pilota per accrescere la conoscenza del paesaggio attraverso un piano strategico di sviluppo locale nell’ambito del piano di sviluppo rurale della regione Emilia-Romagna
Comacchio (FE), Italia
LCA Wood Building workshop 2018
Progetto di approfondimento sui sistemi strutturali in legno e costruzione di una porzione di fabbricato (“cantiere in aula”)
Ferrara, Italia





+39 3405412778 claudia.verdini@gmail.com
www.linkedin.com/in/claudiaverdini
www.issuu.com/claudia.verdini
Roma | Italia
Architetto
Studio di architettura “Manuela Lei Chiozzi”
Civitanova Marche (MC), Italia Marzo 2023 - Novembre 2024
Architetto tirocinante
Q.B. Atelier
Ferrara, Italia
Aprile 2022 - Giugno 2022
Diseñadora 2D y 3D
Oficina “Ramón Godó Llimona”
Barcellona, Spagna
Novembre 2019 - Febbraio 2020
Abilitazione alla professione Febbraio 2024
Certificato base “Casa Clima”
Corso “Energy zero” sull’efficienza energetica ed il comfort bioclimatico
Certificato sulla sicurezza A, B, C
Formazione sulla sicurezza nei luoghi di lavoro
Autocad
Rhinoceros
3ds Max
V-Ray
Photoshop
Illustrator
In Design
Enscape
Microsoft Office
Italiano Madrelingua
Spagnolo C1
Inglese B1
In questa sezione sono raccolti i principali progetti disegnati in occasione del master in Exhibit Design all’Istituto Europeo di Design (IED) di Roma. Il corso era diviso in tre moduli: il primo trattava la progettazione di un allestimento musealo, il secondo indagava il mondo del retail e il terzo l’elaborazione di uno stand fieristico. Per ognuno ci si doveva interfacciare con clienti reali quali il Maxxi, Il brand di gioielli Lil e l’azienda Sogimi.
Progetto dell’allestimento museale per la mostra sullo studio Aalto all’interno della Galleria 3 del Maxxi (Roma)
Progetto di tesi - Master Exhibit Design (IED)


L’idea di progetto è il risultato di una ricerca all’interno dell’architettura organica promossa dallo studio Aalto, che integra in un unico organismo l’architettura e il design. Così il concept
vuole riprendere le forme di uno dei pezzi più iconici di Artek, il vaso in vetro dalle peculiari forme, creando delle penisole che organizzano l’allestimento in base alle singole architetture
esposte in mostra, attraverso piani orizzontali sovrapposti in lastre di lamiera composita di colore scuro. I display, sia orizzontali che verticali, sono sorretti da cavi in acciaio molto sottili facendoli apparire quasi fluttuanti nello spazio.
La reading room è accompagnata dal focus di Artek mediante una serie di mensole sovrapposte, dotate di faretti per creare ombre inedite degli arredi esposti sulla parete blu oltremare.



e
Dormitori del MIT
Istituto nazionale della previdenza sociale di Helsinki
dell’abbazia di Mount Angel
Installazione interattiva

Installazione tipografica “Aalto”
Esposizione fotografica Ramak

Al termine dello spazio principale della galleria, sulla grande parete inclinata, è stato posto un collage con momenti di vita quotidiana delle figure principali che hanno fatto parte dello studio: Aino, Alvar ed Elissa. La stessa soluzione è stata adottata anche per la lunga parete al lato della rampa che
connette i tre terrazzamenti, facendo apparire le figure quasi sbucare dalla balaustra quando si percorrono le scale.
Inoltre, nella grande vetrata del ponte che collega le due parti della galleria, è stata posta un’installazione tipografica visibile dalla piazza sottostante.

Nel corridoio che collega i due livelli della galleria è stata progettata un’installazione interattiva per coinvolgere maggiormente il visitatore nella visita mettendo in luce quanto l’architettura e il design siano strettamenti legati fra loro. Così, sono state
scelte 4 lampade di Artek che il visitatore può accendere mediante un interruttore, a quel punto inizierà una videoproiezione di luce su sfondo scuro per immergerlo all’interno di una delle architetture per cui quella lampada è stata progettata.





Progetto di allestimento per una gioielleria nel cuore del quartiere di Soho (Londra)
Modulo di Retail - Master Exhibit Design (IED)
Progetto vincitore del concorso

Nel cuore di uno dei quartieri più vivaci di Londra nasce il progetto di uno store per un brand emergente di gioielli in oro, Lil Milano. La location si è rivelata una sfida per le sue piccole dimensioni e per la vetrina inquadrata e ritmata da una griglia di rettangoli in legno. La committente come indicazioni generali ha indicato, oltre a elementi funzionali ben precisi, che nel negozio si respirasse un’atmosfera fresca, accogliente ma al tempo stesso elegante. Per questo motivo sono
stati scelti materiali come l’ottone, per riprendere l’oro dei gioielli, la resina nelle pavimentazioni, l’inotonaco a calce nelle pareti, specchi per aumentare la percezione dello spazio e tende in lino per dividere gli ambienti. Inoltre, per far risaltare al meglio i gioielli negli espositori, è stato scelto come fondo un velluto verde petrolio.
All’interno i counter sono stati uniti in un unico elemento curvo, che invita il cliente alla visita. La base è costituita da due pietre grezze in travertino

Espositore “Ageé”
Espositore “Precious”
Espositore “Boys tears club”



che rimandano all’italianità del brand.
In fondo allo store è presente una lounge per organizzare eventi, talks o podcast e coinvolgere maggiormente il cliente nell’esperienza d’acquisto. Accanto al controsoffitto, un filo d’ottone
corre nello spazio, impreziosendo l’ambiente e sorreggendo i tendaggi e gli espositori curvilinei, riprendendo anche le forme del logotipo del brand. Gli espositori sono organizzati con un particolare focus per i prodotti stella, “precious” e “Ageé”.





Progetto di uno stand fieristico per l’azienda “Sogimi” all’interno della fiera Viscom 2024
Modulo di Stand Fieristico - Master Exhibit Design (IED)


Il brief inviato dell’azienda Sogimi richiede la progettazione di uno stand per la fiera Viscom 2024 per promuovere uno dei suoi materiali stella nel campo del cartonato: lo Swedboard FR,
innovativo per le sue proprietà ignifughe. Proprio per mettere in luce questa caratteristica, l’azienda ha richiesto che l’intero stand fosse costruito con questo materiale. Così per riprendere i temi























della sostenibilità e resistenza del prodotto è stato disegnato uno stand dalle forme organiche che organizzano le varie aree funzionali grazie ad una listellatura continua. Questo ha permesso di creare giochi di luci e ombre e grande permeabilità visiva
per invitare il cliente ad entrarae e scoprire il mondo Sogimi. Inoltre, per mettere in luce la stampabilità del materiale i listelli hanno una grafica sfumata del rosso caratteristico dell’azienda. Ad accentuare l’organicità l’introduzione dell’elemento vegetale.



In questa sezione sono raccolti i principali progetti disegnati in occasione della laurea magistrale in architettura presso l’Università degli Studi di Ferrara, trattando diversi temi, dalla residenza all’urbanistica.
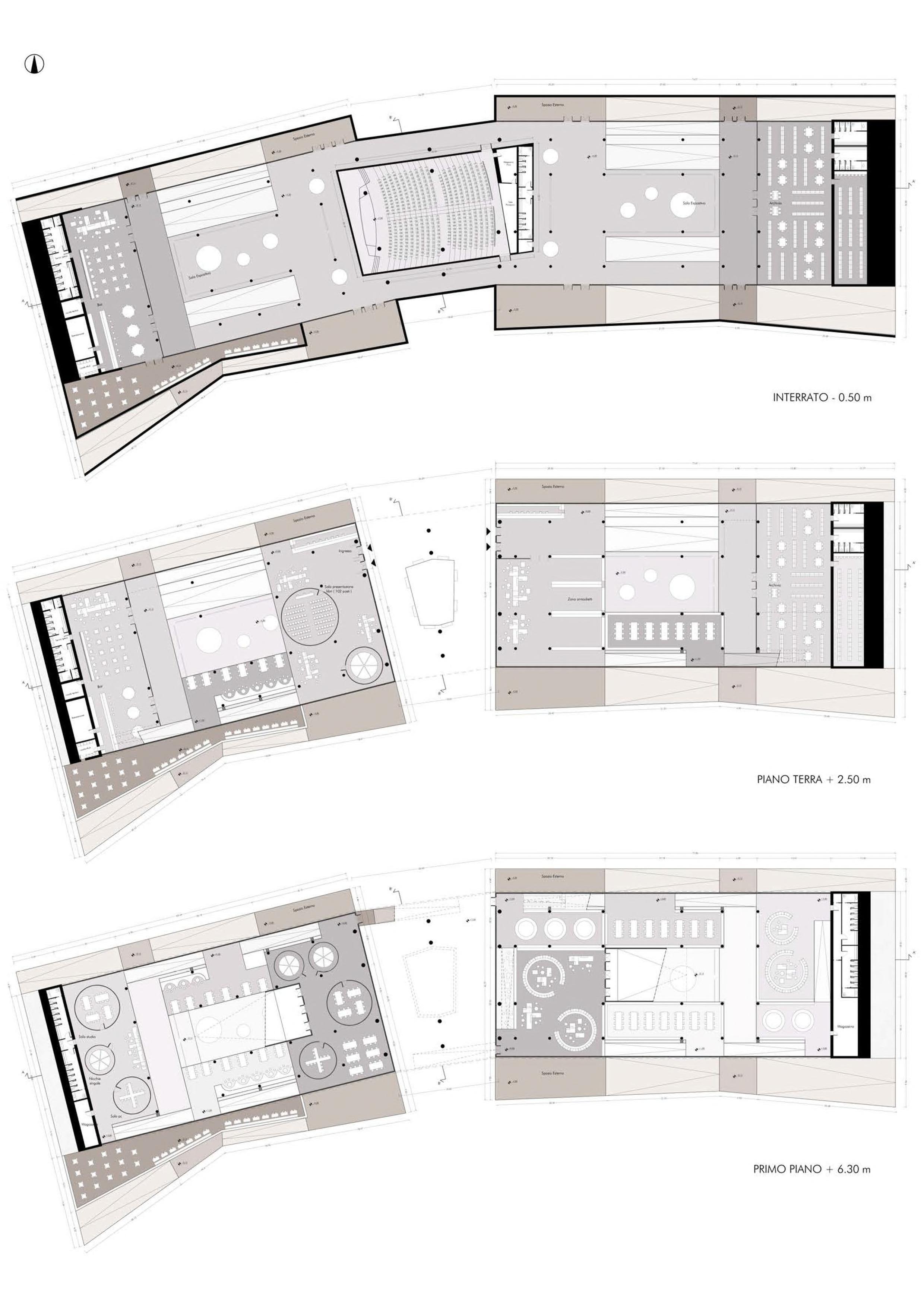
Un modello di co-housing intergenerazionale per anziani autosufficienti nell’Ex area industriale Mira Lanza (Roma)
Progetto di tesi


L’dea alla base del progetto “CoAbitare la fabbrica” nasce dalla volontà di dare un’adeguata risposta alle mutate esigenze di una popolazione sempre più anziana, ma complessivamente più giovane. Si vive meglio e più a lungo, infatti da molti anni ormai di parla di “invecchiamento attivo” che spinge una grande quota di mercato ad occuparsi della terza età, la cosiddetta “Silver economy”. Con questi presupposti abbiamo voluto creare una nuova forma di residenzialità attraverso un modello abitativo più giusto, equo e solidale. Tale modello si
fonda sul concetto di residenza collettiva , in questo caso all’interno di un contesto urbano densamente costruito. Il progetto mira così alla riqualificazione dell’Ex area industriale Mira Lanza, portando avanti una ricerca che amplia il concetto di “coabitazione” dagli inquilini del co-housing all’intero quartiere e viceversa, creando una comunità attiva, capace di mitigare gli effetti negativi delle grandi città, per combattere l’isolamento, le disparità sociali e diffondere cultura e senso di appartenenza. Coabitare è condividere, condividere è vivere.






in calce e canapa per garantire una soluzione che fosse improntata sulla sostenibilità ed il rispetto dell’ambiente, ma che garantisse nel contempo alte prestazioni energetiche e confort degli ambienti.




Un progetto di rigenerazione urbana nell’Ex Caserma di Tito (Sarajevo)
Laboratorio di progettazione architettonica III

Masterplan
Nella città di Sarajevo sorge una caserma abbandonata, la “Caserma di Tito”. Il progetto propone la sua rigenerazione e rifunzionalizzazione in un inedito campus universitario. Il masterplan è stato concepito per favorire l’interazione e la socializzazione degli studenti e di tutti colori che usufruiranno di questo luogo.
Da questi presupposti la scelta è stata orientata verso una suddivisione in quattro cluster, ognuno trattato con materiali e geometrie differenti al fine di caratterizzarne l’identità. I percorsi, nonostante
non seguano andamenti rettilinei, sono chiari e gerarchici. Il principale è il grande asse centrale che collega le due strade principali a Nord e a Sud. Al centro vi è il fulcro, la grande piazza che, nella sua topografia, presenta terrazzamenti trattati con diverse tipologie di materiali. Anche il resto dell’area presenta sollevamenti e abbassamenti del terreno, attraverso un sistema di terrazzamenti poligonali, con lo scopo di creare suggestivi moti gravitazionali.



Concentrandosi sulla progettazione di un edificio del campus, si è scelta la biblioteca, posta in un punto strategico di transito, vicino all’ingresso.
Il concept nasce dall’unione di due edifci mediante un “ponte”. Lo spazio interno è articolato da un gioco di piattaforme a diverse quote al fine di creare un moto ascensionale culminente in una terrazza verde. Si ha così l’apertura di un grande vuoto centrale, che assicurasse la giusta illuminazione e articolasse la percezione dello spazio.
Si è data particolare attenzione agli spazi sociali e di aggregazione anche con lo stesso design degli arredi, fondendoli con l’architettura stessa e adattandoli alle diverse esigenze.
L’edificio ovest, ossia la “Biblioteca delle Parole”, è incentrato maggiormente sul potenziale sociale: le sue piattaforme con corpi vetrati circolari, hanno la funzione di aule studio di gruppo e di spazi di aggregazione.
L’edificio est, la “Biblioteca del Silenzio”, è la struttura che funge da vera e proprio biblioteca, regno dei libri e del silenzio.

Permeabilità
Attraversamento pedonale della via principale
Estrusione vuoto centrale
Illuminazione zenitale | Moto ascensionale
Articolazione finale delle piattaforme
Sezione longitudinale



Progetto di integrazione di un nuovo edificato nel tessuto urbano di Ferrara
Laboratorio di progettazione architettonica II




In un angolo del centro storico di Ferrara si inserisce il progetto di una residenza per studenti. Il processo progettuale parte da un volume matrice dalla forma a “L”, per chiudere le facciate SO e SE, verso l’intersezione delle due vie, e per lasciare uno spazio aperto e pubblico nella parte retrostante. Una piazzetta lontana dal caos dalla strada, di cui potesse usufruire sia la cittadinanza che i fruitori
della residenza. Per accedervi è stata creata una galleria nel nuovo corpo di fabbrica, staccandolo al piano terra dall’edificio accanto, e tagliando l’intero isolato. Si crea così anche una nuova connessione a livello ciclabile e pedonale. Il passaggio successivo è stato la volontà di differenziare le aree comuni rispetto le camere e le aree di servizio.





Gli ambienti privati sono posti nel volume iniziale, rivestito in cotto, che seguisse le rette ideali degli allineamenti dati dall’edificato circostante per cercare una relazione di armonia col contesto. Da qui si estrudono, si eliminano e si ruotano quattro volumi, quasi come “parassiti”. Essi rappresentano
idealmento il contemporaneo, completamente in contrasto sia per allineamento che per materiale, consistenza e percezione formale. Questi ambienti, dalle dimensioni più grandi, spesso a doppia altezza con balconate, accolgono le aree comuni come la sala studio, le sala relax e diversi giardini interni.





In questa sezione sono raccolti alcuni dei disegni e dei progetti grafici composti nel corso della carriera universitaria. In particolare in occasione di due esami: “Caminar Barcelona”, svolto a la ETSAB durante la mobilità internazionale Erasmus, e “Storia dell’architettura contemporanea”, sostenuto al Dipartimento di Architettura dell’Università degli Studi di Ferrara.







