Location
Status
![]()
Location
Status
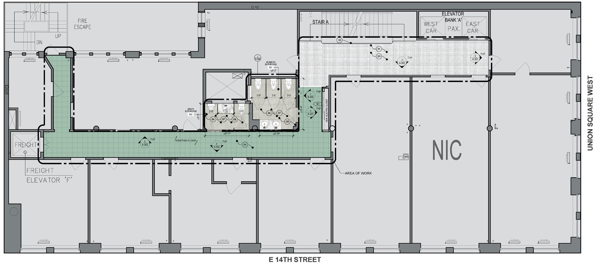
1 Union Square West, New York, New York Ongoing
Overview
Building-wide project scope with the goal of modernizing the interiors of this historical building through the introduction of a new design standard, renovating all hallways and tenant bathrooms.






FPE ARCHITECTS - NEW YORK, NEW YORK
Location Status
Overview
740 Broadway, New York, New York
Completed
Tenant build-out for suite 1202’s incoming tenant. Scope of work included the addition of new partitions,new lighting fixtures,a modern pantry with new appliances, and a Modernfoldfold moveable partition.







Location Status
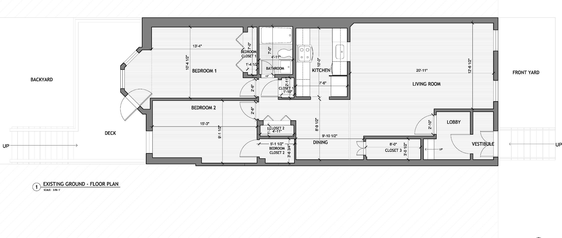
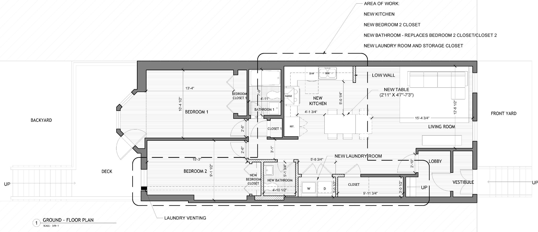
280 Carlton, Brooklyn, New York
Ongoing
Overview
A small family was looking to do some renovations in their newly purchased brownstone. Scope of work included the addition of a new half bathroom,a new kitchen, a new dining area,a new closet, and a new laundry room.


FPE ARCHITECTS - NEW YORK, NEW YORK
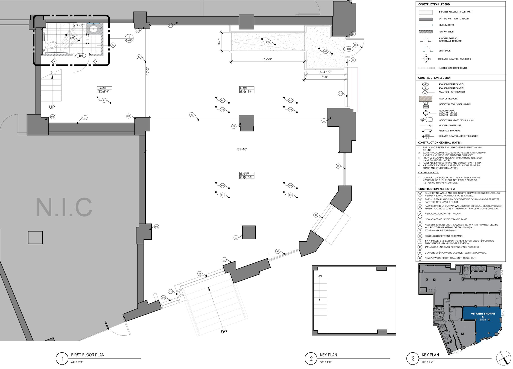
Location Status 740 Broadway, New York, New York Ongoing
Overview
We were tasked with combining 2 indiviudal retail spaces into one large retail space. Scope of work included demolishing the demising wall to combine both spaces, new modern storefronts, an ADA ramp, new lighting fixtures,a new HVAC sytem, and a new bathroom.







SUITE 301-304 FPE ARCHITECTS - NEW YORK, NEW YORK
Location Status 1 Union Square West, New York, New York Completed
Overview
Tenant build-out for suite 301-304’s incoming tenant. Scope of work included the addition of new glass partitions,new HVAC system,new lighting fixtures, and a modern pantry with new appliances.

















