Portfolio [2020-2023]

Page 1

Portfolio

PIN-HSI SUNG

selected works

2020-2023

Department of Architecture

National Taiwan University of Science and Technology (NTUST)

PIN-HSI SUNG

qwertyuiop95145@gmail.com

Skills

Autocad

Sketchup

Lumion

Revit

Rhino

Grasshopper

Illustrator (AI)

Photoshop (PS)

Indesign (ID)

2023.2-2023.7

Exchange Program

Czech Technical University in Prague The Why Factory -led by Prof. Winy Maas (MVRDV)

2022.5-2022.12 University Social Responsibility Project Historical Renewal and Revitalization Team

2022.7-2023.6 UC Berkeley-Finalist 112 MOE Scholarship Program for Overseas Study in Art and Design 2023.6 113 MOE Scholarship Program for Overseas Study in Art and Design On-going project 2022.3 International Design Excellence Awards (IDEA) - Finalist International Award

The Architecture MasterPrize (AMP) - Honorable Mention International Award

TOEFL
TOEIC
Language skills -
91
890
2021.2 Decor House Award 2021 - Excellent work Domestic Award 2022.3 iF DESIGN TALENT AWARD - Winner International Award
2022.6
1
2 Contents / Structure 03 04 01 02 00 Research Project How Competition Project Introduction Who Timeline, (2020.9- ) CZ2 Envisioning of future(s) of the Czech Republic 2023 \ The Why Factory \ Czech Republic \ Observation&Analyzation Projects What Others Modern Holy Temple 2022 \ NTUST \ Taipei, Taiwan \ Religious Building Climbing Gym / Physiotherapy Clinic 2023 \ NTUST \ Taichung, Taiwan \ Multi-functional Building 3 Research Focus, Internship Project 6 14 Pavilion of Ecosystem 2022 \ Extreme Climate Zone \ Pavilion 20 24 1

CZ2

Envisioning of future(s) of the Czech

2023

\ Czech Republic

Observation&Analyzation 〔 Group Project 〕

Tutor: The Why Factory-Winy Maas 〔 Personal Contribution 〕

Mapping , Ranking, Data Analyzing , Agenda Setting, part of Idea Proposal

I visualized and assed a multitude of ideas for the future of the Czech Republic based on multifaceted analysis, mapping, and evaluation of the current context produced in The Why Factory.

3
Exhibition in CTU, 2023.6

Observation

Mapping, Ranking

Observation from me (PIN HSI SUNG)

Evaluate the scale of the issue from a wider perspective from mapping and ranking, take a closer look at the issue, and nd the possibility of proposals from the database.

Analyzation from me (PIN-HSI SUNG)

Take the project "Reuse of Abandoned Church Space" done by me(PIN-HSI SUNG) as an example.

Source: http://ec.europa.eu/public_opinion/archives/ebs/ebs_341_en.pdf

Ranking of non-religious people in EU countries

Observation

Mapping

Ranking

Brain storming

Idea sketching

Before&After image

Maximize thinking

Screening

Analyzing

Counting

Verifying

4
CZ Anti-trdelnik That Description:will, doubt, become quicklyauthentic national delicacy clea CZ Baseball Second in Europe play baseball, always punched Czechia won U-21 EuropeanLegend: No drunk driving! Description: 2015 accidents. The investigationrelated crashes and the legal bloodes) were registered. (2020) EU,2021 (liters) Beer Consumptionduction seems declining, says hitting lowest level since CZ Beer Never stop drinking! Beating out Ireland and person each yea accordinging, says Czech Associationsince 1989, group said. theLegend: Are you speaking Czech? Description: Czech–Slovak group, writtenlanguage Czech Republic. point high mutual intelligibili-with rich system morphologyDrunk driving Statistics were analysed relatedtween percentage drink driving related crashes and legal blood CZ High-speed train Can go through Czech one day? Description: Republic route from Pragueularly eve day from Prague from Cieszyn Prague and fromPUBLIC TRANSPO AION Student: SungLiving conditionposed single person, according European Union, 33 percent werehouseholds percent), followed Do we say welcome? Czech Republic belongsnumber migrants grew times.-nomic, political, ethnic and interegions the years Jihomoravský 36907 Hundreds of towersthat were locked the night.were used notify citizens past. rets and stepples Prague. CZ Unequal Are Czech rich?expressed last month Eurostat. The repo
-
Czech
Large-scale and multifaceted observation of
Republic.
... Distribution of small villages Distribution of Abandoned Churches
6% % 12% 21% 21% 26% 30% 30% 31% 37% 1% 5 % 54% 55% 56% 56% 3% 6 % 67% 8% 8% 72% 72% 73% 82% 82% 84% 3% Ma a Roman a Cyprus Poland G eece I a y e and Po ugal Croat a S ovak a Spa n L huan a Luxembourg Hunga y Ge many Aus r a Be g um Bu gar a F n and S oven a La v a Ne her ands Denmark France Sweden Eston a CZ EU AVERAGE Units: Percentage of atheistic population (2021) Atheism Description: The Czech Republic is regularly rated among the least religious countries in many international comparative su veys. The secular profile of the Czech Republic is exceptional even within the region of post-communist Central and Eastern Europe, whose religious development was strongly formed for almost a half-century by an explicitly anti-religious regime.
CZ is Small villages A village for everyone 1. 2. 3. Description: CZ has a large number of small villages, which are spread throughout the whole country Together with France and Slovakia, it has the smallest amount of inhabitants per 1 village. A large number of small villages creates problems with providing enough services and economical demands. Each unit is an autonomous unit, which needs its budget and a major with a municipal council, which is costly Legend: Source https://www.irozhlas.cz/zpravy-domov/stavby-mapa-obce-urbanismus-gebrian_1902140614_zlo Student: Lucie Bielaková Village 0 CZ is Abandoned churches Next step Description: The Czech Republic is regularly rat ed among the least religious coun tries and as a result, there are many religious abandoned st This state has been caused by vari ous factors. Historicall abandoned st the movement of the Ge lation from the borderline terito Additionall religious population caused finan cial issues with the maintanance of the churches. 1. 2. 3. 4. Legend: Abandoned church Source: http://www.znicenekostely.cz/ Student: Dominik Nosko CZ is Atheistic Description: The Czech Republic regularly rated among the least religious countries many inte national comparative su veys. This result 40 years communism, when the church was prosecuted and the industrial revolution the 19th centu CZ has churches village and they are way unde Percentage of atheistic population Number religions Number unde used churches Number religious buildings Source: https://ww .washingtonpost.com/news/worldviews/wp/2015/04/14/map-these-are-the-worlds-least-religious-countries/ Student: Dominik Nosko CZ is Landlocked Description: CZ rounded by land from all sides with other countries. It bordered by Ge many to the west and thwest, Poland the no theast, Slovakia to the east, and Austria to the south. has no direct access the sea ocean, but it rents pa Hamburg harbor to 1. Dependence on its neighbors 2. Impo t/expo rounding countries 3. through count 4. Connections to oceans and seas Source: https://chat.openai.com/chat Student: CIci Sung CZ is emperate continental Description: The climate the Czech Republic considered to be temperate continental, with cold, snowy winters cilmate means there is little precipitation, big differences in the tempa tures between day and night and low cloudiness. As the climate change, the CZ is getting more heat waves, periods of drought floods as well as less precipitation. verage temperatures Main cause the climate verage precipitation, snowfall Consequences the climate Agriculture conditions Source: https://climateknowledgepo tal.worldbank.org/count y/czech-republic/climate-data-historical Student: Cici Sung CZ is owers Description: CZ has thousands of towers, which can be divided into church towers and communication towers. Prague nicknamed The hundred-spired, reality spires. This creates layerd look to the CZ cities. But towers can be found almost any village with church. They provide views the suings, but also announce the time with their bells. Number towers Number viewpoints Number visitors How many bells do they have? Source: https://en.map .cz/zakladni?q=tower&x=14.3568000&y=50.1023000&z=11 Student: Cici Sung CZ is Small villages Description: CZ has ve high number villages. Their median size only 382habitants, but villages under 100 inhabitants are not exeptional. Eve by mayor and municipal board. They lack enough cultural facilities and se vices, another problem the transpo pa than separate units? Average size % of inhabitants The smallest/biggest one Why is there many them COst unning one Effectivness ranspo issues Lack of things do there Source: https://ww .czso.cz/csu/czso/maly-lexikon-obci-ceske-republiky-2021 Student: Lucie Bielaková CZ is Prague sprawl Description: The CZ capital has been spreading out in various directions, out its historical borders to the countside. the consequence of the CZ ideal life represented by family house with pool and dog. New sattelites emerge around Prague, which makes the city less dense density of the traffic. 1. The speed the growth 2. Number of inhabitants, how does change 3. Change functioning of Prague 4. Effect on traffic 5. Alte native transpor options 6. Are sattelites really the goal life? 7. How much can Prague sprawl? Source: https://ct24.ceskatelevize.cz/domaci/1007952-prahu-obklopila-satelitni-mestecka-mesta-ale-nejsou-upozo nil-geograf Student: Lucie Bielaková ...
Student: Dominik Nosko

Brain storming, Idea sketching, Before&After image, Maximize thinking

Observe and integrate all the materials in the previous part, intuitively and boldly produce ideas.

Project

Issue-related Data

Church-up Your Village

3,800 abandoned churches, more than 60000 villages

Goal

Situation

Outlook

Balance the density between urban and rural areas before after

Screening, Analyzing, Counting, Verifying, Discussing

Carefully screen and test the possibility of proposals from actual data to make sure they are correct and can be extended.

Observation

Mapping

Ranking

Brain storming

Idea sketching

Before&After image

Maximize thinking

Screening

Analyzing

Counting

Verifying

5

Modern Holy Temple

2022 \ Taipei, Taiwan \ 〔 Religious Building 〕

“The best place to receive the Heavenly Tao is the human world. ”

6
Tutor: Chen, Shun-Hui Meditation Hall Main Shrine The path of receiving Haevenly Tao
Site [Perspective]
Living Area (Garden) Tripitaka(Garden)Library Concept 1.
2. 3.
Lowering the building height, making it one with the landscape. Transforming the traditional roof of Taoism-“ 人 -shaped “ into modern temple.
7
The path of receiving the Heavenly Tao that leads to the hall.

Entrance to Worship

Parking Entrance

Elevator

Main Shrine

Gazebo

Storyboard Sketching The experience of walking down this path would be similar to that of diving into the sea. People can sense the ow of time and space with obscure but poetic sunlight and shade, and slowly reach the ultimate goal of Zen Buddhism-“Innate Wakefulness”.

8
Site Plan
Jinhua St
9 Ground Floor 1 3 2 4 5 6 7 Plaza Meditation area Meditation room Administrative o ce Meeting room 2 3 4 5 1 Classroom 6 Tea room 7
path of receiving the Heavenly Tao Entrance A C B B Meditation area A C
The

Second Floor

10
Reception 8 8 9 10 Bookstore Gazebo 9 10
D Bookstore E E D
Gazebo
11 12 7 13 14 15 Basement rst oor Parking Lot Living area (short-term) Living area (abbot) Meditation Hall Outdoor seating area for tea room 12 13 14 15 11 Living Area F F Meditation Hall G G 11
12 16 17 18
Antechamber Main Shrine Tripitaka Library 16 17 18 Main Shrine H Transitional space I Tripitaka Library J H I J
Basement second oor
Diaphragm Wall Cut-o Wall Double Wall Floor
GL
Detail of Diaphragm Wall Detail of Steel Structure (Curve Roofs) Steel Plate Decorative Material Concrete Column Roof Membrane Heat Insulation Square Steel Steel Beam C-shaped Steel
Elevation Section 13
Raft Foundation

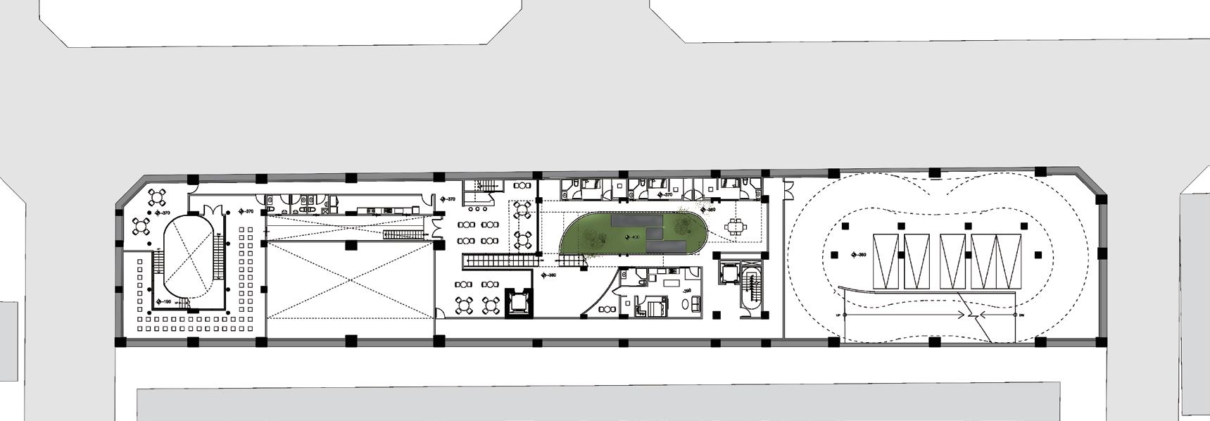
Climbing Gym / Physiotherapy Clinic

2023\ Taichung, Taiwan (Taichung Culture Park)\ 〔 Multi-functional Building 〕

14
Tutor: Zhuang, Shun-Hui

Analysis / Concept

Value of Historic Buildings

1. Background / Historical meaning

2. Variety participation of modern people

Existing condition and Problems

1. Single visiting ow ( Lack of interaction and view)

2. Unused space (Tourist Orientation, Unstable)

15
Site
N
Fuxing Rd Section3 Hezuo St Taichung Culture Park Cultural Heritage Path Site
view Distillery Distillery Japanese colonial period Japanese colonial period 1914 1914
& Restaurant Japanese colonial period 1914
Field of
Auditorium
Field of view Field of view

The silhouette is cut out following the concept of “mountain climbing” and “viewing”.

Cut and create the main entrance and important views of the historic building.

Cut the "climbing path" inward.

Combining the concept of rock climbing and the gazebo and creating various visual connections with the park.

Elevated Path (exterior)

Climbing Area

Physiotherapy clinic

Floor Directory
1 F 2 F 3 F 4 F
Development
A B C D 16
17 N 5 15 25m Cultural Heritage Path
+0 +5 +10 +15 +20 +25 +5 +0 +5 +10 +15 +20 +5 +0 +5 +0 Site Plan 〔GF〕 Outpatient Hall 1 2 3 4 Exercise Therapy Room Entrance 2 1 Bouldering Hall 3 Playground 4 A A Outpatient Hall / Bouldering Field B C C
Hezuo
St.
18 Floor Plan Second oor Third oor Fourth oor Clinic 5 External Bouldering Field Bouldering Field Counter 6 Counter (Bouldering Gym) 7 Shower / Restroom 8 Dining Area 9 Balcony 10 Reception (Restaurant) 11 5 6 7 8 9 10 11 D D Bouldering Field Counter F Balcony G Dining Area [3F] E E F G N 5 15 25m

South Elevation The physiotherapy clinic is on the west of the site facing the city, while the restaurant is located on the east side where people can overlook the park. The Climbing Gym wraps up and de nes the whole space. In addition, climbing elds will surround the entire building as the core of my design.

Longitudinal Section

19
Kitchen GL Physical Therapy Room Parking Lot Parking Lot Dining Area Bouldering 5 S: 15 25m

Pavilion of Ecosystem

\ Extreme Climate Zone \ 〔 Pavilion 〕

Tutor: Chen, Yan-Ting Teammate: Lai, Hsuan-Yu

Personal Contribution: Concept Setting, Form Shaping, part of Rendering Award: The Architecture MasterPrize-Honorable Mention International Design Excellence Awards-Finalist iF Design Talent Award-Winner

21
22
23
24
25

Research Focus \ Application of Big Data in Architecture \ 〔 2023 〕

In 2023, I participated in The Why Factory's big data research project in Prague. We systematically divided tasks to establish a dedicated database and used data-driven analysis to propose innovative and sustainable research ideas for the future. Finally, we substantiated the feasibility of our proposals through data analysis.

26

Architecture Regeneration \ 〔 2023 〕

The regeneration of old buildings has been a long-standing concern of mine. The fusion of old and new elements allows us to revisit history from a completely fresh perspective. During my travels in Europe, I was motivated by this theme and paid attention to various architectural regeneration projects, gaining inspiration from them.

27
NDSM, Amsterdam Serpentine North Gallery, London V&A Museum, London King’s Cross Station, London The British Museum, London Coal Drops Yard, London
Research Focus \
Stedelijk Museum Amsterdam Timmerhuis, Rotterdam Tate Modern, London London

Internship Program

2022.1-2022.3

Residential space - Detail model producing, Small interior designing Cabin - Detail model producing 2022.7-2022.9

Hostel&Cafe - Detail designing, Interior model producing

B&B - 3D model producing, Detail designing, Program analyzing

Cabin - Structural model producing

ITRI Project - Site model producing

28

The End

selected works 2020-2023 Deparment of Architecture National Taiwan University of Science and Technology PIN-HSI SUNG Portfolio

Turn static files into dynamic content formats.

Create a flipbook
Issuu converts static files into: digital portfolios, online yearbooks, online catalogs, digital photo albums and more. Sign up and create your flipbook.
Portfolio [2020-2023] by cici0407 - Issuu