Architecture Portfolio - 2025 - Christine Chege

Page 1


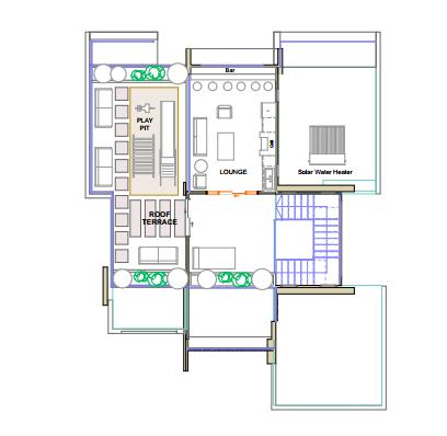
Ground Floor: 3D Floor Plan

Elevation 01: Front Elevation
Elevation 02: Side Elevation
Cabin 01: Elevation

Design Concept Stage: 3D Visualisation

Car Track: 3D Detail

Office Design: Details

Demo Space: Ceiling Details

Reception Batten wall: Interior Elevation

Design Concept Stage: 3D Visualisation

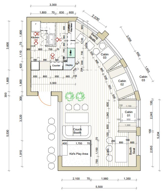
Layout Plan

Turn static files into dynamic content formats.

Create a flipbook
Issuu converts static files into: digital portfolios, online yearbooks, online catalogs, digital photo albums and more. Sign up and create your flipbook.