INTERIOR ARCHITECTURE PORTFOLIO

![]()

SHOWROOM DESIGNER
ModernContempo - N Bethesda, MD
2023-2024
Responsible for building company's locations & services through ID, R&D, media campaigns, and in-house events
Created a 3D asset library of all collections
Track + purchase inventory based on current style trends and analysis of best-selling products
Organized deliveries and client purchases
Opened two additional showrooms and secured a $1.5M client during my tenure
INTERIOR ARCHITECT
DLR Group - Chicago, IL + DC
2021-2023
Gained focused experience in hospitality design while also working on projects with other sectors (including education and retail)
Helped on multiple R&D research projects related to mental health in the workplace
Excelled in client-facing tasks
SHOWROOM COORDINATOR
Carnegie Fabrics - Chicago, IL
2019-2020
Prepare curated material packages for and aided interactions and needs of VIP clients
Regularly update firm and studio material libraries with latest products and collections
Host events and presentations for designers to learn more about the products
ACADEMICS
Interior Architecture BFA 2022
Columbia College of Chicago
Interior Design Certificate 2017
New York School of Interior Design

christi.bromley@gmail.com
301.964.1025
PORTFOLIO - CLICK HERE
Hello! I'm Christina, a bubbly, jackof-all-tradesinteriorarchitectwitha passion for creating psychologically well spaces. ~90% of our time is spent indoors, so it's important to considerthepossibleimpactonour mental & physical well-being. My goal is to build the field of design psychology while creating holistic, healthyspaces.
Revit, SketchUp, Adobe Suite, AutoCAD, Mural, Hand Sketching, Bluebeam, Procreate, Deltek
SECTORS
Hospitality, Workplace, Residential, Education, Government, Retail, R+D
PASSION
I’m a laser cutting artist specializing in the use of mirrored acrylics! My focus is on the manipulation of reflective surfaces and their interactions with light.
Sustainable development is the masterful balance of meeting our own needs

while preserving future generations' ability to do the same




Recently retired from a rigorous medical practice in the east coast, this individual was looking for a forested retreat for themself and their extended family. Mountain modern was the established aesthetic goal, and with a mix of rich, complimentary natural textures and tones, that’s exactly what we created. The core of the home quickly became a large, custom island (nicknamed “The Continent”) for entertaining and hosting loved ones. The breathtakingColoradomountainscreateanidealbackdropforthishideaway.





















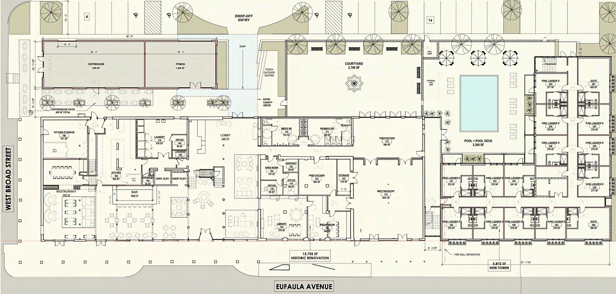
Nestledintheheartofasmallsoutherntouristtown,thishotelrenovationprojectfocusesontransforming thespacetoreflectthecharmofitssurroundingsandreviveit’shistoricsouthernhospitality.










Oneveryjourneytherearecharms,littlemomentsonatripthatmakeyoulookbackon howspecialitwas.Eufaula,ALissaturatedinthisbeautyandholdsuniquetreasuresfor everytraveler.Charmrunsdeephere,andinspiredourconcept.





ethingyoufind,it's youcreate.


Balanceisnotsomethingyoufind,it's somethingyoucreate.









Phase 1: Prototype


Phase 3: Final Model
Phase 2: Redesign

Phase 4: Final Print






























"The fact you feel there's no safe place for children in this city is exactly why you MUST make a space for them."
- Dave Broz Senior Principal at Gensler
Inresponsetomyconcernsofchoosingthisproject
We spent months researching the transition of State Street before, during, and after the pandemic. What we discovered wasthattheonceoverflowingshoppingstreethadclearedout likeaghosttown.Weknewwehadbothanopportunityand responsibilitytoRe-Imagineourdowntownandwhoitwasfor.
Thisresearchwentontoserveasafoundationforreal-worldchangewhen Dave Broz and the Loop Alliance created LaSalle ReImagined to revitalize downtownChicago. "It'stimetoattackthedrawlwithsubstance!"-BruceMau





























art. technology. therapy.
theworld. nap. support wing. entry.

mezzanine. level one. lower level.





Childrenareoneofsociety'smostimportantgroups;they'realsoourmostv -especiallythoseinthefostersystemwholackreliablephysicalandemoti Wecannotcontroleveryenvironmentafosterchildfacesdaytoday,butwe opportunitytoprovidethemwithoneconsistentspacewheretheyfeel comfortable.Aspacethatwillpromoteprogressionthroughself-empowerm environmentthat'llenrichthemfrombeginningtobeyondthefosterprocess



garden. dining hall. n play. vulnerable onalcare. ehavethe safeand mentinan s.


















3 Ridge View Road
Independent Project with Caribou Real Estate
Highlights: Residential design work Custom millwork throughout High End FF&E knowledge/sourcing
The Former House
DLR Group - Chicago's Hospitality Sector
Project led by Lawrence Michel & Vanessa Vu
Highlights:
FF&E selection and coordination
3D Rendering Space planning
Writer's Retreat
Detail Studio - Fall 2021
Highlights:
Detail & hand drawing
R&D and material studies
Fabrication capabilities (3D printing, laser cutting, and custom millwork)

fostered.
Final Studio - Spring 2022
Highlights:
Final project of undergraduate degree
Programing and furniture layouts
Evidence-based design
Revit comprehension