Christian Sendjaja- Portfolio

Page 1

Christian Sendjaja portfolio

Nature'sEdge

Reimagine Marina South pier (Final year project)

SiteLocation:MarinaSouthPromenade

Site History

Marina South is a S ingapore seaside area. The region w as h istorically part o f the coastal environment and w as used f or fishing and m aritime operations. M arina

South has seen major urban alteration as Singapore has grown over the years.

Marina South's transition highlights Singapore's urban p lanning and development initiatives, emphasizing the merging of natural and man-made features to create a vibrantand sustainable coastal region.

FutureDevelopment

A 10minuteNeighborhood

The10-minuteneighborhood isan urban planning conceptthataims tocreatecommunities whereresidentscan get themajorityof theirdaily needswithin a 10-minutewalk, This technique raisesoverallquality of life while increasingsustainability and reducing demand forautos.Here aresomeof thekeyfeatures ofa10-minuteneighborhood:

• Mixed-Use Developments:Mixed-use developmentisattheheartofa10-minuteneighborhood. Thisentails combining residential,commercial, and recreationalspaces inthesamelocation.Residentscannow live,work,and playincloseproximity, reducingtheneed forlong commutes.

• Pedestrian-FriendlyDesign: Theneighborhood’s layoutshouldfavorwalkersand bikers.Residentsmay walk orbike totheirdestinations becauseofwide sidewalks,bike lanes,and pedestrian-only zones.

• Community Engagement: Residentsshouldhavearoleinthedevelopmentand upkeepoftheirarea.Community involvementand participation indecision-makingprocessesarecriticalforinstilling afeeling ofbelonging and ownership. Publicparksand green areasarenecessaryforrecreationandcommunity events.

• Accessibility: Theneighborhood shouldbeconstructed suchthatindividuals ofallagesand abilities may enjoyit.Ramps, elevators, and braillesigns areexamples ofsuch elements.whileremaining sustainable.

How currentlySingaporefightclimate change.

Thegovernment hasimplemented severalstrategiestocombat thisissue and to increaseresiliencetothisthreat.

This is existing and planned measures to protect many of these low-lying areas. However, thereis no one-size-fits-all approach to protecting the country’s coastlines.Fromnature-based toman-made solutions,let’stakeadeeperlook.

1.Nature-based solutions

2. Hard infrastructures

3.Climate science

1.Underutilized Space. 2. Water Stagnation. 3. Insufficient Drainage. 3.Lack of Connectivity
.

SiteAnalysis

Design concept

Our coastalinitiativecombinesengineered andnaturalsolutions totacklethechallengesposedbyrisingsealevels.We areelevatingtheseawall tosafeguardagainststormsurgesandfloodingwhilesimultaneouslyestablishingawetlandarea,nestledwithintheproject’sdesigncurve,to absorbexcesswaterandprovideahabitatforwildlife.

Incorporatedintoourprojectisanatureeducationzonewherevisitorscangaininsightsintothesignificance ofwetlandsandothercoastalecosystems.Additionally, weareintheprocessofconstructingawaterplaygroundandasurfswell,bothofwhichwillserveasspacesforrecreation andcommunitygatherings.

Using thetheroadshape tomakeagridpattern Adding thecurveto softentheedge Thecurveisusedtolurethe visitortoasencicview.

Futureuseranalysis

·Young Professionals and Couples

·Empty Nesters and Retirees

ModelMaking

Formyfinalyearmodel-makingproject,Iwasdeterminedtogiveitmybest.However,giventhetime constraintsandthefactthatIwasworkingonitalone,Ihadtobeincrediblyeffectivewithmytime management.Ichosetotrylasercuttingforthefirsttimeinordertogetthebestresults.

Toensurethestructuralstabilityofmymodel,Icarefullypickedavarietyofdifferentwoodkinds, includingbirchandbalsa,forthisproject.Birchwaschosenforitsstrengthandsturdiness,asitwould provideafirmbasisforthecurvingpartsandbridgeinmydesign.Thesecurvedandbridgecomponentsrequiredmaterialsthatcouldsupporttheirshapeswhileremainingstable.

Additionally,Ifocusedoncolorcontrasttoachieveavisuallystrikingmodel.Byusingvariouswood typesstrategically,Iensuredstructuralstrengthwhileenhancingtheoverallaesthetics.Thismeticulousapproachresultedinacaptivatingandtechnicallysoundfinalyearproject,meetingmyhigh standards.

OXYSTREAM STUDIO WORK 2022

SiteLocation:RochorCanal

SiteAnalysis

SWOT

Strength:

Open spaces on site allows for a breezy experience Quiet

Sense of history and belonging

No roadblocks

Enough playgrounds and play facilities for kids

Convenient transport and easily accessible

Opportunities:

River rectif cat on

Sitting areas can be added

Stray animal charity

Community activity sites

Weakness:

Intense heat

Lack of shlters

Wild cats

Bad water quality

Inconvenience life

Dirty ground

Threats:

Exposure to Covid-19

Insects

Bicycles are not placed neatly and the overall environment is not good looking.

Nature-Inspired Inclusivity: Reshaping Spaces for Our Community

With Singapore's aging population in mind, we prioritize Universal Design, ensuring that our facilities are accessible to all users, especially in emergency situations. With 'all-ramp access' and well-constructed walkways with railings, safety and mobility are prioritized. Seating intervals along these walkways provide handy resting areas for the elderly, while nonslip surfaces and nighttime lighting improve overall safety. Our landscaping decisions go beyond just beauty to support health and well-being. Perennials, Shoreline Trees, and Groundcover Plants are purposefully planted to mimic the natural randomness of a forest, promoting ecological succession. Through Nature-Inspired Design, we hope to promote inclusivity. We provide Therapeutic, Edible, and Fauna Gardens to people of all ages. 'Retreat,' 'Engage,' and 'Create' activities augment living experiences, ensuring a meaningful retirement for our community.

Furthermore, OXYstream has a tailored rain catcher canal that serves as a playground for children as well as an innovative water-efficiency solution.

Conceptrender

SolvingNeighborhoodIssuesOneataTime

As Singaporeisfacing asignificant demographic shift,withover25% ofitspopulation projectedtobeover65by2030,compared to14.4%in 2019.Toaddressthis,we’rereimaginingurbanplanning, focusing on ‘SustainableNature,’ ‘Physical Wellbeing,’and ‘Sense ofCommunity.’OXYstreamcontributes byofferingaversatile solution,including Therapeutic,Edible, andFaunaGardens, benefitingboththeelderly and younger generations. Our ‘Retreat,’ ‘Engage,’ and ‘Create’ activities enrichtheliving experienceforall, ensuring ameaningful retirementfor everyoneinourcity.

UnWIND STUDIO WORK 2022

SiteLocation:104CDepotRoad

SiteHisory

BukitMerah,oncecharacterized byfarmsand smallvillages,hasnowbecomeathrivingurban center,embracingmodernity whileretaining traces ofits heritage.Depot Road,in its earlier years,bustled with industrial activity,featuring numerous warehousesand factories.Today,it has evolvedinto adynamic part ofthe city,wherethe legacyofitsindustrial past merges seamlessly with contemporary developments. Meanwhile, Telok Blangah has also seen substantial growthandchange,asitadaptstothedemandsofurbanlivingwhilepreservingitsnaturalbeautyandwaterfrontcharm.

Topography

10-50m 50-80m 85-90m
MarcoPlan MarcoSection
Land-use(Park) Land-use(Business) Land-use(Residential) Land-use(Educational& ReservedSite) Land-use(Civic& Community) Land-use(Residential& Commercial)
MarcoPlan MarcoSection Topography
Ecology RoofDetail SensoryAnalysis(Views) WindTunnel MarcoSection RoofDetail(Drainage)

YOUNG NATURE

Section A-A

ELDER

Site Plan

SCHEMATIC PLANNING

Designaversatile programthatfostersinteraction withinthespace,cateringtoindividualsofallages. Thisincludesprovidingsereneareasforsolitude,opportunitiesforcapturingthebeautyofnature throughphotography, wildlifeobservationzones,andcommunalspacesaimedatnurturing asenseof communityspirit.

Section A-A

PROJECT BRIEF

A securesanctuarycateringtoindividuals ofallages,fosteringaconnectionwithnaturewhileensuringsafety. Throughout theday, thislocationoffersvariousopportunities fordifferentgroups. Inthemorning andafternoon, it becomes agatheringplaceforseniorstosocialize withtheirbuddies, engaging inconversationsandperhapseven bringing theirpetbirdsforsunbathing and bird-watching.Laterintheday, asstudentsreturnfromschool,thesame spacetransformsintoaneducationalhubwheretheycanexploreandacquireknowledge aboutnaturewhile also havingfunandtakingabreatherfromtheirdemanding studies.

Thissiteprovidesnumerousbenefitsbyleveraging TelokBlangah Hill’sabundant wildlife.Forexample, giventhe proximityofnumerouschildcare facilities,thislocationcanserveasaneducationaldestinationforyoungchildren toconnect withtheirnaturalsurroundings, providing aricherand moreimmersivelearningexperience thantraditionaltextbooks. Furthermore, itoffersapeaceful havenforhardworking adultslooking forabreakfromtheir hectic,fast-paced lives,allowingthemtode-stressandrelax.

Whatmakesusdifferentfromothers?

With ourconceptwe want 104crooftopcarparktobeonewith naturewhile alsobeingecofriendly asUnwind triestousenaturetocooldown during ahotday theareabyharvestingthestrongwindblowing fromnortheastto southwestandsouthwesttonortheast,byhavingthesheltertakingashapelike C & S,itallows thewind tobecapturedandspread throughthecarpark.Tocooldown theareatobemoresuitedforpeople togothere.Plus withthe helpofplantsweareabletocreatemoreshadestoo.

I chose wood, cardboard, and white foam board as the primary materials for this project due to their distinct and complementary characteristics. Wood provides durability and imparts a rustic aesthetic, making it an excellent choice for the project's structural components. In contrast, cardboard is readily accessible, cost-effective, and easy to manipulate, making it ideal for prototyping and shaping the topography. Lastly, white foam board contributes to the project's construction due to its smooth surface, enhancing the final result with a clean and polished finish. Byblending these materials, I achieved a harmonious blend of strength, versatility, and visual appeal, ensuring the project's success and functionality.

Thisdrawing the property Nafaandwe the copyright toall designswhichcannot be itsdesign& fromtime timetosuit NOTES. NTR CTOR SITE PRI REV. DATE DESCRIPTION TIT E: PROPOSED PROJECT PROJECT DRAW GTITLE: O PL DRAWINGNO: 04 SCALE: 1:2000 DRAW BY CHRISTIANSENDJAJA CHECKED AN IM DATE: 25/09/2021 APPROVAL SIGNATURE: PROJECT DIRECTO LIENT PPROVED drawin pe tyof afa andwe reserve the copyright to allour designswhich cannot be design& fromtimetotime suit purp NOTES. DRAWINGS REV. DATE DESCRIPTION OJE TTIT E: PROPOSED ROJEC PROJECT OWNER: XXX DRAW NGTITLE: FLOORPLAN DRAWINGNO: 03 SCALE: DRAW BY CHRISTIAN NDJAJA O M DATE: 25/09/2021 APPROVAL SIGNATURE: PROJECT IRECTOR CL NTAPPROVED:
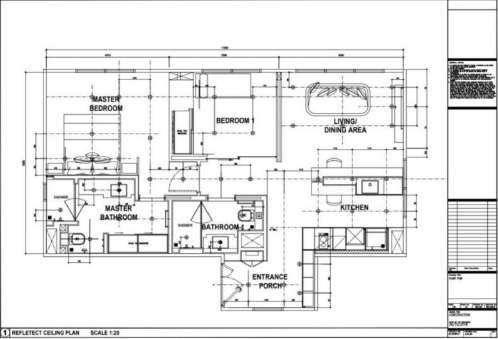
DRAWING MarcoPlan FloorPlanLevel1 FloorPlanLevel2 SectionElevation LocationPlan VegetationPlan
TECHNICAL
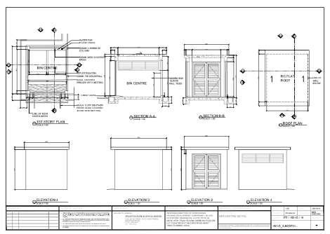
BATHROOM SECTION BOUNDARY WALLSECTION BINCENTRE DETAL ROOFDETAL
ROOFTOP FLOORPLAN 2BEDROOM FLOORPLAN

HanddrawnTechnicaldrawings

HanddrawnTechnicaldrawings

Sketches

Digitaldrawing

THANKYOU

Turn static files into dynamic content formats.

Create a flipbook
Issuu converts static files into: digital portfolios, online yearbooks, online catalogs, digital photo albums and more. Sign up and create your flipbook.