Christian Milleson - Selected Works

Page 1

CHRISTIAN MILLESON

SELECTED WORKS

A designer with a passion to design for people and a growing zeal for characterizing architecture through the lens of sketch.

Cleveland Amtrak Station TIDAL Piazza Brunelleschi: Urban Inference SYNAESTHETIC LABOR 04 Cleveland School for Media Arts Additional Creations TABLE OF CONTENTS 12 18 26 32 40

/SYNAESTHETIC LABOR

GRADUATE STUDIO | FALL 2023

synaesthesia (n.)

a concomitant sensation | especially: a subjective sensation or image of a sense (as of color) other than the one (as of sound) being stimulated.

A project that explores sensory experiences in the typical work environment, evolved as a curated series of procedures guided by artificial intelligence (AI), generating a seemingly synaesthetic product. Speculated to be sanctioned in Cleveland, OH, this graduate studio workflow encourages a cognisant implementation of various softwares to create what this project defines as a multiplicitous application of techniques resulting in a office space comprised of Synaesthetic Labor.

PROF. ANDY BAKO - NO WORK/LIFE STUDIO

04
PHASE 01 STEP 01 STEP 02

Through the re-writing of image DNA, a process

as data bending, visuals are

with ambient sounds of an office environment using audio software.

STEP 03
Step 01: Using MidjourneyAI to construct a library of AI-generated office vignettes (left page, top). defined infused Step 02: Medical-grade stacking software used to layer images. Result of artifacts that retain elements of their origins embeded in an implication of labor space (left page). Step 03: Artifacts reprocessed with office sounds, creating a series of dynamic evolutions. Select moments of evolving sequence (right page, above) projected onto physical objects (right page, right), futher enforcing application of digital manipulation and multiplicitous workflow.

STEP 04

STEP 05

INTERIOR VINGETTE

Step 04: Captures of Cleveland’s high-rise elevations collected and transformed into database of hybrid images enhanced with AI and databending (left page, left).

Images conglomerated into conceptual office stack artifact (left page, right) and volumetrically edited using stacking software.

Step 05: New artifact architecturally characterized with drawings, then futher processed with databending (right page).

SECTION DRAWINGS

PHASE 02
STEP 06

Step 06: Artifact fabricated using 3D printing technology. Rasterized acrylic panels integrated for physical representation of databent elements as facade component.

Select edited images from earlier explorations projected upon model, illuminating material, architectural, and textural details and treatments.

PHASE 03
LABOR
/SYNAESTHETIC

CLEVELAND AMTRAK STATION

GRADUATE STUDIO | SUMMER 2023

An application of free-market urbanism addressing the conditions of the Cleveland lakefront in terms of urban function, architectural displacement, and neo-mat generation.

While concurrently studying proposals and ideals for urban development adjacent to the Burke Lakefront Airport, students had the choice of developing one of the following comprehensive architecture design options: culinary institute, ferry terminal, or Amtrak train terminal.

This project recognizes the need for urban renewal, particularly for the relationship of downtown Cleveland and its lakefront amenities, currently segregated by the shore-front highway. By acting as an urban land bridge, this Amtrak station proposal becomes a directional transition of space, integrated with commercialism, recreationalism, and public interaction. A newly introduced greenbelt behaving as circulatory frontage to the station is a visual and social omen to the train hall entrance and establishes a fresh connectivity between the network of the train hall and the urban environment.

STUDIO

12
SITE PLAN

URBAN PLAN

IN COLLABORATION WITH SAM SCHROEDER

The implementation of a mass lamella waffle timber structure orchestrates the flow of movement within the train hall. The design embraces the ethos of urban renewal, integrating commercial ventures, recreational spaces, and public engagement. Anchored by an urban greenbelt, it serves as a visual and social conduit to the bustling train hall, while linking to the reformed landscape.

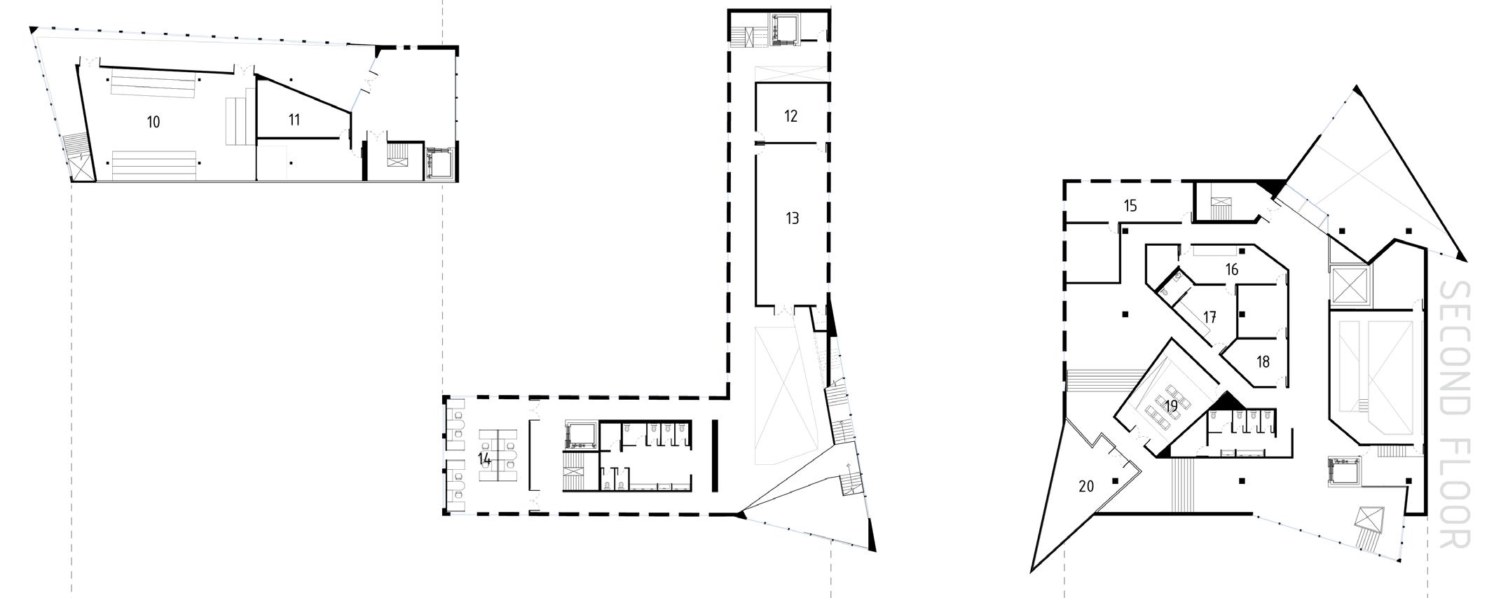
STUDIO YEAR IV | FALL 2022 CLEVELAND SCHOOL FOR MEDIA ARTS

An adaptive reuse proposal for a industrial production site in the west flats of Cleveland, OH. This project adopts a “cut and paste” concept, merging new forms into a rectilinear setting reminiscent of downtown Cleveland’s urban scale, proposing a design site for a media arts institution. The massing creates consistency and circulation, with program arrangement mindful of space connections. Traditional curriculum occupies the L-shaped storage building, while the warehouse-type structure houses larger production volumes, both with limited public interaction. Sound-sensitive areas are underground. The facade system mirrors site materials, blending old with new. Internally, a double skin facade allows for transformative spaces, accentuating connections between contrasting elements and driving the film school concept. The approach is analyzed for its synergy, conflict, or independence within the design.

PROF. STACIE BURTELSON - ADAPTIVE REUSE STUDIO
18

CUT + PASTE

Through exploration of oxymora, the project sustains the notion of “cut + paste” in which ‘cut’ is a subtractive method of mass from existing space and ‘paste’ is dignified by the additive approach of placing mass within existing form. The design adopts a consistant relationship between the two actuary methods, redefining space, material, and circulation within an existing buidling shell.

CUT + PASTE

01 - SCREENING ROOM

02 - MAIN LOBBY

03 - BROADCAST ROOM

04 - MEDIA CLASSROOM LAB

05 - OPEN STUDY LOUNGE

06 - OPEN OFFICE

07 - FACULTY LOUNGE

08 - LECTURE SPACE

SECTION PLANS

09 - FILM STUDIO

10 - BLACKBOX THEATER

12 - CLASSROOM LAB

13 - CLASSROOM

14 - FACULTY OFFICES

15 - EDIT SUITE

16 - MAKEUP

17 - WARDROBE

18 - CASTING ROOM

19 - COLOR CORRECTION

20 - EVENT LOUNGE

21 - IMMERSION ROOM

22 - PRESENTATION GALLERY

23 - CAFE

24 - VR STUDIO

25 - CLASSROOMS

26 - BROADCAST ROOM

27 - LOBBY

28 - SOUND STAGE

29 - FABRICATION LAB

30 - MOTION CAPTURE STUDIO

IMMERSION ROOM

PIAZZA BRUNELLESCHI: URBAN INFERENCE

STUDIO YEAR III | SPRING 2022

A project that unifies public and private sanctions of a space into an interactive, circulatory experience inherently designed as an urban-contextual inference of the existing Piazza Brunelleschi found in the grand city of Florence, Italy.

The historical site houses the University of Florence in which the original urban condition of the area (prior to the design proposal) lacks community engagement and imperative services for students. Urban Inference invites a community-based design into the piazza as an omen to the private university entry into courtyard of the school. It’s design and materiality reflects that of its urban context inclusive of pale traventine stucco, midieval-style pitch form roofs, and classic Renaissance arch thresholds. The fimiliarity of the design typoology nestles the campus into the site as if it is a belonging entity. This is further emphasised by the inferences of direct views to adjacent landmarks such as Brunelleschi’s rotunda and cattedrale di Santa Maria del Fiore- the famous duomo in Florence. The building shells encase programs like an exhibition, a library, auditoriums, study spaces, and a cafe. With this project proposal, both Florentine citizens and students can engage with the revitalized site that is Piazza Brunelleschi.

PROF. FILIPPO CAPRIOGLIO - FLORENCE STUDIO
26
SITE PLAN + AXON

This design invites a sense of scalar urbanism into the piazza conceived as pockets for community space and circulation.

Multiple design typologies, both historical and modern, are reflected within the context, materially and formally, reinforcing the inference of Florentine urbanism.

TIDAL

STUDIO YEAR IV | SPRING 2023

TIDAL is a social housing development paired with a grocery store in the Mission District of San Francisco, California. The design references an inherent diagnal intersection existing in the site and also refreshes the context with a curvelinear form. Wave-like elements mimic the concurrent expansion and retraction of tidal waves but represent this charactaristic in a static manner. A mass timber structure is housed within a pre-cast warm-tint concrete panel facade and expressed through exposed timber cladding in moments throughout the ediface. Both a public park (accessable by a feature stair ramp) and a private communal courtyard shared amongst residents are implemented to utilize the outdoor milieu of the building. Integrating these cooperative spaces enhanches the social relationship of the frequenting moments of convenience and the factor of inhabitance.

This project is in alliance with Timothy Wagner.

PROF. ADAM YARACS - INTEGRATED DESIGN STUDIO

32

STRUCTURAL PLAN 02

A design constituted by the integration of a VRF mechanical system, mass timber frame structure, articulated plumbing and electrical networks, community and commercial areas, 90 living spaces, and incorporation of greenspace.

EXTERIOR COMMUNITY SPACE ELEVATED COMMUNAL PARK COMMUNITY LEARNING STAIR DOAS UNIT GROCERY CONDENSING UNITS COMMUNITY LOUNGE 1661 SF COMMUNITY LOUNGE 1757 SF TRASH 60 SF TRASH 60 SF FITNESS 2268 SF MDC ROOM 114 SF MDC ROOM 114 SF ELEC. CLO. 64 SF ELEC. CLO. 64 SF 1 BED 652 SF 1 BED 692 SF 1 BED 693 SF 1 BED 697 SF 1 BED 691 SF 1 BED 696 SF 1 BED 693 SF 3 BED 911 SF 3 BED 979 SF 1 BED 655 SF 1 BED 675 SF 1 BED 707 SF 1 BED 693 SF 1 BED 700 SF 1 BED 689 SF 1 BED 678 SF 1 BED 660 SF 1 BED 653 SF 1 BED 653 SF 1 BED 650 SF 1 BED 682 SF 1 BED 697 SF 1 BED 667 SF 1 BED 700 SF 1 BED 653 SF 1 BED 653 SF 8.4° 9'-0" 12.5° 4.7° 0.7° 0.3° 3.6° 6.9° 10.5° 14.2° 17.7° 21.8° 9.1° 16.7° 11.9° 18.3° 22.4° 28.9° 31.7° 31.7° 31.7° 28.2° 28.9° 24.5° 20.6° 3.3° 6.7° 10.0° 13.3° 16.6° 19.8° 23.1° 25.9° 28.9° 31.7° 31.7° 31.7° 31.7° 4.2° 40'-6" 5'-6" 34'-5" 30'-7" 37'-6" 24'-0" 40'-0" 43'-6" 50'-0" 34'-0" 32'-6" 8'-3" 28'-3" 37'-6" 40'-6" 37'-6" 43'-6" 33'-6" 33'-6" 25'-6" 12'-9" 18'-9" 22'-11" 26'-0" 22'-6" 18'-9" 16'-5" 17'-1" 22'-2" 21'-2" 16'-6" 21'-2" 28'-0" 26'-0" 33'-6" 8'-8" 50'-6" 9'-0" 16'-0" 22'-5" 18'-1" 22'-11" 19'-5" 18'-0" 18'-0" 18'-11" 9'-0" 12'-5" 16'-0" 18'-0" 9'-0" 9'-0" 18'-0" 31'-10" F.8 F.8 A B H 24 23 22.5 G 22 21 20 F.9 19 17 16 15 14 F 1 2 D C.2 C.3 C.7 3 G.1 D.1 F.6 18 D.2 13 C C.1 12 B.7 11 B.8 10 B.9 9 G.3 8 7 G.2 6 5 4 1
STRUCTURAL LEVEL 02 X-BRACING SHEAR WALL
LEGEND:
INTEGRATED SECTION PERSPECTIVE

ONE-BEDROOM UNIT

TWO-BEDROOM UNIT

THREE-BEDROOM UNIT

2” TIMBER CLADDING INTERIOR FINISH 4” PRECAST PANEL FACADE PRECAST BRACING BATT INSULATION RIGID INSULATION FURRING STRIPS COLD FORMED METAL FRAMING 5 -PLY CLT FLOORING WOOD FLOORING FINISH CURTAIN WALL GLAZING MOISTURE PROOF CLADDING ALUMINUM FLASHING TAPERED CAVITY INSULATION DENSE-PACKED INSULATION ROOF JOISTS 3-PLY CLT ROOF PANEL OSB SHEATHING SEALANT PARAPET WALL ROOF MEMBRANE REINFORCED CONCRETE SLAB STEEL REBAR SOUND-ABSORBTION INSULATION 1’ EL 0’ EL 16’ EL 26’
EL
5’ 10’ DETAIL
EL 36’
48’-6”

SKETCHING + DRAWING ADDITIONAL CREATIONS

A collection of sketched creations from my travels in Europe as well as drawings from domestic sites. This section of the portfolio renders architectural environments as a series of lines driven from simple drawing media.

ALL WORKS COMPLETED BY

40
A FRENCH FOLLY | VERSAILLES, FRANCE
ON PAPER
INK

CHURCH OF ST. FRANCIS DE SALES INK ON PAPER

BARCELONA, SPAIN

MOMENTI DI ARCHITETTURA I | ITALY

INK ON PAPER

GRAPHITE ON PAPER

VENETIAN PALAZZO | VENICE, ITALY MOMENTI DI ARCHITETTURA II | ROME, ITALY
INK ON PAPER

GRAPHITE ON PAPER

CAED | KENT, OHIO
RIVER TOWN KENT | KENT, OHIO INK ON PAPER

Turn static files into dynamic content formats.

Create a flipbook
Issuu converts static files into: digital portfolios, online yearbooks, online catalogs, digital photo albums and more. Sign up and create your flipbook.