TFC | NUMEN | Christian Melatti + Guillermo del Puerto | Taller Martín

Page 1

numen

TRABAJO FINAL DE CARRERA (TFC).

Taller Martin. Facultad de Arquitectura, Diseño y Urbanismo. Universidad de la República. Montevideo, Uruguay. Marzo 2021.

AUTORES:

-Guillermo del Puerto

-Christian Melatti

TUTORES:

-Andrés Cabrera

-Ivan Lewczuk

DIRECTOR COORDINADOR

-Bernardo Martin

EQUIPO DOCENTE

Pablo Bacchetta

Andrés Cabrera

Gustavo Costas

Virginia Delgado

Javier Díaz

Juan Martín Minassian

Cecilia Tobler

Nicolás Borges

Rosina Cortegoso

Ignasio Ferreira

Florencia Fornaro

Ivan Lewczuk

Juan Ignacio Rodríguez

Alejandro Acosta

Sebastian Bernizoni

Diego Ferrando

Natalia Maeso

Fabian Sarubbi

Lorena Silva

Mariana Portas

ASESORES ACADÉMICOS

Andrea Gnesetti - Construción

Ignacio De Souza - Construción

Daniel Rapetti - Estuctura

Daniel Garcên - Sanitaria

Alejandro Scopelli - Eléctrico

Alejandro Vidal - Luminico

Santiago Garcia - Térmico

Martin Leymonie - Sustentabilidad

numen

8 numen
José Manuel Ballester - Reinterpretaciones de cuadros clásicos 2009 Imágenes retomadas en redes sociales en el año 2020 para hacer un llamamiento para que toda la población se quede en casa en plena pandemia.

ÍNDICE:

Cap 01. Aproximaciones

Arte

Conexión entre arte y naturaleza

Inspiración

Arte. Naturaleza contemplación La arquitectura en el arte

Cap 02. Contexto

Contexto cultural El arte en Uruguay

Cambio en la educación publica La ciudad como lienzo

Cap 03. Atmósfera

Naturaleza, Luz y sombras La materia La monumentalidad Promenade Architecturale

Cap 04. Enclave

Nueva Helvecia Colonia Suiza

Naturaleza, monte nativo

Molino, paso de la tranquera

Patrimonio

Cap 05. Proyecto

Memoria proyectual “numen”

Programa

Master plan - Gestion

Gráficos proyecto

Cap 06. Construcción

Pabellon 1- Acceso

Pabellon 2- Central

Pabellon 3- Ruina Sector Tecnico

Cap 07. Unidad de detalle

Gráficos

Cap 08. Estructura

Cap 09. Infraestructuras

Cap 10. Interefencias

Cap 11. Cierre

9 numen
Memoria calculos Plantas de estructura Detalles
Sanitaria Electrico Luminico Termico Incendio Sustentable
Gráficos
Pag. 12-13 12-13 14-15 16-17 18-19 62-65 66-67 68-69 70-81 22-23 24-25 26-27 28-29 84-91 92-103 104-121 122-125 128-167 170-171 172-191 192-201 204-233 234-253 254-275 276-289 290-301 302-307 310-315 318-319 32-33 34-35 36-37 38-39 42-43 46-49 50-53 54-55 Pag.
Biografia- Agradecimientos

Aproximaciones

Capitulo 01

12
Aproximaciones
Maurizio Cattelan - Comediante, obra de arte 2019

Arte

La relación de los seres humanos con la naturaleza ha sido quizás el primer tema en aparecer en la historia del arte. Su representación gráfica aparece en el paleolítico, el binomio arte-naturaleza ha variado su significado en cada época: en la antigua Grecia el arte imitaba a la naturaleza, durante el romanticismo elogiaba a la naturaleza por su carácter sublime mientras que en el impresionismo se hizo énfasis en la luz y la temporalidad de la naturaleza.

¿Pero hoy en día qué rol cumple el arte en nuestra sociedad? ¿Cuál es la importancia del artista en estos tiempos de fuertes cambios que estamos viviendo? Cuando hablamos de arte no podemos dejar pasar por alto la inspiración artística- Numen, nombre con el cual hemos decidido llamar a nuestro trabajo final de carrera.

Siendo que el arte es toda aquella creación y representación realizada por el hombre que intenta expresar y mostrar una percepción sentimental sobre su mundo, mostrando diferentes sentimientos, emociones, ideas y puntos de vista.

Conexión entre el arte y naturaleza

En la creación artística de nuestra época quizás sea necesaria una búsqueda de sentido desde la conexión ecológica. La naturaleza puede adquirir connotaciones espirituales al despertar la conexión con uno mismo, autoconocimiento en relación con el todo, desde una visión holística de la realidad.

El artista moderno habitualmente considera que no es necesario copiarla, sino acercarse a ella para acceder al paisaje interior, a nuestra realidad personal más íntima.

Una obra de arte en numerosas ocasiones no es fruto simplemente de una operación conceptual o racional ajena a nuestra realidad más íntima, sino que más bien puede concebirse como un instrumento desarrollador del conocimiento personal y del crecimiento espiritual.

El filósofo alemán Wilhelm Schmid valora como muy necesaria la instauración de una Modernidad transformada desde lo que denomina la nueva utopía de una sociedad ecológica y social.

”...la unión que se siente con la naturaleza alberga desde siempre mucho sentido en su interior. Los seres humanos encuentran consuelo en la contemplación sensorial y en la experiencia de la naturaleza, de la que pueden extraer fuerzas renovadas, y la naturaleza puede proporcionar esa experiencia de sentido, ya que en ella todo está interconectado de forma manifiesta (...). La nueva orientación del pensamiento, que pone al descubierto estas conexiones de sentido, nos conduce hacia una atención reiterada a las conexiones ecológicas y a establecer de nuevo un vínculo con la naturaleza...”

Schmid, W. La felicidad. Todo lo que debe saber al respecto y por qué no es lo más importante en la vida, Pre-textos, Valencia, 2010, p. 48

13 numen
14 Aproximaciones
Peter Zumthor- Conferencia impartida en junio de 2003

Inspiración

Un concepto capaz de definirse de diferentes maneras, el cual está arraigado en la cultura mundial desde tiempos remotos como esa energía inspiradora que es capaz de surgir de forma inesperada y hacernos crear cosas fascinantes, que han podido dejar a través de los años obras artísticas sorprendentes e inventos que han sido capaces de cambiar el curso de nuestra historia, pero, ¿cómo nace esa inspiración?, ¿somos capaces de provocar la inspiración?.

Estudios señalan que por el momento no es posible, pero sí se la puede estimular a través de tareas simples, la misma surge cuando menos lo esperamos, en tareas donde el cerebro está reposando, tareas que no necesitan mucha atención. Es entonces cuando se activa la red neuronal por defecto, esta red está compuesta por partes determinadas del cerebro.

¿Pero, es capaz que un lugar físico arquitectónico pueda contribuir a la inspiración artística?

Peter Zumthor en su conferencia “Atmósferas” de junio del 2003, la cual se transformó en un libro que nos marcó en nuestro proceso como estudiante dentro de la facultad y recurrimos a él en diferentes oportunidades, el mismo nos habla de una sensibilidad emocional, una percepción que funciona a una increíble velocidad y que los seres humanos tenemos para sobrevivir. Hay algo dentro de nosotros que nos dice enseguida un montón de cosas; un entendimiento inmediato, un contacto inmediato, un rechazo inmediato. Se plantean

nueve puntos los cuales vamos a nombrar y nos quedaremos por el momento con uno en particular. Ellos son, El cuerpo de la arquitectura, La consonancia de los materiales, La temperatura del espacio, Las cosas a mi alrededor, Entre el sosiego y la seducción, La tensión entre interior y exterior, Grados de intimidad, La luz sobre las cosas y El sonido del espacio, citaría todo lo que dice en este punto, pero me quedo con estas frases:

”…Por desgracia, hoy en día mucha gente no percibe el sonido del espacio en absoluto. Sí, el sonido del espacio…”

” … hoy en día que nuestro mundo es tan ruidoso. Cuesta mucho conseguir que los espacios cobren sosiego y desde el silencio, imaginarse cómo sonará el espacio con proporciones y materiales adecuados…”

Si desde lo sensorial se puede apreciar una buena arquitectura y ésta nos puede transmitir tantas cosas desde lo emocional, así como cuando miramos una pintura o escuchamos una música lo es capaz, ¿ésta no nos aportaría a la inspiración artística de manera inconsciente?

Y si le sumamos a esta un ambiente en el cual la vegetación cobra un papel fundamental en un lugar aislado, en el que es posible dejar atrás el ruido de la ciudad y conectarse con uno mismo y su arte.

15 numen
16
Aproximaciones
Caspar David Friedrich- Landscape with Temple Ruins 1797

Arte. Naturaleza contemplación

En las culturas del pasado y de la actualidad se pone el acento en la interdependencia entre el hombre y la naturaleza, sin llegar a establecer una clara división entre ambos. Deberíamos tener en consideración que durante cientos de miles de años la humanidad se sintió profundamente unida a su entorno natural y como parte integrante del mismo. El ser humano actualmente se ha alejado en exceso de la naturaleza y ello está generando unas consecuencias nefastas, capaces de afectar a nuestro bienestar. Una de las funciones básicas del arte es poner en evidencia la continuidad fluida que existe entre sujeto y objeto, y que la actividad artística nos aporta un sentido cósmico de nuestra existencia. Los vínculos que el hombre establece con la naturaleza como hábitat que lo acoge, pero también como nexo de unión con la inmensidad del universo. Un sentido cósmico que nos recuerda insistentemente nuestra incapacidad para asumir límites cuando el artista está conociendo el mundo,

también busca el conocimiento de su ego. Con la observación pausada del ilimitado universo y la apreciación interna del ego, el artista logrará tener una visión lúcida y verá con claridad aquello que quiere expresar. Es evidente que el vínculo con la naturaleza puede potenciar el conocimiento personal y generar el despertar de nuestra conciencia:

“Quien se dirige a la naturaleza con los sentidos despiertos puede encontrar en ella un manantial de extraordinaria riqueza que contribuya a lavar las telarañas que se ciernen en lo más profundo del ser, preparándonos para enfrentarnos a nosotros mismos e iniciar asi, la ardua tarea del autoconocimiento”.

García, A. «Hacia el paisaje», catálogo Towards landscapeHacia el paisaje, CAAM Canarias, 1990, p. 13.

17 numen
18
Aproximaciones
“El Estado del Arte de la Arquitectura”. Imagen © Hedrich Blessing. Bienal de Arquitectura de Chicago

La arquitectura en el arte

Desde hace ya mucho tiempo se pueden escuchar diferentes opiniones sobre si la arquitectura es un arte o no; para muchos es considerada como la madre de todas las artes por tomar cosas de cada una de las diferentes corrientes artísticas y poder utilizarlas para la creación de un espacio habitable. Al momento de realizar un anteproyecto, sí es cierto que uno va adquiriendo aprendizajes y experiencia a lo largo del tiempo, pero siempre surge de nuestra conciencia la primera idea, por lo tanto por qué no llamarla “numen” y dejar que esta sea quien nos guíe para poder desarrollar la obra.

El arquitecto Philip Johnson declaró alguna vez: “La arquitectura es arte, nada más”, y el ganador del premio Pritzker, Richard Meier, afirma que la arquitectura es, de hecho, “la más grande de las artes”. En 2011.

Un ejemplo que nos gustaría citar como argumento para dicha disputa de pensamientos, es la escuela de artes más influyente en la arquitectura.

La Bauhaus, es un claro ejemplo de cómo una corriente se transformó en su propio movimiento de arte moderno caracterizado por su enfoque único hacia la arquitectura y el diseño.

19 numen
Capitulo 02
Contexto
22 Contexto
Clase virtual por plataforma zoom

Contexto cultural

Ponernos a hablar hoy en día sobre el contexto cultural por el cual transcurrimos no es algo sencillo, la realidad cambió mucho en estos últimos dos años pero sin duda el 2020 va quedar grabado para siempre en nuestra memoria y en las páginas de nuestra historia, la pandemia en la cual todavía vivimos al día de hoy nos mostró lo frágil que aún somos como humanidad, nos unificó al punto de romper todas las barreras geográficas, algo que hace unos años veíamos como imposible, sin discriminar culturas, razas o situaciones económicas, la incertidumbre pasó a ser algo presente en nuestras vidas. Arraigado al gran impulso tecnológico el cual nos permitió romper las barreras de la globalización, poder llegar en menos tiempo de un punto al otro en el planeta en el que vivimos contribuyó a que el virus fuera de carácter mundial rápidamente. De igual manera dichos avances tecnológicos nos llevaron en poco tiempo a ser la forma de contactarnos con las personas que ya no podíamos estar frente a frente, abrió un mundo de posibilidades desde lo digital, las

trasmisiones en vivo se hacían más masivas día a día a través de nuestros dispositivos móviles, un mecanismo capaz de llevar a las masas el arte en todas sus expresiones. Lo viral, pero en el sentido tecnológico se hace cada vez más común, la música que antes era difícil de hacer llegar a todas partes hoy ya no lo es de esa manera, las plataformas de contenidos digitales hoy en día son cada vez más fuertes y desplazan a las trasmisiones televisivas. Pero, ¿estamos preparados para tanta información? ¿Cómo nos afectó el encierro? Creo que esto nos va a llevar varios años lograr asimilar y ver realmente el impacto que nos dejó. Sin duda podemos notar cambios en lo cultural y darnos cuenta que necesitamos la interacción social, los eventos masivos cada vez se hacen más necesarios. Hay una necesidad de expresarnos, transmitir.

23 numen
Fotografías analógicas realizadas por Braian González, Performance vídeo clip FuegoHelen Olhausen , Capilla Susana Soca 2020

El arte en Uruguay

Nuestro país está fuertemente marcado por el arte, sin olvidar que somos un país a base de la migración de diferentes culturas de países europeos. Esto nos lleva a estar fuertemente marcados. La posibilidad de estos vínculos, nos llevó a que muchos uruguayos lograron viajar por el mundo, estudiar y generar muchas obras inspiradas en las verdaderas cunas del arte, así como traer obras de arte y objetos europeos, tanto franceses como españoles, ingleses, italianos, etc. Conocieron el Modernismo, el Art Decó, la Bauhaus, la pintura y la escultura europea. Hablando más en lo inmediato esto se pudo ver en la muestras de la Bauhaus realizada en agosto del 2019 donde la consigna de la misma fue que los elementos de la exposición fueran conseguidos dentro del país donde se presentaba la muestra para mostrar la gran magnitud que tuvo la misma y como fue un fenómeno mundial. En Uruguay contamos con grandes figuras del arte, como lo fueron Blanes, Figari, Joaquin Torres Garcia, por citar algunos, y de las letras que han creado escuela, que han traspasado la frontera y dejaron obras increíbles. Hablando un poco más en la actualidad tenemos figuras como Pablo Atchugarry, en la escultura; en otras áreas tenemos a un montón de artistas musicales, muralistas, cineastas, fotógrafos y arquitectos, los cuales dejan su huella en el mundo entero.

25 numen
26 Contexto
Recorte de diario, La Diaria Colonia 30 de agosto 2021

Cambio en la educación publica

Durante los últimos años en nuestro país fue posible gracias a la reforma de bachillerato del 2006 contar con una opción que rompía con los clásicos bachilleratos de orientación humanística, biológica y científica. Este es el llamado bachillerato artístico, una propuesta que era capaz de guiar al estudiante desde 5° de liceo en los primeros pasos para una carrera vinculada al arte, dentro del mismo es posible tener materias de comunicación visual, expresión musical, historia del arte, entre otras. A nuestro entender, abrió un mundo capaz de vincularse más al arte desde temprana

edad. Al principio no fue tarea sencilla, ya que no estaba disponible en todos los liceos, y a muchos del interior les tocó tener que trasladarse para poder ser parte de éste, en mi caso me acuerdo de estar en bachillerato científico para hacer arquitectura cuando se empezaron a movilizar en mi liceo para poder hacer llegar el mismo, y lo logramos. Hoy en día es posible tener esta opción y es más gratificante tener amigos que lucharon para que esto fuera posible, siendo docentes de fotografía, audiovisual y música. Hoy nuevamente en el 2021 el presente gobierno busca uni1car los bachilleratos en uno único, lo que nosotros vemos como un retroceso, hoy la lucha es por no perder este derecho.

27 numen
28 Contexto
Obras de arte Colectivo Licuado viaducto de Paso Molino. Foto: Francisco Flores

La ciudad como lienzo

Este título no es algo aleatorio, sino que busca recordar la polémica que se generó hace unos meses durante el 2021 por el comunicado sacado por parte del instituto de historia de nuestra facultad, titulado “la ciudad no es un lienzo” en el cual se criticaba la obra del artista muralista José Gallino, dentro del cual el instituto demostraba su preocupación por la arquitectura que no está dentro de la protección patrimonial.

A nuestro entender no fue de la mejor manera, acá estamos delante de un problema mucho mayor que como arquitectos y urbanistas tendríamos que hacernos cargo, sin contar que también como sociedad, el abandono y deterioro de muchas obras arquitectónicas es nuestra responsabilidad, así como en muchos casos los problemas urbanísticos y una mala resolución desde lo arquitectónico nos lleva a generar lugares dentro de la ciudad los cuales no responden a los mejores criterios urbanísticos.

Destacamos que sí hay lugares donde estas intervenciones artísticas han cambiado la imagen de la ciudad, como lo es el caso del puente del paso molino, con una obra artística del colectivo “licuado”, el cual transformó un espacio donde lo urbanístico pasó a un segundo plano con el fin de una conexión vial, así como está pasando en otros puntos de la ciudad actualmente.

29 numen

Atmósfera

Capitulo 03

32 Atmósfera
Capilla de Bruder Klaus. Foto: Aldo Amoretti

Luz y Sombras

En nuestra atmósfera del proyecto estos dos elementos forman un papel fundamental, tan grande como la naturaleza, porque ella en su esplendor los contiene, el monte nativo es capaz de tamizar la luz de tal manera que crea diferentes sensaciones, y esto es lo que queremos también tener reflejado en nuestra arquitectura, en este sitio.

Queremos generar una arquitectura de tal forma que sea capaz de hablar a través de dichos elementos. El manejo de la luz ha estado presente en obra de diferentes arquitectos de los cuales hemos aprendido a lo largo de la carrera, las obras de Zuhmtor, el juego de volumetrías en las termas de vals y la capilla de campo Bruder Klaus. RCR también maneja mucho el tamizado de la luz, componiendo con las sombras, Louis Kahn en sus obras juega con las geometrías y el pasaje de la luz, acercándonos un poco más Oscar Niemeyer arquitecto que conocemos sus obras desde hace un tiempo atrás, maneja una arquitectura en la cual sus elementos son bañados con luz a pleno como es el caso de Brasilia, en el cual las sombras marcadas forman parte de su composición, así como la misma pasa por los vidrios de la catedral

de Brasilia bañando todo el espacio interior. Ahora llegamos a Uruguay dónde quiero destacar dos obras que nos sorprenden con el tratamiento de la luz; la capilla de Soca, en la cual la luz entra de tal forma que las sombras arrojadas generan una atmósfera única, y por supuesto, como no nombrar la iglesia de Atlántida de Eladio Dieste. Pero mirando ahora al pasado quiero destacar la idea de la ascendencia con el trabajo de la luz realizado en las iglesias góticas, concepto que particularmente quedó grabado en mi memoria como una atmósfera de tranquilidad y contemplación, capaz de sensibilizar y sorprender.

33 numen
34 Atmósfera
Eladio Dieste

La materia

Para nuestro proyecto la elección de los materiales o materia como nos gusta llamarlo, surge a partir de los materiales que están presentes en el molino, los mismos son: la piedra, el hormigón y el ladrillo, estando este último presente fuertemente en nuestra arquitectura, el mismo siempre nos despertó su interés, siendo un elemento que nos permite diferentes combinaciones, diferentes colores y una transformación a lo largo del tiempo. Eladio Dieste compuso muchas obras con el mismo y nos mostró un sin fin de posibilidades compositivas. Más reciente Solano Benítez, trabajó con el mismo, hasta en un proceso de reciclaje. Dicho elemento constructivo se lo puede denominar como elemento nacional, permitiéndonos en nuestro proyecto la unificación del mismo y así lograr componer las figuras que componen nuestro proyecto, tres cáscaras de ladrillo, conectados por una superficie de Hormigón que busca unificar y generar una continuidad a lo largo de todo un el recorrido. Dentro del pabellón central y la ruina se utilizan estructuras metálicas conformadas por perfiles alivianados y steel deck. Dentro de la ruina se generó una estructura interna, la cual toca sutilmente los muros de la preexistencia para lograr que la misma no sea dañada. La transparencia y el poder ver la vegetación juegan un papel fundamental, esto se puede observar en el pabellón I de acceso en donde no presenta cerramiento, siendo este un espacio de contemplación. En el pabellón central los vidrios colocados en ambas caras nos permiten poder atravesar el edificio y fundirse en el estanque, mientras que en la ruina se genera una fachada y techo vidriado continuo en forma de bóveda, para buscar en su nivel más alto la sensación de estar abrazado por la naturaleza.

35 numen
36 Atmósfera
Catedral de Nuestra Señora de Chartres 1194

Lo monumental

A lo largo de la historia la visión de la arquitectura monumental nos ha marcado, grandes obras siguen siendo un símbolo, de composición, ritmo y diseño, entrar a estos lugares donde la escala nos hace sentir insignificante despierta diferentes sensaciones, el cambio de escala, las sensaciones de estar en un espacio donde la volumetría es capaz de ser apreciada en una mejor perspectiva. Un elemento que parece trascender en el tiempo. Muchas obras pasan por nuestra cabeza en este momento, y buscamos imaginarnos estar presentes dentro de esos lugar, Peter Zuhmtor, en su libro atmósfera nos habla de la arquitectura imaginaria cómo un

edificio vacío donde solo nos hablan sus materiales, esto es parte fundamental de nuestra búsqueda de despertar la inspiración artística, es por ese motivo que generamos al entrar un gran pabellón, vacío, donde buscamos que hable su arquitectura, la lluvia cuando llueve, la luz cuando entra y marca las sombras, la vegetación, el viento. Te obligamos a recorrerlo, parar, mirarlo y por un momento sorprenderte, que la conexión sea fuerte con ese lugar y dejes volar tu imaginación. Queremos que la arquitectura sea capaz de hablar por sí sola.

A lo largo de todas las páginas anteriores fuimos planteando nuestras inquietudes del proyecto y buscando hacerte llegar a este momento, del por qué planteamos nuestra propuesta y por qué en este lugar. Muchas cosas nos llevan a plasmar en estas páginas más que un edificio una interpretación de nuestra visión sobre la arquitectura, y así lograr expresarnos a través de la misma.

37 numen
38 Atmósfera
Le Corbusier, El Partenón desde los Propileos, Carnet 3, 1911

Promenade Architecturale

El concepto de promenade architecturale, concebido por Le Corbusier, es un elemento central en el conjunto de su obra. Es la secuencia de imágenes que se presentan ante nuestra vista a medida que uno recorre un espacio.

Es al mismo tiempo, una jerarquía de eventos arquitectónicos, una serie de instrucciones de cómo concebir la obra.

”…You enter: the architectural spectacle at once offers itself to the eye. You follow an itinerary and the perspectives develop with great variety, developing a play of light on the walls or making pools of shadow. Large windows open up views of the exterior where the architectural unity is reasserted…”.

La importancia del recorrido en la arquitectura puede encontrarse muchos siglos antes, precisamente en la arquitectura griega. Y en la importancia que la idea de recorrido tenía en el proceso ritual practicado en lugares como la Acrópolis o en el templo de Delfos. Donde la arquitectura se iba descubriendo a medida que uno avanzaba caminando en el proceso ritual, y que permitía observar el templo no desde un punto fijo, sino rodeándolo y descubriéndolo progresivamente.

Este concepto nos interesa desarrollar en nuestro proyecto, es decir, la idea del recorrido pautado y predefinido, así como también la posibilidad que el mismo tiene al develar de forma paulatina los tres pabellones ubicados dentro de la vegetación del lugar, descubriéndolo con cada paso, dando perspectivas siempre cambiantes.

39 numen
Le Corbusier and Pierre Jeanneret, Oeuvre Compléte 19291934, p. 24.
41 numen Enclave Capitulo 04
42 Enclave
Ubicacion geográfica

Nueva Helvecia Colonia Suiza

Nueva helvecia es una ciudad ubicada en Colonia del Sacramento al sureste del departamento a 60km y 120 km de Montevideo tiene una población de 10.500 habitantes, desde su fundación la ciudad estuvo vinculada fuertemente a la agricultura y ganadería. En 1862 un grupo de inmigrantes europeos, en su mayoría suizos, fundan esta colonia que hoy es conocida como “Colonia Suiza”. A fines de 1861 llegaron a esta zona las primeras oleadas migratorias de europeos, en su mayoría suizos. La fuerte crisis económica que en ese entonces atravesaba Suiza a causa de la revolución industrial obligó a que muchos de sus ciudadanos buscaran mejores posibilidades en el exterior, para lo cual América representaba una posibilidad de prosperidad y progreso. En el caso de Uruguay, ofrecía una variedad de alternativas a los inmigrantes, derivadas de la productividad agrícola y ganadera. Dada la buena fertilidad de las tierras permitió que los emigrantes comenzaran a cultivar trigo, provocando que algunos inmigrantes empezarán a construir sus propios molinos heredados de Europa para transformar el trigo en harina y así poderla comercializar. Se ubicaron sobre el Río Rosario para aprovechar el agua como fuente de energía y en la cercanía de los campos de cultivos, fueron dos en construirse el molino paso de la tranquera y a pocos kilómetros el molino Bonjour.

43 numen
46 Enclave
Fotografia del lugar en la actualidad - noviembre 2021

Naturaleza: Monte nativo

El sitio presenta un estado natural de carácter primitivo, un monte nativo de porte pequeño y denso conformados por árboles leñosos que fueron naciendo alrededor del Río Rosario y fue avanzando sobre el lugar. Se pueden observar dentro de ese monte unos senderos que fueron creados por los propios visitantes y lugareños. La única intervención del hombre es la construcción del molino que se implanta de manera armoniosa con el ecosistema a orillas del río para aprovechar al máximo los recursos que brinda la naturaleza y así transformarla en el motor de su economía. Sus restos se pueden ver en estado de ruinas. Con el paso del tiempo la vegetación fue recuperando su lugar perdido y apropiándose de ella volviendo a su estado primitivo original, esta naturaleza nos conecta con un carácter esencial, básico y crudo producto de la ausencia de información.

Como ya lo mencionamos anteriormente, dentro de nuestra propuesta la naturaleza tiene un rol fundamental, nuestra intervención busca posar sobre el terreno y parecer estar ahí desde siempre, así como la imagen que transmite el molino, una arquitectura que busca ser tomada por la naturaleza y el paso del tiempo.

47 numen
50 Enclave
Fotografia aerea molino quemado-Ph: Sergio Ferrao

Molino paso de la tranquera

Las ruinas del antiguo molino se encuentran a 7km del centro de la ciudad de nueva helvecia, sobre el borde del Rio Rosario y rodeado por montes nati vos de origen silvestre con una gran variedad de especies autóctonas, por donde los visitantes y lu gareños trazaron senderos que conducen a las ruinas.

1872 el arquitecto Frances Luis Vigni construye el molino, 1881 amaneció prendido fuego y en el año 1976 declarado patrimonio histórico.

La estructura del molino hidráulico estaba com puesta por una nave de doble altura, construida sobre el borde del rio Rosario de modo de que el agua moviera la rueda transformando el torrente en energía potencial. La estructura presenta un basa mento de piedra y luego muros anchos de ladrillos con techos sostenidos por vigas de madera apoya das misma sobre las paredes.

Encima de las vigas tableros de maderas que sos tiene una capa de tierra de terminación superior plaquetas rusticas de barro o baldosas en los en trepisos y cerramiento superior terminándose con chapa. La sala de la molienda se denomina al es pacio donde están las piedras en general coincide con el piso superior del molino. La planta Baja con tiene los tamices y en ella se acopia y embolsa el producto de la molienda.

51 numen
54 Enclave
El molino quemado - fotografia Autor desconocido 1950

Patrimonio

El siglo XX aporto dos características al concepto de patrimonio que a finales de siglo serían muy im portantes para comprender la importancia del pa trimonio industrial. La primera era la del objeto tes timonio de una época, utilizado sobre todo por la etnología. La otra nueva característica era la del bien histórico como objeto de estudio, con la finali dad de comprender las sociedades del pasado, aportada sobre todo por la nueva arqueología, dis ciplina que ya no solo buscaba piezas de valor como había, sino que se servía de los restos del pasado, en concreto de los restos de construccio nes, para estudiarlos e interpretarlos.

Es en este nuevo marco conceptual donde se debe situar el patrimonio industrial. Esta formado por bienes que están relacionados con la produc ción, que son testimonio y objeto de estudio de una era pasada, y tienen como valor añadido que fueron los protagonistas de una gran revolución social y económica que cambio la sociedad hasta desembocar en la sociedad postindustrial actual La preservación del patrimonio industrial tiene la función, por una parte, de reforzar la memoria co lectiva de la historia, y por la otra, de ser un ele mento de estudio para llegar a conocer mejor como era la vida cotidiana.

55 numen

Proyecto

Capitulo 05

¨A lo largo de todas la páginas anteriores fuimos planteando nuestras inquietudes del proyecto y buscado hacerte llegar a este momento, del porque surge nuestra propuesta y porque en este lugar. Muchas cosas nos llevan a plasmar en esta páginas más que un edificio, una interpretación de nuestra visión sobre la arquitectura, y así lograr expresarnos atreves de la misma.¨

Memoria Proyectual “numen”

Numen, inspiración que siente el artista para la creación o la composición de obras de arte; esta inspiración suele representarse de manera personificada.

El término “numen” es empleado para definir la propuesta. Éste pretende ser un espacio para la inspiración artística, brindando las posibilidades, según la rama del arte a la que se dediquen o quieran desarrollar las personas que visiten dicho espacio, pudiendo realizar nuevas creaciones, ensayos, exponer sus trabajos o simplemente aislarse unos días en la búsqueda de un nuevo punto de partida para la creación y poder encontrase con uno mismo.

Dicho proyecto se implanta en un bosque nativo, el cual presenta una preexistencia arquitectónica como es el molino Paso de la Tranquera, dominado fuertemente por la naturaleza, estando ubicado a 14 km del centro de la ciudad de Nueva Helvecia. Dicho lugar nos presenta la posibilidad y la logística para poder desarrollar nuestro proyecto en una atmósfera que relaciona naturaleza y arquitectura, logrando desde el punto de vista logístico una ubicación estratégica al estar en un punto neurálgico entre Montevideo, la ciudad de Colonia del Sacramento y la posibilidad de conexión con la ciudad de Buenos Aires.

Dado que la llegada a la ruina del antiguo molino es posible a través de un ramal que se conecta con la ruta 61, llamado Camino Real, y que presenta toda una logística con respecto a la misma , este nos conduce en un primer

punto de partida a un estacionamiento ubicado sobre la periferia del monte, alejado del área de intervención central; la magnitud del predio nos permite generar tres cosas que buscamos con el proyecto: el desarrollo de un recorrido, siendo éste una especie de peregrinación hasta el mismo , una arquitectura de pabellones que parecen ser parte de la atmósfera del lugar, así como lo es la preexistencia, conectados todos entre sí, adueñándose del espacio geográfico en todo su esplendor en conjunto con el río Rosario y la vegetación, logrando con los elementos arquitectónicos acentuar y enmarcar las miradas en la naturaleza circundante. Pero lo más importante de todo es dejar abierta la posibilidad de futuras expansiones a la propuesta base, respetando la misma lógica arquitectónica y esencia del proyecto, buscando de esta manera congeniar todas las ramas del arte.

Adentrándonos ya en el programa nos parece pertinente dividir este en dos subsistemas: el primero el conector y el segundo los pabellones. El conector es el que genera el recorrido, cuando dejamos el auto y comenzamos a caminar por la naturaleza pudiendo ya visualizar los pabellones entre la misma por su escala monumental, ya un poco más próximo al primer pabellón nos recibe un pavimento y un gran muro de ladrillos, que nos marcan el camino a seguir desde este momento. El conector nos guía a través de la arquitectura monumental, haciéndonos recorrer todo el proyecto; 70 metros nos separan entre el primer pabellón,

63 numen
64 Construcción

pasando por el segundo y conectándonos con la ruina al final del recorrido. El mismo está diseñado con una arquitectura rigurosa, toda una superficie de hormigón en gran parte acompañada por los pórticos de ladrillo colocados en una grilla imaginaria, generando un ritmo de arcos expuestos al clima y al paso del tiempo.

Los pabellones conforman el segundo subsistema, tres grandes cascarones de ladrillo monumentales que parecen surgir desde la geografía del territorio, cada uno con su propuesta programática y su propia atmósfera. El primer pabellón cargado de sensaciones, y por qué no con una connotación más sensorial espiritual, un espacio generado por un ritmo de arcos que culminan en un círculo, un espacio para reflexionar, para albergar muestras, o simplemente para estar en contacto con la naturaleza y uno mismo. Una arquitectura entregada al clima, al paso del tiempo y la vegetación, un preciso manejo de luces y sombras.

A continuación, tenemos el segundo pabellón, un espacio para compartir y relacionarse con los demás, una superficie con dos extremos vidriados teniendo naturaleza en ambos lados, un estanque que enmarca una visión del espacio y la vegetación con sus muros laterales, duplica la percepción del edificio con su reflejo y genera su propia atmósfera. Dicho

pabellón alberga áreas de cafetería, mediateca, alojamiento y otras más definidas en el desglose del programa. El tercer pabellón, es el más particular, denominado Ruina, es la preexistencia del antiguo Molino, la cual fue el disparador para todo este proyecto. Tomando su valor e importancia patrimonial es que tomamos la decisión arquitectónica de conservarla en su estado natural tal cual se encuentra hasta el momento de su intervención. Se genera una estructura secundaria metálica, la cual busca parecer posar dentro de los restos de muros prexistentes, generando no solo un soporte para mantener los muros en pie, sino también para generar una piel vidriada que nos permite conservar la relación con el entorno. Este pabellón cuenta con un carácter más educativo, área de museo, aulas flexibles y un último nivel que remata con unos pórticos metálicos y un techo vidriado, un espacio para múltiples funciones, a la altura de la copa de los árboles del monte nativo.

Toda esta propuesta escrita anteriormente busca ser llevada a cabo buscando generar una gestión de carácter público realizada entre el Ministerio de Educación y Cultura – la intendencia de Colonia- la Facultad de Bellas Artes y la UNESCO.

65 numen

Modulo taller PABELLÓN I

Espacio para Niños

Habitaciones

Taller de pintura

Espacio ritual

Cafetería

Mediateca

Taller arte Plástico

Área de exposiciones

Museo

Administración

Taller de escultura

Baños

Recepción

Sala de lectura

Cantina

Taller arte corporal

Área de reunión

Estanque

biblioteca

Taller de Música sala de lectura

espectáculos

Taller arte digital

muestras

Restaurante

Acceso Área de esparcimiento

Lavadero

Cocina

Taller de Danza

oratorio

Taller de Literatura

foyer Área de meditación

Taller Fotografía

Galería

PABELLÓN II

Alojamiento PABELLÓN III

66 Construcción

Programa

El fuerte carácter primitivo de la naturaleza presente en el lugar nos permite desarrollar nuestra propuesta que junto con la infraestructura edilicia ayuden al artista a logar la inspiración y el estímulo necesario al momento de crear o componer una obra de arte. NUMEN, explora una relación del programa con el paisaje a diversas escalas y niveles, percibiendo el espacio mediante diferentes intervenciones. Tres pabellones acumulan la carga programática más rígida del programa.

Pabellón I

Edificio de llegada de escala monumental, cumple la función de gran hall en donde el visitante pueda explorar una conexión de carácter espiritual, conectándose con sí mismo en contacto directo con la naturaleza.

Pabellón II

Edificio que alberga la parte densa de servicios generales del proyecto, en planta baja se encuentra la administración, cafetería, restaurant y un espacio mediateca donde se

le brinda al visitante información del lugar, en planta alta se encuentran las habitaciones individuales donde el artista o visitante pueda quedarse a pasar la noche y poder desarrollar sus ideas e inspiraciones artísticas.

Pabellón III

Es la reactivación de la prexistencia existente en el lugar el antiguo molino la cual alberga el programa más educativo, en planta baja se encuentra un área de exposición en donde se podrá exponer material sobre la historia del molino así como también, muestras artísticas, en el N1 se encuentran los talleres un espacio para que los artistas puedan formarse y desarrollar sus proyectos, el N2 destinado a una sala polifuncional a cielo abierto capaz de albergar diferentes eventos desde reuniones y eventos artísticos.

67 numen
68 Construcción

Master plan - Gestion

Considerando que el proyecto como un nuevo polo de atracción cultural, artístico y turístico a escala regional, surge la necesidad de generar un plan a futuro que sea capaz de brindar las infraestructuras necesarias para garantizar la viabilidad del proyecto. La intervención se enmarca dentro de un conjunto de edificaciones ubicadas dentro del paisaje nativo del lugar, se plantean tres pabellones y dos más para su construcción a futuro, uno de ellos albergará aulas y más alojamientos, mientras que el otro será una caja escénica.

Se plantea una gestión integral e integrada. La gestión de este plan se organiza a través de una política estrategia global por parte del estado, a través de una coordinación de los diferentes órganos:

Estructura estatal Órganos Ministerios: MEC (Ministerio de educación y cultura) Turismo

IMC (Intendencia municipal de Colonia).

OTROS: Instituto Escuela Nacional de Bellas Artes Administración Nacional de Educación Pública UNESCO

69 numen
70 Construcción
71 numen
72 Construcción
73 numen
74 Construcción
Pabellon 1 - acceso
76 Construcción
Pabellon 2 - Exterior
78 Construcción
Pabellon 3 - Ruina

Construcción

Capitulo 06

86 Construcción
87 numen
88 Construcción
89 numen
90 Construcción
94 Construcción
95 numen
96 Construcción
97 numen
98 Construcción
99 numen
100 Construcción
101 numen
106 Construcción
107 numen
108 Construcción
109 numen
110 Construcción
111 numen
112 Construcción
113 numen
114 Construcción
115 numen
116 Construcción
117 numen
118 Construcción
120 Construcción
122 Construcción
123 numen
124 Construcción

Unidad de detalle

Capitulo 07

127 numen
128 Unidad de detalle
129 numen
130 Unidad de detalle
131 numen
132 Unidad de detalle
133 numen
134 Unidad de detalle
135 numen
136 Unidad de detalle
137 numen
138 Unidad de detalle
139 numen
140 Unidad de detalle
141 numen
142 Unidad de detalle
143 numen
144 Unidad de detalle
145 numen
146 Unidad de detalle
147 numen
148 Unidad de detalle
149 numen
150 Unidad de detalle
151 numen
152 Unidad de detalle
153 numen
154 Unidad de detalle
155 numen
156 Unidad de detalle
157 numen
158 Unidad de detalle
159 numen
160 Unidad de detalle
161 numen
162 Unidad de detalle
163 numen
164 Unidad de detalle
165 numen
166 Unidad de detalle
167 numen
Estructura Capitulo 08
170 Estructura

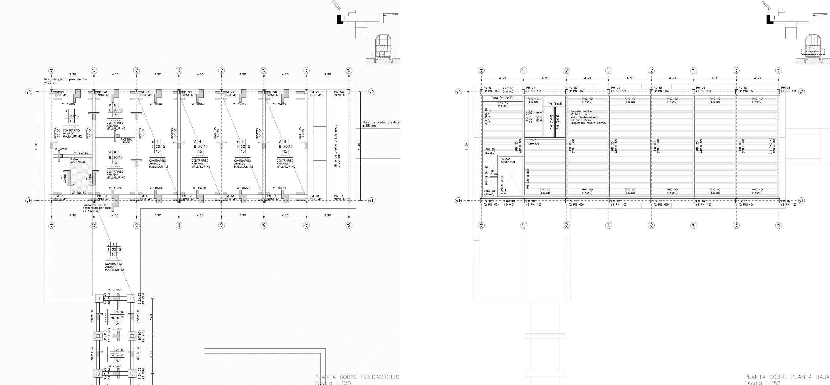
Memoria Estructura

El proyecto está conformado por tres pabellones conectados a través de una galería exterior, siendo uno de ellos la prexistencia, dado que aún quedan partes de su estructura original de ladrillo, se resuelve construir el resto del proyecto con dicho material.

La estructura de los tres pabellones y galería se resuelve en base a una organización rigurosa. El tipo de cimentación utilizado son dos: en los pabellones I, II y la galería se utilizan pilotes y en la prexistencia se utilizan patines a modo de conservar sus muros en el proceso de excavación Pabellón I, es un edificio de escala monumental de gran porte, su estructura está conformada por pantallas de hormigón armado en forma de arco medio punto y sus testeros tienen una apertura con forma circular. Estas pantallas son cimentadas a través de cabezales y pilotes, posteriormente son revestidas por ladrillo de campo el espesor final con el revestimiento incluido es de 55cm el mismo espesor que los muros que se conservan de la prexistencia, la galería se resuelve de la misma manera. Pabellón II, es un edificio de un nivel, su estructura perimetral se resuelve de hormigón armado revestida con ladrillo, el entrepiso se utiliza estructura metálica vigas intermedias PNI 50 con el alma aligeradas, PNC 50 como vigas de borde y pilares PNI 50, para la losa utilizamos

Steel deck calibre 1.5mm con malla electrosoldada ø3 cada 15cm. En la pasarela que conecta la escalera con las habitaciones se colocan tensores metálicos anclados a la estructura de la cubierta siendo esta resuelta con un casetonado de hormigón armado. Este edificio cuenta con un estanque siendo contenido por dos muros de contención de 55cm.

Pabellón III, en la prexistencia se utiliza una estructura independiente por dentro de la misma de manera que no afecte la estabilidad de sus ruinas. La estructura se configura a través de pórticos metálicos en forma de arco medio punto conformados con dos perfiles PNI 45 soldados entre si con un posterior tratamiento anti-corrosivo llamado pavonado o oxido negro que consiste en generar una capa superficial de magnetita (oxido ferroso- diferrico) otorgando una apariencia homogénea de color oscuro, los mismos apoyan en una viga ménsula trasmitiendo su carga hacia el patín, los entrepisos se utilizan vigas intermedias metálicas PNI 50 con alma aligeradas en los bordes PNC 40 y como losa Steel deck calibre 1.5mm con malla electrosoldada ø3 cada 15cm, para la rigidización de los pórticos se colocan tensores en las caras norte y sur.

171 numen
172 Estructura
173 numen
174 Estructura
175 numen
176 Estructura
177 numen
178 Estructura
179 numen
180 Estructura
181 numen
182 Estructura
183 numen
184 Estructura
185 numen
186 Estructura
187 numen
188 Estructura
189 numen
190 Estructura
191 numen
192 Estructura
193 numen
194 Estructura
195 numen
196 Estructura
197 numen
198 Estructura
199 numen
200 Estructura
201 numen
Capitulo 09
Infraestructuras
204 Infraestructuras
La fuente, Marcel Duchamp, Francias 1917

Memoria Sanitario

Dada la ubicación de la intervención, se proponen un conjunto de medidas que permiten aprovechar al máximo los recursos naturales sin comprometer al medio ambiente.

Abastecimiento

La extracción de agua se efectúa mediante una perforación ya existente perteneciente a la preexistencia con una bomba

sumergible

Para el calculo de abastecimiento se toman las necesidades planteadas por el programa cultural/educativo, el cual estima una persona cada 6m2, (2178m2 determina 363) personas teniendo en cuenta una simultaneidad del 30% determina una cantidad total de uso de 109 personas. El programa cultural exige un uso de 75 litros por día por persona. Se determina así una exigencia de 8175 Litros y de manera anexa se suman 4 duchas ubicadas en las habitaciones de alojamiento con un uso de 60 litros sumando así 240 Litros.

Total 8415 Litros

Dentro de la sala de equipamiento ubicado a las cercanías de la intervención, se dispones de dos tanques de polietileno Nicol de 5000 Litros. Se disponen bombas jockey las cuales derivan el agua bombeada a las distintas terminales de los pabellones. Para el calentamiento de agua de uso en habitaciones y cafetería se disponen calefones en cada habitación

Incendio

Se dispone un estanque en el proyecto donde se recolecta el agua de lluvia de los tres volúmenes para sutilizarla para reserva de incendio. Respetando la normativa de bombero (IT 05, IT 12), se disponen dos tanques de polietileno de 5000 Litros, de manera similar a se disponen bombas Jockey que son bombeadas a las bocas de incendio, se colocan una boca de incendio por nivel en cada uno de los pabellones.

DESAGUE

La ausencia de saneamiento hacia colector en el predio rural y la intención de mantener un ecosistema estable, nos obliga a usar métodos alternativos de tratamiento de efluentes, se opta por un sistema de desagüe subterráneo cuya disposición final es filtrar el agua en el arroyo, no requiere de uso de bombas ni energía, siendo fundamentales la cámara de pre tratamiento y el canal de wetlans. El área de este ultimo va a tratar las aguas residuales de los edificios

CAMARA SEPTICA O PRE TRATAMIENTO

La cámara de pretratamiento tiene como finalidad principal la fragmentación y remoción parcial de los sólidos orgánicos

contenidos en las aguas servidas, esto se realiza por sedimentación de los sólidos en la cámara, consiguiendo así que salgan líquidos sin grandes materiales en suspensión.

Dimensión: 3m x 5m x 1.8, se dispone la cámara séptica conectada a un terreno de purgado con la capacidad de filtrar de manera limpia los desechos híbridos.

La cámara séptica se dimensiona según cálculos de tendiendo un TRH de 1.5 días para que el DBO se reduzca un 50% de 300 a 150 mg/l. Las tapas 60x60 permiten una clara inspección visual de la misma así como la limpieza y mantenimiento.

WETLAND

La depuración final de este proceso tiene como objetivo reducir la concentración de contaminante presente mediante la acción de agentes bilógicos. Este proceso ocurre de forma espontánea y garantiza la capacidad auto depurativa

Se da por medio de un canal de flujo subterráneo con plantas emergentes. Es el paso siguiente a la cámara de pre tratamiento, por sus condiciones se comporta como cualquier humedal ya que no requiere de la adición de reactivos ni productos artificiales.

Volumen del wetland = Q x TRH

Q: Es el cosnumo diario de agua x % de agua destinado a Wetland

TRH: Es el tiempo de renovación hidráulico

V = Q x TRH

Q = 8415 lts x 1.0 (100%) = 8415 Lts.

V = 8415 Lts. X 3 días = 25245 Lts

DIMENSIÓN DEL WETLAND: 11.0m x 7.0m x 0.40m = 30.8m3 = 30.800 Lts.

Por razones de seguridad se dimensiona el humedal con cierto margen de capacidad para evitar colapsos del sistema por desbordes.

DESAGUE DE PLUVIALES

Las aguas de pluviales provenientes de las cubiertas de los tres volúmenes y pavimentos impermeables se recolectan a través regueras, cañerías, canalones y sistema de desague sifónico y son trasladadas hacia el estanque artificial (compuesta por agua de lluvia + agua directa)

205 numen
206 Infraestructuras
207 numen
208 Infraestructuras
209 numen
210 Infraestructuras
211 numen
214 Infraestructuras
215 numen
216 Infraestructuras
217 numen
218 Infraestructuras
219 numen
220 Infraestructuras
221 numen
222 Infraestructuras
223 numen
224 Infraestructuras
225 numen
226 Infraestructuras
227 numen
228 Infraestructuras
229 numen
230 Infraestructuras
231 numen
232 Infraestructuras
233 numen
234 Infraestructuras
El inventor e ingeniero eléctrico croata Nikola Tesla, sentado junto a una jaula de Faraday

Memoria Eléctrico

La ubicación territorial del proyecto fue una condicionante real a la hora de materializar sus servicios y la eléctrica no ha sido la excepción. Nos conectamos a una red aérea de UTE existente que pasa por la carretera ubicada a una distancia aproximada de 300 mts hasta el molino la cual es trasladada de forma subterránea hasta el subsuelo técnico.

CARGA

La carga eléctrica necesaria para el funcionamiento de los tres pabellones requiere de un sub estación simple de UTE, ubicada en el subsuelo técnico. A la misma se accede de forma independiente al edificio, desde el monte nativo. Se instala un grupo electrógeno que permite a los pabellones continuar con su funcionamiento en caso de emergencia.

Por fuera de este sistema de contingencia se dejan las instalaciones destinadas al confort térmico, así se evita duplicar las cargas suministradas, presumiendo prescindibles sus funciones en caso de corte de suministro de energía

La cubierta del pabellón III Ruina se dispone de vidrio fotovoltaico (ONYX Solar FV GlassXL visión) en el agua orientada al norte para proporcionar energía de forma directa la cual será destinada para complementar a la energía proveniente de UTE. Con una potencia pico de

28W h/sol y 175 m2 de superficie útil.

CIRCUITTOS Y TABLEROS

Se dispone de un subsuelo técnico en donde se ubica la sub-estación y el grupo electrógeno así como también se dispone el tablero general. Desde el tablero general se derivan líneas subterráneas que llegan a cada uno de los pabellones, colocándose en su llegada una cámara de registro y luego se conectan a los tableros derivados ubicados en cada uno de los niveles en los núcleos de servicios en el ducto de instalación eléctrica. El circuito y los tableros correspondientes a la instalación de confort térmico se disponen de manera independiente al circuito general. Los tendidos se relacionan de varias maneras dependiendo de la situación en cuestión. Principalmente el cableado se sitúa en bandejas galvanizada.

EVACUACION

Mediante la utilización de luminarias con sistema autónomo de carga de baterías se señalizan las salidas de los locales, así como la ruta de escape en pasillos y escaleras.

235 numen
238 Infraestructuras
239 numen
240 Infraestructuras
241 numen
242 Infraestructuras
243 numen
244 Infraestructuras
245 numen
246 Infraestructuras
247 numen
248 Infraestructuras
249 numen
250 Infraestructuras
251 numen
252 Infraestructuras
La Capilla de Campo Bruder Klaus de Peter Zumthor 2007

Memoria Lumínico

El proyecto se concibe como plataformas de actividades tanto de uso diurno como nocturno

ILUMINACIÓN NATURAL

La iluminación natural acentúa profundidades y crea espacios espirituales que permite al artista y conecta con el paisaje circundante permitiendo así lograr una conexión directa con el entono. La envolvente vidriada del edificio permite iluminar de manera natural todos los locales, la elección del vidrio a utilizar se ve determinada por esta necesidad, el tipo de vidrio Stopray permite una alta transmisión luminosa pero con baja aportación de calor en el interior.

ILUMINACION ARTIFCIAL

La elección del tipo de iluminación está determinada por las necesidades programáticas así como por las calidades espaciales a generar en los distintos ámbitos así como también por la imagen que trasmiten las luminarias según sus usos al exterior. Todos los espacios se iluminan de manera general con luminarias led. Para iluminar el pabellón I y la galería exterior que conecta los tres pabellones, se opta por luminarias de piso ubicadas de manera que

iluminen de forma rasante la volumetría de los arcos y por otro lado acentuar el recorrido. En el pabellón III, las luminarias son instaladas en el cielorraso y en el N2 en la sala polifuncional se colocaran de forma colgante a los pórticos, en sala de exposición se colocan spot con ángulos flexibles en rieles electrificados, los talleres se iluminan mediante la utilización de luminarias lineales. Se disponen de manera de generar una iluminación genérica en el plano de trabajo, permitiendo una versatilidad de uso según las necesidades de la actividad a desarrollarse. Para el cálculo de las mismas, se termina una exigencia mínima de 300 luxes en el plano útil a 0.80mts del nivel de piso terminado. También se utilizan luminarias que cumplen con una función señalética en circulaciones

253 numen
254 Infraestructuras
255 numen
256 Infraestructuras
257 numen
258 Infraestructuras
259 numen
260 Infraestructuras
261 numen
262 Infraestructuras
263 numen
264 Infraestructuras
265 numen
266 Infraestructuras
267 numen
268 Infraestructuras
269 numen
270 Infraestructuras
271 numen
272 Infraestructuras
273 numen
274 Infraestructuras
275 numen

Termografia Imagen del libro, Transferencia de calor y masa, de Çengel, Afshin J. Ghajar

276 Infraestructuras

Memoria Térmico

TÉRMICO NATURAL: INCIDENCIA

SOLAR

La envolvente vidriada del edificio permite iluminar de manera natural todos los locales. Es por esto que la envolvente vidriada cumple un papel de vital importancia en relación al confort térmico y a la eficiencia energética dentro del edificio, tanto en invierno como en verano. Se plantea la envolvente resuelta a partir de la utilización de cristal termopanel (DVH). Este tipo de resolución vidriada tiene como principal ventaja el ahorro energético para calefaccionar o refrigerar el ambiente. Se aumenta así el confort en las proximidades de las superficies. Al contar con espacios de gran volumen se decide aislar térmicamente los entrepisos intermedios con placas de poliestireno de alta densidad auto trabantes de 4cm de espesor.

TÉRMICO NATURAL: VENTILACIÓN

En los pabellones II- III se plantean la modulación de las aberturas en tres módulos pivotante vertical con un ángulo de apertura de 15º, permitiendo de esta manera lograr la correcta ventilación de los locales según las necesidades puntuales de

cada uno de ellos, en relación a las actividades que se estén desarrollando dentro de los mismos y la cantidad de usurarios.

TÉRMICO ARTIFICIAL: VRV

Se acondiciona térmicamente el edificio a través de la utilización de un sistema de volumen de refrigerante variables (VRV). Se opta por este sistema ya que permite gran versatilidad de uso, permitiendo calefaccionar las distintas salas de manera diferenciada o de manera conjunta dependiendo de las actividades que en ellas se estén desarrollando, y la cantidad de personas que allí se sitúen.

El cálculo determina un área interior a calefaccionar de 1330,38 m2. Según el área de los locales se obtiene una exigencia total de 67 toneladas de refrigeración (TR), considerando para este 1TR cada 20m2

En base a este cálculo se disponen de 4 unidades exteriores en el subsuelo técnico las cuales abastecerán a las unidades interiores del pabellón II-III.

277 numen
278 Infraestructuras
279 numen
280 Infraestructuras
281 numen
282 Infraestructuras
283 numen
284 Infraestructuras
285 numen
286 Infraestructuras
287 numen
288 Infraestructuras
289 numen
290 Infraestructuras
Vivian Maier Niños jugando con una boca de incendios, NYC verano de 1954

Memoria Incendio II

PROTECCIÓN CONTRA INCENDIO

El objetivo es proteger la integridad de las personas, luego los bienes materiales y la continuidad del funcionamiento de los edificios, así como su entorno.

PROTECCIÓN PASIVA

Para mayor protección los elementos estructurales y constructivos éstos son debidamente protegidos de manera de aumentar su resistencia al fuego.

Se prevee un adecuado mantenimiento y control periódico, orden y limpieza asegurando un buen funcionamiento de las instalaciones.

PROTECCIÓN DEL HIERRO

A los elementos de hierro estructurales se le aplicará una pintura intumescente como ser pórticos, vigas, platinas, bulones. La pintura intumescente es uno de los sistemas de protección preventiva contra el fuego. No ayudan a extinguir el fuego en un incendio pero sí evitan mayores daños.

DETECCIÓN DE INCENDIO

El edificio contará en toda su área con detectores de humo y alarmas. Contiguo a las bocas de incendio se instalarán jaladoras manuales. Los pabellones contarán con alarmas acústicas y lumínicas, iluminación de emergencia, y carteles luminiscentes que indican recorridos en caso de emergencias y salidas.

EXTINCIÓN

Los edificios cuentan con una combinación de sistemas portátiles (Extinguidores) y Bocas de Incendio ubicándose desde la reserva de incendio proveniente del estanque ubicado en el pabellón

COMPONENTES

(A efectos del diseño del sistema se consideran los requisitos estipulados por la Dirección Nacional de Bomberos)

El agua es bombeada desde el estanque a los tanques de almacenamiento que se encuentran ubicados en el subsuelo técnico.

EQUIPO DE BOMBEO (Estanque)

Se instala una sala de bombas contigua al estanque con una bomba eléctrica principal y otra de reserva, cada una deberá independientemente lograr los caudales y presiones necesarias.

CAÑERÍA

La cañería a la vista será de hierro negro. Los espesores de las mismas son dimensionados según norma. Son pintadas con dos manos de esmalte sintético color rojo. Las cañerías enterradas son de plástico de alta resistencia. La cañería de succión del equipo de bombeo tiene las mismas características técnicas de las cañerías de impulsión - distribución.

BOCAS DE INCENDIO

Están conformadas por gabinete metálico con puerta de vidrio, con un tamaño para poder albergar 25 metros de manguera de 45 milímetros, un puntero regulable chorro-niebla y una válvula globo de 2” con unión tipo storz. Se ubican a una altura aproximada de un metro sobre nivel de piso terminado. Las válvulas son de bronce. Todo el conjunto debe ser aprobado por DNB.

EXTINTORES

Los extintores se ubican en todo el edificio. En la zona de cocina se colocan extintores de cocina clase K

291 numen
292 Infraestructuras
293 numen
294 Infraestructuras
295 numen
296 Infraestructuras
297 numen
298 Infraestructuras
299 numen
300 Infraestructuras
301 numen
302 Infraestructuras
Pabellón Holanda para la Expo 2000 en Hannover, Alemania (1997-2000).

Memoria Sustentable

La construcción sustentable debería entenderse como una preocupación especial hacia el cuidado de los recursos naturales, para prevenir la contaminación ambiental con la finalidad de proporcionar un ambiente saludable, tanto en el interior de los edificios como así también en su entorno.

La intervención plantea el objetivo de generar el menor impacto ecológico posible, considerando estrategias de diseño pasivo que ayuden a regular el consumo de energía optimizando los recursos naturales.

El agua de lluvia de los tres pabellones es recolectadas y acumulada en un estanque dicho estanque tiene las dimensiones para que el agua contenida en él, pueda reutilizarse para abastecer al sistema de incendio.

La orientación del pabellón III está condicionada por la preexistencia así como también las dimensiones de los espacios interiores. La elección de una envolvente vidriada la cual otorga una iluminación cenital constante siendo controlada para no provocar deslumbramientos y el efecto invernadero.

La cubierta orientada al norte presenta vidrio fotovoltaico DVH Onyx FV Glass XL visión, con

un 30% de opacidad, que tamiza la luz directa y aprovecha la orientación para la producción de energía eléctrica mientras que el resto de la superficie se realiza con vidrio DVH Stopray. Para ventilar la parte cenital de la nave se recurre a dejar un par de abertura móvil cada dos módulos de pórticos para así lograr una correcta liberación del aire caliente y gases. Para los cerramientos laterales se utiliza cristal termopanel (DVH). Teniendo como principal ventaja el ahorro energético para calefaccionar o refrigerar el ambiente, aumentando así la temperatura en las proximidades de las superficies acristaladas. Las fachadas N-S están modulados en tres paños pivotantes verticales con un ángulo de apertura de 15º permitiendo así la ventilación cruzada de los ambientes. En el pabellón II, se utiliza en el cerramiento vidriado el cristal termopanel y en las habitaciones se logra la ventilación a través de ventanas pivotantes verticales igual a la descripta anteriormente para el pabellón III.

303 numen
304 Infraestructuras
305 numen
306 Infraestructuras
307 numen

Interferencias

Capitulo 10

310 Interferencias
311 numen
Cierre Capitulo 11

BIBLIOGRAFÍA

LIBROS:

I ”Atmósferas: Entorno arquitectónicos” Peter Zumthor, Barcelona, España, 2006

I ”Le Corbusier and Pierre Jeanneret, Oeuvre Compléte” 1929-1934

I ”Mies van der Rohe at Work” Peter Carter , Londres, Inglaterra 1999

I ”Tras el Viaje de Oriente”. Charles-Édouard Jeanneret - Le Corbusier, Ricardo Daza, Barcelona, España 2015

I ”Molino Quemado”, Moreira, Omar, Montevideo, Uruguay 2015

I Lina Sanmartín:” Patrimonio industrial” 2009

I Lina Sanmartín: “Patrimonio industrial Molinos y hangares, datos relevados hasta agosto de 2011”

I Cuadernos del Claeh n°88, Montevideo 2 ª serie, año 2004

I Carta de Nizhny Tagil sobre el patrimonio industrial Julio 2003

I Mariana Waisman,” el interior de la historia “, 1993

I “Las siete lámparas de la arquitectura” Ruskin, John, 1849

I “Breve historia de la industria en Uruguay”, Raúl Jacob, 1981

ARTÍCULOS:

I El arte y la conexión ecológica. el espacio de arte y naturaleza la ”font del molí” Juan José Llobell Andrés

I García, A. (1990).” Hacia el paisaje”, catálogo Towards landscape-Hacia el paisaje, CAAM Canarias

I Schmid, W. La felicidad. Todo lo que debe saber al respecto y por qué no es lo más importante en la vida, Pre- textos, Valencia, 2010

I 1971, ley 14040, creación de la comisión del patrimonio histórico, Artístico y cultural de la nación

CONFERENCIAS:

I William Rey Ashfield, Conferencias Ciudadanas, Sumar, 2014

I Paolo Giardiello, jornadas” Habitar la preexistencia” Charla N° 01 ”Existente, preexistente, persistente”

I Paolo Giardiello, jornadas” Habitar la preexistencia” Charla N° 02 ” Construir en/sobre lo construido”

FOTOGRAFÍAS:

I Fotos del” molino paso la tranquera” sacadas por el fotógrafo Sergio Ferrao, 2021 pg. 44-45, 50, 52-53, 56-57 Fotografías analógicas realizadas por Braian González, Performance vídeo clip Fuego - Helen Olhausen , Capilla Susana Soca 2020 Pg. 24

MÚSICA:

I Ludwig Van Beethoven sinfonía N°14

I Radiohead - In Rainbows

AGRADECIMIENTOS:

En primer lugar, queremos agradecer a nuestras familias, sin su apoyo incondicional nada de esto sería posible, a nuestros amigos y compañeros que compartimos momentos inolvidables, que sin duda marcaron nuestras vidas para siempre y agradecer a todos los profesores que estuvieron presente a lo largo de todo este camino para nuestra formación.

Simplemente Gracias.

Turn static files into dynamic content formats.

Create a flipbook
Issuu converts static files into: digital portfolios, online yearbooks, online catalogs, digital photo albums and more. Sign up and create your flipbook.
TFC | NUMEN | Christian Melatti + Guillermo del Puerto | Taller Martín by Christian Melatti - Issuu