Info Booklet 4473 Schubert Road, Armstrong, BC

Page 2

4473 Schubert Road, Armstrong

About this property

Welcome to 4473 Schubert Road, an extraordinary property located in the charming town of Armstrong, BC, that boasts nearly 10 acres of serene countryside living. This custom-built 4 bedroom, 4 bathroom home impresses with stunning views of the surrounding farm land and mountains. As you step inside, you'll be greeted by an expansive living area that is flooded with natural light and features an open concept design, including a fabulous kitchen with plenty of counter space, perfect for entertaining guests. The dining and living room areas offer a cozy atmosphere with a gas fireplace and a large covered deck provides the perfect outdoor space for relaxation.

The main floor includes a primary bedroom with a full 4-pce ensuite & walk-in closet, an additional bedroom, bathroom, and laundry room, providing all the necessary comforts for modern living. The walk-out basement features a 2 bed, 1 bath in-law suite, perfect for extended family or as a mortgage helper, and a 4th bathroom with a separate entrance out to the lower level is perfect for the main home to utilize. An in-floor hot water heating system ensures optimal comfort throughout the year.

This property also features a detached double car garage, separate shop, and a 4 stall barn with a tac room, providing ample space for storage and hobbies. The riding pen is perfect for horse lovers or anyone who enjoys outdoor activities. When it's time to unwind, head to the gazebo and take in the breathtaking mountain and valley views.

Less than a 5-minute drive away from Armstrong, this property offers the perfect combination of tranquility and convenience. Don't miss out on the chance to make this stunning property your own. Contact us today to schedule a private showing and experience all that 4473 Schubert Road has to offer.

FAQ

Home Upgrades & Renovations

We installed cabinets in the downstairs kitchen.

Hot Water Tank

Boiler is original from purchase date, storage tank was replaced in 2018.

Electrical Panel in the house

Sub in the shop

Exterior Roof

Sheet metal original to purchase date. Roof vent was replaced.

Nearby Amenities

Nearest amenities are 3 km away.

Neighbourhood 10 acre properties are along Schubert Road with animals and farming. The age group is mixed.

Expenses

Natural Gas $3000/yr.

Hydro $2200/yr..

Water $1000/yr.

Taxes $6854/yr.

No Grant

Insurance $2781/yr.

Appliances

Refrigerator Samsung

Electric Stove Top GE

Built-in Oven Maytag

Dishwasher Bosch

Washer Samsung

Dryer Samsung

appliances are negotiable
*All

The Home

This beautiful 4 bed 4 bath home set on a private acreage is all ready to move into. This custom built home was laid out to take in all of the amazing views that surround it. The primary bedroom has a walk-in closet and 4 pc ensuite . There is a 2 bed 1 bath in-law suite which is great for family or added income.

Features of this home

In-floor water heating system, balcony, hardwood/laminate/tile flooring

The Exterior

This property has almost 10 acres of privacy and is the perfect spot to bring your animals and raise your family! There is a barn with a saddle rack for the horse enthusiast. Entertain everyone by the fire pit, and enjoy the colder nights in the hot tub. The property also has a detached double garage, separate shop, riding pen and more!

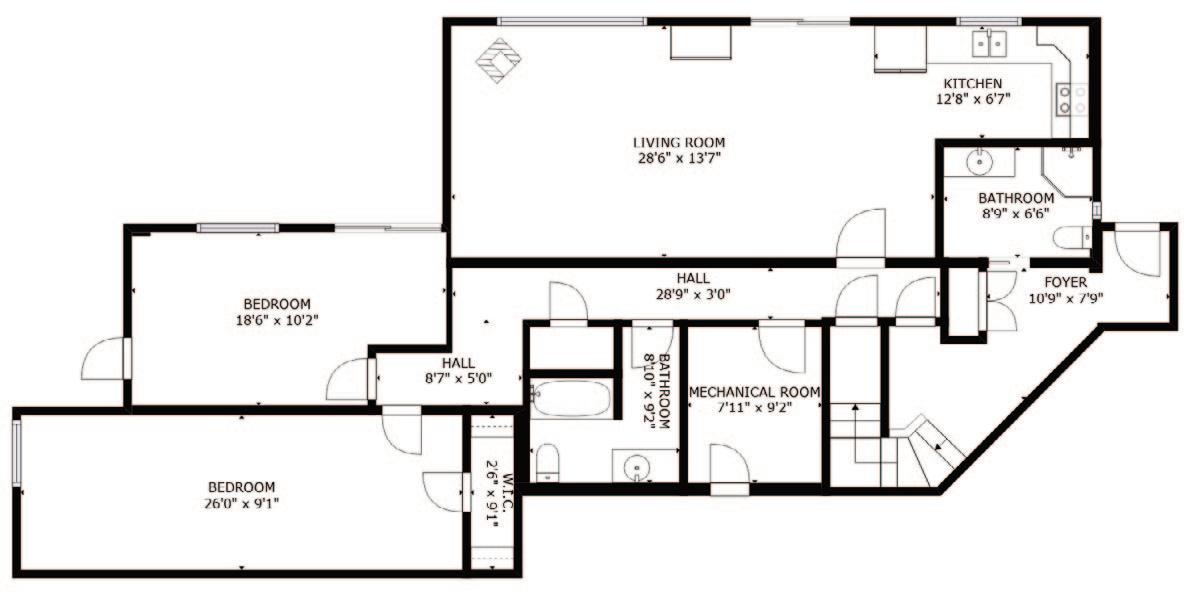
Floorplan

**All measurements are taken from Matterport Floor Plans and are interior measurements only.
Floor 1 1455 SF

Floorplan

**All measurements
taken from Matterport
are interior measurements only.
are
Floor Plans and
Floor 2 1616 SF

Chris Holm

Personal Real Estate Corporation

1 (250) 309-0039

chris@chrisholm.ca chrisholmrealestate.ca

@chrisholmrealtor /chrisholmrealtor /chrisholm

@chrisholmrealtor /chrisholmrealtor /chrisholm

For more information

Want to learn more about this property? Check out this listings featured page on our website! https://chrisholmrealestate.info/4473SchubertFeatures

Browse more photos, watch our virtual tour video with Chris, and even take a tour through the home with the 3D tour option.

Want to schedule a viewing?

Give us a call today!

This information is deemed reliable but cannot be guaranteed. Details should be verified if deemed important.

Turn static files into dynamic content formats.

Create a flipbook
Issuu converts static files into: digital portfolios, online yearbooks, online catalogs, digital photo albums and more. Sign up and create your flipbook.