Portfolio_2024

Page 1


MaaKamakhya AccessCorridor, Guwahati,Assam

LegislativeAssembly &Secretariat, Lucknow

LegislativeAssembly, AmaravatiCity Masterplan

HighCourtofJustice, AmaravatiCity Masterplan

LegislativeAssembly, Shillong MaaPateshwari AccessCorridor, Tulsipur

VedVigyanKendra, Naimisharanya

07 08 10

CivilAviationResearch Organisation, Hyderabad

JSSAHER University,Mysore

PrivateResidence, Guwahati 11 12 09

InternationalStadium Complex,Gorakhpur

Restaurant-cumViewingDeck, Guwahati

MaaKamakhya AccessCorridor, Guwahati,Assam

TheMaaKamakhyaAccessCorridor,alsoknownasMaa KamakhyaDivyalokPariyojana,isatransformative initiativeaimedatenhancingthepilgrimageexperience fordevoteesvisitingthereveredKamakhyaTemplein Guwahati,Assam.WithanestimatedcostofRs498.37 crore,thebrownfieldprojectfocusesonexpandingthe temple’scapacitytoaccommodate8,000to10,000 pilgrims,ensuringsmootherdarshan(viewingofthe deity)andsparshan(prayersandtouchingthedeity) experiences.Thecorridorfeatureswideopenspaces, separateareasforviewingandprayers,andlush greeneryalongnewlyconstructedpathways. Additionally,infrastructureenhancementsincludeanew road,aropewaysystem,apark,andbarrierfreeaccess toallpilgrims.Thisharmoniousblendofmodern amenitiesandspiritualsignificanceaimstoelevatethe pilgrimagejourneywhilepreservingthetemple’s culturalheritage

Client: PWD(Buildings&NH),Assam

ScopeofWork

PrincipalArchitect

Year: 2024

BALABHAIRAVTEMPLE

MAHAKALITEMPLESIDDHESHWARTEMPLEDHUMAWATITEMPLE

MAA KAMAKHYAMANDIR

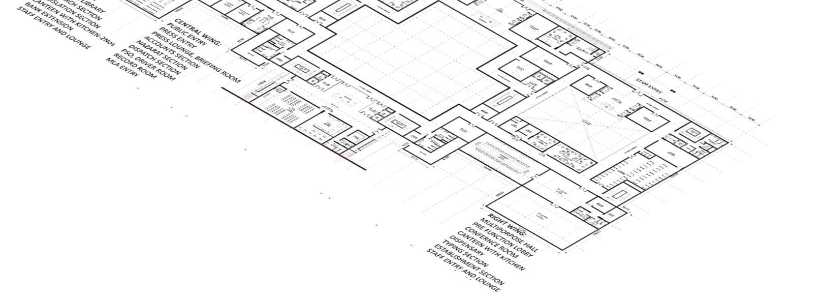
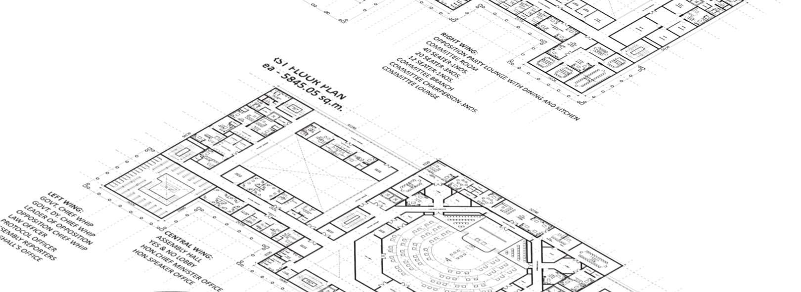
Legislative Assembly &Secretariat, Lucknow

The UttarPradeshLegislativeAssembly iscurrentlyexploring optionsforanewassemblybuildingin Lucknow duetospace constraintsintheexistingone,whichwasinaugurated 95years ago.Severalsiteswereunderconsideration.

OurmasterplanningconceptintendstorestoretheAXIAL GEOMETRYwhichwasoriginallyplannedfromVidhanSabhaup toLalBaghchowk.

ThisaxialgeometrymakeswayforSYMMETRICALDEVELOPMENT aroundtheexistingsecretariatblock(LokBhawan)ononeside andaroundtheVidhanSabhaontheotherside.Thewholesite coversanareaof84acresoutofthe175acresmentionedinthe RFP.

Theexistingblockismirroredtocreatesymmetry,thereafterthe expansionofthesecretariatisproposedcreatinganoverall balancedandcompactlayout.Thelayoutalsointegratesthe existinggpobymirroringitontheothersideandcreating balance

Withthespacecreatedthroughdemolitionofexistingsecratariat blocksaroundthevidhansabha,themasterplanfollowsalogical progressionandplacementofvidhansabhaextensioninthat area.

Client:

Govt.OfUttarPradesh.,Lucknow

ScopeofWork

PrincipalArchitect(Competition)

Year: 2023

Legislative Assembly, Meghalaya

TheMeghalayaLegislativeAssemblyBuilding Projectaimstoconstructastate-of-the-artassembly buildinginNewShillong,Meghalaya.Thisiconic structurewillserveasthelegislativehubforthestate government,providingmodernfacilitiesanda conduciveenvironmentforlawmakers,officials,and visitors.

KeyFeatures:

PrefabricatedSteelDome:Theassemblybuilding featuresastrikingprefabricatedsteeldome,assembled inDurgapur,WestBengal.

CentralizedAirConditioning:Theentirebuildingwill havecentralizedairconditioning.

RoomsandConferenceHalls:Approximately100 rooms,includingloungesandconferencehalls,will accommodatelegislatorsandadministrativestaff.

CompletionTimeline:Theprojectisontrackfor completionbyyear-end,withfinishingandpaintingwork at90%completioninthemiddleandrightwings.

Significance:Thenewassemblybuildingreplacesthe iconicoldstructuredestroyedbyfirein2001,markinga majormilestoneforMeghalayaafterovertwodecades withoutapermanentassemblybuilding.

Client:

Govt.ofMeghalaya,Meghalaya

ScopeofWork

PrincipalArchitect

Year: 2017

MaaPateshwari AccessCorridor, Tulsipur

TheMaaPateshwariShaktipeeth TempleinDevipatan,UttarPradesh,holdssignificant culturalandspiritualimportance.Recently, theDevipatanShaktipeethwasrecognizedasacenter offaithandabasisforIndo-NepalunityChief MinisterYogiAdityanathhighlighteditsroleasa culturalbridgebetweenthetwocountries.Thetemple complex,dedicatedtoMaaPateshwari,isoneof the51placeswhereSati’sorgansfelltotheearth duringDakshPrajapati’sYajna.

GuruGorakshanathinstalledtheidoloftheGoddess here,anditremainsreveredbydevotees.TheMaa PateshwariDevipatanDevelopmentCouncilhas beenformedtooverseethetemple’sdevelopment, especiallyintheDevipatanDivisionalongtheIndoNepalborder.

Plannedactivitiesincludeinfrastructureupgrades, landscaping,visitoramenities,culturalprograms, securitymeasures,eco-friendlyinitiatives,andan archivalcenter.Theseeffortsaimtoenhancethe temple’ssanctityandaccessibilityfordevoteesand visitors.

Client: UttarPradeshTourismDept.,Lucknow

ScopeofWork

PrincipalArchitect

Year: 2023

VedVigyan Kendra, Naimisharanya

TheVedVigyanKendra(VedicScienceCenter)isset tobeestablishedinNaimisharanya,UttarPradesh, India.Thisinitiative,announcedbyChiefMinisterYogi Adityanath,aimstohonorancienttraditionsand promoteVedicknowledge.Naimisharanya,asacred siteinSitapurdistrict,willsoonundergodevelopment aspartofthisproject.

TheVedScienceCenterwillincludeadministrative buildings,educationalfacilities,aGurukul(traditional Vedicschool),ayogahall,ayajnashala(fireritualhall), atemple,andothernecessarystructures. Additionally,aplanetariumwillbeestablishedfor studentsofastronomy.Thecenter’sobjectiveisto disseminatepreservedknowledgefromtheVedasand Puranasamongthegeneralpublicthroughstudy programs.

Client: UttarPradeshTourismDept.,Lucknow

ScopeofWork

PrincipalArchitect(Competition)

Year: 2023

LEGEND

1.VEDPATHSHALA

2.YAGYASHALA

3.ANUSHTHANMANDAP

4.GOUSHALA

5.PUSHKARNI

6.HOSTELS

7.MESS

8.YOGSADHNAKENDRA

9.DHYANAVATIKAWITHMEDITATIONPAVILLION

10.TEACHINGBLOCKFORMATURESTUDENTSAND INTERPRETATIONCENTERFORVISITORS

11.LIBRARY

12.HOSTELSFORMATURESTUDENTS

13.VISITORSHOSTEL

14.STAFFQUARTERS

15.JETTYONGOMTI

16.OAT

17.PARKING

18.ASSISTANTPROFESSORQUARTERS

19.DIRECTORRESIDENCEQUARTERS

TOTALPLOTAREA: 90304SQM 22.3ACRE

CivilAviation& Research Organization

CivilAviationResearchOrganizationismandatedto developingin-housecapabilitiesbyestablishingan efficientR&DsysteminthefieldofAirport/ANSwhichis consideredvitaltosupportvariousongoingAirport AuthorityofIndiainitiativesindigenously.Itistohouse suchanadvancedanduniqueR&Dfacilitythattheproject wasconceptualized.A29.5acreplotoflandfromthe existingBegumpetAirportcomplexatHyderabadwas carvedouttoaccommodatethenewfacilities.The buildinghasbeenconceptualizedkeepinginminda dynamicmodernformwithallamenitiesandfunctionsa reflectionofthenatureofworkthatistobecarriedout within.Theemphasisisonflexibilityofuseandscalability ofspaces.TechnologywithSustainabilityarealsokey underlyingfactorsintheplanningwithemphasisonIT systems,Intelligentbuildingmanagementsystemsand advancedsecuritysystemsintegratedintothestructure. Openspacesbothwithinandadjacenttothebuiltform areimportanttotheconceptwiththeintegrationofwater bodiesandsemicoveredspacesaswell.Thelinear planningandcourtyardsfacilitatelightingressand contributetothe5StarGRIHAratingthatthebuildingis designedfor.

Client: AirportAuthorityofIndia

ScopeofWork EPCContractor’sArchitect

Year: 2020

JSSAHER University

Varuna,Mysore

JSSAcademyofHigherEducation&Research, formerlyknownasJSSUniversity,isadeemed universitylocatedinMysore,Karnataka.This deemed-to-beuniversityisrecognizedbyboth MHRDandNAACatAGrade,hasbeenfocusing moreonteaching,researchandservice,fromits inception.Undertheleadershipandgracious PatronageandblessingsofHisHoliness

JagadguruSriShivarathriDeshikendra Mahaswamiji;theuniversityhasmadegreat progressingroominggraduates,postgraduates,and PhDresearchersofgreatacumenbyproviding effectivevaluebasededucationinalltheinstitution bygivingimportancetooveralldevelopmentofan individualthroughstate-of-artfacilitiestomake thelearnerausefulcitizentothecountry.

Client: JSSUniversity

ScopeofWork: Architecture+ Interiors Year: 2018

Miscellaneous Projects, PanIndia

AsaSeniorArchitect,Ihaveactivelyparticipatedin variouspan-Indiacompetitionsformiscellaneous projects.Myroleinvolvedconceptualizingdesigns, ensuringfunctionality,andaddressingunique challengesacrossdiversedomains.Theseexperiences haveenrichedmyunderstandingofarchitectural innovationandproblem-solving.

Whenapproachingarchitecturalprojectsacross differentregionsinIndia,Iadaptmydesignstrategies basedonseveralfactors:

•Climate&Geography

•CulturalContext

•Timelines

•Budget

•BuildingRegulations

•Moodboard&materials

International Stadium, Gorakhpur

LEGEND:

1.PEDESTRIANARRIVALPLAZA

2.FOOTBALLSTADIUMWITHTRACKAND FIELD–30000SEATER (PHASE1-15000SEATING,PHASE2-15000 SEATING)

3.PARKING

4.COACHACCOMODATION–20 COACHES(PHASE-1&2EACH)

5.PLAYERS’ACCOMODATION–130 PLAYERS(PHASE-1&2EACH)

6.INDOORSTADIUM–2345SEATER

7.ADMINISTRATIONBLOCK

8.CAFETERIA+SHOPS

9.PRACTISEGROUND

10.CRICKETSTADIUM–20000SEATER (PHASE-2)

11.CENTRALROTARYWITHSCULPTURE (ALLINTERNALROADWIDTHIS9MANDMAIN EXTERNALROADWIDTHIS20M)

Turn static files into dynamic content formats.

Create a flipbook
Issuu converts static files into: digital portfolios, online yearbooks, online catalogs, digital photo albums and more. Sign up and create your flipbook.