HIBRIDO-TERMINAL TERRESTRE-G13

Page 1

G13 S S I E R TERMINAL TERRESTRE Y CENTRO COMERCIAL - SULLANA

TALLER DE DISEÑO ARQUITECTONICO VII

FARIAS JIMENEZ PAMELA 100%
G13
CHINININ LACHIRA DIEGO 100% DOMINGUEZ GARCIA ALEXANDER 100%
CATEDRA: ARQ MARTIN SUAREZ VILLASIS Arquitecto colegiado egresado de la FAU de la Universidad de Chiclayo Experiencia profesional mayor a 26 años. Docente Universitario Doctorando en Arquitectura Doctorando en Educación. MBA – Master of Business Administration (UCV-2019). Estudios de Maestría en Proyectos de Energías Renovables. Estudios de Maestría en Proyectos de Inversión –Universidad de Piura Estudios de Maestría en Gestión Ambiental – Universidad de Trujillo Gerente General: GRUPO OYD S.R.L. Consultor de Obras - RNP Consultor Privado de Proyectos
04. 05. 07. CONTENIDO 01. CAPITULO ANALISIS DE LA LECTURA 02. CAPITULO DIAGNOSTICO Y PROPUESTA URBANA 03. CAPITULO PROGRAMACION ARQUITECTONICA CAPITULO FICHAS ANTROPOMETRICAS CAPITULO PLANTEAMIENTO GENERAL 06. CAPITULO ANTEPROYECTO ARQUITECTONICO CAPITULO DESARROLLO DE PROPUESTA INDIVIDUAL
A N
L I
L A L
C
01
A
S I S D E
E
T U R A
ANALISIS DE LA LECTURA 1. 1.CASO. SANTIAGO CAMINA 2.CASO. PUERTO VARAS LA CALLE COMO ESPACIO PUBLICO ESTRATEGIAS QUE HUMANIZAN LAS CALLES PROTEGER A LAS PERSONAS DEL TRÁFICO DEMARCAR CRUCES LEGIBLES OFRECER ACCESOS DIRECTOS SUPERPONER FUNCIONES PROMOVER LA IDENTIDAD LOCAL MEJORAR LA PERCEPCIÓN DE SEGURIDAD PROPUESTA DE INTERVENCIÓN LIGERA PRIORIZANDO A LOS PEATONES ACTIVAR LOS ESPACIOS ORIENTAR MOBILIARIO PARA MEJORES VISTAS CRUCE CON PATRÓN DISTINTIVO TACTICAS QUE HUMANIZAN LAS CALLES TRANSFORMANDO CALLES Y ESPACIOS PUBLICOS OPINIONES: HACE FALTA MÁS ACTIVIDADES RECREATIVAS QUE HAYA MÁS LUGARES DE COMIDA PARA LA GENTE QUE NO TIENE MUCHO DINERO FALTA LO QUE ES UN CICLOVIA DE ESTACIONAMIENTO A ZONA DE JUEGOS ESPACIO RESGUARDADO ZONA DE INTEGRACION SOCIAL INTERVENCION EN PUERTO VARAS, EL ANÁLISIS SE ENFOCÓ EN LAS 12 MANZANAS QUE CONFORMAN EL CENTRO COMERCIAL Y FUNDACIONAL DE LA CIUDAD. LOS CONTEOS DE PEATONES SE HICIERON EN LA CALLE SAN PEDRO, LA PLAZA DE ARMAS, EL MUELLE Y LAS CALLES TECHADAS.
D
Y P
02
I A G N O S T I C O
R O P U E S T A
PROVINCIA: SULLANA DISTRITO: SULLANA LIMITES TERRITORIALES SUPERFICIE: 488.01 km2 SULLANA SULLANA 2. ASPECTOS HISTORICOS ASPECTOS GENERALES 1. LOCALIZACIÓN, UBICACIÓN Y DELIMITACIÓN DEL SERCTOR: DEPARTAMENTO: PIURA Norte: Marcavelica Sur: Piura Este: Bellavista Oeste: Miguel Checa
DEL SECTOR Sullana es una de las 8 provincias que conforman Piura PROVINCIAS CAPITAL N° DE DISTRITOS 8 POBLACION 311 454 hab. 16,8% CONTEXTO MEDIATO CENTRO POBLADO DE JIBITO ÁREAS AGRÍCOLAS RESIDENCIAL OASIS AGRO YEX SERVICIO DE MAQUILLA 1861 - 1879 Sullana como distrito de Piura Balta eleva de categoría a Sullana 1962 - 1995 Formación de nueva carretera Piura- Sullana Núcleo de Servicios 2000 - 2012 Crecimiento económico generado por la agri Implementació n al mercado 2000 - 2022 Ingreso de Supermercados Problemas que afectan el desarrollo
DATOS
A A A
3. ASPECTOS AMBIENTALES MAPA DE ALTITUD Y TOPOGRAFÍA MAPA DE PELIGROS NATURALES MAPA
PELIGROS
En el corte transeversal se observa que existe un desnivel de 57.6 m a a los 4.000 m de distancia con una inclinación en promedio a 20.5% L A D E R A S E M B R Í O S H U M E D A L E S R Í O C H I R A M A L E C Ó N P R E I F E R I A U R B A N A Z O N A U R B A N A PELIGRO ALTO PELIGRO MUY ALTO PELIGRO ALTO PELIGRO MEDIO B PELIGRO MEDIO A Zona ár da Des izam entos Corriente del Niño Inundaciones D e s n v e t o p o g r á f c o l e v e S e m b r a d e a r r o z e n a s o r l a s A t a s c a m e n t o d e a g u a s f u v a e s P r n c i p a l e l e m e n t o h d r o g r á f c o A t r a c t v o t u r s i c o N u e v a s z o n a s u r b a n i z a d a s C a s c o u r b a n o CORTE A - A CORTE TRANSVERSAL Los movimientos
Los movimientos de grado 8 o 7 5 podrían desencadenar daños severos
estructura
presa
Rio
consecuencias muy graves LEYENDA Peligro muy alto Peligro alto Peligro medio Peligro bajo LEYENDA Peligro muy alto Peligro alto Peligro medio Peligro bajo SUELO CONSTRUCTIVO: Presenta gran cantidad de sales minerales por ende se utiliza tipos de cemento anti salitre ZONA DE MUY ALTO PELIGRO ZONA ALTO PELIGRO ZONA DE PELIGRO MEDIO Boquerón de Núñez Fuente: Indeci Desborde de Canal vía afecta Mercado Modelo Zona inundable por depresión topográfica
MapadeSullana
DE
SISMICOS
sísmicos y los terremotos también son un peligro potencial en la zona donde se ubica la cuenca del Chira
en la
de la
del
Chira, con

IMPACTO

El tratamiento activo de áreas verdes está dado en calles o parque principales tales como Av. José de Lama o la Plaza de Armas

Por lo menos una vez al año con cada evento de El Niño, se produce inundación pluvial en el distrito de Sullana, ocasionando daños en los elementos expuestos en sus dimensiones social y económica

La

Peligro
INDUSTRIALES
3. ASPECTOS AMBIENTALES
LEYENDA Peligro muy alto
alto Peligro medio Peligro bajo DESECHOS
SE VIERTEN AL SISTEMA DE ALCANTARILLADO DOMÉSTICO
MAPA DE PELIGRO POR INUNDACIÓN PLUVIAL
AMBIENTAL Y DEFICIT
DE AREAS VERDES
EXPOSICIÓN AMBIENTAL EXPOSICIÓN AMBIENTAL FRAGILIDAD AMBIENTAL RESILIENCIA ABIENTAL CAUSAS
PROBLEMAS AGUAS RESIDUALES DOMÉSTICAS SE VIERTEN AL RIO CHIRA LIMITADA RECOLECCIÓN DE RESIDUOS SÓLIDOS DESEMBOCADURA ENTREGA DE LAS AGUAS DEL CANAL VIA AL RÍO CHIRA
estado de áreas verdes es crítico, puesto que el área actual de 0.72m2 no cubre los m2 recomendados 35% 65% Parques locales Áreas verdes
El fenómeno del niño del 2017 la precipitación dejó varias viviendas afectadas en los sectores de Villa Primavera, Nuevo Sullana, Pilar Nores, 15 de Marzo, Zapata silva, Los Olivos y Jesús Maria por lo que las autoridades habilitaron un refugio ubicado en el terreno del Campo Ferial El canal vía principal acueducto de evacuacion de aguas pluviales de la ciudad, alcanzo un nivel alto, pero no llego a afectar a las viviendas
PRINCIPALES
El
OMS recomienda que debe existir al menos 9m2 de áreas verdes por habitante en la ciudad para poder asegurar una buena calidad de vida

TRAMA

En Sullana predomina la trama ortogonal dejando en prueba que esta cuenta con cierto desajuste (trama ortogonal desordenada)

La ciudad de Sullana se convierte en el eje central de vías de comunicación con las Provincias de Piura, Paita, Talara, Ayabaca, la Región Tumbes y la vecina República del Ecuador

En el Sistema Vial, encontramos a la carretera Panamericana que divide la ciudad en este y oeste

El canal -vía divide la zona en norte y sur Y el cuartel militar divide los distritos de Bellavista y Sullana

Estos limitantes y divisores de la ciudad impiden un buen flujo vial

VIADEARTICULACIÓNARTERIAL(VIASEXPRESAS) VIADEARTICULACIONMETROPOLITANA(VIAS ARTERIALES) VIADEARTICULACIONURBANA(VIA COLECTORA) 4. ASPECTO URBANO
URBANA
TRAMA
FLUJO VIAL-/TRANSPORTE URBANO CLASIFICACION DE VIAS
TRANSPORTE PUBLICO VIALOCAL
LEYENDA
55% 22% 6% 03% 14% Panamericana Flujoalto vehicular Flujobajo vehicular Congestionamiento

ASPECTO URBANO

SISTEMA VIAL ACTUAL

Sullana cuenta con un tejido urbano ordenado en la parte central de la ciudad y desordenado en las zona Oeste que son las nuevas habilitaciones urbanas que en los últimos años han crecido de una forma desordenada Tiene entre sus vías principales, tres que resaltan por su importancia:

Carretera Panamericana Norte

Esta carretera predomina por: ser el eje principal de la ciudad de Sullana y atravesar toda la ciudad, dividiéndola en Este y Oeste A nivel urbano, une los distritos de Marcavelica, Querecotillo, Salitral, Lancones, Ignacio Escudero y Miguel Checa y a nivel Regional es la principal vía de acceso a Talara, Piura y a nivel Nacional e Internacional con Tumbes, Chiclayo, Trujillo, Chimbote, Lima y Ecuador

Avenida José de Lama Va desde la carretera Panamericana, hacia el Oeste hasta el Jr 2 de Mayo y hacia el este su prolongación que sigue hasta Paita Esta avenida, con dos sendas y separador central, al llegar al Jr 2 de Mayo, se ve truncada por encontrarse con una zona de comercio informal y edificaciones no consolidadas

Nace en la Panamericana Norte en el nodo vial al Sur de la ciudad de Sullana donde se ubica el Mall Real Plaza, a nivel Interregional es la principal vía de acceso a la ciudad de Tambogrande, Ayabaca, Las Lomas, Suyo, La Tina, Palmas y Macara (Ecuador)

LEYENDA

Vía Principal Vía Secundaria Vía Local Centros
Sistema
Atractores
Vial Actual Complejo Comercial Terminal Terrestre
4.
Carretera Tambogrande
- Terminal
Centros Atractores
Terrestre

Sullana contiene una extensa variedad de usos de suelos en todo su territorio y la diversificación de estos es abundante, debido a que no solo posee lo esencial, sino que va más allá de aquello; tiene museos, cortes de justicia , instituciones mejores centros comerciales, entre otros que permanecen bastante presentes en la urbe

4. ASPECTO URBANO EQUIPAMIENTOS USO
Color Porcentaje Universidad Nacional de Frontera Universidad Nacional de Frontera Centro
Convenciones
Residencial 52.9% Árealibre 28.2% Industrial 6.8% Comercial 4.8% Otrosusos 3.7%
DE SUELOS Equipamiento
de
Hospital de Apoyo II
SERVICIOS BASICOS Sullana posee una diversidad de equipamientos, sin embargo el que más predomina es el de educación, . Según el SIGRID existen 213 instituciones educativas entre todos los niveles El siguiente equipamiento con mayor cantidad es el de comercio, este presenta un buen numero de puestos de venta mayorista como Real Plaza, Sodimac, Plaza Vea y el Mercado de Sullana EQUIPAMIENTOS
EQUIPAMIENTOS
TRA OS Zonas alejadas al centro de la ciudad de Sullana son las que carecen de servicios basicos tales como, agua, luz, etc. ESCASEZ DE SERVICIOS Leyenda ZONAS
ZONA PELIGROSA Leyenda La ciudad de Sullana posee varias zonas consideradas peligrosas , con abundante delincuencia, sicariato, entre otros
Fuente: Plano Urbano Sullana
PELIGROSA

De65amásaños De45a64años De30a44años De15a29años De1-14años Menoresdeunaño 0 50000 100000 150000

0 50000 100000 150000 200000

1961 1972 1981 1993 199920072017 250 200 150 100 50 0 1961 1972 1981 1993 1999 2017 2,000 1,500 1,000 500 0 2020 2022 2025 2030
50,000 0 5. ASPECTO SOCIAL CARACTERISTICAS DE LA POBLACION Se pudo observar que en la provincia de Sullana, por las tardes, al rededor de las 4-6 pm, la población suele reunirse en distintos espacios públicos como lo es principalmente la plaza de armas de la provincia para poder despejarse y conversar DESPLAZAMIENTO DE LA POBLACION MOTOTAXI COLECTIVOS CAMINANDO LEYENDA POBLACION EN LA ACTIVIDAD ECONOMICA RANGO DE EDADES DEL SECTOR Pobreza baja Pobreza media Pobreza alta FUENTE MAPAS: SISTEMA DE INFORMACION ESTADISTICA DE APOYO A LA PREVENCION A LOS EFECTOS DEL FENOMENO DEL NIÑO Y EL OTRO FENOMENOS NATURALES POBLACION DEL SECTOR HOMBRES Y MUJERES MAPA DE INCIDENCIA DE POBREZA TOTAL 2013 De 0 a 50 Hab/ha De 51 a 150 Hab/Ha De 151 a 250 Hab/Ha LEYENDA: De 251 a más Hab/Ha FUENTE Elaboración propia MAPA DE DENSIDAD POBLACIONAL POBLACION DEL SECTOR HOMBRES Y MUJERES PROYECCIÓN DEL CRECIMIENTO POBLACIONAL EVOLUCIÓN DE DENSIDADES ÁREA URBANA (Has) Tasa de crecimiento= 0.78%/12734 pob. Área urbana del disttrito= 14750 km2 Sullana al 2030 con 244 543 pobladores
Ocupación(Jubilado) Ocupación(Trabajadordelhogar) Ocupación(Trabajadorindependiente) TrabajadorDependiente 0 25.000 50.000 75.000100.000125.000 PobrezaAlta PobrezaMedia PobrezaBaja MUJERES HOMBRES 100,000 75000 50,000 25,000 0
250,000 200,000 150,000 100,000

Sullana no cuenta con muchos espacios recreativos para la poblacion ya que solo esta la plaza de armas de esta provincia, mostrando más la necesidad de areas recreativas ya que por costumbre la poblacion accede a estos lugares en familia.

El Distrito de Sullana se ha visto afectado en la gran inseguridad que existe, CALLES SOLIDAS, ESPACIOS PUBLICOS OSCUROS y comisaria que solo abastece al sector 01, teniendo la obligacion de evitar salir a cualquier hora del dia. Esto va incrementando en temas de sicariato

La falta de areas verdes en Sullana es considerable ya que no cuenta con espacios donde se pueda sentar a disfrutar de un momento en familia, falta de areas verdes y de espacios donde las personas puedan hacer deporte

En Sullana cuenta con un solo terminal terrestre que no esta bien equipado y que esta en toda la panamericana donde las personas corren riesgo de las pistas que se encuentran en mal estado, al igual que el centro comercial que solo cuenta con un solo para toda la poblacion de Sullana

6. REQUERIMIENTO URBANO
ARQUITECTONICO
FALTA
-
FALTA DE ESPACIOS RECREATIVOS FALTA DE SEGURIDAD A LA POBLACION
DE AREAS VERDES FALTA DE EQUIPAMIENTOS DE COMERCIO Y TERMINAL TERRESTRE
PLAZA DE ARMAS DE SULLANA COMISARIA DE SULLANA TERMINAL TERRESTRE DE SULLANA

VIVIENDA - ESTADO DE CONSERVACION

LA ALTURA DE EDIFICACION DE LA CIUDAD DE SULLANA ABARCA EN SU GRAN MAYORIA UN 60% UNA ALTURA DE NIVEL 3 Y EN MENOR PROPORCION DE NIVEL 4

ESTADO DE CONSERVACION DE LA CIUDAD DE SULLANA ESTA CALIFICADO POR BUENO, MALO Y REGULAR; EN DONDE EL 90% BUENO Y EL 10% ES REGULAR

6. REQUERIMIENTO URBANO - ARQUITECTONICO SALUD EDUCACION ZONAS
RECREACION PUBLICA COMERCIO
DE
EQUIPAMIENTOS
6. MAPEO Y RUTAS GECHISA EPPO MONTERO TERMINAL TERRESTRE AV PANAMERICANA RUTA PIURA RUTA: -MARCAVELICA -TALARA -ECUADOR RUTA TAMBOGRANDE SULLANA EXPRESS TERMINAL PAITA TERMINAL PAITA TERMINAL AYABACA TERMINAL FLORES DESTINOS HORARIOS GECHISA RUTA A PAITA- COLAN EPPO MONTERO TERMINAL TERRESTRE TERMINAL FLORES SULLANA EXPRESS TERMINAL PAITA PIURA PIURA PIURA - TALARA LIMA, TUMBES, CHICLAYO, TRUJILLO LIMA LIMA PAITA, COLAN MONTERO SU SALIDA CADA 30 MINUTOS DESDE LAS 6 AM HASTA LAS 9 PM GECHISA EPPO MONTERO TERMINAL TERRESTE SULLANA EXPRESS FLORES EPPO GECHISA SU SALIDA CADA 15 MINUTOS DESDE LAS 5:30 AM HASTA LAS 10 PM SU SALIDA CADA 45 MINUTOS DESDE LAS 6 AM HASTA LAS 8:30 PM TERMINAL TERRESTRE SUS SALIDAS VAN VARIANDO DE ACUERDO A LOS DESTINOS, DESDE 5 AM HASTA LAS 12:30 AM

Los locales internos con acceso directo desde el vestíbulo o nave común, tendrán una altura libre mínima de 3,00 m, superficie no inferior a 8,00 m2 y un lado no menor que 2,50 m. Los quioscos dentro del vestíbulo o nave, inaccesible al público, podrán tener cerramiento lateral y techo propio En este último caso la altura libre mínima será de 2,10 m El lado medido exteriormente no será menor de 2 00 m Los materiales que intervengan en su construcción serán incombustibles. Ningún elemento constructivo o instalación, fija o provisoria, perteneciente al quiosco podrá invadir con disposiciones salientes el espacio de la circulación de la nave entre el nivel del piso hasta 2,10 m

luminación y Ventilación En el caso de trabajar no más que dos personas, a los efectos de la iluminación y ventilación, será considerado como local de primera clase, y su superficie mínima no será menor que 9,00 m2 con un lado mínimo de 2,50 m y una altura libre mínima de 2,40 m.

CONTEXTO NORMATIVO LOCAL

La infraestructura de transporte de carga y pasajeros de vital importancia para la movilidad urbana y la eficacia en la cobertura del equipamiento urbano y servicios públicos en la ciudad de Sullana Todo esto en función de la ubicación del asentamiento y por supuesto de su rol y jerarquía urbana, propuesto por los Estándares de Urbanismo

7. NORMATIVA
CONTEXTO NORMATIVO NACIONAL
criterio del manual de Sistema Nacional de Estándares de Urbanismo MVCS 2018
C. N.
0 7 0 DE COMERCIO
El equipamiento comercial en la ciudad de Sullana está concentrada en los sectores Sullana Este, Bellavista y Sullana Centro, y están cerca de vías importantes como la Carretera Sullana Tambo Grande, la Av. Buenos Aires y la Av. José de Lama. Los 3 sectores mencionados son caracterizados por tener tiendas comerciales, merc ados de abastos y de micro y pequeñas empresas.
INTERNACIONAL DE ARGENTINA NORMA
NORMA A 110

http://ofi5 mef gob pe/invierte/formato/verProyectoCU/2493801

http://ofi5 mef gob pe/invierte/formato/verProyectoCU/2377009

https://ofi5.mef.gob.pe/invierte/formato/verProyectoCU/2435849

https://ofi5.mef.gob.pe/invierte/formato/verInversion/8144

https://ofi5 mef gob pe/invierte/formato/verProyectoCU/2372323

https://ofi5 mef gob pe/invierte/formato/verInversion/124094

https://ofi5.mef.gob.pe/invierte/formato/verProyectoCU/2386302

LISTA DE PROYECTOS EN TALLERES PRECEDENTES Y POSTERIORES

1 - Diseño arquitectónico de un centro comercial con utilización de coberturas de policarbonato, provincia de Sullana http://repositorio usanpedro edu pe/handle/USANPEDRO/4404

2 - Centro de abastecimiento y distribución de comercio central en la ciudad de Sullana https://repositorio.ucv.edu.pe/handle/20.500.12692/85596

3 - Centro comercial ecológico turístico y recreacional en la ciudad de Sullana - Piura https://renati sunedu gob pe/handle/sunedu/3099849

LISTA DE TESIS EFECTUADAS

TERMINAL TERRESTE DE SULLANA ORDENAMIENTO DEL SERVICIO DE TRANSPORTE INTERNACIONAL , INTERPROVINCIAL E INTERURBANO 1 https://repositorio usmp edu pe/handle/20 500 12727/3260

2 TERMINAL TERRESTRE INTERDISTRITAL INTERPROVINCIAL E INTERNACIONAL DEL DISTRITO DE SULLANA https://repositorio upao edu pe/handle/20 500 12759/6877

3 CENTRO COMERCIAL ECOLOGICO TURISTICO Y RECREACIONAL EN LA CIUDAD DE SULLANA - PIURA https://renati.sunedu.gob.pe/handle/sunedu/3099849

4 DISEÑO ARQUITECTONICO DE UN CENTRO COMERCIAL CON UTILIZACION DE COBERTURAS DE POLICARBONATO , PROVINCIA DE SULLANA http://repositorio usanpedro edu pe/handle/USANPEDRO/4404

LISTA DE PROYECTOS EN TALLERES PRECEDENTES Y POSTERIORES

1

PROPUESTA ARQUITECTONICA DE UN TERMINAL TERRESTRE PARA EL TRANSPORTE INTERPROVINCIAL EN LA CIUDAD DE TRUJILLO - TALLER PRE PROFESIONAL DE DISEÑO ARQUITECTONICO VIII Upao 2021

Disponible en: file:///C:/Users/U sua/Downloads/T7-G03-ENTREGA%2001%20EXPO PPT pdf

2. TERMINAL TERRESTRE SUSTENTABLE PARA EL TURISMO EN PISCO.

Disponible en: https://issuu com/axdesign09952019/docs/libro final axel ore para isssuf

3. TERMINAL TERRESTRE DE TARAPOTO - LA CASCADA

8. IDENTIFICACION
DE PROYECTOS - AMBITO TERRITORIAL
CARACTERISTICAS GENERALES (BANCO DE PROYECTOS MEF)
g y g y h / b / P CU 4 8 9

CARACTERIZACION DE LA SITUACION PROBLEMATICA

PROBLEMATICA 1

INFORMALIDAD DESORDEN ATRASO DEL PARQUE AUTOMOTOR

¿PORQUE SUCEDE ESTO?

Desinterés del sector privado por invertir en un local debidamente acondicionado

Falta de compromiso de los altos mandos del distrito para llevar a cabo proyectos que son vitales para el ordenamiento de la ciudad

¿A QUIENES AFECTA?

A la misma población debido a la alta demanda de pasajeros Los vecinos que están a los alrededores ya que genera mucho desorden La inestabilidad de los precios

PROBLEMATICA 2

El distrito de Sullana se ha desarrollado demasiado en los últimos años Del mismo modo la población ha ido incrementando , así requiriendo de más necesidades para mejorar la calidad de vida

El 80 77% de las personas se encuentran en un nivel moderado de invasión de espacio público, así también un 17 31% muestran un alto nivel de espacio público Esto quiere decir que existe carencia de normas legales y fiscalización para su venta.

LO QUE PRODUCE LA INFORMALIDAD

Descomposición de productos perecederos, aumento de ruido por la densidad poblacional, incorrecto manejo de residuos sólidos por falta de espacio en su stand o lugar de venta

CARACTERIZACIÓN DE LOS USUARIOS SEGÚN TIPOLOGÍA

OBJETIVOS E

Crear un flujo de urbanización estable

Hacer primordial las necesidades principales que es el trasnporte y comercio

1 2 3
Hacer crecer urbanísticamente
sector
INVOLUCRADOS
nuestro
OBJETIVOS INVOLUCRADOS MUNICP. DE SULLANA EMPRESARIOS EMPRESAS DE TRANSPORTE COMERCIANTES 2. PROPUESTA DE INTERVENCIÓN

OFERTA

OFERTA ACTUAL - INTERNACIONAL

AMBITO INTERNACIONAL

Actualmente se encontró a 5 empresas privadas de Ómnibus para el servicio en el Ámbito Internacional, estas brindan un servicio diario y cubren las siguientes rutas

DEMANDA

DEMANDA ACTUAL - INTERNACIONAL

AMBITO INTERNACIONAL

A La mayor demanda corresponde a los meces de julio y diciembre . por consiguiente en el estudio de flujos se determino que Presentando 11 salidas de ómnibus y 12 de llegada en las cinco rutas matrices con una población flotante total de 1128 pasajeros delos cuales 532 (47%) son de salida y 596 (53%) son de llegada.

TRANSPORTE TERRESTRE DE AMBITO INTERNACIONAL MOVIMIENTO DE PASAJEROS / DIA PUNTA

RUTAS/ ESTE CODIGO N DE SALIDAS DE VEH C/DIA

RUTA 01I SULLANALOJA

El servicio de transporte de ámbito Internacional cuenta con un total de 11 ómnibus; de los cuales, el 91% corresponden a la flota operativa y el 9% a la flota de reserva (retén).

N DE LLEGADAS DE VEH C/DIA

POBLACION FLOTANTE DE SALIDA DE LLEGADA TOTAL

EI1 2 2 80 80 160 EI2 2 2 84 84 168

SUBTOTAL 4 4 164 164 328

RUTA 02I SULLANAHUAQUILLASMACHALAGUAYAQUIL

EI13 4 5 218 282 500 EI14 2 2 90 90 180 EI15 1 1 60 60 120

Siendo la ruta matriz la ruta 02N la que concentra mayor parque automotor albergando a un 64% del total.

Ruta 01

Ruta 02

FLUJO VEHICULAR / DIA PUNTA / RUTA ESTE

SUBTOTAL 7 8 368 432 800 TOTAL 11 12 532 596 1128 % 47 53 100 532 596 12 11

FLUJO POBLAC FLOTANTE / DIA PUNTA/ RUTA ESTE

La ruta 01I:Opera con una frecuencia de viajes diarios presentando igual número de salidas y llegadas diarias (4) equivalentes a una población flotante de 328 pasajeros por día, en donde 164 son los de salida y de llegada también

La ruta 02I:Opera con una frecuencia de viajes diarios presentando siete (7) salidas y ocho (8) llegadas diarias equivalentes a una población flotante de 800 pasajeros por día, en donde 368 son los de salida y 432 son los de llegada

64% 36%

N O R T E

OFERTA

OFERTA ACTUAL - ÁMBITO NACIONAL Y REGIONAL

AMBITO NACIONAL:

Actualmente se encontró a 19 empresas privadas de Ómnibus para el servicio en el Ámbito Nacional, estas brindan un servicio diario y cubren las siguientes rutas

RUTA EMPRESA DE TRANSPORTE COD

Sullana - Tumbes

RUTA

S U R

AMBITO REGIONAL:

En la ciudad de Sullana existen 39 empresas que cubren la ruta de transporte público de pasajeros de ámbito regional distribuido en las cinco (5) rutas matrices mencionadas

RUTA

EMPRESA DE TRANSPORTE COD N O R T E Sullana - Tal/Org/Man Montero SAC-ETHMOPESA ET1 RT1 Eppo S A ET2

RUTA

EMPRESA DE TRANSPORTE COD

Turismo del Norte ET1 Eppo S A ET2

Sullana - Trujillo RT3

EMPRESA DE TRANSPORTE COD

Sullana - Chiclayo Empresa de transporte Chiclayo S A ET2

Empresa de transporte El Dorado S A C ET1

Empresa de transporte Chiclayo S A ET2

Empresa de transporte Pullma Bus E I R L ET3 Empresa de transporte Ittsa Perú S A C ET4

Sullana - Piura RT2

Atrunor S A ET3

Turismo América del Norte E I R L ET4

The Lions Rebecca Express E I R L ET5

San Miguel de Piura S R L ET6

Kanozo S.R.L. ET7

Wanka E I R L ET8

Roggers S R L ET9

Sullana - Lima RT5

Empresa de transporte Turismo Sol Peruano ET6

Sullana - Tarapoto Empresa de transporte Transnort ET5 RT4

Empresa de transporte Oltursa ET7

Empresa de transporte Challenger ET8

Empresa de transporte Tepsa ET9

Empresa de transporte Cruz del Sur ET10

Empresa de transporte Ronco Perú S A C ET11 Empresa de transporte Flores Hermanos ET12 S R L

Empresa de transporte Cavassa S A C ET13 Empresa de transporte y Turismo Sullana ET14 Express S A C

Empresa de transporte turismo Erick S A C ET15 Empresa de transporte turismo Murga ET16 Serrano E I R L

Empresa de transporte express turismo ET17 Tacna Internacional S C R L

Empresa de transporte Civa ET18 Empresa de Transporte Vicente Zamudio ET19

UNIDADES DE TRANSPORTE

Empresa de transporte El Dorado S A C ET1 RT1 Empresa de transporte Chiclayo S A ET2 RUTA

Belgica S R L ET10

Virgen de Lujan E I R L ET11

El mar S R L ET12

Liza Bus S A C ET13

Garce S R L ET14

Yovani S R L ET15

Milagros E I R L ET16

Don Antonio E I R L ET17 Margareth ET18 Señor de la Misericordia EIRL. ET19 Selva ET20

CCP Segundo Castillo ET21 Tours Garces ET22 Escomel ET23

Travel´s express ET24

JLG Luz del mundo ET25 Pepito EIRL ET26 Margarita ET27 Montero SAC-ETHMOPESA ET1

RUTA EMPRESA DE TRANSPORTE COD O E S T E

Sullana - Paita RT3

Turismo del Norte S R L ET28 Hermanos Geans ET29 Sergio Omena ET30 Los Profesionales ET31 Montero SAC-ETHMOPESA ET1

RUTA

Sullana - Tambogrande RT4

RUTA

Otoniel ET33

EMPRESA DE TRANSPORTE COD E S T E

Lucero ET34 Genecis ET35 LindoBalle ET36 Divino Niño ET37

EMPRESA DE TRANSPORTE COD

E S T E

Sullana - Ayabaca Satelite "La Capullana" ET38 RT5 Poderoso Cautivo ET39

Se cuenta con 527 vehículos, de los cuales 501 vehículos se encuentran operativos y 26 vehículos en retén

RUTA 1 26

RUTA 2 160

RUTA 3 10 10 160

RUTA 4 108 7 92 9

RUTA 5 53 8 15

RUTA Bus MiniVan StaT Wagon Combi Tot 26 160 180 216 76

4
4
2
5 59 18
1 13 5 18 RUTA 2 6 2 8 RUTA 3 9
13 RUTA
4
6 RUTA
77 RUTA Bus O Bus R total
Se cuenta con 122 Ómnibus, de los cuales 91 buses se encuentran operativos y 31 buses de reserva (reten)
La ruta N° 5 es la que concentra mayor parque automotor 75% 25% 63% 15% 6% 11% 5% Ruta 1 Ruta 2 Ruta 3 Ruta 4 Ruta 5
S U R

PARQUE AUTOMOTOR AMBITO REGIONAL RUTA NORTE RUTA SUR RUTA ESTE RUTA OESTE LEYENDA Combi Minivan Bus St Wagon

6% 100% 100% GRÁFICO N° 1 GRÁFICO N° 2 GRÁFICO N° 3 GRÁFICO N° 4 GRÁFICO N° 5

Para el estudio de la demanda se ha observado los meses con mayor índice de viajes y llegadas, esos meses corresponden al mes de Julio y Diciembre, épocas del año que se caracterizan por las festividades. MOVIMIENTO DE PASAJEROS

DIA PUNTA

RUTA N° de salida N° de llegada Población Flotante COD de veh de veh De salida De llegada Total

N O R T E Sullana - Tumbes RT1 12 3 12 2 560 171 560 114 1120 285 ET1 ET2

Sullana - Chiclayo

Sullana - Trujillo RT3

Sullana - Tarapoto RT4

RUTA N° de salida N° de llegada Población Flotante COD de veh de veh De salida De llegada Total S U R

100 75 50 25 0 53% 39%

100 75 50 25 0 SALIDAS LLEGADAS ÁMBITO NACIONAL

6 2 1 2 2 1 1 3 2 2 3 4 4 4 2 3 2 4 2 4

RESULTADO

8 2 1 2 2 1 1 3 2 2 2 4 7 8 3 3 2 3 3 4

342 104 57 112 128 54 108 180 128 120 162 256 256 224 112 168 112 224 112 248

456 104 57 112 128 54 108 180 128 120 162 256 448 448 168 168 112 168 168 248

798 208 114 112 256 108 108 360 256 240 324 512 704 672 280 336 224 392 280 496

FLUJO VEHICULAR DÍA PUNTA FLUJO VEHICULAR DÍA PUNTA LEYENDA Norte Sur 731 674 3153 3739 LEYENDA Norte Sur 15 14 54 64 72% 28% 78% 22% 77% 23% 77% 23% 89% 76% 6%5% 5%5% 14%

ET2 ET1 ET2 ET3 ET4 ET5 ET6 ET7 ET8 ET9 ET10 ET11 ET12 ET13 ET14 ET15 ET16 ET17 ET18 ET19

Se obtuvo 69 salidas de Ómnibus y 78 de llegada en las 5 rutas ya establecidas con una población flotante total de 8297 pasajeros de los cuales 3884 (47%) son de salida y 4413 (53%) son de llegada. Para la obtención de la población flotante, se ha considerado que el número de pasajeros promedio de salida y llegada es de 54-64 (para la Hr. Punta).

Ruta 1:

7am con un promedio de 2 buses 4pm con un promedio de 11 buses 11pm con un promedio de 3 buses

Hora punta de llegada

Ruta 3:

Ruta 4: Ruta 1-5:

5am con un promedio de 2 buses 8am con un promedio de 2 buses 12 pm con un promedio de 16 buses

Ruta 2: 5pm con un promedio de 2 buses

Sullana - Lima RT5
SALIDAS LLEGADAS DEMANDA
Diario Semanal Anual
DIARIO, SEMANAL, ANUAL TRANSPORTE
Población Flotante 5144 36008 1877560 MOVIMIENTO DE PASAJEROS:
NACIONAL
HORA PUNTA:
Ruta 2-3-4: Ruta 5:
Hora punta de salida

Para el estudio de la demanda se ha observado el mes de Diciembre siendo este el que tiene mayor registro vehicular y de pasajeros, esto debido a la oferta y demanda del comercio y servicios de la ciudad de Sullana en visperas de la navidad MOVIMIENTO DE PASAJEROS DIA PUNTA

NORTE OESTE

27% 5% Se obtuvoque diariamente hay un total de 1097 vehiculos de salida y 1033 de llegada en las 5 rutas ya

establecidas con una población

2844 24886 2150 2205

5884 49945 4004 4460 100 75 50 25 0

Diario Semanal Anual Población Flotante 37 933 26 5531 13 845 545

FLUJO VEHICULAR DÍA PUNTA FLUJO VEHICULAR DÍA PUNTA LEYENDA

3040 25058 1854 2255 SALIDAS LLEGADAS

9% 78% 6% 7% ESTE SALIDAS LLEGADAS

100 75 50 25 0

RUTA N° de salida N° de llegada % Población Flotante % de veh de veh De salida De llegada Total SUR 56 464 226 336
60 467 226 335
flotante
son
MOVIMIENTO DE PASAJEROS: DIARIO, SEMANAL, ANUAL TRANSPORTE NACIONAL 7% 41% 23% 29% 25% 43% 22% 6% 26% 46% 8% 8% 9% 78% 6% 8% 6% 77% Oeste Este 296 266 336 335 LEYENDA
TRANSPORTE TERRESTRE NACIONAL/REGIONAL HORA PUNTA SALIDA - LLEGADA AMBITO HORA PICO (SALIDA) PASAJEROS HORA PUNTA SALIDA VEH DE SALIDA HORA PUNTA HORA PICO LLEGADA PASAJEROS HORA PUNTA LLEGADA VEH DE SALIDA HORA LLEGADA REGIONAL 6:00 am7:00am 3354 68 8:00 am - 9:00 am 5033 76 NACIONAL 4:00 pm5:00 pm 953 16 11:00 am - 12:00 pm 1289 17 INTERNACIONAL 8:00 pm9:00 pm 213 4 9:00 am - 10:00 am 282 5 RESUMEN DE LLEGADA Y SALIDA (H.P.)
DEMANDA
-
ÁMBITO REGIONAL
Norte Sur 56 60 464 467
total de 65423 pasajeros de los cuales 31380 (49%)
de salida y 33070 (51%) son de llegada.
Norte Sur 2844 3040 24886 25058 Oeste Este 2150 1854 2205 2255

PARQUE AUTOMOTOR

-Parque

automotor: Es el conjunto de unidades destinadas a prestar el servicio público o privado de transporte.

Ómnibus:

Vehículo automóvil de gran capacidad, que sirve para transportar pers onas Vehículo automotor para el transporte de personas con capacidad para más de 30 personas, con una carga útil de 3000 a 9000 kg Y que pueden tener compartimientos de equipajes

DIMENSIONES

DIMENSIONES

DE VEHICULO

Longitud 14 00m 12 82m

Ancho total 2 60m 3 70m Distancia entre ejes 6 50m 6 0m Altura del omnibus 4 05m 3 70m Peso bruto maximo 30 00kg 15 00kg Canales y Plataformas

Ancho de canal para trafico en un sentido 3 50m Ancho para vias 7 0m Plataformas de anden en descenso 15 0m

AGENCIAS

Sullana cuenta con 89 empresas de transporte terrestre público; de donde, el 6% corresponde a las empresas de ámbito internacional, el 21% a las de ámbito nacional, el 44% a las de ámbito regional, mientras que el 29% a las de Ambito interurbano

En el tiempo de permanencia de los viajeros en la ciudad de Sullana es una estadía de ½ día En motivo de viaje en los 4 tipos de servicio de transporte es el comercio, seguido del trabajo. La movilidad que usan los usuarios viajeros para trasladarse a las agencias o paraderos, vemos que el Mototaxi es el que predomina en los servicios de transporte terrestre en los cuatro ámbitos En el tipo de equipaje, en el servicio de transporte internacional y nacional predomina el maletín mientras que en el ámbito regional es la mochila, maletín y carga y en el ámbito interurbano predomina la carga

OMNIBUS DOS PISOS UN PISO

PRINCIPALES NECESIDADES PROMOTORES

TRASLADO DE UN LUGAR A OTRO SERIVCIO EFICIENTE CALIDAD DE INFRAESTRUCTURA ESPACIOS DE INTEGRACION COMERCIALIZACION SEGURIDAD MOBILIARIO APROPIADO

promotores del desarrollo local, con personería jurídica de derecho público y plena capacidad para el cumplimiento de sus fines

MUNICIPALIDAD DE SULLANA MINISTERIO DE TRANSPORTES Y COMUNICACIONES

órgano del Estado Peruano que busca lograr un racional ordenamiento territorial vinculado a las áreas de recursos, producción, mercados y centros poblados, a través de la regulación, promoción, ejecución y supervisión de la infraestructura de transportes y comunicaciones

GOBIERNO REGIONAL DE PIURA

Encargado de la administración superior de la región. Se preocupa por el desarrollo armónico y equitativo del territorio, impulsando su desarrollo económico, social y cultural

MODALIDAD DE GESTION DEFINICION DE LA CATEGORIA

la propuesta hibrido centro comercial y terminal terrestre de propiedad pública o privada, destinada a prestar servicios al transporte de personas o mercancías, de ámbito nacional, regional y provincial acompañado del centro comercial , como un espacio colectivo con distintas tiendas; además, incluye lugares de ocio, esparcimiento y diversión

MOVILIDADURBANA SEGURIDADVIAL INFRAESTRUCTURA PARA LA COMPETITIVIDAD
R2-R3-R4-R5
RADIO DE
R1 R1 R1 R1 R2 R2 R4-R5 R4-R5 R3 R3 -ESTUDIANTES Y/O UNIVERSITARIOS TURISTAS/VISITANTES EXTRANJEROS COMERCIANTES FAMILIAS ÁMBITO NACIONAL ÁMBITO REGIONAL R1 R1 R2,R3,R4,R5 ÁMBITO INTERNACIONAL R2 R3 R4 R5
POBLACION BENEFICIADA
INFLUENCIA
RUTA DE INFLUENCIA ALA INTERNACIONAL 164 pasj 164 pasj LLEGADA SALIDA 90 pasj 282 pasj 218 pasj. 60 pasj 60 pasj. R1 - LOJA R2 - HUAQUILLAS R1 - MACHALA R4 - GUAYAQUIL 2 VEH SALIDA 2 VEH LLEGADA E3 4 VEH SALIDA 5 VEH LLEGADA E5 1 VEH SALIDA 1 VEH LLEGADA 90 pasj TERMINAL TERRESTRE 4413 pasj 3884 pasj LLEGADA SAL DA 31 436 pasj 596 pasj 532 pasj NACIONAL REGIONAL INTERNACIONAL 78 VEH LLEGADA 69 VEH SALIDA 31 314 pasj 1 152 VEH SALIDA 1 088 VEH LLEGADA 12 VEH SALIDA 11 VEH LLEGADA 86 2 % 12 1 % 1 6 % 87 7 % 10 8 % 1.5 % PASAJEROS / DÍA PUNTA 86 2 % 12 1 % 1 6 % 92 4 % 6 6 % 1% PASAJEROS / DÍA PUNTA PASAJEROS DE SALIDA PASAJEROS DE LLEGADA VEHICULOS DE SALIDA VEHICULOS DE LLEGADA EL ALA NACIONAL REGISTRA EL MAYOR FLUJO
EL ALA
EL
4 VEH SALIDA 4 VEH LLEGADA
DE PASAJEROS DE SALIDA Y DE LLEGADA SEGUIDO DE EL ALA NACIONAL Y POR ULTIMO EL ALA INTERNACIONAL
NACIONAL REGISTRA
MAYOR FLUJO DE VEHÍCULOS DE SALIDA Y DE LLEGADA SEGUIDO DE EL ALA NACIONAL Y POR ULTIMO EL ALA INTERNACIONAL
RUTA DE INFLUENCIA
2 302
401
401
pasj
R2
R3 -
R5 - LIMA R1 - TUMBES 2 774
R4
108 pasj 108
24 886 pasj 25 058 pasj
550 pasj 1 854 pasj 2 150 pasj 2 844 pasj 3 040 pasj R2
R3 - PAITA R5 - AYABACA R1 - TAL./ORG./ MAN 467
464
56 VEH SALIDA 60 VEH LLEGADA 600 pasj R4 - TAMBOGRANDE 884 pasj 884 pasj 296 VEH SALIDA 226 VEH LLEGADA 231 VEH SALIDA 231 VEH LLEGADA 105 VEH SALIDA 104 VEH LLEGADA 6 VEH SALIDA 8 VEH LLEGADA 15 VEH SALIDA 14 VEH LLEGADA 7 VEH SALIDA 7 VEH LLEGADA 2 VEH SALIDA 2 VEH LLEGADA 39 VEH SALIDA 47 VEH LLEGADA
ALA NACIONAL 342 pasj 456 pasj LLEGADA SALIDA
pasj
pasj
pasj 731
674 pasj
- CHICLAYO
TRUJILLO
pasj
- TARAPOTO
pasj ALA REGIONAL
LLEGADA SAL DA
- PIURA
VEH SALIDA
VEH LLEGADA

PROPUESTA DE EQUIPAMIENTO

Edificio Hibrido (Terminal Terrestre y Comercial )

Los edificios híbridos son estructuras capaces de albergar programas dispares, de promover la interacción de distintos usos urbanos y combinar las actividades privadas con la esfera pública

Comercio

ES una edificación que alberga tiendas y locales donde se efectúan negocios Así, congrega a un importante número de vendedores y compradores

Terminal Terrestre

AMBITO HORA PICO (SALIDA)

PASAJEROS HORA PUNTA SALIDA

Un Terminal Terrestre es una edificación complementaria del servicio de transporte terrestre, que cuenta con instalaciones y equipamiento para el embarque y desembarque de pasajeros y/o carga, de acuerdo a sus funciones.

HORA PUNTA SALIDA - LLEGADA

VEH DE SALIDA HORA PUNTA

HORA PICO LLEGADA

PUNTA LLEGADA

SALIDA HORA LLEGADA

CONCLUSIONES
OFERTA Y DEMANDA - CONCLUSION TRANSPORTE TERRESTRE NACIONAL/REGIONAL
PASAJEROS HORA
VEH DE
REGIONAL 6:00 am7:00am 3354 68 8:00 am - 9:00 am 5033 76 NACIONAL 4:00 pm5:00 pm 953 16 11:00 am - 12:00 pm 1289 17 INTERNACIONAL 8:00 pm9:00 pm 213 4 9:00 am - 10:00 am 282 5
SULLANA
RUTAS MATRICES AMBITO REGIONAL NACIONAL INTERNACIONAL RUTAS SULLANA - TAL/ORG/MAC
- PIURA SULLANA - PAITA SULLANA - TAMBOGRANDE SULLANA - AYABACA SULLANA - TUMBES SULLANA - CHICLAYO SULLANA - TRUJILLO SULLANA - TARAPOTO SULLANA - LIMA
SULLANA - LOJA SULLANA - HUAQUILLAS SULLANA - MACHALA SULLANA - GUAYAQUIL LA MAYOR DEMANDA VEHICULAR Y DE MOVIMIENTO DE PASAJEROS ES EL AMBITO REGIONAL CON UN APROXIMADO DE 62 750 pasj TANTO DE SALIDA COMO DE LLEGADA SEGUIDO DEL AMBITO NACIONAL CON UN APROXIMADO DE 8 297 pasj Y POR ULTIMO EL AMBITO INTERNACIONAL CON UN APROXIMADO DE 1 128
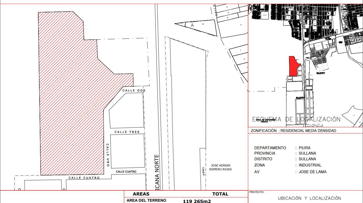
SECTOR: Sector 12 Sullana Sur 2. ANALISIS DE LOCALIZACIÓN Y CARACTERISTICAS DE LOS TERRENOS LOCALIZACIÓN UBICACIÓN, ÁREA Y PERIMETRO ZONIFICACIÓN
ZONIFICACIÓN: Comercio Especializado DEPARTAMENTO: Piura PROVINCIA: Sullana DISTRITO: Sullana PROYECTO Hibrido Terminal Terrestre PLANO: 01 Ubicación y Localización LAMINA: La zonificación del terreno es
metropolitano
compatible
Terrestre Interprovincial e Interurbano SECCIÓN DE VÍAS UBICACION: Carretera Panamericana a 2 194m del óvalo de Sullana Área: 119 265 m2 - 11 9Has PERÍMETRO: 1 644 50 ml Limita con la carretera panamericana Sullana - Piura carretera panamericana Tramo Piura - Sullana Sección A-A Cola del alacran Sección B - B
ESQUEMA DE LOCALIZACIÓN
comercio
siendo
con el comercio al por mayor con la propuesta de un hibrido entre comercio y Terminal

Para acceder al terreno de nuestra propuesta , está la carretera panamericana norte que es la vía principal para acceder, pero también hay una calle secundaria donde intercepta esta vía y también seria una opción de acceder

IMPACTO URBANO RIESGOS

hemos visto que hay muchos terrenos vacíos, donde da al lugar un aspecto muy desolado, pero a la vez, es una gran oportunidad para nuevas construcciones a un futuro y así crezca urbanísticamente

Nos encontramos que hay comercio informal y formalmente pero esto genera que un porcentaje del sitio se llene de mucha contaminación y que de un mal aspecto n

Lo que mas afectaría y que da un gran impacto urbano negativamente es la falta de áreas verdes, esto afecta mucho al crecimiento urbanísticamente

Otro punto que también impacta urbanísticamente es su vía principal que la tienen muy descuidada , tiene un aspecto de desolación y en la parte donde debería ir zona verde esta con puro arenal

FENOMENO DEL NIÑO

Un riesgo de construir en el terreno es el fenómeno del niño , ya que este terreno estaria cerca ala hora que se de este fenomeno y habria posibilidades que se inunde una parte

Tal como se muestra en el mapa vemos como la parte de nuestro terreno le afectaria un poco lo que es estos fenomenos naturales

RIESGOS SISMICOS

Estos riesgos sísmicos pueden ocasionar daños severos alas infraestructuras , últimamente se ha dado temblores fuertes , esto seria un gran riesgo y se tendría que tener buena estructura

2. ANALISIS DE LOCALIZACIÓN
CARACTERISTICAS
TERRENO ACCESIBILIDAD
Y
DEL
2. ANALISIS DE LOCALIZACIÓN Y CARACTERISTICAS DE LOS TERRENOS VULNERABILIDAD VALOR INMOBILIARIO DEL TERRENO (ESTIMADO) El riesgo por inundación ante fenómeno de El Niño Sullana con mayor vulnerabilidad sísmica en la región Piura Delincuencia y sicariato Carreteras dañadas que se encuentran cerca al terreno UBICACION: Carretera Panamericana a 2 194m del óvalo de Sullana. ÁREA: 119 265 m2 - 11.9Has PERÍMETRO: 1 644.50 ml COSTO: s/950.00 m2 SERVICIOS URBANOS
es alumbrado público en los alrededores
terreno no
con
alumbrado,
es
haga lo suyo Este es uno de los pocos que hemos encontra do y no bastaría
En lo que
de nuestro
cuenta
postes de
talvez uno que otro pero no
lo necesario , ya que esto da paso a que las calles estén muy oscuras en las noches y la delincuencia
el 80% de las edificaciones cercanas si cuentan con una conexión de agua potable , y un 75% con el servicio de desagüe , estos son % buenos ya que no tendríamos problemas al momento de edificar el proyecto
SECTOR: Nueva Sullana 2. ANALISIS DE LOCALIZACIÓN Y CARACTERISTICAS DE LOS TERRENOS 2 LOCALIZACIÓN INTEGRANTES: CÁTEDRA: ESQUEMA DE LOCALIZACIÓN ZONIFICACIÓN: Otros Usos DEPARTAMENTO: Piura PROVINCIA: Sullana DISTRITO: Sullana PROYECTO Hibrido Terminal Terrestre PLANO: 01 Ubicación y Localización LAMINA: UBICACIÓN, ÁREA Y PERIMETRO ZONIFICACIÓN La zonificación del terreno es Otros Usos por lo que se puede acoplar al entorno existente SECCIÓN DE VÍAS UBICACION: Nueva Sullana (AV.Jose de Lama-C Alf Romero Área: 15 42 Has PERÍMETRO: 1,675 23ml Limita con la carretera AV Jose de Lama AV Jose de Lama Sección A-A Calle Alfonso Romero Sección B - B

LEYENDA

Para acceder al terreno de nuestra propuesta , está la Av José de Lama que es la vía principal para acceder, pero también hay una calle secundaria donde intercepta esta vía y también seria una opción de acceder

IMPACTO URBANO RIESGOS

Presenta zonas deserticas con poca vegetacion y mucho descuido

Viviendas en mal estado con escasez de servicios basicos

En ciertas zonas abundan las áreas con basura

RIESGOS SISMICOS

Estos riesgos sísmicos pueden ocasionar daños severos alas infraestructuras , últimamente se ha dado temblores fuertes , esto seria un gran riesgo y se tendría que tener buena estructura

DELINCUENCIA

Estos riesgos sísmicos pueden ocasionar daños severos alas infraestructuras , últimamente se ha dado temblores fuertes , esto seria un gran riesgo y se tendría que tener buena estructura

RIESGOS PLUVIAL

Un riesgo de construir en el terreno es el fenómeno del niño

2. ANALISIS DE LOCALIZACIÓN Y CARACTERISTICAS DEL TERRENO
ACCESIBILIDAD

CRITERIOS

Macro accesibilidad 1

(En el lote deberá tener buena accesibilidad al sistema de carreteras internacionales, nacionales y regionales)

TERRENO 1 TERRENO 2

Se ubica en el ingreso sur de la Ciudad, limitando por la Carretera Norte

Queda a más de 6 km del centro de la ciudad

PUNTUACION 15 10

LEYENDA

CRITERIOS TERRENO 1 TERRENO 2

2. Estado de Infraestructura Vial actual (Referido a determinar, en materia de infraestructura vial)

Su principal via se encuentra hasfaltada

Las vías de acceso circundantes al predio son comp carrozables

PUNTUACION 15 10

CRITERIOS TERRENO 1 TERRENO 2

3 Localizacion respecto al flujo de pasajeros y vehiculos (El predio deberá concentrar al mayor flujo de pasajeros, aunque, por su localización si se lograra concentrar, en una misma infraestructura tanto a la mayor como a la menor demanda, el puntaje seria mayor)

Ubicación idónea que concentraría en una sola infraestructura la demanda Norte, Sur, Oeste y Este

Mayor recorrido de las unidades vehiculares, debido a su localización en el sur de la ciudad a más de 6 km del centro de la ciudad.

PUNTUACION 15 10

CRITERIOS TERRENO 1 TERRENO 2

Transporte Publico y Urbano

Cuenta con el servicio de transporte público que conecta los dos distritos

No cuenta con servicio de transporte publico

PUNTUACION 15 10

Al menos 01 de las vías de acceso circundantes al predio es asfaltada 15

Las vías de acceso circundantes al predio son afirmadas o carrozables 10

LEYENDA

Concentraría al mayor y al menor flujo de pasajeros y vehículos 15

Concentraría al mayor flujo de pasajeros y vehículos 10

Concentraría el menor flujo de pasajeros y vehículos 05

LEYENDA

Cuenta con servicio de transporte público de pasajeros 15

No cuenta con servicio de transporte público de pasajeros 10

LEYENDA Buena 15 Regular 10 Media 05
TABLAS DE COMPARACION Y VALORACION DE LOS TERRENOS

CRITERIOS TERRENO 1 TERRENO 2

Compatibilidad de Usos

Tiene uso especial y comercio especializado, en el primero es compatible y en el segundo es condicionado

Es compatible

PUNTUACION 15 10

CRITERIOS TERRENO 1 TERRENO 2

Servicio de Agua potable y Alcantarillado

Pasa a 100mt una red privada de agua al predio y cuenta con redes de servicio de alcantarillado o desagüe y buzones

No existe redes de abastecimiento de agua potable y no cuenta con red de desagüe.

PUNTUACION 15 10

CRITERIOS TERRENO 1 TERRENO 2

Servicio de Energia Electrica

Cuenta con tendido de cables para el suministro de energía eléctrica (subestación doble, poste de baja tensión más luminaria y poste de media tensión

Cuenta con tendidos de cables para el suministro de energía eléctrica (poste de media tensión)

PUNTUACION 15 10

CRITERIOS TERRENO 1 TERRENO 2

Tenencia del suelo o Zona Protegida El predio pertenece al ESTADO

El predio es de propiedad privada

PUNTUACION 15 10

LEYENDA

No requiere cambio de uso de suelo 15

Requiere cambio de uso de suelo 10

LEYENDA

Cuenta con redes de servicio 15

No cuenta con redes de servicio 10

LEYENDA

Cuenta con suministro de energía eléctrica 15

No cuenta con suministro de energía eléctrica 10

LEYENDA

Inscrito con restricciones 15

No está inscrito (escritura pública) 10

No está inscrito (sin documentos) 05

1 TERRENO 2 PUNTUACION FINAL 120 80

TERRENO

TABLAS DE COMPARACION Y VALORACION DE LOS TERRENOS
TENDENCIA DEL SECTOR - MIXTO ECONOMAX PROMART FRUTOS DEL PERU S A BALANZA ELECTRONICA M& MAI SHI GROUP S A C GRIFO PRIMAX SAMARSU S A C PROMIGAS PERU LA INDUSTRIAL Y EL COMERCIO ABARCAN CASI TODA LA ZONA DEL TERRENO ANALIZADO, EN LA IZONA INDUSTRIAL ABARCA TODO LO QUE ES FABRICAS Y COMERCIO TENEMOS EL CENTRO COMERCIAL REAL PLAZA EN DONDE SE ENCUENTRA PROMART Y ECONOMAX

CONCLUSIONES

Los planes estratégicos de comunicación de los centros comerciales, sus promociones, eventos, y ventajas competitivas sobre otros centros comerciales aunque estas no sean programadas de manera ordenada.7

Existe una escases de planes específicos de comunicación en Sullana sus objetivos principales son generar tráfico al centro comercial , además de darle a los clientes valores agregados, que hagan que se conviertan en la primera opción de compra en la demanda de centros comerciales de la zona.

A demás de tener una entidad comercial o económica, también tiene una gran connotación sociológica o antropológica, pues es un espacio de intercambio social y humano.

El terreno elegido permite una expansión futura para adaptarse a las exigencias del mercado asi como el desarrollo espacial debe ser fácilmente captable por los visitantes con el fin de evitar confusión o desorientación.

Finalmente se vio la necesidad de crear un plan de comunicación ordenado y estándar entre el centro comercial y el terminal terrestre , asi puedan utilizar de manera continua y versátil apegándose a sus propias necesidades y realidades

P R O G R A M A C I O N A R Q U I T E C T O N I C A 03

CASOS ANALOGOS (NACIONAL)

TERMINAL TERRESTRE TRUJILLO

CARRETERA PANAMERICANA NORTE KM 558 TRUJILLO

AREA 97 277 00 m2

PROPIEDAD DE LA MUNICIPALIDAD DE TRUJILLO

AV PARAMERICANA NORTE

CARACTERISTICAS

ESTRUCTRUCTURA SOBRIA Y TRANSLUCIDAD

AV. NICOLINI composición simétrica estructura metálica y cristal voladizos que resaltan la forma zigzagueante de su cobertura

Objetivo: solucionar los problemas de ubicacion y operacion de las empresas de transporte de pasajeros y calidad de embarque y desembarque

DATOS GENERALES

atiende una demanda semanal de 836 buses 817 buses y 28,580que desembarcan 230 salidas o viajes diarios . 46 stands de boleterías cada una con un area de 25 m2 11 locales para tiendas comerciales. 32 andenes de embarque , y 13 de desembarque , 29 de reten y una sala vip sala de espera ubicada en la zona de llegada 04 cafeterías . 200 plazas para estacionamiento privado

con aprox 29,285 pasajeros que embarcan

ZONIFICACION

espacio interior con el ingreso principal hacia el lado este del edificio la sala de desembarque conectada alas 11 sala de entrega de equipaje . corredor posterior que conecta con la zona de andenes de embarque dentro de las salas de embarque cuentan con servicios higiénicos , subestación y grupo electrógeno oficinas administrativas en el segundo nivel

CASOS ANALOGOS
(NACIONAL)

DATOS GENERALES

Pais: Ecuador

Área: 120 000m2

AÑO: 2007

Arquitecto: G. Platero

Uso: uso publico-/terminal terrestre/ c. comercial

DESCRIPCIÓN

La propuesta urbana y arquitectónica busca mejorar la funcionalidad y la seguridad del emprendimiento, disminuir las congestiones vehiculares y peatonales, mejorar la calidad espacial y ambiental

PROGRAMACION ARQUITECTONICA

ACCESO DE BUSES TRANSPORTE PUBLICO PARQUEO DE AUTOS

PARADERO DE BUSES TAXIS MALL COMERCIAL ANDENES BOLETERIA

Terminal Terrestre Guayaquil CASOS ANALOGOS 2 (INTERNACIONAL)

El Terminal Terrestre de Guayaquil comprende un área de 147 mil mt2.

Ahí circulan diariamente 136,838 usuarios. Un promedio de 54,519 pasajeros salen de la Terminal todos los días. 6,160 buses urbanos ingresan diariamente Los andenes son utilizados por 3.145 buses. Tienen un promedio anual de 43 millones de visitantes, usuarios y pasajeros.

DESCRIPCIÓN

El Terminal cuenta con un servicio publico: -84 Cooperativas -104 Boleterías -112 Andenes

También posee: -508 Destinos -24Provincias -3Regiones -2 Países

Terminal Terrestre Guayaquil CASOS ANALOGOS 2 (INTERNACIONAL)
ASAMBLEA GENERAL AUDITORIA EXTERNA AUDITORIA INTERNA DIRECTORIO COMISION EJECUTIVA GERENCIA GENERAL ASISTENCIA DE GERENCIA GERENCIA DE VENTAS FINANCIERO SUPERIVISION FINANCIERA ADMINISTRACION ASISTENCIA ADMINISTRATIVA COORDINACION RELACIONES PUBLICAS JURIDICO CONSTITUCIONES ASISTENCIADE RELACIONES PUBLICAS ASISTENCIADE JURIDICO ASISTENCIADE CONSTITUCION AMBIENTAL

EL COMERCIO EN EL TERMINAL TERRESTRE

¿FUNCIONARIA EL COMERCIO?

El transporte siempre ira de la mano con el comercio , los usuarios mayormente tienden a comprar cosas a último momento o simplemente se les olvido y cuando ya están por subirse al bus se acuerdan , igualmente con el negocio de comida los usuarios quieren ir comiendo algo a la hora de viaje ya sea cualquier tipo de alimento

A todo esto, fusionar un terminal terrestre con comercio sería muy rentable , ya que nuestro proyecto es grande y abarcaría un numero grande de pasajeros donde tendrían varias necesidades comerciales

TIPO DE COMERCIO

Solo se venderia cosas esenciales ,que la mayor parte de usuarios siempre compra antes de transportarse de un lado a otro

COMERCIO DECUALQUIER TIPO DE COMIDA O BEBIDA PERMITIDAS

COMERCIO DE LIBRERIA COMERCIO DE ACCESORIOS DE VIAJE

COMERCIO DE ROPA

COMERCIO TECNOLOGICO

Las áreas de ventas tendrán una buena área para que la gente sienta confort a la hora de comprar y no tenga necesidad de comprar afuera con el comercio informal

PROGRAMA ARQUITECTONICO
TERRESTRE
ZONA -TERMINAL
AREA TOTAL: 19343.38 m2 41% 49% 7%3% PROGRAMA ARQUITECTONICO ZONA -TERMINAL TERRESTRE

PROGRAMA ARQUITECTONICO

JUSTIFICACIÓN:

AMBITO NACIONAL - MODULO DE VENTA DE PASAJES TIPO 1

N° Pasajeros en hora punta = 953 - 4:00pm - 5:00pm. Se considera que un 60% realizan todas las actividades en la hora punta H P = 571 Tiempo promedio de compra de pasajes de 4-6 min

667 pasajeros

15 empresas

Existen 6 empresas con mayor demanda de venta de pasajes en día punta para los cuales se necesitaran 2 módulos de atención con 3 encargados de la venta de pasajes

X

AMBITO REGIONAL - MODULO DE VENTA DE PASAJES TIPO 1

N° Pasajeros en hora punta = 3354 - 6:00am - 7:00am. Se considera que un 70% realizan todas las actividades en la hora punta H P = 2348

Se necesitarían 2 boleterías por módulo para la atención de 48 pasajeros por modulo en un lapso de 1 - 2min.

El 77% de las empresas esta compuesta por omnibus = 23 empresas

hemos considerado un área de atención de 6 6m

El 23% restante esta compuesta por minivan, combi y station wagon = 7 empresas

2 2

hemos considerado un área de atención de 6 6m

Matriz de módulo de venta tipo 1 para 3 empleados es de 2 2x4 5=9 9m

Efectuando se obtiene

A = 9 9 x 12 módulos A = 118 8m 2 2

Matriz de módulo de venta tipo 1 para 2 empleados es de 2 2x3=6 6m

Efectuando se obtiene

A = 6 6 x 16 módulos

A = 92 4m 2 2

Ficha antropométrica N°

SALA DE ESPERA EMBARQUE TIPO 1

Total de pasajeros que harán uso del espacio durante la H P es de 667 pasajeros (70% de la demanda en H P ) Se considera que la mitad de los pasajeros aprox llevan acompañante acom = 334

N° DE ASIENTOS

N =(667+334) x 15'/60' N = 250 A A

AREA DE SALA DE ESPERA

A =M.P x N° de asientos

Efectuando se obtiene

A = 6 6 x 23 A = 151 8m DT DT 2

SALA DE ESPERA EMBARQUE

Efectuando se obtiene

A = 6 6 x 7 A = 46m DT DT 2

Total de pasajeros que harán uso del espacio durante la H.P. es de 2 348 pasajeros (70% de la demanda en H.P.)

N° DE ASIENTOS

N =(2348) x 10'/60'

N = 391 A A

AREA DE SALA DE ESPERA

A =M P x N° de asientos

2

A = 1m x 391 A = 391 m

SE SE SE 2

2

A = 1m x 250 A = 250 m

SE SE SE

2

AMBITO NACIONAL - SALA DE ESPERA TIPO 2

Total de pasajeros que harán uso del espacio durante la H P es de 360 pasajeros (consideramos el 80% de personas atendidas por las 6 empresas con mayor demanda y mejor servicio) =288 pasajeros

Se considera que la mitad de los pasajeros aprox llevan acompañante acom = 144 per

N° DE ASIENTOS

N =(288+144) x 20'/60'

N = 144 A A

AREA DE SALA VIP

A =M P x N° de asientos

Matriz de Área de atención = 5.1 m En la hora punta de llegada de omnibus tenemos un promedio de 16 buses mencionados en la demanda del proyecto, se considerará 1 modulo para cada omnibus de llegada N° de pasajeros de llegada en H.P. = 1289 Área de almacén de equipaje = 7m2 por modulo (ficha antropometrica)

2

A = 1m x 144

A = 144 m

SV SV SV 2

AMBITO NACIONAL - SALA DE DESEMBARQUE

Matriz de Área de atención = 5.1 m

En la hora punta de llegada de omnibus tenemos un promedio de 16 buses mencionados en la demanda del proyecto, se considerará 1 modulo para cada omnibus de llegada

N° de pasajeros de llegada en H P = 1289 Área de almacén de equipaje = 7m2 por modulo (ficha antropometrica)

Hallamos entonces que:

FICHAS DE REFERENCIA

Persona con equipaje de mano Área de entrega de equipaje

AREA DE ATENCIÓN - ENTREGA DE EQUIPAJE A = 5.1m x 16 buses de llegada A = 81.6 m2 A-EE 2 A-EE AREA RECEPCION DE EQUIPAJE A = 7 m x 16 módulos A = 112 m2 RE 2 RE CAPACIDAD DE SALA DE BIENVENIDA A = 30% del N° de pasajeros 1289 A = 386 per. SB SB AREA DE PASAJEROS A = 1m x 386.7 A = 386.7 m 2 P P AREA DE SALA DE DESEMBARQUE A = A + A + A A = 81.6 + 112 + 386.7 A = 580.3m2 SD SD A-EE RE P
Hallamos entonces que: AMBITO NACIONAL - SALA DE DESEMBARQUE 2

PROGRAMA ARQUITECTONICO

ACTIVIDADES DE UN TERMINAL TERRESTRE

VEHICULO DE LLEGADA / NACIONAL

INGRESO DEL BUS AL TERMINAL

ESTACIONA EN DESENBARQUE

DESCENSO DE PASAJEROS DESCARGA DE EQUIPAJE

VEHICULO DE LLEGADA / REGIONAL

INGRESO DEL BUS AL TERMINAL

ESTACIONA EN DESENBARQUE

DESCENSO DE PASAJEROS

SALE DE DESENBARQUE

DESCARGA ENCOMIENDAS

SE DIRIGE AL ESTACIONAMIENTO OPERACIONAL

SALE DE DESENBARQUE

SE DIRIGE AL ESTACIONAMIENTO OPERACIONAL

DESCARGA DE EQUIPAJE

VEHICULO DE SALIDA / NACIONAL

SALIDA DEL EST OPERACIONAL

CARGA ENCOMIENDAS

ESTACIONA EN ENCOMIENDAS

VEHICULO DE SALIDA / REGIONAL

SALE DEL EST OPERACIONAL

DESCARGA ENCOMIENDAS

SALE DE ENCOMIENDAS

ESTACIONA EN BAHIA DE EMBARQUE

SALE DEL TERMINAL CARGA EQUIPAJES

ASENSO DE PASAJEROS

ASENSO DE PASAJEROS

SALE DEL TERMINAL ESTACIONA EN EMBARQUE

CARGA EQUIPAJE

MANIOBRA DE SALIDA

CARGA ENCOMIENDAS

PASAJERO DE SALIDA

BAJA DEL OMNIBUS

USUARIO QUE REALIZA ENCOMIENDA

SUBE AL BUS

RECOGE EL EQUIPAJE CIRCULA EN EL TERMINAL COMPRA PASAJE

SALE

PERSONAL DEL TERMINAL

ENTREGA EL EQUIPAJE RECOGE ENTREGA

INGRESA SALA DE EMBARQUE CONTROLADO R

GUARDA EQUIPAJE PATIO DE COMIDA USO DE SS HH

ACT BANCARIAS COMPRAR BOLETOS OTRO VIAJE

VEHICULO PRIVADO TAXI MOTOTAXI

SALE DEL TERMINAL

SALE DEL TERMINAL

UN TERMINAL
DEJAR PERTENENCIAS ALMUERZO CIRCULA EN EL TERMINAL LLEGA AL TERMINAL PROGRAMA ARQUITECTONICO ACTIVIDADES DE
TERRESTRE PASAJERO DE LLEGADA
LLEGA A SALA DE DESEMBARQUE INGRESA AL TERMINAL BUSCA INFORMACION
PRIVADO TAXI MOTOTAXI
DEL TERMINAL PERSONAL DEL TERMINAL VEHICULO PRIVADO TAXI MOTOTAXI GUARDA EQUIPAJE PATIO DE COMIDA USO DE SS HH ACT BANCARIAS COMPRAR BOLETOS OTRO VIAJE CIRCULAR EN TERMINAL VEHICULO
INGRESA AL TERMINAL
INGRESA AL TERMINAL REGISTRARSE
PRIVADO TAXI MOTOTAXI
TAXI MOTOTAXI
VEHICULO
PERSONAL DEL COMEDOR VEHICULO PRIVADO
SS.HH MODULOS DE VENTA ESTACIONAMIENTO BOLETERIAS ANDENES DE EMBARQUE ZONA DE ESPERA SALA DE REUNIONES ESTACIONAMIENTO TIENDAS SS,HH PLAZA O AREA COMUN ZONA DE ESPERA ANDENES DE EMBARQUE PATIO DE COMIDAS GERENCIA DESEMBARQUE ZONA ADMINISTRATIVA ORGANIGRAMA GENERAL
ADMINISTRACION Sala de reuniones DEPARTAMENTO ADMINISTRATIVO Control de Trafico SS. HH Administrativos DIRECCION O GERENCIA FLUJOGRAMA DE ZONAS ZONA ADMINISTRATIVA SS HH Sala de archivos generales Contabilidad SERVICIOS OPERATIVOS Modulos de ventas de pasajes Almacen Aduanas Sala de Embarque y Desembarque Encomiend as SALA DE ESPERA SS.HH Mantenimien to de buses Anden de embarque y desembarque Control de abordaje SS.HH TERMINAL TERRESTRE

FLUJOGRAMA DE ZONAS

ZONA COMERCIAL

Farmacia

zona de descanso o recreacion

Ropa

Tiendas

Almacen

SS.HH

Patio de Comidas

Almacen SS.HH

Modulos de Venta

Modulos de Venta

ESTACIONAMIENTO

Cabina de Guardia MANTENIMIENT O DE BUSES

Sub estacion electrica

Cabina de perifoneo Cuarto de Maquinas

Cabina de perifoneo

DEPOSITO de limpieza

ZONA SERVICIOS

Talleres
SS.HH SS HH Dormitorios
GALERIAS plaza B O L E T E R I A S AV.PANAMERICANA AV.PANAMERICANA ÁREA VERDE SALIDA DE BUSES (INT /NAC ) INGRESO DE BUSES (INT /NAC ) INGRESO VEHICULAR INGRESOY SALIDA DE AUTOS (REGIONAL ) ESTACIONAMIENTO INGRESO Y SALIDA DE BUSES (REGIONAL) VIA.ECOLOGICA VIA.COLECTORA ZONA DE ESPERA B O L E T E R I A S ADMINISTRACION DEPOSITOS Y/O ALMACENES ANDENES DE EMBARQUE MANTENIIMIENTO DE BUSES ZONA DE ESPERA LEYENDA CIRCULACION VEHICULAR INGRESOS CIRCULACION PUBLICA D E S E M B A R Q U E ANDENES DE EMBARQUE IMPLANTACION - Y ZOONIFICACION GENERAL CONCEPTUAL

REQUERIMIENTOS CONSTRUCTIVOS

Los materiales como el acero pueden permitir que nuestro proyecto le de una mejor proyección de las formas geometricas.

Se logran composiciones interesantes con la exposición de los materiales constructivos como las cerchas en las cubiertas.

REQUERIMIENTOS AMBIENTALES

Puede evitarse el uso de aislante térmicos en cubiertas, si se mitiga con técnicas biológicas, como protección solar con vegetación y climatización

ventanales grandes a direcciones buenas , donde la luz natural iluminara gran parte del proyecto

REQUERIMIENTOS NORMATIVOS

La circulación de pasajeros y personal operativo deberá diferenciarse de la circulación de carga y mercancía

El ancho de los pasajes de circulación, vanos de acceso y escaleras se calcularán en base al número de ocupantes

Los pasajes interiores de uso público tendrán un ancho mínimo de 1.20m

NORMA A 110

Es recomendable el uso de materiales comunes , habitualmente en terminales terrestres modernos

-Acero vigas, columnas, coberturas ligeras -Concreto y ladrillo muros y espacios interiores -Vidrio Grandes ventanales, iluminación natural, espacios altos

Se tendrá en cuenta utilizar lo que es la ventilación cruzada que será desde la fachada a todos los espacios del proyecto.

un sistema de recolección para el agua lluvia o inundaciones, por medio de filtros y así el proyecto no se vea afectado en caso de estos problemas

La altura libre de los ambientes de espera será como mínimo de tres metros

El terreno deberá tener un área que permita albergar en forma simultánea al número de unidades que puedan maniobrar y circular sin interferir unas con otras en horas de máxima demanda

El ancho mínimo de los vanos de acceso será de 1.80 mts.

Las dimensiones de los andenes para abordaje deben ser suficientes para alojar al número de personas que pueda abordar entren en una estación

REQUERIMIENTOS TECNOLOGICOS

Buen confort térmico Localización GPS a tiempo real de la flota

Software de gestión de transporte

Optimización de las rutas

Registro de la ruta del vehículo en caso de robo.

Localización GPS a tiempo real de la flota Optimización de las rutas ya que es posible enviar al cliente el vehículo más cercano, ahorrando en tiempo y combustible

Los servicios higiénicos estarán sectorizados de acuerdo a la distribución de las salas de espera de pasajeros. Adicionalmente deben proveerse servicios sanitarios para el personal de acuerdo a la demanda para oficinas, para los ambientes de uso comercial como restaurantes o cafeterías y para personal de mantenimiento.

robotización y automatización de procesos y la colaboración entre empresas del sector para cumplir con el objetivo de impulsar la satisfacción del cliente al menor costo.

Las TIC no solo son un ente receptor y procesador de datos, a través de recursos vinculados como el Big Data, sino que permiten llevar toda esa información a un entorno único, como lo puede ser un software de gestión o sistema reporteador.

A
04
F I C H A S
N T R O P O M E T R I C A S

ANDÉN DE EMBARQUE Y DESEMBARQUE - TIPO 1

ANDÉN DE EMBARQUE Y DESEMBARQUE - TIPO 2

FICHAS ANTROPOMETRICAS

MODULO DE VENTA DE PASAJES TIPO 1

MODULO DE VENTA DE PASAJES TIPO 2

FICHAS ANTROPOMETRICAS

CONTROL DE ABORDAJE

CABINA DE PERIFONEO

FICHAS ANTROPOMETRICAS

OFICINA DEL GERENTE

FICHAS ANTROPOMETRICAS
SALA DE REUNIONES + ALMACEN

HABITACIONES DOBLES

FICHAS ANTROPOMETRICAS
FICHAS ANTROPOMETRICAS
FICHAS ANTROPOMETRICAS
FICHAS ANTROPOMETRICAS
FICHAS ANTROPOMETRICAS

CUARTODEMAQUINAS

FICHAS ANTROPOMETRICAS

SALADEESPERA AFORO390PERSONAS

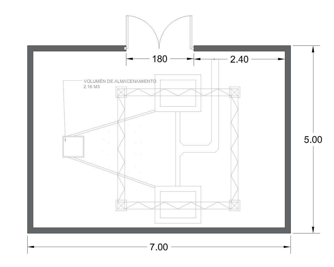
SUBESTACIONELECTRICA

FICHAS
ANTROPOMETRICAS
FICHAS ANTROPOMETRICAS
FICHAS ANTROPOMETRICAS
FICHAS ANTROPOMETRICAS
FICHAS ANTROPOMETRICAS
G
05
P L A N T E A M I E N T O
E N E R A L

PROBLEMATICA IDEA CONCEPTUAL

Sullana tiene una trama ortogonal y desordenada, por lo tanto existe una desconexion entre el sistema urbano

Sistemas urbanos desconectados

Areas en deterioro o no aprovechadas

Discontinuidad en el tejido urbano

Falta de conexion o desvinculacion

Articulacion

Integracion

La idea rectora es la union, articulacion, potenciacion e integracion del Sistema Urbano, se busca integrar y potenciar su uso Esto se vera reflejado no solo de manera territorial para Sullana sino asi mismo en el diseño de este Terminal Terrestre

Integracion a travez de la relacion con elementos naturales importantes

El recorrido conecta las areas de esparcimiento, con otros espacios importantes, aprovechando de esta manera la infraestructura

Conectividad con las redes de transporte publico y los equipamientos cerca del predio elegido

Los espacios se complementen entre si y asi mismo se conectan con el tejido urbano

Ordenar, activar y mejorar la actividad comercial y terrestre o vehicular

Tener en cuenta el clima , sol y los vientos predominantes

IDEA RECTORA
A N T E P R O Y E C T O A R Q U I T E C T O N I C O 06

TOPOGRAFICO

UBICACION Y LOCALIZACION
DISTRIBUCION GENERAL

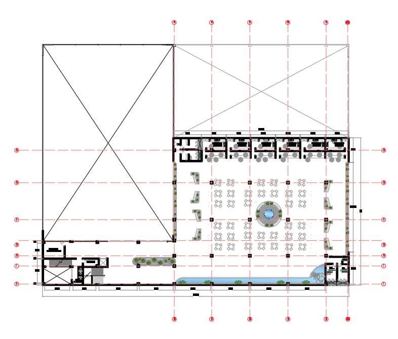
PRIMER NIVEL

SEGUNDO NIVEL

PLANTA DE TECHOS

ELEVACIONES

ELEVACION FRONTAL ELEVACION POSTERIOR ELEVACION DERECHA

VISTAS EXTERIORES

VISTAS EXTERIORES

VISTAS EXTERIORES

VISTAS EXTERIORES

VISTAS

VISTAS INTERIORES

VISTAS INTERIORES

VISTAS INTERIORES

Turn static files into dynamic content formats.

Create a flipbook
Issuu converts static files into: digital portfolios, online yearbooks, online catalogs, digital photo albums and more. Sign up and create your flipbook.