Architecture Portfolio

Page 1

ARCHITECTURAL PORTFOLIO

UDEGBUNAM CHIDERA | 2020 - 2022

Udegbunam Chidera Udegbunam Chidera 2 3 CONTENTS MICRO APARTMENTS PAVILION ISOLATION CENTER 01 03 05 04 02 NOVA PSYCHIATRIC HOSPITAL SHOPPING MALL

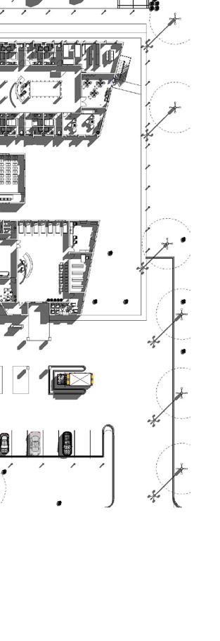
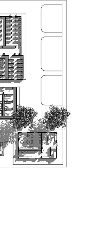
NOVA PSYCHIATRIC HOSPITAL

The main challenge of this project was to create a comfortable environment for mentally challenged people that play an important role in patient recovery. The purpose of this design was to help connect people with nature and combat stress, depression, anxiety and pain. For this reason, this project contains spaces such as courtyards, Gym, outdoor recreational area, and an occupational therapy room.

Design Concept

This concept represents a collection of buildings that constitute a type of community or network. The structure allows all zones and departments that are seperated in different directions to be connected by a courtyard.

Udegbunam Chidera 5
01 |
Revit | Lumion | Photoshop 2021
--
Ground Floor Plan
Design studio Individual project ARC 402
ARC Oladele Afolabi & ARC Oyedele Olabode

This hospital was designed with sustainability and biophilia in mind. It has features such as Green walls, Courtyards, floor to ceiling curtain walls for maximum lighting and ventilation, and a link between the indoors and outdoors.

The use of natural materials and extensive greenery, natural lighting, and ventilation help improve patient and staff satisfaction. The different levels this building has gives the building a dynamic flow and defines its shape.

Second Floor Plan

Approach view

First Floor Plan

Rear View

Right Side View

Physical Model

Left Side View

Udegbunam Chidera--
Chidera Udegbunam Chidera 8 9 3D Exterior Perspective 3D Exterior Perspective 3D Exterior Perspective 3D Interior Perspective 3D Interior Perspective 3D Interior Perspective
Udegbunam

SHOPPING MALL

This shopping mall follows the design philosophy ‘Form Follows Function’. The building’s purpose takes priority over its aesthetics. The building was inspired by the need to devlop the commercial Sector In Lagos. The parking lot and the proposed building have been zoned to reduce the probabilitiy of accidents occurring. The anchor store is strategically placed to attract customers. Revit | Lumion | Photoshop

Ground Floor Plan

Design Concept

My concept was gotten from playing around with the levels of a cube to form a specific shape.

Udegbunam Chidera 11 02 |
2020
First Floor Plan
Design studio Individual project ARC 401
ARC Oladele Afolabi & ARC Oyedele Olabode

The floor to ceiling windows allow proper natural light to enter into the building making it energy-effiecient. Sustainability is a key piority that is used to minimize the carbon footprint of the building. Each store has a translucent sliding door giving customers an opportunity to have a peek into the stores before entering.

Chidera Udegbunam Chidera 12 13
Udegbunam
Approach View
3D
Exterior
Perspective Physical Model Rear View Right Side View Left Side View

This design was inspired by a small space competiton. It is maximizing small spaces and converting them to living spaces. These spaces can be maximized by using neutral tones, using room dividers, Adding extra storage, using lower furniture, and using accessories as decor.

Udegbunam Chidera 15 03 |
APARTMENTS
MICRO
| Lumion | Photoshop 2022 BEDROOM BATHROOM KITCHEN KITCHEN BEDROOM BATHROOM WOODEN PANEL FLR FIN WOODEN PANEL FLR FIN CERAMIC TILE FLR FIN CERAMIC TILE FLR FIN CERAMIC TILE FLR FIN CERAMIC TILE FLR FIN BEDROOM BATHROOM KITCHEN WOODEN PANEL FLR FIN CERAMIC TILE FLR FIN CERAMIC TILE FLR FIN LAUNDRY CERAMIC TILE FLR FIN Ground Floor Plan First Floor Plan 3D Exterior Perspective Intern Architect Design project Polystyrene Solutions Limited
Revit
Udegbunam Chidera Udegbunam Chidera 16 17
View Rear View
Side View Left Side View 3D Exterior Perspective 3D Exterior Perspective
Approach
Right

| ISOLATION CENTER

This design was inspired by the pandemic that occured in 2020. The idea was to create a space that can have an alternate use after it is no longer needed as an isolation center. Materials such as wood has been used prominently because it’s versatile, flexible and cost-effective.The building can be converted to a multipurpose hall and reverted back incase of an emergency. Revit | Lumion | Photoshop

Udegbunam Chidera 19 04
-CALL ROOM BATHROOM
2020
Ground Floor Plan
Design studio Individual project ARC 302 ARC Akande Ifeoluwa 3D Exterior Perspective

The building has large windows that allows alot of natural light, natural materials, greenery that aids recovery for the patients. There is a seperate part of the bulding that seperate patients that need to be excluded from the others.

Approach View

Udegbunam Chidera Udegbunam Chidera 20 21
3D Interior Perspective 3D Interior Perspective 3D Interior Perspective 3D Interior Perspective
Rear View Right Side View Left Side View

| PAVILION

This pavilion serves as a structure that is located at a park to provide shelter for people who wish to take a break from the sun. There are seats strategically placed inside this structures for people to sit and relax. Revit | Lumion | Photoshop

This concept is a combination of wooden beams and columns that is completely surrounded by crawlying plants and flowers to provide shade from the sunlight. The colour and shape of the plants makes it aesthetically pleasing to look at.

Udegbunam Chidera 23
05
2022 Design studio Individual project ARC 31O ARC Akande Ifeoluwa
3D Perspective 3D Perspective
Concept Diagram Floor Plan

Turn static files into dynamic content formats.

Create a flipbook
Issuu converts static files into: digital portfolios, online yearbooks, online catalogs, digital photo albums and more. Sign up and create your flipbook.