Architecture Portfolio 2024

Page 1


NG CHEN YIN

architecture portfolio

Collection of Architecture Works (2018-2024)

Postgraduate Architecture Works (Part II - Universiti Malaya)

Undergraduate Architecture Works (Part I - UCSI University)

Memorial of Faith - Papan, Perak (2018)
Communal Religious Hub - Nilai, Negeri Sembilan (2019)
Business Incubator - Putra Heights (2019)
Activist (Art)efact - Downtown KL (2024)
Re(Active) Tapestry High Rise (2022)
The Vessel Training Centre (2022)
Visitor Interpretive Centre - Petaling Street, KL (2018)

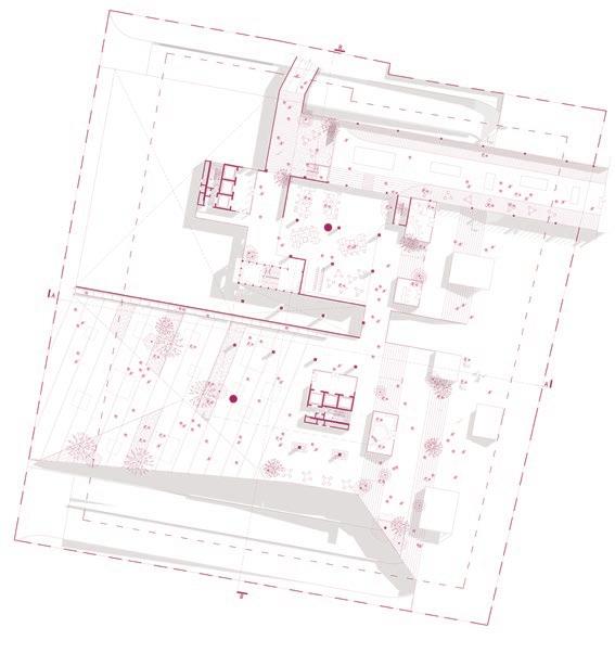
Activist (Art)efact Downtown Kuala Lumpur

This thesis reviews the relationship between ‘Arts of Advocacy’ and ‘Advocacy for Arts’ by reimagining spaces of congregation in the urban fabric of Downtown Kuala Lumpur. It experiments with architectural solutions that can reshape activism through art as a prevailing societal expression. The project is viewed through the lens of architectural representation and semiotics, illustrating how architecture can symbolize and facilitate the continuous exchange of creative ideas and cultural expressions through transformable spaces.

These changing spaces reflect the project’s form-making process, representing people’s voices and stories in a positive light of art forms.

in Multi-Ground: Connections to the city Dialogue with the City:

Spaces

Massing Development

SULTAN HISHAMUDDIN

Use of Congregation Plaza (Sec A-A Zoomed)

A venue of celebration that is inclusive to all forms of creative expression for public discourse.

Celebrating art of the people with the people.

1. Stage of Performances (performing arts)

2. Art Installation (visual arts)

3. Digital Projection (media arts)

4. Congregation/ Rally (public discourse)

5. Art Festival / Art Fair (community)

Experimentation on Moving Modules

The Congregation Plaza
The Grand Slope

Water Promenade next to River Of Life

View from standing on elevated walkway adjacent to Central Market, looking towards the water promenade for art activities.

Scan for full thesis report

Re(Active) Tapestry

High-rise, known as building with more floors, often times are associated with negative perceptions such as ‘industrial capitalism’, ‘negative effects of privatization of space’, ‘lacked to provide more public city life’ and others. Can a high-rise give back to the surrounding community other than being merely for the insiders?

Rethinking office towers, the project acts as a catalyst for urban well being through the implementation of movement. Interior spaces are layered with capsule balconies, interweaving to form captivating spaces just like a tapestry.

As a tower captures plenty of light, elements such as thermo bi-metal screens and meshes allow light to filter through and cast patterns within the building.

Incorporating MOVEMENT: FOOT TRAFFIC into the evolution of Office - respond to the idea of Active Living in an urban setting to build a Smart City.

1. Typical Office Tower

Looking into the most common office tower design with centre core, spaces of a workplace are arranged at the perimeter.

2. Shared Amenities

Amenities and shared facilities tend to be divided for multitenant floors. Each spaces are separated in configuration.

3. More Diversity

Future tower should provide for more diversity of tenants per floor such as small and medium enterprise. Foot traffic will also increase in common corridors.

4. Vertical Connection

With consideration of side core placement, future office tower has the opportunity to create more functional shared spaces by scattering amenities throughout floors and develop vertical connections to encourage movement.

Vertical Connection: Capsule Balcony

Let me get on a phone call.

Capsule Balconies in Workplace for... Jom morning coffee!

I have a meeting just upstairs!

I hit my 10,000 steps today!

With future office towers occupying more diversity of tenants per floor, we expect floor traffic to increase in common corridors.

Office Units Configuration

Five (5) - Floor - Modules

Other than relying on elevators, we have the opportunity to create more shared spaces by scattering amenities throughout the tower and develop vertical connections among floors through simple staircases which encourage movement.

Catering for medium sized enterprises, each office lots are around 1,450-1,650sqft in size. Amenities are provided in the central spine to encourage collaboration.

Catering for small sized enterprises, each office lots are around 600-725sqft in size. Big meeting rooms are shared for all to use for space saving and collaboration.

With full floor tenant, open

are

to allow for a central collaboration space where workers interact and share ideas.

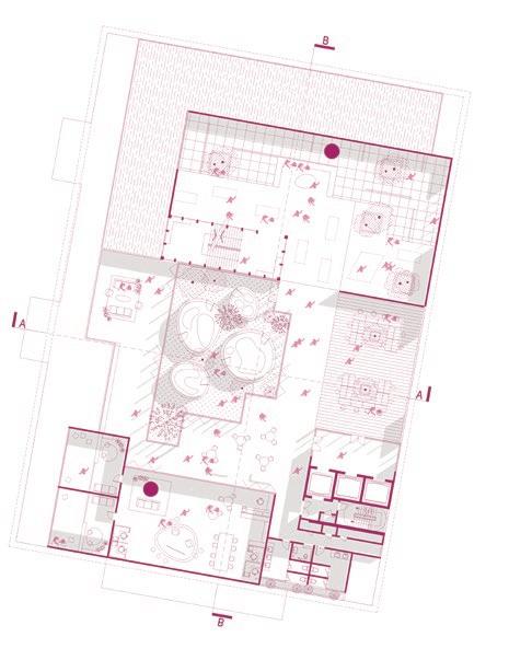
The Vessel

The project engages with a question: how does architecture respond to form interaction in a community consumed by the digital interface?

A Social/Digital platform - inspired by the form of communication in the digital realm. The design is to act as a multimedia vessel, to be seen and noticed like a ‘post’ on a platform, it sits high above the land like a flying craft within the heart of Kuala Lumpur.

To be where ideas interact, exchanged and eventually given a ‘thumbs up’, it performs as a live feed update of information. And to be publicized and ‘shared’, it functions as a platform where assets of knowledge are spread and passed on from one user to the next.

Bukit Bintang, Kuala Lumpur

From Micro Housing towards Research Lab

Central atrium allows natural light to penetrate into the building. Coming out from the lift lobby, one is able to get an overview of the training centre with greeneries and various activities.

Drop

Off from Jalan Bintang

Drop off of Lobby B facing Prince Court Medical Centre celebrates the triple volume high ground floor. With various street art exhibition, digital mural and many more can be held here in the plaza, it always bring a sense of welcome to fellow visitors and `insiders.

Social Seed Business Incubator

Putra Heights, Subang Jaya

Designed, created and managed to provide business advice and mentoring in social business/ entrepreneurship. Carrying the function of an incubator nonetheless, elements of Urban Agriculture are incorporated to develop a financially self-sustainable incubator. Hence in a long run improve the green knowledge economy of surrounding communities.

Main spaces are carved out accordingly with consideration of connectivity and integration of one space to another.

Welcoming Entry

Cascading walkways compliments the entrance view from afar.
View
entrance - Jalan Putra Mahkota

Communal Religious Hub

this communal religion hub is specially designed to serve the surrounding community and cater their needs in life, which never limited to spiritual and social needs.

As a self-sustaining communal religious hub, spaces such as learning, mass gathering, incomegenerating and other unique facilities are designed in order to support the livelihood of the complex as a whole.

Nilai, Negeri Sembilan

Kindergarten Classrooms - Space Configurations

Kindergarten Classrooms

With education as the main programme to bridge communal & religion activities, rooftop classrooms are carefully curated with its very own outdoor green area. The idea of having ourdoor spaces interconnected come from the curiousity nature of children’s behaviour.

Monument Garden
Terrace Seating / Cafeteria
Kindergarten Classrooms

Sectional Detail

to create a journey experience, a linear axis is then proposed within the volumes of spaces. volumes are fragmented into series of small spaces well integrated with open spaces.

Photo Montage: Two-Faces of Chinatown

Visitor Interpretive Centre

Petaling Street, Kuala Lumpur

Proposed to rejuvinate the old but gold essence of Petaling Street by creating a journey throughout the architecture of spaces, allowing visitors to further understand the history of Petaling Street.

In connection to cultural, historical or natural sites, it is the new style museum that disseminates the knowledge of heritage. This is a celebration of transparency, opacity and urban experience.

Open community space, seating area & market

Allow visitors to experience the local culture & environment. Spaces are interlaced and integrated with canopy of greens.

Proposed Site

Altar, gallery and courtyard as main spaces.
Gallery is placed on first floor to frame a view overlooking

Volumes are determined according to space functionalities.

While some praised life, some grieved death. The legacy of Sybil Kathigasu did not happen without sacrifice, pain and suffetings. This memorial commemorates her spirit and preseverance, as a monument itself by the lake in Papan, Perak.

of

Project explores the narrative in architectural design to commemorate the spirit of Sybil Kathigasu, a brave Malayan Eurasian nurse who supported the resistance during Japanese occupation of Malaya.

The story of Sybil Kathigasu was to be deconstructed into parts or scenes that interprets a turning point of the story, then reconstructed into an architecture.

Courtyard as the heart of memorial, connects spaces inside out.
Memorial
Faith Papan, Perak

Memorial of Faith

Comprises of simple and essential spaces to emphasize the quality of space for spiritual contemplation.

Approaching the memorial, visitors are greeted with a monumental entrance. Using concrete as the main material, this memorial aims to deliver the sense of primitive and unfinished.

Courtyard covered with canopy of trees act as the connection to all spaces.

Roof Plan

Proposals in Urban Context

Proposals

The design discourse began with a design of installation narrating the writings of Sybil. Deploying the deconstruction design pedagogy, the writings of Sybil are deconstructed into reconstructing an entire new notion of narrative into the memorial. Spatial organization were emphasized upon transitional spaces within the buildings yet potentially blend into the site context.

Forming a new “image of the city” through paths, landmarks, edges, nodes and districts, identities of different proposals are connected together to bring a full experience in Papan, Perak.

Section Across Lake
in Urban Context

01. Canopy walkway outside of memorial

02. Connection to neighbour proposal

03. View towards the Lake

04. Front Entrance

05. Building Overview by the Lake

06. Side Elevation

(Top Right) Courtyard - Under canopy of trees and play of shadows, different sizes of roof apertures allow different intensity of light entering the space.

(Bottom Right) Gallery - Extended towards the lake, exhibitions can be held embracing the surrounding context, an inside out experience.

Central Courtyard
the Bridge Gallery

Scan For Employment Works (2020 - 2024)

Turn static files into dynamic content formats.

Create a flipbook
Issuu converts static files into: digital portfolios, online yearbooks, online catalogs, digital photo albums and more. Sign up and create your flipbook.