Portfolio 2024

Page 1


01 Firing Up

Master Thesis 2022 S1

A design proposal to preserve the traditional heritage of Thow Kwang Dragon Kiln in Singapore and expand its functions to facilitate relevant cultural events.

02

The Arch Revival

Master Studio D 2021 S1

A design proposal for National Gallery of Victoria Contemporary - a dialogue between the real and the imagined

Student Projects

03

Healing Hub

Bachelor Studio Epsilon 2019 S2

A biophilic design of a healthcare centre that provides healthcare services and promotes healthy lifestyles.

04 Applied Architectural Technology

Master Tech Studio 2021 S1

A multifunctional skyscraper design with detailed technical drawings.

One of two such kilns left in Singapore, Thow Kwang Dragon Kiln, built by Chinese diasporic migrants from Chaozhou in the 1940s, was bought by the descendant of a master potter in 1965 and survived over three generations. Whereas in the past, the kiln fired handmade latex cups, orchid pots, funereal and other ceramic ware essential for the local Chinese community, it currently is struggling due to declining demand. The government’s redevelopment proposal for the site threatens to destroy the kiln. This thesis aims to design facilities that recognize the value of preserving the intangible heritage of pottery making in a globalized economy.

The proposal aims to provide a heritage preservation scheme and expand its function to accommodate cultural activities such as Singapore Clay Festival. The overall design, which acknowledges the existing dragon kiln by borrowing its formal language of dome patio and its materiality nature of ceramic tiles, contains a protective structure for the dragon kiln, a museum, a cafe and a central courtyard for crafting and drying pottery. The roof of the protective shelter was made distinct from the rest to emphasise the importance of the heritage. The cafe is designed in the traditional Peranakan style to celebrate the cultural integration in southeast Asia.

Individual Work
Master Design Thesis S1 2022
Tutor: Anoma Pieris & Athanasios Tsakonas
Parti Diagram illustrating the distribution of architecture in Singapore that applied ceramic tiles as the main decoration
Photos of Thow Kwang Dragon Kiln
Site Location
Sunlight Analysis
Site Contours
Site Accessibility

The Arch Revival

Individual Work

Master Studio D Sem 1 2021

Tutor: Anna Nevegna

Gallery is where the real meets the imagined. Situated next to the old Gallery, National Gallery of Victoria(NGV) Contemporary is an expansion of the old NGV archives which displays contemporary art and design. A terrace for shops and social spaces in the middle separates the entire building into two parts. The lower bottom part which comprises an atrium and temporary galleries represents the imagined. The dome and arch that echo the entry of the existing NGV, borrowed the formal language of the pre-historical cave as the most primitive form of art display. In contrast, the top part of the gallery used for permanent galleries and offices is more conserved and regular in architectural form, representing the real. The overall design is therefore a dialogue between the real and the imagined.

Concept Development
Exploded Diagram

Healing Hub

Individual Work

Year 3 Semester 2 2019

Tutor: Mark Irvine

Healthcare Centre

Healing Hub is a proposal for a local health centre in Carlton, Victoria, next to the City of Melbourne. The site is located next to the University of Melbourne Parkville campus, surrounded by many student apartments and a few affordable housing. The architectural design aims to provide a healing environment for the neighbouring residents to cure and care. Natural materials such as timber and bright colours are used extensively to create a lightful and healing ambience. Meanwhile, privacy of customers is thoughfully considered in the consultation room through blinds of the waiting area seats.

Exploded Diagram

Applied Architectural Technology

Group Work

Master Year 1 (Sem 1 2021)

Tutor: Luca Calvanese

Skyscraper Technical Design

Group Members: Luyang Xu, Zhuoqi Chen, Fangzhou Cheng

Exploded Diagram

Niushoushan Pumped Storage Power Station Owners’ Camp

Team: Shuai Song, Yifan Jiang, Fangzhou Cheng

Site Area: 100,000 sqm

Sep 2022 - Nov 2022

Master Plan + Industrial + Office + Residential

Niushoushan Pumped Storage Power Station, located in the northern part of Ningxia Province, is a semi-closed community for the workers in the pumped power station to work and live in. The overall design, including the landscape design, is in traditional Chinese architectural style with a prominent axis that overrules spatial hierarchy. Buildings form several courtyards with traditional Chinese gardens in the centre.

Rendered View of Dining Hall and Sports Centre
Dining Hall Ground Floor Plan
Dining Hall First Floor Plan
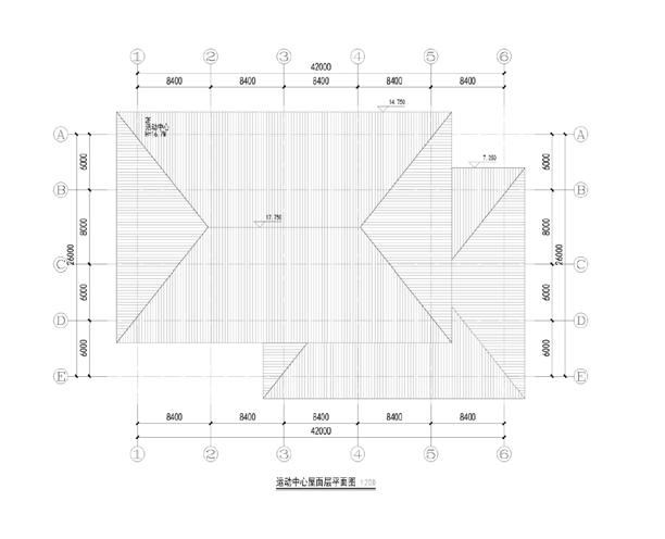
Dining Hall Roof Plan
Dining Hall Section
Dining Hall North and South Elevation
Dining Hall East and West Elevations

Burqin Pumped Storage Power Station Owners’ Camp

Team: Siyan Guo, Yifan Jiang, Fangzhou Cheng

Site Area: 27030 sqm

Oct 2023 - Jan 2024

Master Plan + Industrial + Office + Residential

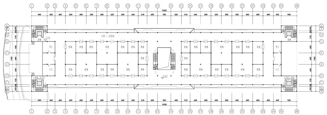
Burqin Owners’ camp is a place for the workers in the pumped storage power station to work and live. Located in the rural region of Xinjiang Autonomous Territory, Burqin Pumped Storage Power Station Owners’ Camp comprises one office building, two dormitories, two hostels, one multipurpose hall(including canteen), one power station, one constant temperature garage, one laboratory, one guardhouse and some other infrastructural facilities.

Huangzhong District Cultural and Heritage Centre

Team: Wendang Yang, Shuai Song, Fangzhou Cheng

Site Area: 10302 sqm

Aug 2022 - Sep 2022

Schematic design: Cultural and Commercial

Huangzhong District Cultural and Heritage Centre is located near Ta’er Temple in Xining City, Qinghai Province. It is an exhibition space for displaying local cultural heritage and selling locally designed merchandise. The architectural form is derived from the Tibetan prayer flag, where the glass facade and the slanting roof create a transparent and dynamic space. The materials respond to the surrounding shophouses to integrate the building with the nearby commercial district.

Front Facade

Gold Water Bridge

Team: Yifan Jiang, Fangzhou Cheng

Site Area: sqm

Mar 2023 - Apr 2023

Schematic design: Cultural and Commercial

Gold Water Bridge is located in Huayin County, Weinan City, Shaanxi Province, near Mount Hua. Due to the high volume of tourists visiting Mount Hua, the bridge is designed to be a three-storey high commercial district in traditional Chinese Style to connect Mount Hua with the town centre. It offers space for cafes, restaurants and vendors selling local products.

Rendered View

Ruoqiang Guardhouse

Team: Zhi Cheng, Fangzhou Cheng

Site Area: sqm

Oct 2023 - Dec 2024

Schematic design: guardhouse

This project is a detailed two-storey guardhouse design. The guardhouse contains space for guards in the pumped storage power station camp to work and live. The ground floor is for office and storage, whereas the second floor is the dormitory.

Ground Floor Plan
Roof Plan
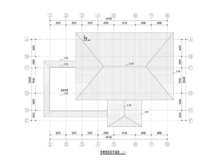
Second Floor and Decking Plan
Elevations
Elevations and Sections

Turn static files into dynamic content formats.

Create a flipbook
Issuu converts static files into: digital portfolios, online yearbooks, online catalogs, digital photo albums and more. Sign up and create your flipbook.