Architecture Portfolio Updated (Jan 2025)

Page 1


Hi, I’m Fredy Chavez

Bachelor of Architecture - Architectural Technologist

Toronto, Canada

+1 416-716-1506

fredycharq@gmail.com

linkedin.com/in/t-fredy-chavez/ @fredycharq

SOCIAL BUILDINGS INTERIORISM ARCHVIZ ARCH. HOUSING

SKILLS

Bachelor’s degree in Architecture (Ricardo Palma University, Peru) and Advanced Diploma in Architectural Technology (Centennial College, Canada), with over 3 years of experience in architecture, interior design, and landscaping. Worked as an intern architect and as a freelancer developing independent projects for clients.

Pro cient in 2D/3D software, rendering programs, Adobe Creative Suite, Microsoft O ce, and social media management for architectural promotion. Known for adaptability, organization, and strong communication skills, combined with a passion for design and a collaborative, reliable work ethic.

LANGUAGES

Autocad - Revit - Sketchup

D5 render - Lumion - Enscape - TwinM.

Photoshop - Indesign - Illustrator - A. E. Word - Excel - Power Point

Krea

EDUCATION

INTERN ARCHITECT Be Arquitectos, Lima, Peru

FREELANCER Independent Projects https://www.instagram.com/fredycharq/ |

EXPERIENCE

BACH. DEGREE IN ARCH. Ricardo Palma University ADV. DIPLOMA IN ARCH.

Centennial College

01 02 03 04

LOW-RISE COMMERCIAL BUILDING

Modern 8-story senior housing building prioritizing accessibility, comfort, and sustainable design solutions.

Toronto. Canada

Shopping center located within the Greater Toronto Area, mainly composed of commerce, offices, and restaurants. The project is distributed among 3 buildings, each with a maximum of 2 floors.

Scarborough, Toronto, Canada

SHOPPING CENTER APARTMENT RENOVATION

Project carried out on the edge of the ravine overlooking the Pacific Ocean, composed of various blocks distributed across 4 levels.

Minimalist and modern apartment renovation with pastel tones and microcement finishes.

Peru

SENIOR HOUSING RESIDENCE
Barranco, Lima, Peru
Callao,

SENIOR HOUSING RESIDENCE

COLLEGE PROJECT - CENTENNIAL COLLEGE

Year: 2024

Author: Fredy Chavez

Checker: Arch. John Romanov

Project: Senior Housing

Use: Residence

Location: Toronto, Canada

Area: 17,202 m2

Construction System: Framed Structure

This project presents a modern 8-story senior housing building thoughtfully designed to address the specific needs of aging residents. The layout emphasizes accessibility with barrier-free pathways, spacious living areas, and features that promote safety and ease of movement. Communal spaces such as lounges, gardens, and activity areas are integrated to encourage social interaction and foster a sense of community among residents.

Sustainability is a key element of the design, incorporating energy-efficient systems, natural ventilation, and the use of eco-friendly materials to reduce environmental impact. Large windows maximize natural lighting, creating bright, welcoming interiors while lowering energy consumption. This project aims to provide a secure, comfortable, and adaptable environment that enhances the quality of life for seniors while setting a benchmark for modern, sustainable senior housing.

The 8-story senior housing building is in a quiet area of Toronto with green spaces and city amenities nearby. It is close to healthcare, public transportation, shops, and parks, which makes it very convenient for seniors. The design focuses on easy access and creating a community for the residents, considering the needs of the neighborhood.

The building design matches the area by using modern and ecofriendly ideas. Big windows and balconies give views of nature and bring more light inside. The materials, like brick and glass, fit with the local style, making it look modern but also part of the city. This project is made to be comfortable, functional, and respectful to the environment and its surroundings.

The ground floor features the main lobby, reception, and communal spaces such as a lounge and multipurpose room. It includes wide entrances and accessible pathways, creating a welcoming environment for residents while promoting interaction and ease of navigation.

The basement includes parking spaces, storage rooms, and mechanical areas, designed for efficient use of space. It ensures accessibility with elevators and stairwells connected to all floors, providing convenience and easy movement for both residents and visitors.

Ground Floor
Basement

The second floor hosts activity rooms, a small library, and a wellness center for fitness and relaxation. It is designed to encourage physical and mental well-being, offering spaces where residents can engage in hobbies and socialize comfortably.

Second Floor

This render from the rooftop captures the expansive views of Toronto’s skyline and surrounding green spaces. The rooftop features landscaped areas designed for relaxation and socializing, offering residents a peaceful outdoor retreat in the heart of the city

The corner view showcases the building’s height and architectural flow, emphasizing its strategic integration into the neighborhood. The use of glass and brick offers a contemporary yet harmonious design, allowing natural light to fill the interiors while

This exterior render captures the building’s modern, welcoming design, highlighting its clean lines and large windows that blend seamlessly with the surrounding urban landscape. The building’s warm materials and greenery create an inviting atmosphere for residents and visitors alike. At dusk, this render illustrates the building’s lighting design, where warm lights highlight the structure’s features, creating a cozy and secure environment. The soft glow of the building contrasts with the natural surroundings, enhancing the peaceful, residential feel of the area.

LOW-RISE COMMERCIAL BUILDING

COLLEGE PROJECT - CENTENNIAL COLLEGE

Year: 2023

Author: Tito Fredy Romells Chavez Cano

Supervisor: Arch. Henry Levy

Project: Low Rise Commercial Building

Use: Commerce - Offices - Restaurant

Location: Toronto, Canada

Area: 11,202 m2

Low Rise Commercial Building located on Kingston Road, Toronto, Canada. This plot hosts three constructions: a two-story officeretail building with a restaurant, another similar building, and an independent restaurant. All meticulously designed with a focus on Ontario Building Code regulations to ensure both functionality and sustainability.

The site for this low-rise commercial building is in a busy area of Toronto, with a mix of homes, shops, and offices. Nearby, there are retail stores, cafes, and other businesses, making it a great spot for companies. The design of the building is modern and fits well with the area, using natural materials and large windows to make it welcoming for both workers and customers.

The location has good access to public transport, making it easy for people to get to the building. It also focuses on sustainability with green roofs and energy-efficient systems that match the urban environment. The building is close to parks, offering a good work-life balance while staying connected to the city’s commercial life.

The first floor features a spacious lobby with a reception area, providing a welcoming entrance for visitors. It also includes retail spaces with wide windows to attract customers, as well as storage rooms and accessible bathrooms. The layout is designed for easy movement and maximum use of the available space, ensuring smooth flow between areas.

Ground Floor

Second Floor

The second floor consists of office spaces with open-plan areas and private meeting rooms, allowing flexibility for businesses. Large windows offer natural light and views of the surroundings. The design also includes shared amenities such as a break room, bathrooms, and a small kitchenette, ensuring comfort and convenience for workers.

From the side, the render highlights the building’s simple yet elegant structure, showcasing its low-rise form and the use of natural materials like brick and wood. The surrounding landscape, including green spaces and trees, enhances the overall aesthetic, creating a calm, pleasant atmosphere.
The rear view emphasizes the functional outdoor spaces, such as a small courtyard or patio area, designed for both employees and visitors to enjoy. The simple, clean facade is complemented by surrounding greenery, offering a balance between urban development and nature.
This render shows the building’s inviting entrance, with large glass windows that connect the interior to the street. The design emphasizes clean lines and contemporary materials, blending well with the surrounding urban context while offering an open, welcoming look.
This perspective captures the building at a key intersection, highlighting its corner design that interacts with the street and pedestrian flow. The expansive glass windows and modern facade make it stand out, while still fitting naturally into the neighborhood’s commercial fabric.

SHOPPING CENTER

UNIVERSITY PROJECT - RICARDO PALMA UNIVERSITY

Year: 2017

Author: Tito Fredy Romells Chavez Cano

Supervisor: Arch. Oscar Anibal Fernandez

Project: Shopping Center

Use: Commerce

Location: Barranco District - Lima, Peru

Area: 11,202 m2

Construction System: Framed Structure

Shopping center in Barranco, located in the heart of the emblematic district of Barranco in Lima, Peru. This innovative shopping center, strategically positioned on the edge of a cliff, offers spectacular views of the Pacific Ocean, marking a milestone in modern shopping experiences.

Inspired by Frank Lloyd Wright’s Fallingwater, my design integrates the imposing aesthetics of brutalism with the elegance of curtain walls clad in aluminum panels.

This construction, consisting of two levels and two sublevels, transcends the idea of a commercial space to become an icon that enriches its residential urban environment. Through the incorporation of sustainable practices and green areas, the Barranco Shopping Center is not just a building but a vibrant and eco-friendly community center, designed for both local residents and visitors, reflecting the dynamic and cultural spirit of Barranco.

© Copyright 2022 All rights reserved for all countries, for all texts, as well as all illustrations, photographs, documents, and renders presented in this portfolio. The texts, illustrations, photographs, and documents are the property of their respective author.

Located in the heart of the vibrant district of Barranco in Lima, Peru, this shopping center is a masterpiece of contemporary architecture. Positioned in a privileged location on the edge of a cliff with panoramic views of the Pacific Ocean, it draws inspiration from the aesthetics of Frank Lloyd Wright’s famous Fallingwater. The design seamlessly combines the boldness of brutalist style with functional elegance, creating an architectural landmark in the city.

-1° FLOOR

The project stands with an imposing structure of two levels above the ground and two sublevels, designed to integrate perfectly with the urban landscape. The choice of brutalism is manifested in the robust concrete walls, which contrast and at the same time complement the delicate curtain walls. These latter are clad with aluminum panels, which reflect the sky and the sea, changing their appearance with daylight.

The shopping center not only seeks to be a shopping and entertainment destination, but also a community meeting space, where local residents and tourists can interact and enjoy the natural and architectural environment. The project represents a harmonious fusion between modern design and sensitivity to the environment, reflecting the culture and spirit of Barranco.

The functionality and aesthetics of the shopping center intertwine in every detail. The spacious interiors, illuminated by natural light, create a cozy and sophisticated atmosphere. The shops, restaurants, and leisure spaces are arranged intuitively, facilitating a unique shopping and leisure experience for visitors.

A fundamental aspect of the design is its commitment to sustainability and the environment. The recreational and green areas of the shopping center integrate with the landscaped areas of the district, forming an urban oasis that promotes biodiversity and the well-being of visitors and residents. WW

also a communal meeting space, where local residents and

and enjoy the natural and architectural surroundings.

The project embodies a harmonious fusion of modern design and environmental sensitivity, reflecting the culture and spirit

1° FLOOR
2° FLOOR
The shopping center not only aims to be a destination for shopping and entertainment but
tourists can interact
of Barranco.

2° FLOOR

1° FLOOR

Conference Room Commercial Offices

-1° FLOOR

Commercial Offices

-2° FLOOR

Commercial

Comercio
NORTH ELEVATION
WEST ELEVATION

APARTMENT RENOVATION

INTERIOR DESIGN - BUILT PROJECT

Year: 2022

Author: Fredy Chavez

Supervisor: Fredycharq

Project: Apartment renovation

Use: Housing

Location: Callao Province - Lima, Peru

Area: 75 m2

Construction System: Framed Structure

Shopping center in Barranco, located in the heart of the emblematic district of Barranco in Lima, Peru. This innovative shopping center, strategically positioned on the edge of a cliff, offers spectacular views of the Pacific Ocean, marking a milestone in modern shopping experiences.

Inspired by Frank Lloyd Wright’s Fallingwater, my design integrates the imposing aesthetics of brutalism with the elegance of curtain walls clad in aluminum panels.

This construction, consisting of two levels and two sublevels, transcends the idea of a commercial space to become an icon that enriches its residential urban environment. Through the incorporation of sustainable practices and green areas, the Barranco Shopping Center is not just a building but a vibrant and eco-friendly community center, designed for both local residents and visitors, reflecting the dynamic and cultural spirit of Barranco.

© Copyright 2025 All rights reserved for all countries, for all texts, as well as all illustrations, photographs, documents, and renders presented in this portfolio. The texts, illustrations, photographs, and documents are the property of their respective author.

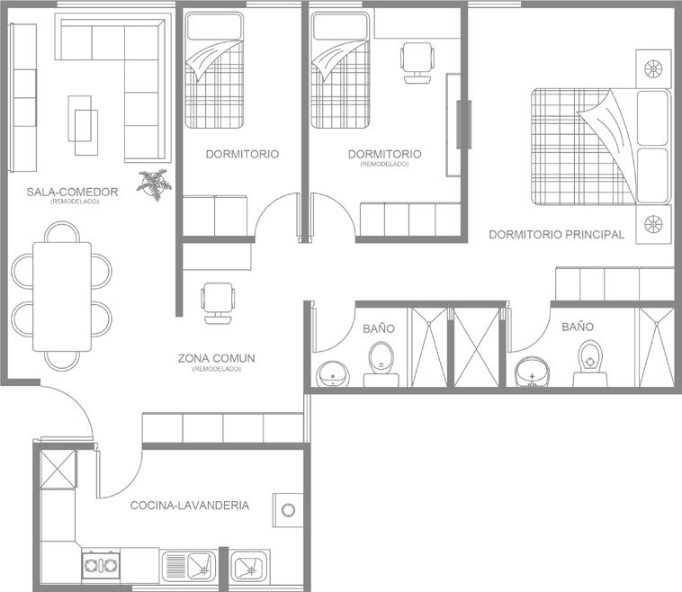
CURRENT FLOOR PLAN

The renovation of this space, which includes 3 bedrooms, 2 bathrooms, a living-dining room, and a kitchen-laundry, was meticulously designed to meet the needs and tastes of its residents, offering a perfect combination of modern style, aesthetics, and functionality.

RESTORED FLOOR PLAN

At the heart of the renovation was the reinvention of the kitchen, bathrooms, bedrooms, and transitional spaces such as the hallway. A modern and welcoming design was chosen, using materials such as melamine paneled boards and custom furniture, while retaining existing elements like the sofa and decorative paintings to maintain a sense of continuity and home.

ISOMETRIC A SIDE

Regarding the color palette, the walls of the living room were painted in a soothing beige tone, and the bedrooms in shades of smoky white and oyster white, creating a relaxing and luminous atmosphere. The electrical installations were modernized with smart outlets and switches, allowing control through mobile devices and contributing to energy savings.

From the color palette to the furniture and accessories, each detail contributes to creating an atmosphere that invites relaxation and well-being, turning this place into more than just a residence: a true home. Additionally, the design incorporates sustainable and eco-friendly elements, reflecting an awareness of the importance of environmental care.

PORTFOLIO FREDY CHAVEZ

LIVING ROOM MODERN STYLE

Renovation for different spots of the apartment

The design for the dining room meets the functional needs of the client but also reflects a profound commitment to intelligent design and modern aesthetics. The design incorporates sustainable and hard elements according of the industrial style. This holistic approach ensures that the space is not only aesthetically pleasing but also responsible and welcoming for those who inhabit it.

DINING ROOM

BEDROOMS MODERN STYLE

According requirements and needs of the client

The design for the living room meets the functional needs of the client but also reflects a profound commitment to intelligent and industrial style. The design incorporates sustainable elements which allows a perfect harmony. This holistic approach ensures that the space is not only aesthetically pleasing but also responsible and eco-friendly.

The design for the living room meets the functional needs of the client but also reflects a profound commitment to intelligent and industrial style. The design incorporates sustainable elements which allows a perfect harmony. This holistic approach ensures that the space is not only aesthetically pleasing but also responsible and eco-friendly.

Turn static files into dynamic content formats.

Create a flipbook
Issuu converts static files into: digital portfolios, online yearbooks, online catalogs, digital photo albums and more. Sign up and create your flipbook.
Architecture Portfolio Updated (Jan 2025) by Fredycharq - Issuu