PORTFOLIO

CHARITH SHAGA DESIGNER

Profile
Creative and detail-oriented 3D Designer with a background in architecture and professional experience delivering residential, commercial, and interior projects, skilled in the full design process from concept and CAD to rendering and presentation, combining creative vision with technical accuracy, and proficient in digital visualization to solve design challenges and streamline project delivery.
Technical Skills




Design Skills
•Conceptual Development
•Interior and Facade Design

Working Experience







Personal Details
+447352684991
Charithshaga77@gmail.Com
Address: New Castle upon tyne, United Kingdom

Education
Bachelor of Architecture
2019-2024
Sri Venkateshwara College Of Architecture Hyderabad, India
MSc Construction Project Management 2025- 2027
Northumbria university New Castle, UK
•Physical Model Making
•Design Presentation
Architectural Assistant — JSKM, Hyderabad Nov 2024 – July 2025
•Space Planning
•3D Rendering and Visualization
•Worked on commercial, residential and interior projects; handled design detailing, client coordination, and project documentation.
Architectural Intern — 4DS Architects, Hyderabad Aug 2023 – Mar 2024
•Assisted in design development in residential and interior focused projects, producing 2D and 3D drawings, client coordination, and site visits.
Freelance Visualization & Design Assistant
•Created 3D visualizations and presentations for residential and institutional projects; collaborated remotely with architects.
Interests And Hobbies





ACADEMICS 1
• BUS TERMINAL
• WINERY
2
• 3D INTERIOR RENDERS FOR NARASIMHA RESIDENCE
• 3D INTERIOR RENDERS FOR RAMAVAT SCHOOL
FREELANCE
3 JSKM
• HOTEL
• PROPOSED VILLA INTERIORS FOR AIJAZ ADIL
PROFESSIONAL PRACTICE
4 4DS ARCHITECTS
• VILLA
PRACTICAL TRAINING
BUS TERMINAL

Project Brief
A bus terminal is a facility where city, intercity, and interstate buses halt for passenger pick-up and drop-off. The design includes efficient circulation, safety, accessibility, and comfort. The terminal integrates intercity and interstate bus services, an admin block, commercial spaces with restaurants, and accommodates 80+ bus bays, creating a functional and user-friendly public transport hub.
Block Development

Form Development


Base Form Generation: The design starts with a simple cuboidal mass to accommodate the large-span requirements of the terminal.
Division for Ventilation & Circulation: The mass is then divided into two blocks to enhance ventilation, natural lighting, and circulation efficiency.
Connection & Expansion:A pedestrian bridge connects the two blocks for smooth movement, while additional wings are added to accommodate the bus bays and streamline operational flow.

BUS TERMINAL

Functional Area Statement

CIRCULATION
• Intercity Bus
6160 Sq.m Terminal (Admin Block)
• Intercity Bus Terminal 6587 Sq.m (Commercial Block)
• Logistic Park 3752 Sq.m
• Dorms 933 Sq.m
• Depot 112 Sq.m
• Workshop 150 Sq.m

MASTER PLAN
PEDESTRIAN
ROAD
Master Plan Development
Separate pathways for buses and pedestrians ensure smooth and safe circulation.A park and water body at the entrance create a welcoming arrival experience while adding recreational space.


BUS TERMINAL
TERMINAL BLOCK
The Admin Block serves as the central hub of the bus terminal, accommodating administrative offices, passenger amenities, and support functions. The design features a central core connected to extended wings, allowing smooth circulation, natural ventilation, and easy access for both staff and passengers. Landscaped areas surround the structure, enhancing the arrival experience. Sections highlight the spatial hierarchy, structural clarity, and functional zoning within the block.


Terminal Block Floor Plan
Centralized circulation with extended wings for admin and passenger areas, ensuring smooth movement and efficient space use.
Section AA’
Longitudinal section showing internal spatial organization, roof profile, and natural lighting strategies for user comfort.
Section BB’
Cross-section highlighting functional zoning, double-height volumes, and circulation pathways.

GROUND FLOOR PLAN

GROUND FLOOR PLAN


FIRST FLOOR PLAN

SECOND FLOOR PLAN
Admin and Commercial Block Development
FIRST FLOOR PLAN


The Admin Block Accommodates ManagementAnd Operational FunctionsAcross Multiple Levels. The Commercial Block Integrates Retail And Dining Spaces, Enhancing Passenger Experience.A Foot-over Bridge Connects Both Blocks, Ensuring Safe Pedestrian CirculationAbove The Bus Movement Zones


THESIS WINERY
DESIGN BRIEF
SITE AREA
3,02,300 2SQ M ( 74 7 ACRES)
WINERY- A HUB FOR WINE CULTUREVIKARABAD
BUILT-UP AREA 13,020 SQ.M

This thesis project focuses on the design and planning of a winery complex at Vikarabad that seamlessly integrates production, hospitality, and visitor experiences. The facility includes dedicated spaces for winemaking, grape crushing, wine tasting, visitor tours, and accommodations. The design aims to respond sensitively to the site’s topography, climate, and culture while creating a unique journey from vine to glass. The project explores innovative architectural solutions that enhance both the functional efficiency of wine production and the sensory experience of visitors.
CONCEPT: Journey of the Vine: From Cultivation to Celebration a seamless blend of production, experience, and sensory engagement.
VINEYARDS VISUAL EXPERIENCE (ACOUSTICS)


GRAPE CRUSHING TASTING ROOM





The design blends production, hospitality, and leisure within a vineyard setting. Clear zoning separates visitor and service circulation, with central processing facilities, curvilinear visitor spaces, accommodation units, and integrated recreational areas, all harmonized with the site's natural topography.
SITE SECTION
Commercial Block
Resort
Staff Quarters
Parking
Water Sump
Water Tank
E.V Parking
Truck Parking

PARKING AREA

WINERY
COMMERCIAL BLOCK

GROUND FLOOR

FIRST FLOOR
The Commercial Block serves as the vibrant core of the winery, blending retail, hospitality, and administration. Its curvilinear form responds to the site, outdoor courtyards, and vineyard views.
The ground floor features retail spaces, tasting rooms, a central courtyard, and ancillary services, while the first floor offers dining areas, event spaces, terraces, and offices. Structural innovations like the

STRUCTURE




SECTION -A

SECTION -B

METAL PARTITION
partitions enhance circulation and visual appeal, creating an engaging visitor experience integrated with the vineyard landscape.

SECTION -D

SECTION -C


Designed for immersive vineyard living, the resort features private cottages, a central leisure zone with a water pond, open lawn, and outdoor movie space.A curvilinear amenities spine offers guest services, while the lowprofile architecture blends seamlessly with the landscape.



WINERY

Resort Block’s tranquil guest experience with private cottages, central lawn, swimming pool, and outdoor movie area, blending with the vineyard landscape.
STAFF QUARTERS



FLOWER GARDEN AT ENTANCE
The Flower Garden at the entrance creates a vibrant visual landmark, welcoming visitors with colourful, geometric plantings that enhance the estate's identity.

Staff Quarters offer well-planned residential units with shared amenities, kids play area, parking, and green relief spaces for employees.





















FIRST FLOOR ELECTRICAL LAYOUT

TYPICAL FLOOR ELECTRICAL LAYOUT
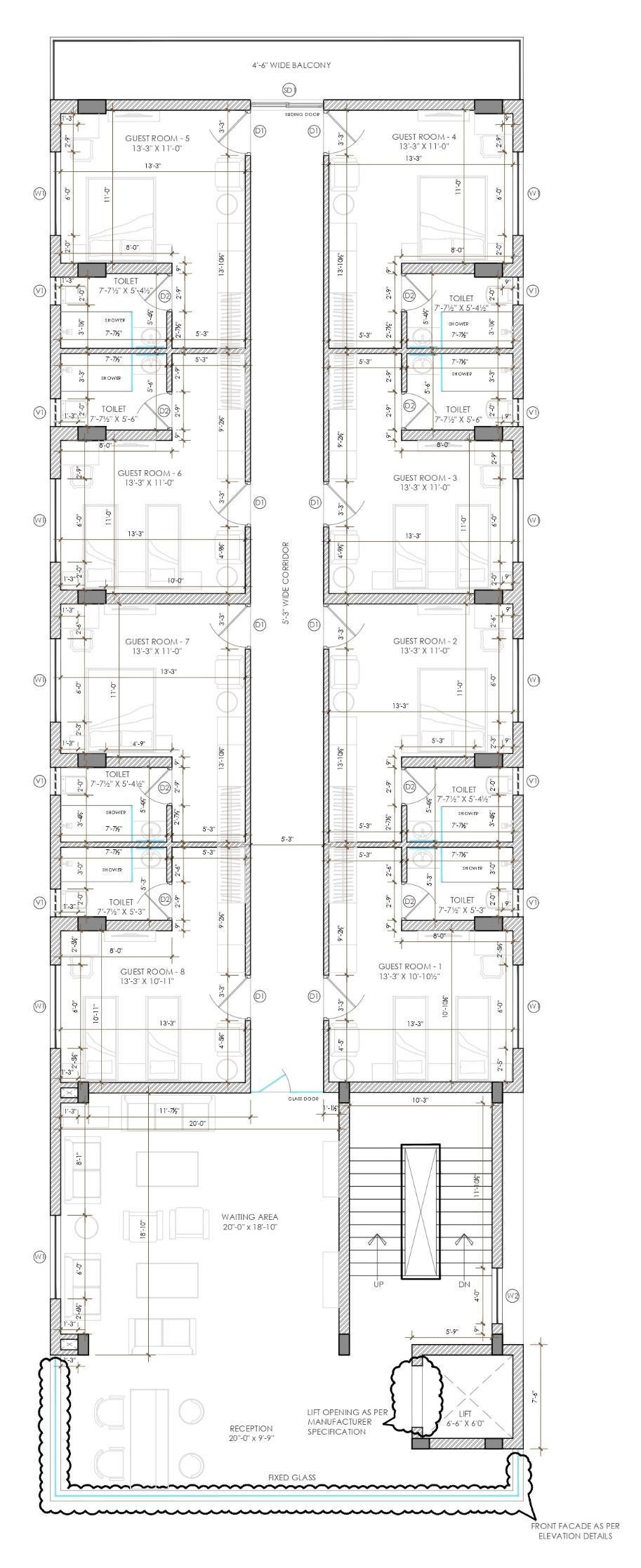
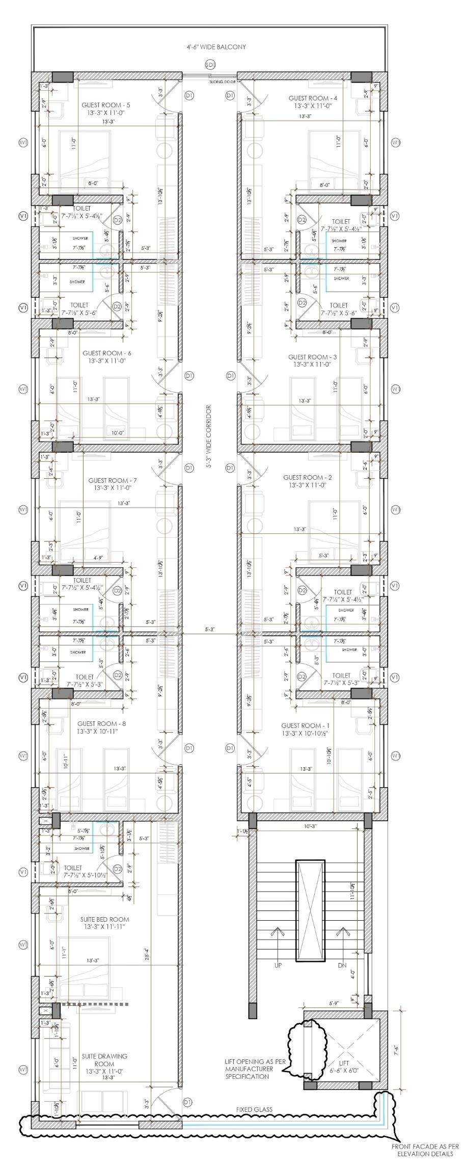
• I was responsible for preparing complete working drawings, including detailed floor plans, brick marking layouts, and electrical layouts. My work involved coordinating technical details, resolving on-site issues, and ensuring accurate construction documentation for smooth execution.


FRONT ELEVATION AND DETAILS
• I prepared the front elevation, detailed elevation drawings, and part plans for elevation detailing. My work focused on developing accurate façade treatments, material specifications, and construction-level details to guide site execution.



NORTH ELEVATION PART PLANS


SOUTH ELEVATION PART PLANS


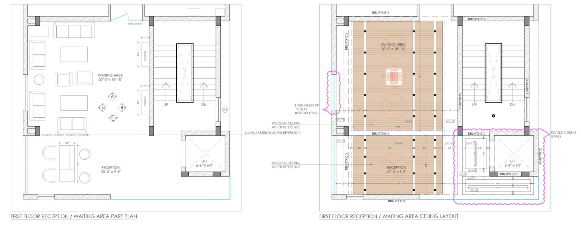
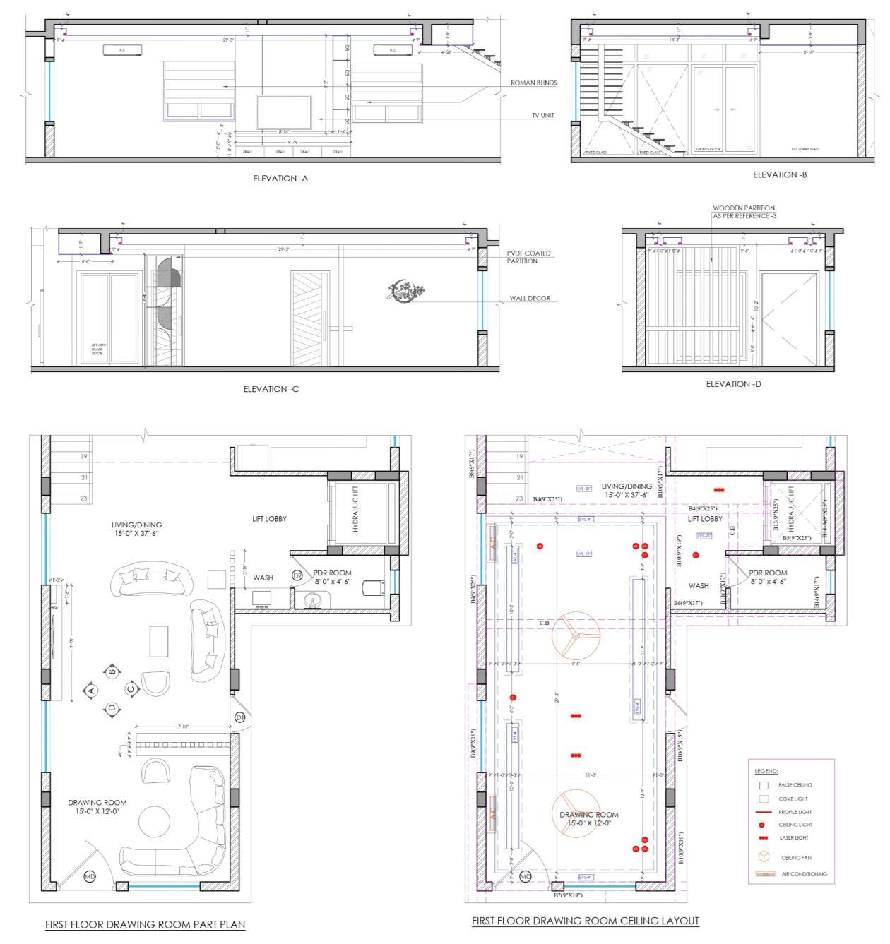
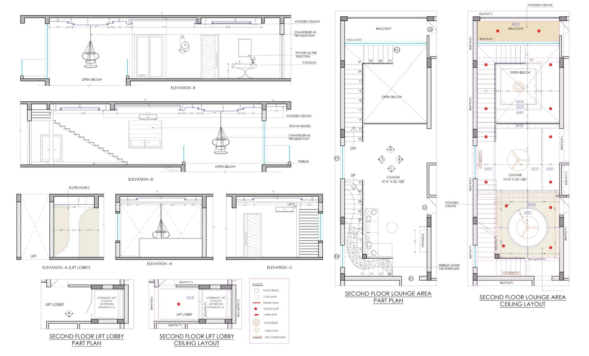
• I was involved in producing detailed 2D wall elevations for on-site execution, ensuring precision in material finishes, joinery, and service coordination. Additionally, I developed 3D interior renders to communicate design intent and support client presentations, helping finalize design decisions and approvals.

















PROPOSED VILLA


• Created detailed 2D wall elevations ensuring precision in materials and joinery, and guided visualizers to deliver highquality renders aligned with design intent through 2D and 3D coordination
PROPOSED VILLA INTERIORS FOR


PROPOSED VILLA INTERIORS FOR


PROPOSED VILLA INTERIORS FOR


PRACTICAL TRAINING 4DS
VILLA AT GANDIPET FOR MR. TABREZ KHAN

SITE PLAN

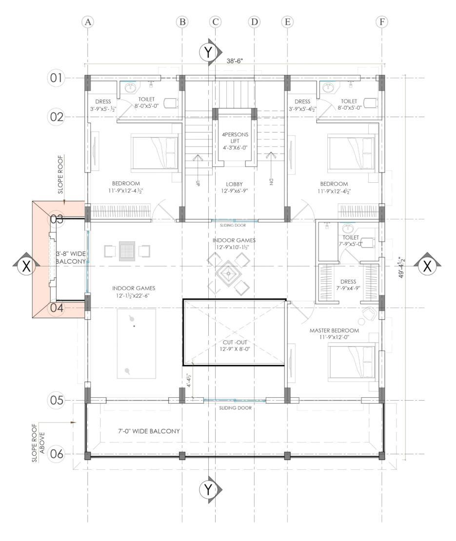
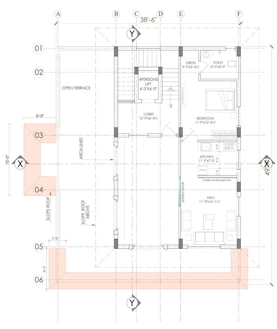
FIRST FLOOR PLAN

SECOND
FLOOR PLAN
• During my practical training, I was involved in preparing the complete working drawings for a luxury villa project located at Gandipet. My scope of work included developing site plans, floor plans (ground, first, second, and terrace levels), as well as detailed elevations for all sides of the villa. I also worked on technical drawings such as compound wall details, column details, sectional drawings ,and complete opening schedules to ensure accurate construction documentation. This project helped me strengthen my skills in preparing detailed residential working drawings and understanding site execution requirements.
PRACTICAL TRAINING 4DS
VILLA AT GANDIPET FOR MR. TABREZ KHAN

TERACE PLAN






PRACTICAL TRAINING 4DS
VILLA AT GANDIPET FOR MR. TABREZ KHAN



COMPOUND WALL DETAILS


