Master's Portfolio

Page 1

portfolio.

KUTHURI CHARITH

Architect

Hello! I am Kuthuri Charith, an accomplished Architect, graduated from GITAM School of Architecture in 2023. I love taking on new challenges and I consider myself a quick learner. My work culture values innovation and practical solutions. I blend analytical thinking with creative flair in decision-making.I embrace opportunities for growth andeagerlyadapttonewmethodologiesandtechnologies.

2005 - 2016

Sri Sathya Sai Vidya Vihar

2016 - 2018

Sri Chaitanya College, Visakhapatnam

2018 - 2023

GITAM School OfArchitecture

Kiosk

Kindergarten

Shopping Complex

Mixed Use Development

Holiday Resort

Multi-Speciality Hospital

Retrospecting Lanes Of Bheemunipatnam

Thesis

CONTACT

10 / 11 / 2000 In India

Visakhapatnam , India

+91 9493369034

kuthuricharith23@gmail.com

@kuthuri.charith

Birla White NXTCompetition

AndcTrophy

CBSE9.0

Model

Making

BIM Workshop

CGPA9.07

2D DRAFTING

AutodeskAutocad

Drafting

Sketching

3D MODELLING

Sketchup

Model Making

Autodesk Revit

3D RENDERING

Lumion

Vray

ADOBE CREATIVE EDITOR

Adobe Photoshop

Adobe Illustrator

LANGUAGES EXPERIENCE

ENGLISH

ANDC (ShortlistedTop 100)

Gold Medalist (Bachelor OfArchitecture GITAM)

2022 (6 Months)

Team One India Pvt. Ltd.

2023 (6 Months)

Team One India Pvt. Ltd.

JUNIOR

2022

INTERNSHIP
ARCHITECT
l TELUGU l HINDI
Alongsidesketching,Ienjoyvarioushobbies,reflectingmy diverse interests and well-rounded approach to life and design. Workshop
Sketching Workshop Sem 1, 2018 2020
2020 2023 2019 2018 2019
Sem 2, 2019 Sem 3, 2019 Sem 4, 2020 Sem 5, 2020 Sem 6, 2021 Sem 7, 2021
8, 2022 Sem 10, 2023
NASAConventionTrophy
2019
Sem
Residence
SKILLSET WORKSHOPS
COMPETITIONS ACHIEVEMENTS
ACADEDMIC PROJECTS
EDUCATION

ACADEMIC WORKS

CONTENTS

My architectural style prioritizes functionality and user comfort, seamlessly integrating design with the needs of occupants.Through meticulous attention to detail, I craft spaces that enhance the quality of life, fostering a sense of belonging and well-being.

ProjectTitle

Project Description

Involvement

ProjectTitle

Project Description

Involvement

ProjectTitle

Project Description

Involvement

ProjectTitle

Project Description

Involvement

ProjectTitle

Project Description

Involvement

ProjectTitle

Project Description

Involvement

ProjectTitle

Project Description

Involvement

ProjectTitle

ProjectTitle

Thesis Project

REVIVALOFAN URBAN VOID

Individual project

Semester VII

MIXED USE HIGH RISE

Individual project

Semester VI

HOLIDAYRESORT

Individual project

PROFESSIONALWORKS

IntegratedTownship Development

IMARK MEGACITY- SADASIVAPET

Design concepts, Framework structure, Zoning, Masterplan, Clubhouse

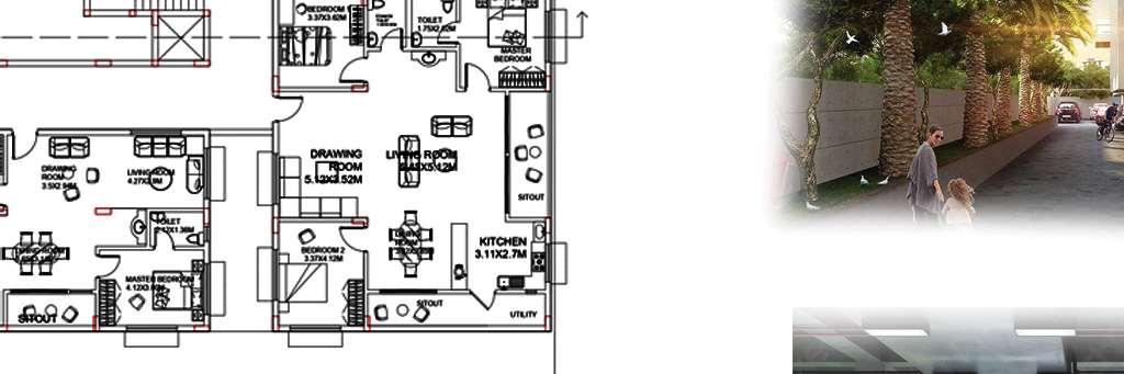
High Rise Residential

VAMSIRAMS NARENDAR REDDY

Unit plans,Tower plans, 3D Visualization

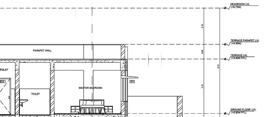
WORKING DRAWINGS

Semester VI

KITCHEN DETAILS

Individual project

Semester VII

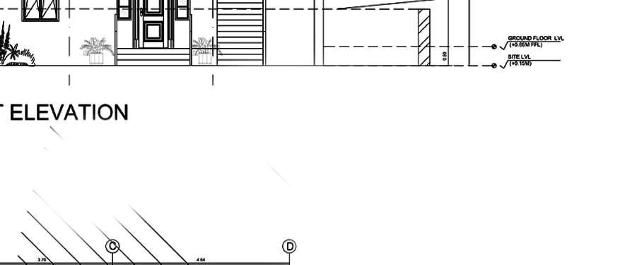
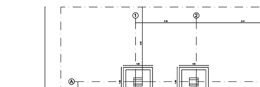
MUNCIPALDRAWING

Individual project

MISCELLANEOUS

FREELANCE

ARTWORK/ WORKSHOPS/ COMPETITIONS/ RENDERS

01 04 06 02 05 07 08 09 03

THESIS PROJECT

REVIVAL OFAN URBAN VOID

PROJECT INVOLVEMENT : Individual Project

Designing the market area to ensure safer pedestrian crossings and good connectivity with other pockets beneath the flyover. Provided zones for loading, unloading, selling and preparation.
01
04 03 02 01
POCKET
POCKET POCKET POCKET

MIXED USE HIGH RISE

, COMMERCIAL

PROJECT INVOLVEMENT : Individual Project

RESIDENTIAL
ACADEMIC PROJECT 02
ACADEMIC PROJECT HOLIDAYRESORT 03
PROJECT INVOLVEMENT : Individual Project

PROFESSIONAL PROJECT

PROJECT TITLE : IMARK MEGACITY- SADASIVAPET

PROJECT INVOLVEMENT : Clubhouse Zoning and 3D Visualization, Design concepts, Framework Structure, Masterplan

04

PROJECT INVOLVEMENT : Unit Plans, Tower

3D
PROJECT 05
Plans,
Visualization PROFESSIONAL
INVOLVEMENT
Individual Project WORKING DRAWING KITCHEN DETAIL 06
PROJECT
:
PROJECT INVOLVEMENT : Individual Project WORKING DRAWING MUNCIPALDRAWING 07
Individual Project FREELANCE PROJECTS 08
PROJECT INVOLVEMENT :

PROJECT INVOLVEMENT :

Individual Project

FREELANCE PROJECTS 09
PROJECT INVOLVEMENT : Group Project MISCELLANEOUS 10

Turn static files into dynamic content formats.

Create a flipbook
Issuu converts static files into: digital portfolios, online yearbooks, online catalogs, digital photo albums and more. Sign up and create your flipbook.
Master's Portfolio by charithkuthuri - Issuu