2018 - 2022 THOMAS JEFFERSON UNIVERSITYPHILADELPHIA, PA JANUARY 2022 - PRESENT RETAIL & SOCIAL MEDIA MANAGER VAULT & VINE EAST FALLS EDUCATION 2016 - 2018 BROOKDALE COMMUNITY COLLEGELINCROFT, NJ CLASS OF 2016 NEPTUNE HIGH SCHOOLNEPTUNE, NJ INTERIORSEXPERIENCEJULY2020-FEBRUARY2022DESIGNINTERN-BYDONNAHOFFMAN JULY 2019 - MAY 2020 RETAIL ASSOCIATEWEST ELM PHILADELPHIA TECHNICAL SKILLS & INTERESTS TWINMOTIONAUTOCADSKETCHUPREVITRHINOENSCAPE ADOBE INDESIGN ADOBE PHOTOSHOP ADOBE ILLUSTRATOR CHIEF MICROSOFTARCHITECTOFFICESUITEZOOM WATERCOLORGARDENINGTRAVELINGSKTECHINGPAINTING AUG. 2021 - DEC. 2021 UARK ROME CENTERROME, ITALY
hobbieswithinrepresentationCHARISSEREID98@GMAIL.COMPHILADELPHIA,RESUMEPA732.610.9451AsagraduateofThomasJeffersonUniversity’sInteriorArchitectureProgram,Ienjoydesigningspacesthatexhibitastrong,diverseunderstandingofculture.IdesignspacestoactivelysupportPOC,women,andothervariousmarginalizedgroupsbecauseIbelieveintheimportanceofinclusivityandasanexperiencethebuiltenvironment.Myoutsideofdesignincludewatercolorpainting,sketchingandgardening.
04| BLACK & BRASS RECORD BAR 05| OCTAVUS CULTURAL FOOTBALL ACADEMY 03| TRANSCENDERE ADAPTIVE REUSE EXHIBITION 02| P.L.A.I.D ECO FASHION CENTER01| PINNACLE SUSTAINABLE FOOD MARKET 06| SKETCHES & OTHER WORKS TABLE OF CONTENTS
01 - SENIOR CAPSTONE DESIGN
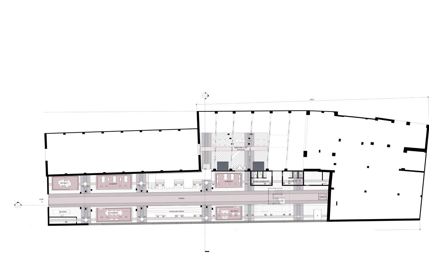
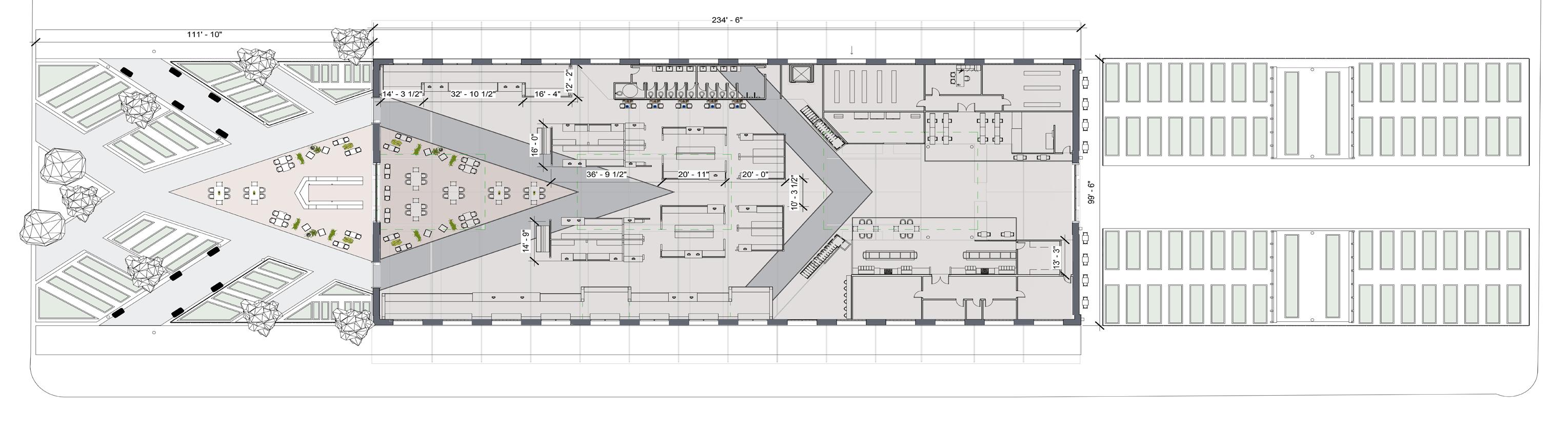
A B C D E GMARKETFOODSUSTAINABLEPINNACLE Pinnacle Sustainable Food Market Philadelphia, Pennsylvannia - Nicetown SPRING
SITE ANALYSIS DIAGRAMS CONCEPT DIAGRAMS COURTYARD PERSPECTIVE MARKET QUALITATIVE RESEARCH
Pinnacle’s2022concept utilizes the Mediterranean Diet to encourage, educate, and inspire low-income communities of North Philadelphia by encouraging occupants and community members to create stronger communal foundations through education and exploration into Italian culture, sustainability, and universal design. Additionally, Pinnacle provides a space that allows marginalized communities to gather, assess, and provide an alternative solution to the food desert.
ENTRANCE PERSPECTIVE
CAFE PERSPECTIVE GARDEN DIAGRAMS FIRST FLOORPLAN FIRST FLOOR REFLECTED CEILING PLAN MEZZANINE FLOORPLAN MEZZANINE REFLECTED CEILING PLAN
Pinnacle’s concept also uses sleek, elegant materials that reflect the simplicity of typical Italian acousticsoftcontrastedhard,surfacesAlthoughmarkets.mostaretheyarewithseatingandpaneling.
VIEWS TO EXTERIOR TO ENCOURAGEWELL-BEINGPSYCHOLOGICAL ACOUSTIC PANELS ATTACHED TO ROOF COURTYARD MEANT TO UNITE THROUGHCOMMUNITYDEMOS DECIDUOUS TREES USED FOR SHADING GREEN HOUSES USED FOR SUSTAINABLE STOCK GROWTH CLEARSTORY WINDOWS TO ALLOW NATURAL LIGHT INTO THE SPACE VENDOR STALLS USED TO PROMOTE LOCAL BUSINESSES FOOD VENDOR MODEL BAR PERSPECTIVE OPEN KITCHEN PERSPECTIVE LONGITUDINAL SECTION
02 - ECO-FASHION CENTER DESIGN
FALL P.L.A.I.D’s2021concept creates elegant yet vivacious environments through the interpretations of patterns. The design uses layering as a design strategy which allows the solids to create balanced and proportionally sound interiors. The spaces reflect the playful personality of the fashion designer and the inclusivity of their fashion line. SITE MOODCONCEPTANALYSISSKETCHESBOARD SPACE PLANNING WORKSHOP PERSPECTIVE RUNWAY BOUTIQUEPERSPECTIVEPERSPECTIVE PRODUCTION PERSPECTIVE P.L.A.I.D Eco-Fashion Center Rome, Italy - Ex Cartiera Appia Antica SoulDazeforCENTERECO-FASHIONP.L.A.I.D
The furniture chosen for P.L.A.I.D represent the efforts made by Domitilla Mattei to keep SoulDaze a “zero km” and sustainable fashion brand. Each unique piece contrasts the rigid organization of the floorplan.
10 legend existingroof truss supportsystemstructurallightingworkshopresearchLevelchangescustomframeworkfurniturepatternpathways10existingwalls miniplatekwalkover letrohstrip leaf lamp green furniture concept buzzispacebuzzigrid FLAKE NORGAARDTABLE HIGHTOWERPRISM HAPPY ROGERBARSTOOLPERSSON STELLACHRISTINEFLOWERSCHWARZER BUSK AND HERTZOG LONGITUDINAL SECTION AXONOMETRIC GROUND REFLECTEDMEZZANINEFLOORPLANFLOORPLANCEILINGPLAN
03 - ADAPTIVE REUSE EXHIBITION DESIGN
FALL 2021 The concept of Transcendere is to connect occupants to the built environment using the zodiac and original sun dial located in Fresco Rooms I and II. This adaptive reuse project is an educational and immersive experience for locals and intellects alike. The purpose of Transcendere is to educate patrons about the history of the zodiac and how the Romans used the theory to learn about space and time. The project uses contrasting spatial design for effective wayfinding while connecting each area using a “zodiac portal”. Stimulating all senses, Transcendere is a temporary exhibit that respects the antiquity, culture, and original frescos of Palazzo Taverna. CONCEPT SKETCH, DIAGRAMS & INSPIRATION PROGRAM CIRCULATION PORTAL FRESCO I PRECEDENTS CONCEPT DIAGRAMSSPATIAL ANALYSIS DIAGRAMS Rome,TranscendereItaly-Palazzo Taverna TRANSCENDERE
Transcendere is a personalized experience for each occupant. Each walkthrough is based on the choices made in the educational and interactive area located in Fresco I. After the educational portion of the exhibit is completed, patrons move through the “zodiac portal” into their customized immersive experience. Constellations are projected onto the ceiling and Fresco II is filled with classic music produced by Italian musicians. Occupants are then encouraged to stargaze for the full composition before exiting the exhibition.
SITE ANALYSIS SUNDIAL MAP FRESCO II FLOORPLAN SECTION PERSPECTIVEEXPLODED AXON
04 - BORDERS INTERNATIONAL DESIGN COMPETITION
The Octavus Cultural Football Academy concept aims to unite Turkish refugees and Greek residents through sports and education. The facility provides practice fields, green spaces, and a human library so occupants can interact with one another without judgment or internal prejudices. The academy’s design offers a healthy social buffer between Turkish refugees and Greek residents.
BORDER OctuvusCOLLAGECultural Football Academy Turkey - Greece Border ACADEMYFOOTBALLCULTURALOCTUVUS
SPRING 2021
05 - RETAIL DESIGN
DISPLAY SKETCHES LIGHT STUDIES SALES FLOOR PERSPECTIVE CONCEPTBlackSKETCHES&Brass Record Bar New
- Oldstone Church BARRECORDBRASS&BLACK
The Black & Brass Record Bar concept takes inspiration from syncopation and classic rhythmic patterns found in jazz music. The break or stress in the beat echoes through the forward and upward precession occupants follow within the architecture of the building. The design exhibits knowledge of adaptive reuse and honors the original structure by exposing the wooden truss system. Occupants are encouraged to learn more about Black culture through music education, art, and live performances which are showcased through each level of the building. This is meant to be a transformative experience for the residents of New Hope due to the lack of diversity within the community. Hope, Pennsylvania
FALL 2020
MEZZANINE REFLECTED CEILING PLAN SECOND FLOOR REFLECTED CEILING PLAN GROUND FLOOR REFLECTED CEILING PLANGROUND FLOORPLAN SECOND MEZZANINEFLOORPLANFLOORPLANLATITUDINAL SECTION FRONT LONGITUDINALEXTERIORSECTION
SPEAKEASY LOUNGE PERSPECTIVE
SALESFLOOR PERSPECTIVE
The materials used for Black & Brass promote contrast and comfortability. This strategy becomes more obvious to occupants as they travel through the space. The main color palette uses greens and yellows to draw the occupant’s eye in. The warm tones of brown accent the boldness of the gold, and create an inviting atmosphere. Black then contrasts these two color stories and creates depth and mystery, which provides consumers with a perfect environment to explore new music and culture.
RECORD DISPLAY DETAIL BAR DETAIL BIRD’S EYE PERSPECTIVE
06 - SKETCHES & OTHER WORKS
FALL 2021 These sketches were completed during my Visual Journaling course abroad. They provide a closer look into the thought process and strategies I use for sketching large scale structures and conceptual ideas. BASILICA SKETCH SANTA CROCE STUDY SKETCH EX CARTIERA APPIA ANTICA CONCEPT SKETCH QUATTRO FONTANE SKETCH Sketches and Other Works Rome, Italy - Various LocationsCLOISTER SKETCH GOTHIC WINDOW SKETCH WORKSOTHERANDSKETCHES
BRAMANTE PHOTO ESSAY SANT IGNAZIO SKETCH ECSTACY STUDY SKETCH VILLA GUILIA FLOORPLAN AND SECTION VILLA GUILIA PERSPECTIVE
