Graduate Portfolio

Page 1

CHAQUAN MARL N VIRGINIA

Graduate Architectural Portfolio

01 Steel Construction

This project’s intent was to design an elegant train station in Tallahassee, Fl, using steel construction that could be easily assembled and disassembled. The concept solution used for the execution of this design was that of bridging on a grid of solids and voids, which is meant to interconnect two very different communities.

Conceptual Section Diagram Indoor waiting area and Art Display Balcony Retail Art/ Architecture Studio Indoor waiting area and Art Display Balcony Retail Indoor waiting area and Art Display Balcony Retail Art/ Architecture Studio Art/ Architecture Studio Dental Clinic Dental Clinic Dental Clinic Retail Retail Retail Cinema Cinema Cinema Indoor waiting area Indoor waiting area Indoor waiting area
South Elevation
Section Perspectives 1 1 A1 2 3 4 5 6
1.Clip angle 2.Bracing splice angle single 3.Bracing splice angle double 4.Horizontal truss member
1 A1
5. Web truss member 6. Moment end plate
Between the solids

Compositional Strategies

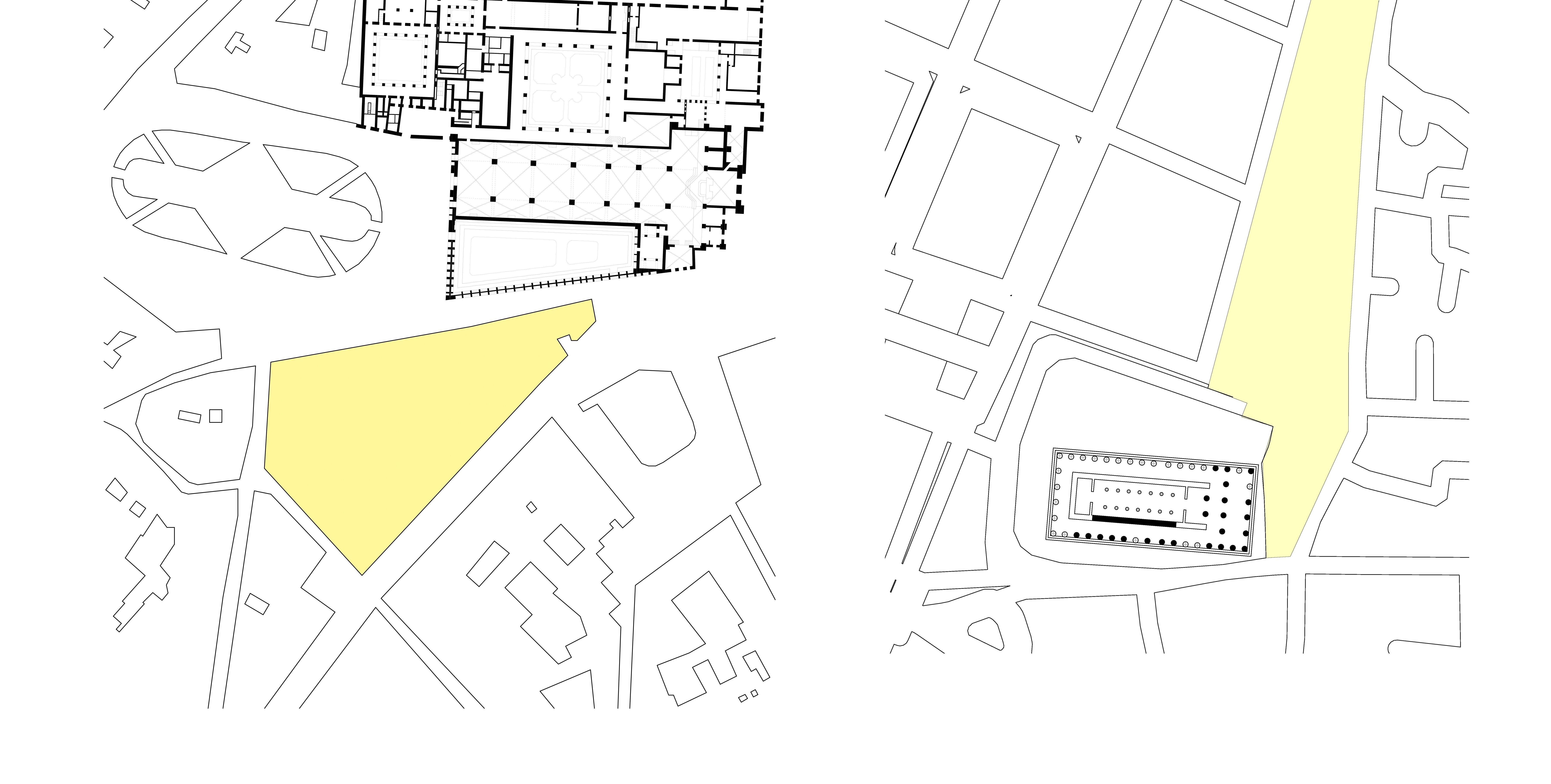
The purpose of this project was to design an Urban Infill Building that consisted of a Hostel, Research center and Museum. we were tasked with using a series of 8 compositional strategies that would help to inform outdoor space, indoor spaces, terraces.

02
Museum Program Hostel Program Research & Archives Program Museum Research & Archive Hostel

Compositional Studies

Contextual Connection + Inflection

Contextual Connection is used by continuing the streets of the old city’s grid through the ortigia site.

INFLECTION is used creating a path that widens the futher south one travels which opens up the ruins of the temple of Apollo.

Establishes the Parti as a series of “cuts” that articulate the long North-South mass of the building. Pedestrian movement, view corridors & terraces are results of the incisions.

Section AA North Elevation UP8 G n E b A d o bb C Rf T r 3 A005 -MUSEUM LEVEL 4 A006 -LEVEL 5 A007 -LEVEL 6 A008 -LEVEL 4 7 A009 -LEVEL UP8 G n E b A d o bb C Rf T r 3 A005 -MUSEUM LEVEL 4 A006 -LEVEL 5 A007 -LEVEL 6 A008 -LEVEL 4 7 A009 -LEVEL UPG n E b A d o bb C Rf T r -MUSEUM LEVEL 4 A006 -LEVEL 2 5 A007 -LEVEL 3 A008 -LEVEL 4 7 A009 -LEVEL 5 UP8 G n E b A d o bb C f Rf T r 4 A006 -LEVEL 5 A007 -LEVEL 6 A008 -LEVEL 4 7 A009 -LEVEL
#5 Section CC

03 Timber in the City

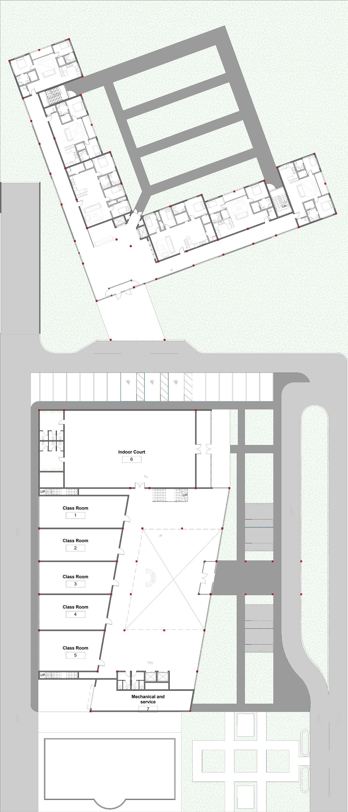
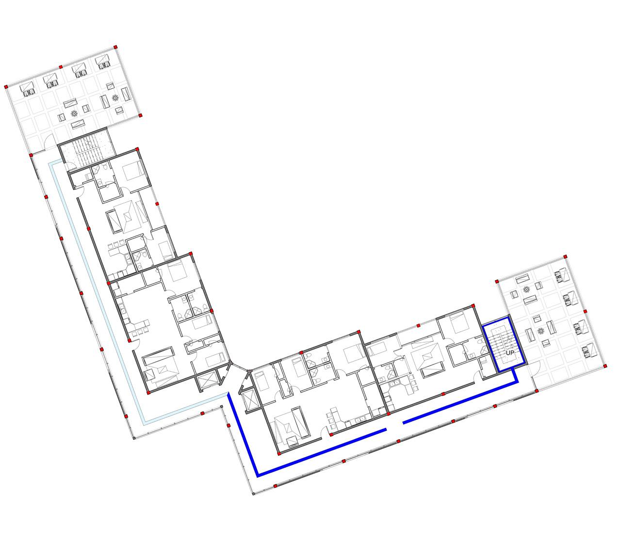
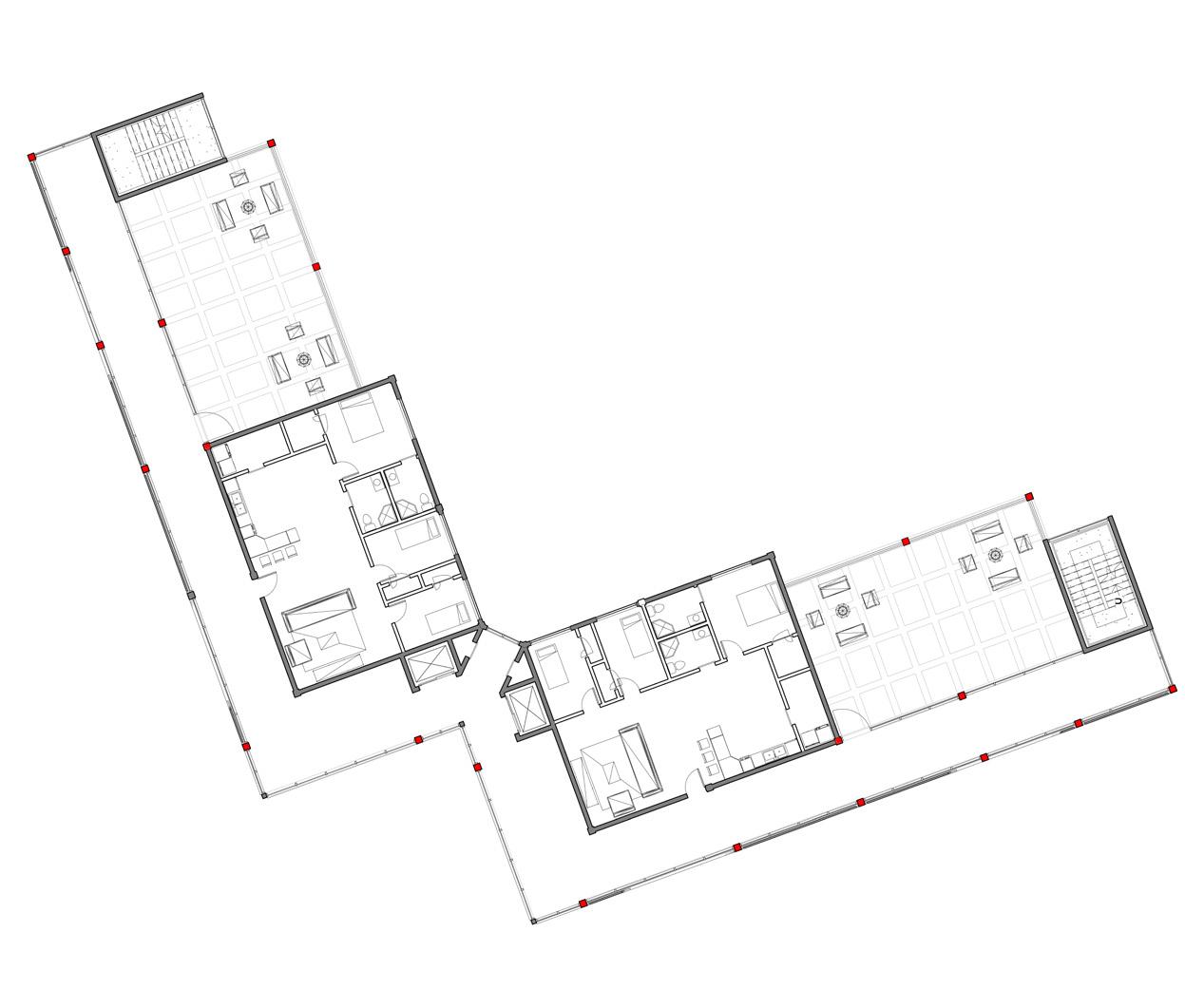
The Challenge for this project was to design a mid-rise complex that encompasses affordable housing, a childhood education center, and a community wellness facility for the people of Queens, New York.

The project’s main goal was to re-use timber as a construction material and embrace the new structural and ecological possibilities of wood construction.

Section Perspectives

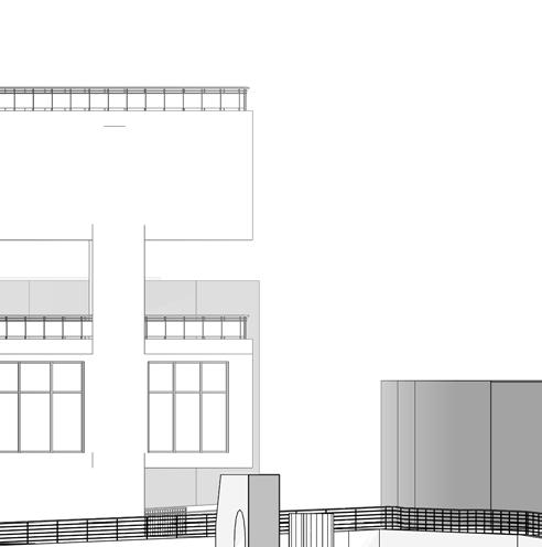
The Louver shading system in place uses recycled white ash wood, a native wood species to New York.

The shading system is designed to track the movement of the sun.

The Louver system’s striking appearance was designed to help break up the verticality of the storefront system and give an aesthetic appeal to the facade.

Parking Garage Level 4 Level 8
125’
Level 1
Florida Agricultural & Mechanical University School Of Architecture & Engineering Technology chaquan.m@gmail.com (786) 719-8860 CHAQUAN MARL N VIRGINIA

Turn static files into dynamic content formats.

Create a flipbook
Issuu converts static files into: digital portfolios, online yearbooks, online catalogs, digital photo albums and more. Sign up and create your flipbook.
Graduate Portfolio by ChaquanMV - Issuu