A r c h i t e c t u r e s t u d e n t
PORTFOLIO

“Integrity is the essence of everything successful ” -BUCKMINSTER
FULLER
American architect

CONTACT


MYSELF
NAME:-CHAITHANYA
R.K
DOB:-26-03-1998
NATIONALITY:- Indian
LANGUAGES:- Kannada, English, Hindi, Tulu, Telugu.
PHONE NO:- 9449640982
E-MAIL:- 2016_chaithanya.r.k@wcfa.ac.in rk.chaithanya03@gmail.com
LINKEDIN:- www.linkedin.com/in/chaithanya-3518b6155
ADDRESS:- #360, “Samudhyatha”, 1st Main 4th Cross LBS Nagara Savalanga Road, Shivamogga-577204

EDUCATION
B.ARCH:- Wadiyar Centre for Architecture[wcfa], Mysuru. DIPLOMA:- Animation, web designing, vfx & Printing. 1ST & 2ND PU:- PACE U.M.P.U college, Shivamogga.
HOBBY & INTERESTS
Sports-Badminton, Volley ball, Swimming, TT.
Drawing and sketching
Painting

Dancing
Singing
Reading and Comics
Animation and graphics
Watching K-drama and Anime
CONTENTS
Autodesk softwares
AUTOCAD


SKETCHBOOK






Adobe Softwares



Design
PHOTOSHOP
ILLUSTRATOR

AFTER EFFECTS

AUDITION
01. ARCHITECTURAL THESIS
Design:- REGIONAL SPORTS HUB IN SHIVAMOGGA
02. SEM-08
UD Studio- MUSEUM AND FASHION DESIGN STUDIO
03. SEM-07
Sustainable studio- MUSEUM, LIBRARY AND PLAZA
04. SEM-07
Interior design- DANCE STUDIO
05. SEM-05
AD Vertical Studio- RETROFITTING CO-WORKING SPACE
MANGLORE RSP
06. SEM-04
AD 4- HOUSING PROJECT
07. AD-04
Working Drawing- TECHNICAL DRAWINGS
08. KIRANAGI RSP

PREMIERE PRO
09. SEM 01,02,03
Graphic design-Basic design-Visual Arts- Design
This portfolio is compilation of the works and projects done in the academic year 2016 to 2021.
These works display my efforts in designing flexible and sustainable spaces to connect and bring people together under green roofs.
I am more interested in exploring vernacular and materials contextual to the places.
01. ARCHITECTURAL THESIS
Regional Sports Hub- RECREATION AND INSTITUTE
GUIDE:- ASST. PROF. SURENDRAN AALONE
AR. ANUPAM BANSAL





SITE ANALYSIS
Location: Shivamogga, Karnataka. Shivamogga, located in the Malnad region of Karnataka, is known as the “Gateway of Western Ghats” and “The Land of Hills.” The city is rich in history, with roots in dynasties like the Gangas, Chalukyas, Rashtrakutas, and Vijayanagara. Key attractions include Jog Falls, Kodachadri Hills, Agumbe, and Honnemaradu. The region has cultural significance, being the birthplace of poets like Kuvempu and D.R. Bendre. Shivamogga is centrally located in Karnataka, providing proximity to major cities like Bengaluru, Mangalore, Hubli, and Davanagere. Despite being a smart city, it lacks proper infrastructure, but its development potential is high. The recent airport completion enhances connectivity to metropolitan cities, further boosting its growth.
Tourist attractions: Jog Falls (88km), Kodachadri (75km), Agumbe (65km), Honnemaradu, Keladi, Tyavarekoppa Tiger Safari, and more. Cultural significance: Birthplace of poets like Kuvempu, D.R. Bendre, and Tejaswi.
Land Use: Freedom Park was once a jail, now proposed as a green space; the surrounding area is residential with commercial spaces along main roads. Geography: Located on the banks of the Thunga River, with favorable climate and proximity to educational hubs.
Challenges: Infrastructure needs attention, but the city has a high potential for development, especially with improved connectivity through the airport.








My research has revealed a critical gap in India’s sports ecosystem, a lack of infrastructure and encouragement for regional and indigenous games.
My thesis tackles this head-on, proposing a dynamic space integrating sports and events, fostering a culture of physical activity among youth and celebrating the historically significant site in Karnataka – a former jail, now a symbol of liberation.


The aim is to create a vibrant hub that encourages youth participation and endorsement which provides much-needed training and showcase opportunities. It’s about empowering a new generation of athletes to explore the full spectrum of Indian sports and break free from the limitations of a single-sport focus.
COMPLETE THESIS LINK:- https://www.behance.net/gallery/218412363/Architectural-Thesis



02.UD 08

Urban Design SILK MUSEUM AND FASHION DESIGNER STUDIO


















Sustainable Design- MUSEUM, LIBRARY, PLAZA











































DEFINITION:
A sequence of rhythmic steps or movements usually performed to music for pleasure or as a form of social interaction.


Dance is a global performance art, practiced for various reasons like fun, passion, competition, expression, and entertainment. It is closely linked to music, with rhythm, beats, and postures creating harmony with nature. In India, dance styles vary by region, culture, and tradition, with classical and folk-dance forms being prominent. Bharatanatyam, originating in Tamil Nadu and widely practiced in Karnataka, is a classical dance form that integrates mythology, balance, and alignment with nature. The learning process is structured, emphasizing rhythm, music, beats (thaala), and emotional expressions (nava rasa). In designing a Bharatanatyam studio, I aim to incorporate natural elements to create a meaningful and interactive learning environment.
CASE STUDIES REFFERED


SWASTIKA DANCE STUDIO
Place: Bangalore
Area: approx 135 m2
Architects: biome environmental solution
Functions: dance, music, workshops
AIM :-
Bringing in the aspect of light and ventilation even with the limitation of space.
Earthy materials for construction.
WOODEN BARN
Place: Massachuset
Location:(mass MOCA)
Area: 685 m2
Architects: Flansburgh
Functions: dance studio
Wide hall of 15x21 m
Opening up with warm wooden and glazed structures. Which are topped with wooden trusses providing large uninterrupted spaces.

04. SEM-07
Interior design- DANCE STUDIO


PROF:- AR. SHASHANK SATISH BRIEF/INTENT
Design a dance studio that incorporates sustainable elements, optimal lighting, and a desirable ambiance, evoking emotions that foster an inspiring space for dance and music practice
ANZAS DANCE STUDIO
Place: Beijing China
Area: 66.3 m2
Architect: Tsutsumi
Functions: ballet dance studio
Idea of bringing in a natural element like fog in an artificial medium And the spot lights articulating the space and emphasising the fog.

KALA ACADEMY
Place: Panjim goa.
Area: 6.3 acre
Architect: Charles chorea
Functions: dance, music, workshops
Publicness of the space. Floor lighting brightening the surrounding of built and accentuating open spaces and guiding pathways.
The expression of raw texture of the materials without plastering.
The studios are designed as such it can expand to become bigger performance spaces . The space inturn opens to green courts for individual plactices and chatting. The main enterance opens with the view of 10ft high Natraj sculpture with back drop of stone and water giving spiritual and serene environment.


AXONOMETRIC DETAILS
















1. Black tiled floors for dressing and bathroom to be complementary with the other floorings.
2. Stone flooring for the intermediate space which is more flexible to change.
3. Small green spaces. Where the functions and spaces spill out for the activities.
4. Flooring of black oxide. Giving more organic and closer to nature feel. And also having
trast to the walls.
Trying to bring the natural feel of temples stone flooring and black soil.










Hung from the top: This light is inspired from the bronze bells of the gunghroo used in bharatnatyam. it is a light hanging from the ceiling.




1. S tone wall as back drop for sculpture with water fall.
2. S tabilized mud blocks for the walls which acts as earthly material.
Mahogony wood used for roof trusses.Similar shaded engineered wood panels for enclosure.



Like a flower:
It is a wall mount light design inspired by frills of a dancers dress which when curled and placed with light resembles a flower.

The shell:
Bottom picture is design for wall mount light inspired by beats from thaala. A musical beat counting instrument. Floor path light: These

03. SEM-04
AD-04- HOUSING
PROF:- AR. NAGESH H D
AR. NELSON PAIS AR. VAISHAKH



Left side drawings are the 2BHK houses of symmetric design with single boundry for more neighbourly engagement.
Right side drawings are the 2BHK houses of asymmetric design with common walls.
1. 2 houses with car parking
2. 2 houses with 2 bhk and stairs for firstfloor
3. 2 houses on the top first floor with common area enterance.

















THIRD FLOOR


SITE PLAN SCALE:- 1:500





TILE LAYING AND FIXTURES PLAN






05. KIRANAGI RSP
Village documentation- RELATED STUDY PROGRAMME
ASSISTANCE : PROF .AR.KUKKE SUBRAMANYA
PROF .AR.RISHIE JOHN K
PROF .AR.ANJALI SHARMA
PROF .AR.NAYANTHARA H
PROF .AR.TOSHI SINGH
BRIEF/INTENT
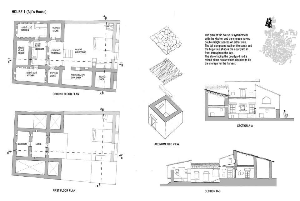
RSP of a village named Kiranagi in Gulbarga, Karnataka. Study was related to learning vernacular, typology of built form and spaces of a dry arid region. Sociology and the life style of the village community.

















06. SEM-01,02,03
Graphic design-Basic design-Visual Arts- Design
KNOW YOUR PLANTS
Landscape learning where you dive deep into exploring individual characteristics of plants and nature.
















To be continued......