
A FRESH LIFESTYLE


![]()



Farriers Creek is a refreshing residential community located in Burpengary, North Brisbane.
Set amongst nature, Farriers Creek will be the place where your family can grow. Whether it’s a family game of backyard cricket, exploring the nearby creek or catching up with the neighbours while the kids ride their bikes, Farriers Creek is a place you can slow down and enjoy life.
With shops, schools and transport all close by, you’ll have everything you need on your doorstep.

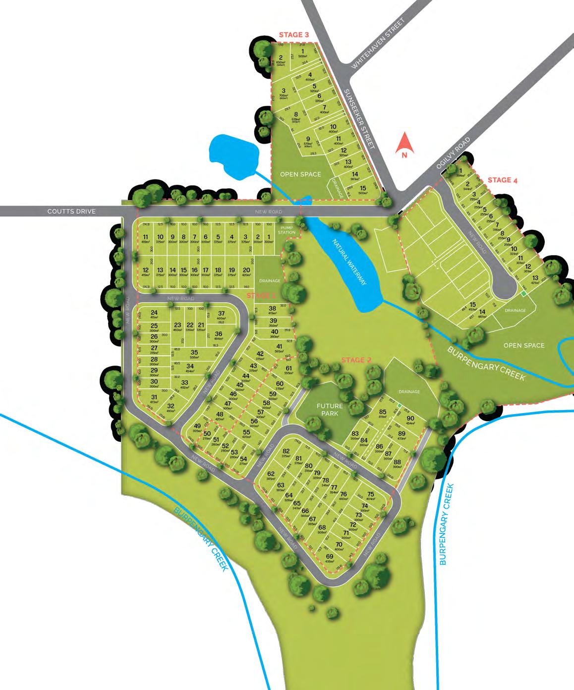
This creekside development consists of 106 residential homesites set amongst nature. Farriers Creek is a location where you can start fresh and create the lifestyle you’ve always wanted.
Build your dream home at Farriers Creek with a range of lot sizes available to suit the home design of your choice.



At Farriers Creek, you’ll have all you need to live a fresh lifestyle. The community is ideally positioned alongside a natural creek line making it a highly sought-after location for growing families.
There are plenty of options when it comes to childcare, primary and secondary schools in the region. A medical centre and a variety of shops are only a short drive away from home.

There’s also a train station, bus interchange and easy access to major transport connections to the Sunshine Coast and Brisbane.
You’ll also be within 30 minutes from the beautiful beaches of Bribie Island and Redcliffe, making this a truly refreshing location for your family to live.

Lots Range from 255m2 to 850m2
Frontages Range from 8.5m to 28.2m
Farriers Creek is a place set amongst nature, where your family can slow down and enjoy life.



CFMG Residential Communities bring quality residential neighbourhoods to life.
We bring aspirational addresses to emerging suburbs and communities across Australia. Our ability to develop with focus, agility and experience means our residents benefit from well considered and carefully constructed communities.
The key to CFMG Residential Communities success is the ability to identify residential trends and potential for growth. We deliver quality residential communities in growth corridors with close proximity to lifestyle amenities, employment hubs and educational facilities.
By adhering to these criteria, we are able to ensure our communities are not just a wonderful place to live but a great place to invest in your future.
CFMG Residential Communities are excited to bring Farriers Creek to life.
cfmgcapital.com.au/residential-communities
120 Coutts Drive, Burpengary QLD 4505 1800 947 900 | sales@farrierscreek.com.au | farrierscreek.com.au