PORTAFOLIO

1
![]()

1
P R O Y E C T O S A C A D E M I C O S
3 P R O Y E C T O S P R O F E S I O N A L E S


El propósito es la articulación del plan parcial de renovación urbana evoke con la ciudad, como son la avenida Jiménez o Calle 19 y la avenida Caracas o carrera 14. En este sentido, el fin es fortalecer la continuidad y conectividad con el eje ambiental y el centro histórico de la ciudad

La revitalizacion de los bienes de interés cultural a partir del fortalecimiento de la identidad cultural y social del sector por parte de la comunidad y la ciudadanía

Herencia es un proyecto de vivienda de interés social guiado a la inclusión de la comunidad y la patrimonial con el Bien de Interés Cultural “Iglesia La Sagrada Pasión” articulado por medio de espacios públicos que generen la integración exterior- interior resultado de la permeabilidad de los espacios tanto de los patrimoniales como del proyecto mismo creando una perfecta armonía entre el espacio construido y el entorno inmediato, reconocido y entendido por quienes lo contemplan, lo viven y lo habitan.
CENTRO CIENTÍFICO REGIONAL
PARA LA INVESTIGACIÓN Y CONSERVACIÓN DE SEMILLAS ANCESTRALES

El centro científico permite el reconocimiento,investigación, producción y conservación de la medicina tradicional fundamentada en las plantas tradicionales que se producen como herencia etnocultural y territorial indígena Nasa en Toribio - Cauca
Se Crea un espacio que vincule la ciencia y la cultura, además de producir una simbiosis entre arquitectura, cosmovisión, simbología y modernidad.
Es un Centro de conservación de las semillas del pacifico colombiano, siendo un equipamiento no solo de importancia local para los Nasa, si no con importancia a nivel regional y del país. Edificio como recinto de las prácticas culturales

La urbe que actualmente rodea el humedal se desconecta del mismo y no tiene interacción, apropiación, ni conocimiento del importante ecosistema que la rodea La vida diaria de los residentes está desconectada del paisaje, y en general el humedal es desconocido, inalcanzable y poco atractivo. Humedales para vivir es una propuesta que busca conectar el humedal Juan Amarillo con la vida diaria de los pobladores de forma armónica, sostenible y socialmente justa Se pretende generar apropiación de la biodiversidad de la región, estimular la salud física y mental de la población, fomentar la cultura de cuidado del humedal y conectar con otras zonas verdes e hídricas de la ciudad y al mismo tiempo fomentar actividades económicas en el sector.




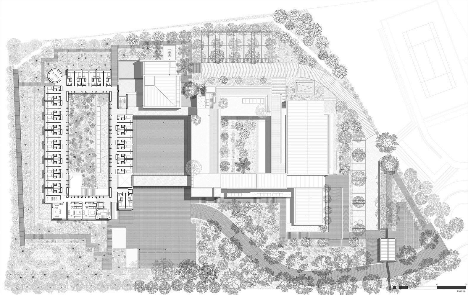
La casa del lago es la adecuada correlación entre la arquitectura y su entorno natural Cada detalle en su interior refleja una perfecta armonía con el exterior de manera implícita En medio de la pasión por la conservación nace esta casa en el lago, la cual muestra la unificación de lo natural con la implementación de construcciones modernas y elegantes

El diseño de la CASA CAOBA se puede apreciar como un par de volúmenes puristas y diáfanos conectados entre si por circulaciones, quienes son las que diferencian los espacios sociales de los privados. Está creada para la apreciación de este ecosistema en su máxima expresión y hacer de la arquitectura un espacio para la contemplación La inmersión de esta casa está dada por la misma disposición del bosque, se trata de traer el entorno al interior y crear atmosferas con sensaciones y experiencias múltiples

Nace como la idea de la arquitectura compacta y homogenea que se conecta entre si formando distintos patios jardines, que hacen que esta se encuentre inmersa dentro de la naturaleza dando continuidad a la montaña aledaña y captando las mejores visuales del entorno
F I A L L O A T E L I E R
Un Patio alrededor del cual se distribuyen los programas más públicos del edificio así como las oficinas Las aulas, la cafetería y el auditorio se ubican en la parte más baja del lote para tener proximidad con el parque y la ciudad. Una Plaza que constituye el corazón del proyecto, funciona como el atrio de la capilla y permite la expansión de las actividades de la zona académico-administrativa
Un claustro en torno al cual se distribuyen las habitaciones pararesidentes y visitantes. Las habitaciones para residentes se ubican hacia el occidente y el sur buscando la vista de los cerros y el sol de la tarde
Los tres vacíos están conectados por un eje de circulación longitudinal con escaleras que se adaptan a la topografía. El archivo y la biblioteca se ubican por debajo de la rasante del terreno para no afectar el máximo índice de construcción permitido En las zonas exteriores se plantean circuitos de senderos que coinciden con un sistema de acequias para canalizar aguas lluvias. El edificio se construye en ladrillo conformando dovelas de concreto evitando el uso de formaletas













CONCURSO KURANDZA
ARQUITECTURA














