Refurbishment of Capability Development Center

Page 1

INTERIOR

CONSULTANCY SERVICES FOR INTERIOR DESIGN AND FIT-OUT WORKS FOR

CAPABILITY DEVELOPMENT CENTER

AT ADDC - III BUILDING

IN TERIOR MOOD BOARD

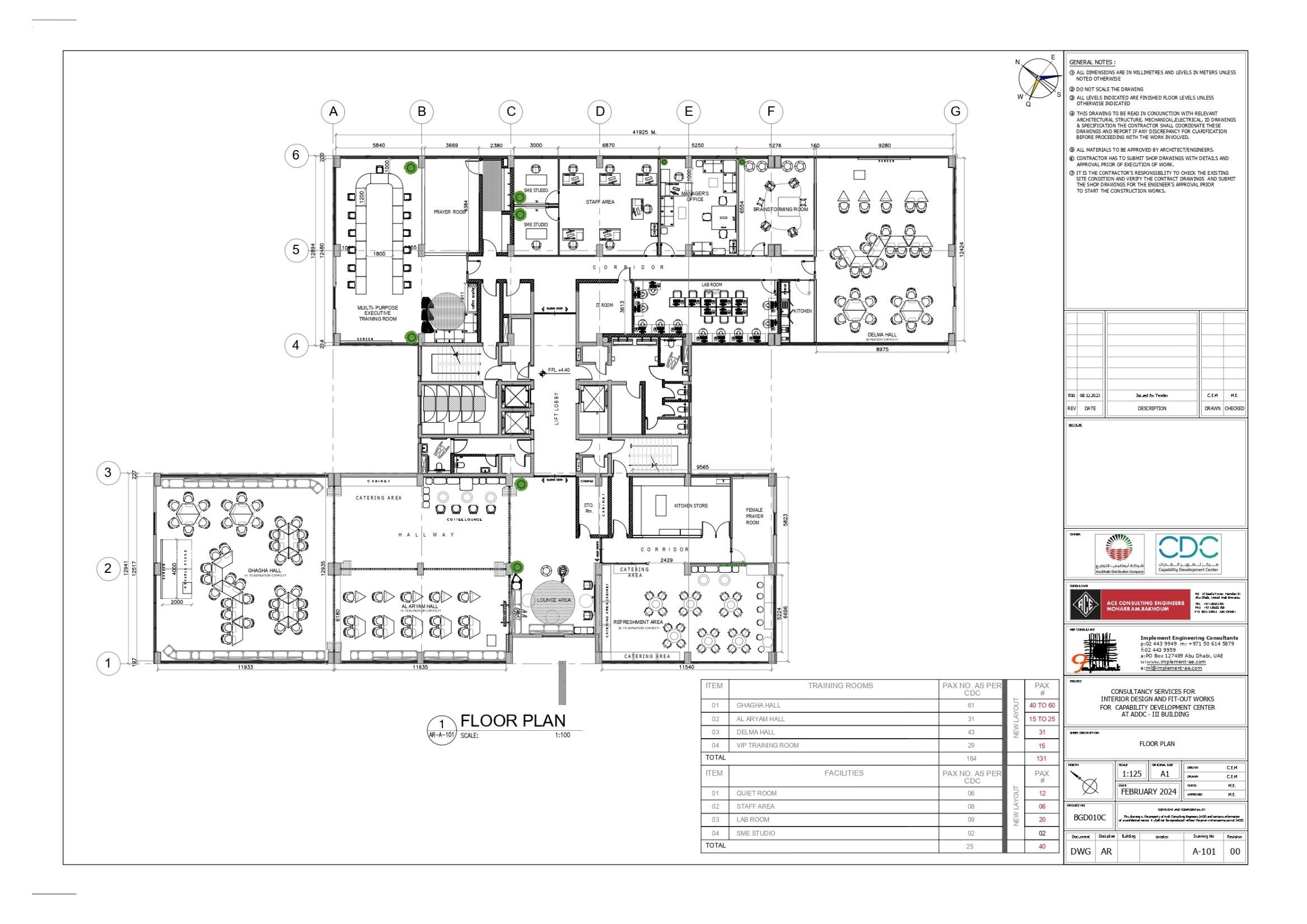
FLOOR PLAN

PERSPECTIVE ( TOP VIEW)

CEILING CONCEPT

CEILING CONCEPT FOR TRAINING ROOMS

PERFORATED ACOUSTIC PANEL

LIFT
M A T E R I A L F I N I S H E S: W A L L:
ENTRANCE/
LOBBY

CUSTOMIZED CARPET CONCEPT

LOUNGE AREA WALL CONCEPT

LOUNGE AREA OPTION
M A T E R I A L F I N I S H E S: F U R N I T U R E: W A L L: F L O O R: ASTON 100 BLUE BUBBLES ITA36 NEW GINGCO C 8TH
1
M A T E R I A L F I N I S H E S: F U R N I T U R E: W A L L: F L O O R: ASTON 100 BLUE GINGCO C 8TH BUBBLES ITA36 NEW
LOUNGE AREA OPTION 2
VIP/EXECUTIVE TRAINING ROOM M A T E R I A L F I N I S H E S: F U R N I T U R E: W A L L:

VIP/EXECUTIVE TRAINING PANTRY

F U R N I T U R E C O N C E P T: F U R N I T U R E:
100 BLUE YARWOODD -STYLE MINERAL BUBBLES ITA36 NEW F L O O R:
ASTON

OFFICE STAFF CHAIR CONCEPT

MANAGER’S OFFICE OPTION 1 M A T E R I A L F I N I S H E S: W A L L: F L O O R: F U R N I T U R E: ASTON 100 BLUE YARWOODD -STYLE MINERAL BUBBLES ITA36 NEW
MANAGER’S OFFICE OPTION 2 M A T E R I A L F I N I S H E S: W A L L: F L O O R: F U R N I T U R E: ASTON 100 BLUE YARWOODD -STYLE MINERAL BUBBLES ITA36 NEW

MANAGER’S OFFICE

W A L L: STAFF OFFICE OPTION F U R N I T U R E M A T E R I A L F I N I S H E S F L O O R:
W A L L: STAFF OFFICE OPTION F U R N I T U R E M A T E R I A L F I N I S H E S F L O O R:
- STUDIO
M A T E R I A L F I N I S H E S: W A L L: F L O O R:
SME
ROOM

BRAINSTORMING CUSTOMIZED TABLE CONCEPT DESIGN

INTERACTIVE TABLE

B R A I N S T O R M I N G R O O M M A T E R I A L F I N I S H E S: W A L L: F L O O R: F U R N I T U R E:
ASTON 100 BLUE YARWOODD -STYLE MINERAL BUBBLES ITA36 NEW

TRAINING ROOMS / LOUNGE AREA MENDI CHAIR

F U R N I T U R E:
ASTON 100 BLUE YARWOODD -STYLE MINERAL BUBBLES ITA36 NEW

GHAGHA HALL

F U R N I T U R E: M A T E R I A L F I N I S H E S: W A L L: F L O O R:
ASTON 100 BLUE YARWOODD -STYLE MINERAL

AL ARYAM HALL

DELMA HALL

W A L L: CAFETERIA MOOD BOARD M A T E R I A L F I N I S H E S: F L O O R: F U R N I T U R E:
100 BLUE
MINERAL
ASTON
YARWOODD -STYLE
BUBBLES ITA36 NEW
W A L L: REFRESHMENT MOOD BOARD M A T E R I A L F I N I S H E S: F L O O R: F U R N I T U R E: ASTON 100 BLUE YARWOODD -STYLE MINERAL BUBBLES ITA36 NEW

REFRESHMENT A R E A

W A L L: LAB. ROOM MOOD BOARD F U R N I T U R E M A T E R I A L F I N I S H E S: F L O O R:

FEMALE PRAYER ROOM CARPET CONCEPT

W A L L: F U R N I T U R E M A T E R I A L F I N I S H E S: F L O O R:
FEMALE PRAYER ROOM
W A L L: F U R N I T U R E M A T E R I A L F I N I S H E S: F L O O R: STORAGE ROOM
W A L L: F U R N I T U R E M A T E R I A L F I N I S H E S: F L O O R: KITCHEN STORAGE

Turn static files into dynamic content formats.

Create a flipbook
Issuu converts static files into: digital portfolios, online yearbooks, online catalogs, digital photo albums and more. Sign up and create your flipbook.
Refurbishment of Capability Development Center by Catherine E. Marzan - Issuu