CEDRIC KATCHIA
PROJETS SÉLECTIONNÉS
2021 - 2024
CEDRIC KATCHIA CK
katchiacedric@hotmail.fr +225 01 41 10 94 26
PARCOURS PROFESSIONNEL
PROFIL, PORTFOLIO
COMPÉTENCES
Concepteur de projet junior avec 2 ans d’expérience dans des projets résidentiels et commerciaux aux États-Unis d’Amérique. Compétent en dessin CAD et modélisation 3D, capable de traduire des concepts en plans détaillés. Joueur d’équipe, collaboratif et expérimenté dans la conduite d’études conceptuelles, la création de rendus et la présentation de conceptions aux clients. Désireux de contribuer de manière créative et de grandir dans un environnement architectural dynamique.
• https://www.linkedin.com/in/cedric-katchia-1b277a1a8/
• https://issuu.com/cedrickatchia3834/docs/2024.05.30_portfolio_updated
• Conception
• AutoCAD 2D
• Rhinoceros 3D
• Revit
• SketchUp
• Enscape
EXPÉRIENCES PROFESSIONNELLES
• Lumion
• Suite créative Adobe
• Anglais
• Croquis
• Microsoft Office
FORMATIONS PERSONNEL DE CENTRE FITNESS
Mai 2020 à Juillet 2021
Lambright Sport and Wellness Center | Ruston, Louisiane
• Installation et utilisation des équipements et respect strict des règles du centre.
• Suivi minutieux de la capacité de la salle de sport, notamment face aux défis posés par la pandémie de COVID.
• Affichage d’informations sur les horaires de la salle de sport et les événements à venir, maintien d’une communication constante avec les clients.
CONCEPTEUR DE PROJET
JGMA | Chicago, Illinois
Juin 2022 à Juin 2024
• Utilisation de logiciels de dessin CAD et de modélisation BIM 3D pour le développement des plans de conception pour des projets résidentiels et commerciaux.
• Collaboration avec des collègues pour l’achèvement des conceptions du projet dans les délais et dans le respect du budget.
• Participation aux premières réunions avec les clients concernant la vision du projet, et présentation de propositions de conception aux clients.
• Réalisation d’études conceptuelles et création de rendus et de modèles 3D en fonction des objectifs du projet.
Master of Architecture
• Louisiana Tech University, Ruston, Louisiane
Bachelor of Science in Architecture Studies
• Louisiana Tech University, Ruston, Louisiane
Mai 2022
Mai 2021
TABLE DE MATIÈRES
PROJETS PROFESSIONNELS
BELLWOOD NEW DOWNTOWN HOUSING PROJECTS
PROJETS ACADÉMIQUES
KING COMMUNITY CENTER BUILDING
FLORIDA RECREATION & STUDENT CENTER
LATECH CENTER FOR LIBERAL ARTS
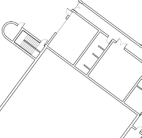
BELLWOOD NEW DOWNTOWN HOUSING PROJECTS
Année: 2022
Équipe: Adeyinka Adejokun, Aaron Spiering
Rôle: Dessins architecturaux
Le projet Bellwood New Downtown Housing Projects est une initiative conçue pour rajeunir le centre-ville de Bellwood en introduisant des options de logement contemporains tout en préservant son caractère distinctif. Les principaux objectifs comprennent la création d’une destination attrayante, l’offre de choix de logements variés, la promotion du développement économique, le renforcement des liens communautaires et la priorité à la durabilité.
Les composantes du projet comprennent la construction de bâtiments à usage mixte, la réaffectation de monuments historiques, la conception de zones adaptées aux piétons, l’intégration de mesures écologiques et la promotion de l’engagement communautaire. En fin de compte, cette initiative représente une opportunité cruciale pour insuffler une nouvelle vie au centre de Bellwood, en favorisant une atmosphère dynamique qui honore son patrimoine et assure sa prospérité future.


CORRIDOR / LOBBY 2
ELEVATOR
KITCHEN 12'-7" X 10'-4"
LIVING ROOM 12'-4" X 13'-6"
BALCONY 5" X 13'-6"
BEDROOM 10'-3" X 14’
BATHROOM 8'-11" X 6’-10”
BATHROOM 8'-2" X 6’-10”
MASTER BEDROOM 10'-6" X 19’ - 6”



BATHROOM 7'-2" X 8'-6"
9'-6" X 10'-6"
W/D
LIVING ROOM 13'-6" X 10'-10"
BEDROOM 10'-6" X 13'-6"
13'-6" X 5’
KING COMMUNITY CENTER BUILDING
Année: 2022
Équipe: Andrew Huss
Rôle: Dessins architecturaux
Le projet King Community Center a pour objectif de créer un centre communautaire dynamique, offrant un accès facile aux services sociaux pour les individus et les familles, ainsi que des possibilités d’activités sportives, récréatives et de bien-être. Il vise à offrir un environnement accueillant et sécurisé aux membres de la communauté résidant dans des quartiers confrontés à des défis importants.
Le projet visait à offrir des services complets de conception et d’ingénierie pour le bâtiment King Community Center et ses améliorations extérieures. De plus, il impliquait des services de conseil professionnels englobant la documentation des conditions existantes, la programmation, la planification du site, la conception schématique et les documents de construction. Le projet était axé sur l’amélioration de composants spécifiques de l’intérieurs et l’extérieurs du bâtiment, la correction des défauts déjà connus, la mise à jour de l’esthétique du bâtiment, l’amélioration de l’efficacité énergétique et et la revitalisation du bâtiment pour devenir un centre social plus accueillant pour la communauté.































































EXISTING CMU WALL
NEW ACT-1 TO MATCH EXISTING WHERE APPLICABLE
NEW EXTERIOR WALL:
WEATHER RESISTIVE BARRIER EXT. GYP. BD. SHEATHING COLD-FORMED MTL STUD FRAMING






NEW SLAB EXTENSION: METAL DECK WITH CONCRETE TOPPING SLAB ON GRADE (SEE STRUCTURAL)
SUSPENDED CEILING; REFER TO RCP; MATCH EXISTING

EXISTING STRUCTURAL HEADER TO REMAIN. SEE STRUCTURAL
NEW RETAINING WALL: 4" THICK EXTRUDED POLYSTYRENE INSULATION PROTECTION BOARD/DRAINAGE MAT WATERPROOFING CMU WALL
EXISTING CURB TO BE DEMOLISHED
EXISTING SLAB
T/GRADE 0' - 0"


NEW CONCRETE SLAB ON GRADE

EXISTING SLAB
T/BASEMENT LEVEL -11' - 4"



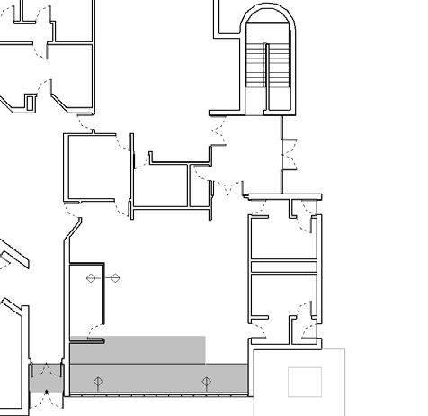
FLORIDA RECREATION & STUDENT CENTER
Année: 2021
Rôle: Design conceptuel, dessins architecturaux, visualisation
L’objectif de ce projet était de créer un centre de loisirs adapté aux défis posés par la pandémie de COVID-19 de 2020 tout en recherchant une durabilité maximale. Par conséquent, la structure accorde la priorité aux zones d’entraînement extérieures ombragées pour les individus et fournit des cabines d’étude isolées pour les étudiants qui cherchent un refuge dans des environnements surpeuplés.
Les choix de conception durable englobent une façade auto-ombrée, un stockage d’énergie solaire, une isolation naturelle et des systèmes naturels de filtration d’air. La transparence visuelle a joué un rôle clé dans la connexion des espaces, permettant aux programmes de se fondre les uns dans les autres et d’éclairer les espaces du premier étage avec la lumière naturelle. En outre, les éléments naturels sont utilisés à la fois comme un système de filtration d’air et un élément d’orientation qui accompagne l’occupant dans tout le bâtiment.


PLAN DU PREMIER ÉTAGE


PLAN DU DEUXIÈME ÉTAGE

PLAN DU TROISIÈME ÉTAGE


LATECH CENTER FOR LIBERAL ARTS
Année: 2022
Rôle: Design conceptuel, dessins architecturaux, visualisation



La réinvention des espaces étudiants représente une avancée significative vers la création d’un environnement propice à la collaboration et à l’engagement social. Il est essentiel que les étudiants et les professeurs disposent d’espaces en dehors des salles de classe traditionnelles où ils peuvent facilement interagir. Ces espaces innovants révolutionneront la perception des environnements d’étude, en établissant des hubs centraux d’interaction au sein du bâtiment.
La conception vise à établir un flux dynamique dans tout le bâtiment, en reliant visuellement et spatialement les différents étages par l’allongement de l’atrium le long du périmètre du bâtiment. De plus, le bâtiment intègre une circulation verticale secondaire qui se tisse à l’intérieur, offrant des caractéristiques de coupe distinctives.





ÉLÉVATION SUD-OUEST

ÉLÉVATION SUD-EST

ÉLÉVATION NORD-OUEST

COUPE LONGITUDINALE SUD-OUEST

COUPE TRANSVERSALE SUD-EST

COUPE TRANSVERSALE NORD-OUEST

