Cecilia Muniz Portfolio | 2025

Page 1


Selected Works

University of Florida | 2021- 2024

ce n’est pas le projet, c’est le début – mm

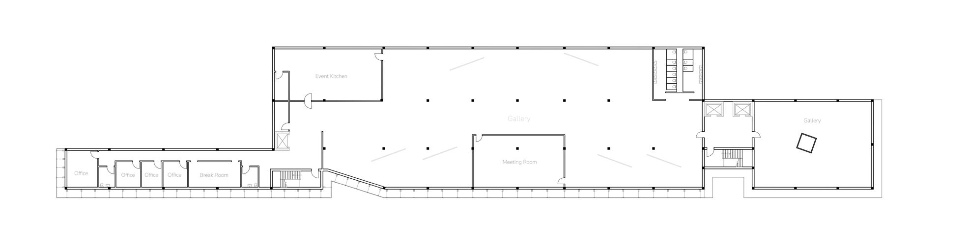
Sweetwater Creek Activation

Design 7 | Fall 2024

Accessory Dwelling Unit

Design 7 | Fall 2024

Analytical Drawing

Various Works| 2022-2024

Charleston Dance Studio

Design 5 | Fall 2023

P ath of Metaphor

Design 1 | Fall 2021

Vertical Datum

Design 4 | Spring 2023

Canyon

Design 6 | Spring 2024

Interior Design

Professional Work| Summer 2024

Witter’s Competition

Design Competition| January 2025

P ersonal Work

Various Works| 2018-2023

Sweetwater Creek Activation

Prof. Gamble | Design 7 | Fall 2024

Gainesville, FL

The Linear Park Activation in Sweetwater Creek began with acknowledging this area as a district that serves to bridge the disconnect of the greater downtown area with the communal hotspot that is Depot Park. Including features that reflect Gainesville’s character such as red brick within elements such as multimodal pathways, bridges, and lowrise planters create a welcoming environment. To reinforce this district, chess pieces are used as a visual marker of rhythm within the project. Additionally, the chess piece has been abstracted through moulding and curves to realize the forms of the ground: warp, carve, and peel, as it became edges, paths, and nodes. Thus, creating moments

of play, pause, and gather by altering the elevation of the ground to encourage views and high visibility within the site. This is in accordance with the greater goal of crafting a park that follows CPTED (Crime Prevention Through Environmental Design) principles. The pavilion creates a greater opportunity for community connection through a form that shapes the surrounding area as it reacts to the park. A large inspiration for the pavilion was childhood memories of birthday parties filled with crafts tables, picnics, and laughter. This pavilion seeks to foster these moments within areas that encourage seating, desired paths, and viewpoints without overtly programming the space.

Above and left: Through mapping and collaging the Sweetwater Creek Park, a clear connection between the library and the linear path begins to shape the form of the pavilion.

Above: Intersecting with a moment of play, the pavilion connects directly with the line of sight of library users to activate foot traffic to the park. The structure’s form cradles a garden on the lower level with an elevated path to create an edge and encourages movement toward the lookout point.

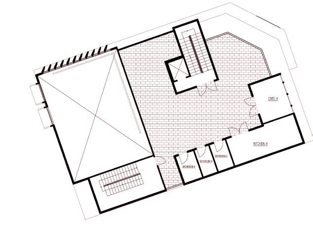
Accessory Dwelling Unit

Prof. Gamble | Design 7 | Fall 2024

Gainesville, FL

5

In partnership with the U.S. Department of Housing and Urban Development (HUD), the city of Gainesville is looking to design and build Accessory Dwelling Units (ADU) on five city-owned lots to become temporary housing for unhoused Gainesville residents for a period of 3 to 18 months as they get back up on their feet. Working under the guidance of city architect Sarit Sela, this studio loft has joined a series of template designs that follow model typologies and ADU code. The living unit focuses on

visitability with ADA-compliant bathrooms, equitable access and privacy, and optimized site circulation to maximize green space. The surrounding trees on the northern and western boundaries provide natural shading to the ADU’S deck which becomes a habitable space for connection as a threshold between the ADU and the primary unit. Running along the westward boundary, a path supported by a retention wall inclines at a surface slope ratio of 1:30 to accommodate all visitors.

Lot

Level 01

Level 00

Short Section

Analytical Drawing

2021-2023 | Various Works

Analysis through drawing visualizes spatial relationships, form, light and shadow, and site beyond what is seen through line and tone.

Site Analysis| Gainesville, FL
Circulation and Void| New York
Massing studies | with Gianna Conterio, Rachel Moss, and Cera Stamm
New World Center| Miami, FL
Seward Park Elevation| New York
Perelman Performing Arts Center | New York
Cooper Union | New York, NY Adrienne Arsht Center for the Performing Arts | Miami, FL

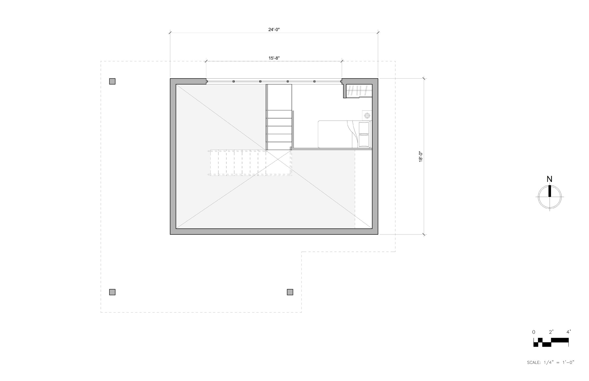
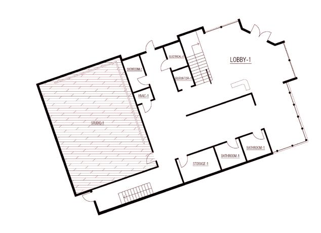
Charleston Dance Studio

Prof.

| Design 5 | Fall 2023

Charleston, SC

Located in the heart of the downtown Charleston area, this corner lot has been transformed into a dance studio by day and a cultural event space for the city by night. In keeping with the surrounding area, utilizing brick and languages of the southern style terraces, this dance studio seeks to become an integral part of the city. Creating a chamfered edge for the entrance of the dance studio invites guests in and enhances its most prominent features of the third level terrace and roof-top cafe. To create an attractive and inviting space, the roof-top cafe includes a green roof and

overhead fins emulating the sun-shading devices located on the northwestern and southeast side of the dance studio. Enhancing the lighting conditions within each double height studio, the rotated fins were modeled to create a dynamic experience for dancers. According to Charleston policy, the lane closest to the site becomes a walkable space on weekends to further encourage nightlife. The night-time transformation into an event space, allows the surrounding downtown area to be better activated and increase cultural integration with the adjacent theatre.

Design and physical model in collaboration with Remington Rexroad and Haley Petitt.

Above and left: The nighttime transformation of the dance studio into an event space is further enhanced as the windows that previously brought light into the space during the day begin to become sources of illumination that create an attractive beacon that pulls visitors towards itself.

Above: Form evolution diagram of the dance studio, beginning with the chamfered edge setting back to form the terrace and further carving away to shape the roof-top cafe. The form begins to slowly shift to accommodate the double height studios as the most critical part of the facade, with the stairwells becoming datums that create verticality within the form.

Above and left: This spatial mapping follows the story of Killing Commendatore by Haruki Murakami which explores ideas of space, time, and void using principles of spatial hierarchy, node, path, depth, and directionality. The evolution of this mapping as a diagram informs a linked sequence within a constructed ground.

Above: The action word of “pull” visualizes the formal relationships between nodes and constructed planes as the tectonic forms (space and time) begin to integrate with stereotomic masses (void). The organization of these nodes within a hierarchy of two and three dimensions emulates the characters within the novel: the Protagonist, the Faceless Man, and Donna Anna.

Vertical Datum

Following the silhouette of a jenga tower, the tectonic construction of the vertical datum becomes a spine that pushes and pulls to create its form. The shifting movements within the datum become a series of held spaces that integrate into the stereotomic mass as the figure meets ground.

The exploration of assembly through phenomenology and materiality focuses on perception through the scale of the eye, fist, and hand. These spaces are held within the curtain wall which becomes the skin of the vertical datum as it integrates with the spine.

Canyon

Prof. Lee Su Huang | Design 6 | Spring 2024

Manhattan, New York

Site 1 and 2

FAR Zoning
P ublic Transit
Noise Pollution

The Seward Park Extension Redevelopment Mk.III project responds to the surrounding dense area of Essex Crossing in New York City and the needs of its community. Namely, the affordable housing crisis, especially as it pertains to unhoused individuals and the loss of community. Within the development of two sites, a narrative of “Canyon” began to carve and form the project. The aim within the form of each site was to intentionally shape a void as a central meeting point for the community. In the northernmost site (Site 01), the gallery begins to use light wells within the carved carved spaces to create a dynamic experience. The

mixed-use event space plays with light in its facade with perforated metal screens covering the southern side to enhance spatial intrigue further. The choice in materiality for the facade pertains to the modern callback to the sedimentary layers and vibrant hues with a canyon. The southernmost site (Site 02) aims to create new mixed-income units, with a focus on affordable housing units with supporting communal spaces such as libraries, daycares, green roofs, and plazas. In respecting the history and the surrounding area, this project seeks to foster community connection as a safe space for residential, recreational, cultural, and commercial purposes.

Site analysis, circulation map, and architectural plan drawings in collaboration with Quin Fang.

02

Left to Right: Site 01, as seen through section and plan, holds an atrium with a glass ceiling condition and a light well which act as datum within the program of gallery on levels two to five. A skyight creates a lightwell at the corner entrance as it engages with the lobby and gallery. Perspective drawings in collaboration with Quin Fang.

Left to Right: Site 02, as seen through section and plan, carves into the ground to activate the center to become a plaza to attract intrigue for commercial programs on and below street level. Using Jane Jacob’s idea of “eyes on the street,” the plazas fill constant foot traffic weaving throughout the site to create safer communal spaces for residents and non-resident alike.

Level 08
Level 00

Interior Design

Under the guidance of the Zyscovich Interior Design team, these renovations were realized through iteration and collaboration.

Administrative office renovation| 3D modeling and rendering | millwork design options, furniture and material selection
Office renovation| 3D modeling and rendering | layout design options, furniture and material selection
Carpet renovation | material selection
Carpet renovation | layout design
Acoustical panel renovation| 3D modeling and rendering | layout design

Witter’s Competition

Design Competition | January 2025

Objective: redevelop the area of the W University Avenue and NW 13th Street intersection to improve community connections and increase pedestrian safety through interdisciplinary collaboration.

Located across NW 13th Street on a university-owned parcel, the Northeast Recreation Center relocates the former Broward recreation spaces, including the skatepark. Its design emphasizes natural access control, establishing a strong sense of entrance and authority. The style blends seamlessly with UF’s campus through thoughtful material choices and landscape integration. Beyond acting as a guardian to the skatepark and plaza, it also functions as a clubhouse with study rooms, a cafe, and gathering spaces. Designed with CPTED ( Crime Prevention Through Environmental Design ) principles, it creates a defensible yet welcoming space to enhance user safety. Inspired by Jane Jacobs’ “eyes on the street” concept, the mixed-use development consolidates local businesses into a smaller footprint. This strategy reduces overall building sprawl to increase permeable surfaces and minimize “dead zones” such as alleyways and empty parking lots that attract crime. Promoting consistent pedestrian activity throughout the day enhances natural surveillance and the overall safety of the area. Additionally, the redevelopment prioritizes green spaces, bioswales, and multi-functional areas while creating more available space for multimodal transportation improve accessibility, making the area safer for pedestrians and cyclists.

Master plan in collaboration with Lilian Crawford (Landscape Architecture), Henry Kee (Landscape Architecture), Michaela Miller (Interior Design), Matthew Mullings (Urban and Regional Planning), and Thomas Raffenberg (Civil Engineering).
Master Plan Process | team collaboration
University of Florida Northeastern Recreation Center
Program Key
1. Portal Realty
2. Tup Tim Thai Restaurant and Sushi Bar
3. Piesanos Stone Fired Pizza
4.HASS Kitchen
5. Bagels and Noodles
6. Holiday Inn
7. Loading Dock Program Key
1. Entrance/Reception
2. Study rooms 3. Indoor Cafe
4. Champions Clubhouse

Personal Work

Various Works | 2018-2023

These works subvert expectations through parody and reimagining an original artwork through form, value, and assembly.

Reference: Self Portrait Dedicated to Dr Eloesser by Frida Kahlo

Date: November - December 2018

Medium: Photography

Reference: The Last Supper by Leonardo Da Vinci

Date: August 2021- January 2022

Medium: Acrylic on canvas

Dimensions: 24” x 36”

Reference: The Kiss by Gustav Klimt

Date: October- December 2023

Medium: Mixed media on canvas

Dimensions: 24” x 18”

Reference: Comedian by Maurizio Cattelan

Date: December 2023

Medium: Acrylic on canvas

Dimensions: 11.875” x 11.875”

Cecilia Muñiz

ceciemuniz@gmail.com

Turn static files into dynamic content formats.

Create a flipbook
Issuu converts static files into: digital portfolios, online yearbooks, online catalogs, digital photo albums and more. Sign up and create your flipbook.
Cecilia Muniz Portfolio | 2025 by Cecilia Elena - Issuu