














![]()




























































































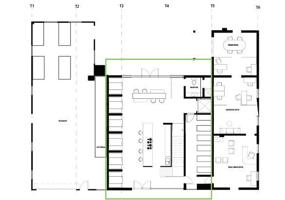
The artist reworks vintage pieces within his paintings, inspiring rich tones and traditional artwork. The integration of history and color defines this art and his space.











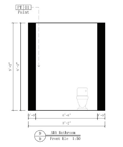
The first floor bathroom is ADA accesible featuring grab bars, accesible heights, and a wheelchair turning radius. The palette is monochromatic and bright, with some interest from ceramic tiles showcased on multiple planes.
































