COLIN BRIGGS PORTFOLIO - WORK SAMPLE
BACHELOR OF ARCHITECTURE WOODBURY UNIVERSITY (2024)

![]()
BACHELOR OF ARCHITECTURE WOODBURY UNIVERSITY (2024)


OFFICE - ARLINGTON SECOND FLOOR ADDITION

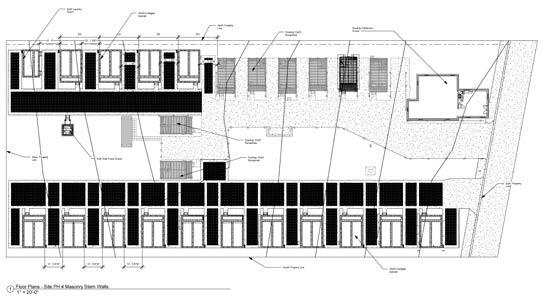
OFFICE - CRESENT CITY BUNGALOW VILLAGE


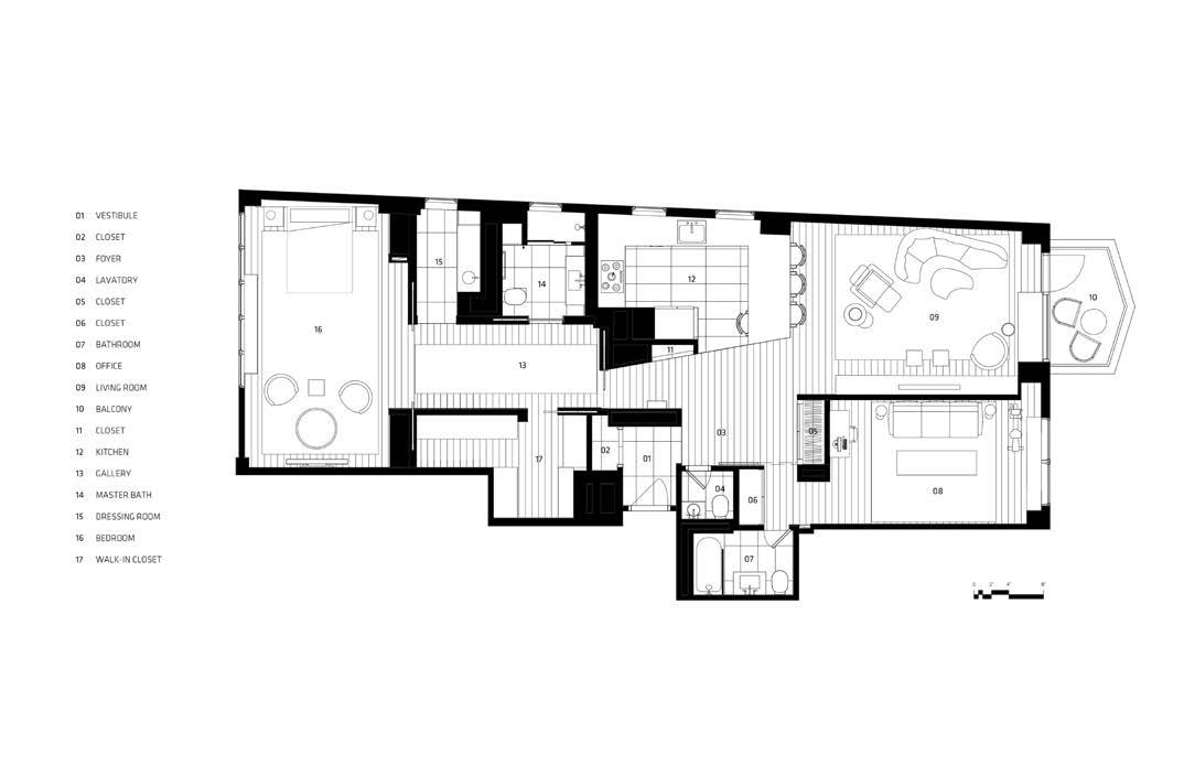
OFFICE - LEVIN RESIDENCE PRESENTATION FLOOR PLAN

OFFICE - BRONX COMMUNITY COLLEGE PHILOSOPHY HALL

OFFICE - BPCS FOURTH FLOOR RENOVATIONS

SCHOOL - MAC-HUACAN

SCHOOL - WESTLAKE THEATER ADAPTIVE REUSE









SCHOOL - AR KIOSK


SCHOOL - PINOT POUR



SCHOOL - FARMER’S FRIEND
OF CONTENTS



















































































































































EXISTING WATER BOTTLE FILLER TO REMAIN EXISTING SINK TO REMAIN. EXISTING WATER CLOSET FILLER TO REMAIN, TYP.







SCOPE: RESEARCH CONDITIONS AND SIMILARITIES OF TEOTIHUACAN AND MACBA TO DESIGN A CITY HALL AND ITS CITY FOR THE FUTURE.
TEOTIHUACAN MACBA CIRCULATION PATHS


















SCOPE: ADAPTIVE REUSE TO PRESERVE THE ORIGINAL STRUCTURE WHILE ADDING TOWERS FOR VERTICAL ARCHIVAL STORAGE ON ADJACENT LOT. TOWERS FRAME A COURTYARD DEFINING A NEW STRUCTURAL GRID, CIRCULATION AND PROGRAM. PRIVATE AREAS ARE LOCATED IN THE REAR AND SECOND FLOOR.







Scope: WORK IN A GROUP TO DESIGN A CAMPUS KIOSK TO SERVE AS A DISPLAY, SHARING INFORMATION ABOUT THE VIRUTAL REALITY EXPERIENCES CREATED BY EACH STUDENT. WE UTIIZED GABION WALLS AS THE FOUNDATION, EMBEDDING GLASS ROCKS FOR LIGHT effects to design










SCOPE: DESIGN PHYSICAL MONUMENTS BASED OFF PREVIOUSLY COMPLETED AUGMENTED REALITY EXPERIENCES. THE PROJECT PROPOSED A DESIGN PROVIDING USERS WITH A VISUAL AND IMAGINITIVE REPRESENTATION OF THE WINEMAKING PROCESS, HIGHLIGHTING THE VARIOUS STEPRS INVOLVED IN THE PROCESS. THE PROJECT EDUCATED THE AUDIENCE ON THE TOPIC OF WINE WHILE ALSO COMMENTING ON THE WATER WASTE ON CAMPUS.





SCOPE: CREATE AN ADDITION TO THE EXISTING HOUSING COMPLEX ON CAMPUS,








THANK YOU.