Portfolio 2024

Page 1

PORTFOLIO - CAMILLE BLANC Architecte D.E. HMONP

I IIPROJETs

Expériences professionnelles montrant différentes phases de projet et différents programmes.

ateliers Workshops et bénévolats sur le terrain, riches d’échanges et de collaborations, à travers divers matériaux et diverses méthodes.

etudes de cas

Extrait de projets contextualisés, répondant à un programme et des enjeux réels, en contact avec les acteurs locaux.

GRAPHISME

Numérique ou manuel, retranscription par le dessin et la maquette, passions entretenues depuis le premier âge.

III IV

I

PROJETs

Expériences professionnelles montrant différentes phases de projet et différents programmes.

I

édifié au XVIe

© Ministère de la Culture

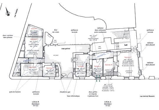
CHANGEMENT D’USAGE

Ancien hôtel particulier Legouz de Gerland, Dijon, Côte-d’Or (21)

programme : transformation d’anciens locaux de bureau en deux habitations ou une habitation et des bureaux.

collaboration : visuels réalisés pour l’Agence Dominique Jouffroy Architecte

phase : de relevé à avant-projet sommaire

type : logement privé, patrimoine

niveau de rdc

PHASE ESQ & APS
scénario no2 APS (SCN no2)

édifié

en 1659

carte postale ancienne

CHANGEMENT D’USAGE ET RESTAURATION

Colombier, La Bussière-sur-Ouche, Côte-d’Or (21)

programme : aménagement d’un espace de vie secondaire (bureau ou logement) et d’un panorama sur l’abbaye de La Bussière, devenue hôtel suite à l’achat par un propriétaire privé anglais ; restauration extérieure et intérieure des façades.

collaboration : visuels réalisés pour l’Agence Dominique Jouffroy Architecte

phase : de relevé à avant-projet définitif

type : logement privé, patrimoine

CAVE

Grand colombier de l'abbaye La Bussière-sur-Ouche Plan d'étage échelle: 1/50e étage du colombier niv+2,20 plancher sur lambourdes sur extrados ensemble vitré avec double porte battante et imposte A A C C B B plancher formats indicatif, surcharge 150kg/m2. ardoise écaille laves Ardoise écaille échelle 1:1 A A B B C C Grand colombier de l'abbaye La Bussière-sur-Ouche Plan de cave échelle: 1/50e Dominique JOUFFROY Architecte du patrimoine 2bis rue du Vieux Collège 21000 DIJON tel. 03 80 65 32 50 niv+/-0 niv-12 sol ciment (fausses dalles) voûte en berceau enduite ciment linteau bois linteau bois robinet interrupteur arrivée d'eau chambre voûtée crochet métallique canalisation plomb état intérieur inchangé bande anti-rejaillissement A A B B C C palier sur enrayure existante Dominique JOUFFROY Architecte du patrimoine 2bis rue du Vieux Collège 21000 DIJON tel. 03 80 65 32 50 A A C C B B R+1
TOIT R+2,5 PHASE APD

ciment moussu

socle fendu

bordure pierre emmarchement pierre

© Ministère de la Culture

petit banc pierre "à l'antique"

pierre altérée en surface

mousse

ressaut placage pierre

sol non plan (déformation) pierre de dallage 30x30cm se désquamant

vestiges badigeon terre orangée

bande terre d'ocre

accroche murale de volet (rouillée)

vestiges badigeon terre orangée

petit banc pierre "à l'antique"

enduit refait au ciment

vestiges badigeon terre orangée

tube plomb

DEP zinc petit Ø

motifs de fleurs (2 faces) incomplets

taches noirâtres

vestiges de badigeon ocre jaune souligné d'ocre rouge

vestige d'ocre rouge

enduit blanchâtre

pierre naturelle

vestiges de badigeon rosé

appui cassé

placage pierre "à l'antique" en dalle de Bourgogne nuancée

égoût plomb égoût plomb

végétation

ressaut puis placage pierre dauphin coudé

raccordement dauphin acier

vestiges de badigeon "à l'antique" terres d'ocre jaune et rouge

plafond enduit fissuré badigeon blanchâtre, anciennes infiltrations

fleurs complètes de chaque côté fleurs complètes d'un côté et altérées de l'autre fleurs d'un seul côté complètes ou altérées (face intérieure ou face extérieure)

vestiges d'enduit ciment fers plats (ou IPN) rouillés et enduit décollé par plaques

Propriété de M.Mme Baudiquey à Quincey (21)

LOGIS PRINCIPAL : ÉTAT RELEVÉ

DETAIL PORTIQUE SUR PARC : coupes échelle : 1/50e

Dominique JOUFFROY Architecte du patrimoine 2bis rue du Vieux Collège 21000 DIJON tél. 03 80 65 32 50
PHASE PRO
existant

RESTAURATION DES FAÇADES EXTÉRIEURES

Logis principal du Château de Quincey, Quincey (21)

programme : restauration des façades extérieures du logis principal, comprenant les toitures, les menuiseries, les façades : les parties en enduit et les partie en pierre de taille, ainsi que le portique donnant sur le parc. Travail en collaboration étroite avec le restaurateur pour ce dernier, afin d’être au plus juste historiquement grâce aux sondages.

collaboration : visuels réalisés pour l’Agence Dominique Jouffroy Architecte phase : de relevé à projet

type : logement principal et chambres d’hôtes, patrimoine

restauration remise en place de la lisse

restauration de la balustrade acier et des motifs fleuris

isolation sol de la terrasse et ouvrages exposés par couvertes plomb

restauration des pierres de plate-bande altérées

réfection du linteau

IPN par poutres BA préfabriquées enduites restauration des fonds et des décors de badigeon "à l'antique"

restauration des plaquage pierre coquillée façon marbrière

restauration du dallage pierre création d'un deck chêne

Détail de principe de coloration : Les couleurs définitives seront réalisées en fonction des sondages et analyses des vestiges existants par un restaurateur agréé.

Propriété de M.Mme Baudiquey à Quincey (21)

LOGIS PRINCIPAL - PROJET

DETAIL PORTIQUE SUR PARC : coupes échelle : 1/50e

restauration des fonds et des décors de badigeon "à l'antique" restauration du dallage pierre réfection du trottoir en pierre de Bourgogne restauration du plaquage restauration des petits bancs "à l'antique" conservation des DEP avec dauphin coudé
2 3 4 2 3 4 1 5 1 5 projet

spot sortie de fils applique spot sur pied interrupteur prise bloc prises

pièce à vivre

Dominique JOUFFROY Architecte du patrimoine 2bis rue du Vieux Collège 21000 DIJON tél. 03 80 65

niveau d’ETAGE

niveau de comble

Hôtel Grasset aménagement partiel des CHANTIER

29 rue Buffon Plan du T2-1 - 1er étage échelle : 1/50e

spot sortie de fils applique spot sur pied interrupteur prise bloc prises

CE Thermo 80L

VMC

Hôtel

Dominique JOUFFROY Architecte du patrimoine 2bis rue du Vieux Collège 21000 DIJON tél. 03 80 65 32 50 597 60 9390138 712558 9090 1825 70 170 60 7 60 10133 7 150 séjour surf. au sol : 39,98 m2 surf. hab. : 16,22 m2 entrée/bureau surf. au sol : 7,71 m2 surf. hab. : 5,92 m2 wc surf. au sol : 2,64 m2 hsp : 2,50 m chambre surf. au sol : 22,19 m2 surf. hab. : 16,22 m2 salle d'eau surf. au sol : 5,49 m2 surf. hab. : 4,49 m2 dressing surf. au sol : 7,47 m2 surf. hab. : 5,10 m2 1,80 m 1,80 m 1,80 m 1,80 m coin cuisine coin salon RF LL R R R R SS SS 1,80 m rangements bibliothèque étagère
aménagement
communs CHANTIER
Plan
échelle
1/50e faux-plafond
Grasset
partiel des
29 rue Buffon à Dijon
du T2-2 - 2e étage
:
sun tunnel imposte vitrée en coupe LV étagère étagère LÉGENDE
T2-2 bar E7 E2 E4 E5 E3 E1 P6 P5 P4
gaine réseau tête de cloison en réduction porte coulissante en applique
5 10 73 5 67 928127 140 5
1379
32 50 chambre surf. au sol : 25,16 m2 hsp : 3,30 m R salle d'eau surf. au sol
3,63 m2 hsp : 2,50 m
surf. au sol
16,57 m2 wc surf. au sol : 2,15 m2 hsp : 3,30 m R placard sas surf. au sol : 1,27 m2 hsp : 3,30 m R LL RF placard existant ensemble remarquable hsp
2,50 m hsp : 3,30 m SS sortie sun tunnel VMC imposte vitrée en coupe LV LÉGENDE
:
:
:
T2-1 P9 P1 P2 PP80 PP70 PP60 CE Thermo 65L
PHASE EXE

RÉNOVATION THERMIQUE ET CHANGEMENT D’USAGE

édifié en 1767

Communs sud de l’hôtel particulier Thomas ou Grasset, Dijon, Côte-d’Or (21)

programme : réaménagement d’un studio et reconversion de bureaux en duplex en deux logements distincts, démolition de tous les doublages existants pour isoler convenablement.

collaboration : visuels réalisés pour l’Agence Dominique Jouffroy Architecte

phase : d’avant-projet sommaire à réception

type : logement privé, patrimoine

40 7 584 435 83 65 80 25 60101355 40 7 pièce à vivre surf. au sol: 11,16 m2 surf. hab. : 9,82 m2 chambre surf. au sol : 10,12 m2 surf. hab. : 7,64 m2 1,80 m 1,80 m RF R R SS LL LÉGENDE spot sortie de fils applique spot sur pied interrupteur prise bloc prises prise télévision prise tel. RJ45 tableau éléctrique radiateur Sèche-serviette T1 SS R P8 PP70 E8 E9 P7 PP80 faux-plafond VMC CE Thermo 65L trappe verticaleVMC SS gaine détail au 1/25e Hôtel Grasset aménagement partiel des communs sud CHANTIER 29 rue Buffon à Dijon Plan du T1 - 2e étage échelle : 1/50e PP70 exutoire hotte plafond bois démontable
Architecte
© Dominique Jouffroy

RÉHABILITATION, RÉHAUSSE PARTIELLE ET AGRANDISSEMENT

Maison provençale, Opio, Alpes-Maritimes (06)

programme : réhausse de la toiture ouest et déblaiement du sous-sol pour créer des hauteurs sous plafond confortables, reprise de la toiture, de l’électricité, de la plomberie (création d’un plancher chauffant) et du CVC, remplacement de toutes les menuiseries et de tous les doublages, modification du cloisonnement et finition marbre, parquet et pierre.

collaboration : visuels réalisés pour l’Agence Sebastian Völker Atelier d’Architecture phase : suivi de chantier

type : logement individuel privé

PHASE DET

Entreprise : Petrov Fermer plafond

Entreprise : Petrov Fermer plafond

Entreprise : ? (fait aujourd'hui mais comment ? et par qui ?)

Entreprise : NBR (aujourd'hui)

Entreprise : Petrov Fermer plafond

Projet de la famille Radke Phase : Date: 06 chemin des Constantins 06650 OPIO Rénovation d'une villa DET Parcelle cadastrée : AC n°66 17/06/2022 Séjour Ech : 1:50 09 WD 98 219 RDC PO 06 WD B H 204 275 RDC 07 WD B H 204 275 RDC 06 WD B H 204 275 RDC 05 449,6 167,3 313,4 133,6 16,4 33,5 45,9 41,9 30,0 90,3 30,0 104,7 33,0 +0 00 34 52 m² 28 64 ml Séjour 12 F= Pierre sur revetement pierre NSF +0 025 NTFMEDIA PCC PCC HP HP PCC Rep A Rep A 2 C4 C4 existant -0 52 inter extérieur
Projet de la famille Radke Phase : Date: 06 chemin des Constantins 06650 OPIO Rénovation d'une villa DET Parcelle cadastrée : AC n°66 16/06/2022 SDB Master n°23 : coupe long Ech. : 1:20 124,9 234,7 112,1 127,0 100,0 50,0 8,0 11,0 24,04,0 30,0 15,0 10,0 63,563,5 100,0 65,0 50,0 250,0 pierre h250 cm S plenum ø 120cm pierre bois planche bois pierre plinthe

construite en 1997

RÉNOVATION ET TRANSFORMATION

Maison provençale, Mouans-Sartoux, Alpes-Maritimes (06)

programme : reprise en sous-oeuvre de l’ensemble de la structure, reprise à neuf du second œuvre, de l’électricité, de la plomberie (création d’un plancher chauffant) et du CVC, remplacement de toutes les menuiseries et créatioin de deux terrasses en R+1 lors de la reprise des toitures.

collaboration : visuels réalisés pour l’Agence Sebastian Völker Atelier d’Architecture

phase : de l’avant-projet au suivi de chantier

type : logement individuel privé

Façade prête à peindre (sur comptoir)

Façades en chêne

Surface des deux plans de travail

Proposition de découpage Ceci est un plan du dossier de consulta�on des entreprises. Il ne peut en aucun cas être u�lisé pour la construc�on de l'ouvrage. Toutes les côtes sont à vérifier sur place par l'entreprise.

Détails Format : DIN A3 Date : 13/09/2023 Coupe CC' Phase : Maître d'ouvrage : Projet : 279 Chemin de la Côte 06370 Mouans-Sartoux RÉHABILITATION D'UNE VILLA 279 Chemin de la Côte 06370 Mouans-Sartoux 351 chemin des Gourettes Les bureaux du soleil, Bât B 06370 Mouans-Sartoux contact@svoelker fr T +33 (0)6 95 92 68 17 M BAUR Mme WEINDL, Ech 1:500 PISCINE & PLAGE S/ DALLE BA 10 153 1 165 13 175 1 3 20 297 209 80 1299 317 293 350 265 90 40 49 268 78 91 20 142 3 NF -0 15 (278 98) Revêtement sol 100 Travertin mixte vieilli ép 3 cm gravillons Tout-venant NF -1 60 (277 53) Revêtement sol 100mm ép Chape de penteGéotextile A S mur -1 65 NF -3 38 (275 75) NF 0 00 (279 13) NF -1 24 (277 89) NF -3 70 (275 43) 243 276 808 427 A B C D A' B' C D' C C Détails Format : DIN A3 Date : 05/02/2024 Détail cuisine Phase : Maître d'ouvrage : Projet : 279 Chemin de la Côte 06370 Mouans-Sartoux RÉHABILITATION D'UNE VILLA 279 Chemin de la Côte 06370 Mouans-Sartoux 351 chemin des Gourettes Les bureaux du soleil, Bât B 06370 Mouans-Sartoux contact@svoelker.fr T +33 (0)6 95 92 68 17 M. BAUR Mme WEINDL, Ech. 1:25 1,10 m2 105 17 60 2,85 m2 2,75 m2 0,89 m2 02 colonne haute réfrigérateur / congélateur p 60 x L 60 x Ht 240 03 colonne haute avec étagères fermées p 46 x L 60 x Ht 240 04 colonne haute / profondeur réduite p.36 x L 60 x Ht 240 01 1 colonne haute pour four encastrable étagères fermées p 60 x L 60 x Ht 240 01 2 colonne haute pour four vapeur ncast étagères fermées p 60 x L 60 x Ht 240 05 colonne haute sur comptoir pour épicerie roulante p 60 x L 32 x Ht 240 06 2 élément bas avec étagères fermées p 32 x L 54 x Ht 88 06 1 élément bas avec étagères fermées p 32 x L 54 x Ht 88 07 élément bas pour meuble d angle avec panier Le Mans p 60 x L 60 x Ht 88 09.3 élément bas avec tiroirs / casserol iers p 60 x L 60 x Ht 88 08.1 élément bas avec trois tiroirs / casserolliers p 60 x L 90 x Ht 88 09.2 élément bas avec tiroirs / casserolliers p 60 x L 60 x Ht 88 09.1 élément bas avec tiroirs / casserolliers p 60 x L 60 x Ht 88 10 1 élément bas avec étagères fermées p 60 x L 60 x Ht 88 (sans fond) 14 élément bas avec étagères fermées p 60 x L 35 x H 88 13 élément bas avec poubelle de tri p 60 x L 60 x Ht 88 (sans fond) 11 façade pour lavevaisselle p 60 x L 60 x Ht 88 (sans fond) 10.2 élément bas avec étagères fermées p 60 x L 86 x H 88 15 Colonne haute sur comptoir avec volet roulant et meuble bas avec étagères fermées p.34 x L 60 x Ht 240 06 3 élément bas avec étagères fermées p 32 x L 54 x Ht 88 17 2 élément bas étagères ouvertes b bliothèque p 32 x L 60 x Ht 88 (sans fond) 16 tablette hotte 17 2 élément bas étagères ouvertes b bliothèque p 32 x L 60 x Ht 88 361 60 25 147 120 420 183 237 141 77 60 60 222 12 259 43 60 335 25 171 51 08.2 élément bas avec trois tiroirs / casserolliers pour plaques au gaz p 60 x L 90 x Ht 88 12 élément bas sous évier pour installation Quooker p 60 x L 60 x H 88 (sans fond ?) BLANCO SUPRA ac er inoxydable 500-U LV

I I II

ateliers Workshops et bénévolats sur le terrain, riches d’échanges et de partages, à travers divers matériaux et diverses méthodes.

MISE EN VALEUR DU PAYSAGE DE MANIÈRE SOUTENABLE

Atelier de Alice BENESSIA, Saint-Antoine-l’Abbaye (38)

mission : création, par équipe, d’une installation pour profiter du paysage, en utilisant les ressources mises à disposition par ce dernier et celles issues de la restauration d’une maison traditionnelle du Piémont, sur la même parcelle.

2015

CONSTRUCTION À L’ÉCHELLE 1:10

D’UN PROJET DE PETER ZUMTHOR : La chapelle du fermier (2007), à la gloire de Nikolaus von der Flüe, appelé « Frère Klaus » Atelier de Cedric ASNIER, L’Isle-d’Abeau (38)

mission : réalisation, en groupe, de la réduction d’un monument architectural, dans le respect de la mise en œuvre du projet original.

2015

mission : conception des supports : practicité, simplicité, stabilité, prix ; recherche et prise de contact avec un fabricant pour la réalisation (spécialiste dans l’emballage carton) ; pour une restitution de voyage organisée par un groupe d’étudiants.

SCENOGRAPHIE POUR UNE EXPOSITION ETUDIANTE Institut d’Urbanisme de Grenoble, Grenoble (38)
2017

FABRICATION DE DÉCORS POUR

UN FILM D’ANIMATION EN STOP MOTION

Atelier de Jean-Christophe HOUDE, Grenoble (38)

mission : réalisation de pièces de mobilier, de bâtiments et de l’arrière-plan, destiné.e.s à constituer le décor d’un film ; dans le cadre de la résidence de Jean-Christophe HOUDE « Cinéma animé, cinéma partagé », organisée sous forme d’ateliers participatifs ouverts au public.

2018

mission : participation à la pose d’enduit (terre, chaux, sable et fibres : foin et lin) des murs sur jardin et au rejointoiement des chambranles en brique.

2019
FINITION TERRE D’UNE MAISON PIERRE ET MASSE Association Enerterre, Graignes-Mesnil-Angot (50)

I I I

etudes de cas

Extrait de projets contextualisés, répondant à un programme et des enjeux réels, en contact avec les acteurs locaux.

III
Yenne, 230m d’altitude, Avant-pays savoyard, Savoie

PROJET DE FIN D’ÉTUDE

Projet de requalification et de revitalisation de l’îlot de l’église : comprenant un Jardin public de la Cure, en face de l’Eglise, et une place du marché des Vieux Moulins, devant l’office du tourisme, au dos de l’Eglise.

Comme une répartition des usages en fonction du sacré et du profane, du Saint et du laïque, le refuge pour les marcheurs de Saint Jacques de Compostelle est face à l’église et le café-vélo et le marché sont dos à cette dernière.

Le refuge urbain se développe dans les vestiges médiévaux de l’ancien prieuré, par une restauration, et le cafévélo se développe dans la construction mitoyenne, rebâtie partiellement en 1947 sur les ruines de cette partie de l’ancien prieuré, par une réhabilitation.

Ancien prieuré, 230m d’altitude, Commune de Yenne, Avant-pays savoyard, Savoie

existant

existant modifié

projet

PROJET DE DEUXIÈME ANNÉE DE LICENCE

Projet de réaménagement d’un bâtiment existant pour une famille imaginaire (couple + un ou deux enfants) assez contraint par la demande : « les façades et la toiture ne sont pas modifiables. » Avec le recul, ces conditions ressemblent à celle d’une intervention sur Monument historique classé.

Choix de concentrer tous les éléments techniques et pratiques du côté aveugle, pour que la vie en elle-même se déroule à la lumière naturelle.

Utilisation d’une matériau différent afin de mettre en avant la création d'une sur-épaisseur du mur aveugle qui contient cuisine, rangement, salle de bain, escalier.

I V IV

GRAPHISME

Numérique ou manuel, retranscription par le dessin et la maquette, passions entretenues depuis le premier âge.

Exploration graphique Mise à Niveau en Arts Appliqués Cours d’expression plastique

EXPLORATION GRAPHIQUE MANUELLE

redessin

relevésurplace

Exploration mentale ou physique pour mon mémoire de M1, sur les habitats d’altitude et les habitats d’urgence

Exploration urbaine au sein de l’U.D.A.P. des Pays de Savoie, à Chambéry

EXPLORATION GRAPHIQUE MANUELLE

RExploration urbaine au sein de l’Unité Départementale de l’Architecture et du Patrimoine des Pays de Savoie

EXPLORATION GRAPHIQUE MANUELLE
es

Exploration urbaine

Carnet de voyage personnel : extrait d’une galerie d’art autochtone à Vancouver

EXPLORATION GRAPHIQUE MANUELLE

Exploration urbaine

Carnet de voyage personnel : extrait d’architecture à Montréal

Exploration urbaine

Carnet de voyage personnel : extrait d’architecture dans le Piémont

EXPLORATION GRAPHIQUE MANUELLE

Exploration graphique Maquettes en cours : juxtapositions de moulures, de couleurs et de motifs

- Recherche d’harmonie -

Idées du 28 janvier 2024

Idées du 12 février 2024

EXPLORATION GRAPHIQUE MANUELLE

Exploration graphique Recherche d’harmonie colorée pour le PLUi d’Uriage-les-Bains

Exploration graphique Recherche d’harmonie colorée pour les visuels pédagogiques de l’AVAP de Guillestre

EXPLORATION GRAPHIQUE NUMÉRIQUE
Cordialement, Camille Blanc

Turn static files into dynamic content formats.

Create a flipbook
Issuu converts static files into: digital portfolios, online yearbooks, online catalogs, digital photo albums and more. Sign up and create your flipbook.